Rudá stodola s moderními prvky – kýč nebo umělecké dílo?
Dagmar Šimonová | Úterý, 16. říjen 2012 |
V dánském městečku Roskilde došlo v tomto roce ke konverzi a k rozšíření existující budovy centra pro mládež. Architekti ze studia Cornelius + Vöge se rozhodli přistoupit k zadání s velkou dávkou invence a ukázat světu svou moderní interpretaci tradičního rybářského domku, kterými je daná lokalita více než typická.
Moderní pojetí vystihuje to, k čemu je budova určená – mladý lidský život
Předešlá budova ležela na okraji původního centra malého města, na pomezí nové zástavby ze 70. let. Její pojetí má podtrhnout regionální identitu, odkázat k tradici, ale zároveň jí vtipně a chytře propojit s modernou. K tomu má posloužit jednoduchý tvar dřevostavby i její červená barva.
Klasický tvar budovy je zmodifikován v prvku propojení svislých fasád a střechy, kterou s budovou váže stejný odstín – to má podtrhnout čisté linie a precizní, jednoduchý tvar celé stavby. Velké měřítko rozbíjí několik základních elementů, které prolamují jinak průběžnou fasádu. Tyto prvky jsou zároveň demonstrací kvalitní architektury, která by sama o sobě měla pozvednout genius loci centra pro mladé Dány.
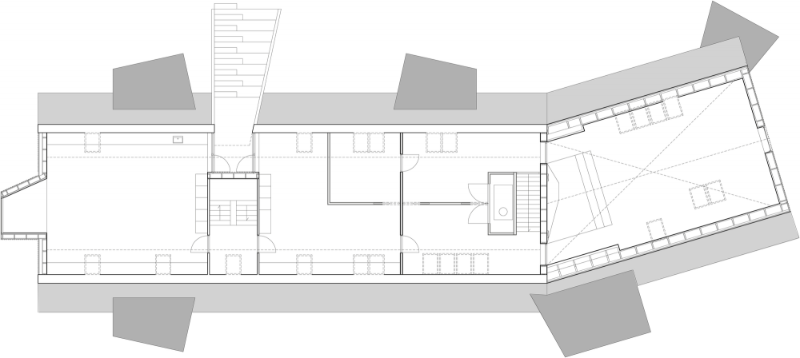
Důraz byl kladen na intimitu a zároveň na kolektivní vyžití
![]()
Konverze stávajícího centra měla za úkol vytvořit více intimních zákoutí, kde by se mohly střetávat především malé skupinky dětí, mělo dojít k zásadní reorganizaci vnitřního uspořádání a ke zformování budovy do více otevřeného, hravého a moderního celku, kam se všichni návštěvníci budou rádi vracet. Dostavba se pak měla postarat o vytvoření flexibilní polyfunkční haly, kde se budou moci pořádat koncerty, skupinová setkání, hry a mnohé sportovní aktivity. Přidanou hodnotou je zajímavě tvarovaná lezecká stěna.
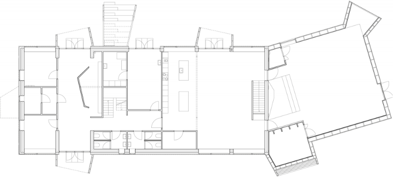
Kvalita prostoru jde ruku v ruce i s jeho energetickou náročností
![]()
Budova získala nové prostory, nový kabát i nízkoenergetický standart, který po své rekonstrukci splňuje. Okolní zelené plochy by měly být díky živějšímu propojení interiéru s exteriérem více součástí stavby, navíc díky tomuto sdružení dochází i k mnohem intenzivnějšímu přídělu denního světla ve vnitřních prostorech. „Výčnělky" z budovy ve formě lodžií, balkonů a předsazených schodišť fungují nejen jako architektonický prvek, ale i jako funkční elementy stavby – například schodiště z druhého patra slouží jako jakási venkovní scéna, jeviště a velkoformátové okno, vykonzolované z rohu budovy, je oblíbeným soukromým prostorem na pomezí interiéru a exteriéru.
