Některé domy čekají na svůj čas. Na fázi života, která zkrátka přinese jiné potřeby, sny a přání. Dřevostavba na okraji Prahy dostala fyzické obrysy, když už bylo dost dojíždění za přírodou a klidem, dost života v centru města a dost přizpůsobování podkrovním šikminám střechy. Nastal čas mít doma tam, kde je zkrátka dobře a není třeba nikam odjíždět.
Naším útočištěm byl půdní byt v centru Prahy, ze kterého jsme každý víkend prchali na chatu směrem na Vlašim. Cesta se stávala stále komplikovanější a vlivem rekonstrukce dálnice časová ztráta rostla, až jsme i díky dalším faktorům dospěli k rozhodnutí udělat změnu. Byt i chatu jsme prodali a postavili na místo toho dům.
Třikrát „ano" pro dřevostavbu
S nápadem na dřevostavbu přišel manžel. Pár našich známých už v ní bydlí a viděli jsme, že se jim bydlí dobře a jsou spokojení. Zpětná vazba od nich byla výborná. Zásadní pro naše rozhodnutí byla ale hlavně rychlost stavby. Prodali jsme byt i chatu a na přechodnou dobu se přestěhovali k mým rodičům do poměrně stísněných podmínek. Díky tomu jsme mohli celý proces zvládnout bez jakékoli finanční půjčky, ale rychlost realizace pro nás hrála významnou roli. Do třetice pro nás byla důležitá dobrá schopnost izolace.
Podkroví už ne
Dodavatelskou společnost jsme vybírali na veletrhu v Holešovicích. V našem hledáčku byly spíše malé firmy. Obecně mám raději, když vidím, že se kolektiv vzájemně zná a nejde o velkou společnost s mnoha odděleními. Následovala také návštěva některých realizovaných staveb a výroby. Bylo jasno. Zvolili jsme následně typový projekt a upravili některé dispoziční detaily.
Po zkušenosti s bydlením v podkroví jsme si přáli dvě plnohodnotná patra. Už jsme znovu nechtěli zkosenou střechu. S návrhem domu jsme si dali práci, a jelikož jsme už měli zkušenosti z chaty, některé věci jsme vychytali už tam a nemuseli je znovu opakovat.
Bydlení za čtyři měsíce
Realizace začala základovou deskou již v listopadu. Samotnou dřevostavbu začali montovat v lednu z připravených panelů a 1. května jsme se stěhovali. Dům byl v tu chvíli hotový, až na pár detailů. Hodně práce nás pochopitelně čekalo na zahradě.
Z papíru do reality
Určitou výzvou bylo představit si všechny detaily ve skutečnosti. Člověk má tendenci si věci trošku idealizovat, když je vidí pouze na papíře. Spoustu prvků jsme vybrali ve vzorkovně a posléze změnili názor a ještě vyměňovali či vraceli, na základě rad řemeslníků, kteří mají praktickou zkušenost a vidí více souvislostí. Třeba koupelnovou baterii nahradila kvalitnější. Během realizace pak padala řada otázek – v jaké výšce chceme vypínače a zásuvky, jak přesně chceme doladit nejrůznější detaily... ne na vše jsem byla v tu danou chvíli připravená.
Aby bylo teplo
Teplo v domě zajišťuje teplovodní podlahové vytápění zabudované v betonové podlaze. V přízemí je pokryta lepeným vinylem, který je perfektní. Trošku zklamáním je pak laminátová podlaha v horním patře. Akusticky to přeci jen není to pravé ořechové, zejména když vstává někdo z nás dřív. Chození po ní je prostě slyšet.
Zdrojem tepla pro topení i užitkovou vodu je elektřina. Velkou změnou je pro nás léto – uvnitř domu je příjemně. Pokud zatáhneme žaluzie a přes den nevětráme, v domě je dobře. Velký rozdíl v porovnání s našimi zkušenostmi z podkroví. Zkrátka je zde po celý rok stabilní teplota – jak v létě, tak v zimě.
Potěšení z nového
Po dlouhé době teď konečně máme hotovou terasu – dokončenou zámkovou dlažbu a moc si ji užíváme. Co nevidět přibude i kovová pergola, která celé posezení doladí. Považujeme si také horní koupelny a kuchyně. Tepelné stability uvnitř v zimě i v létě. Zkrátka si užíváme celý dům. Je to něco úplně jiného. Už není třeba nikam prchat.
Komentář redaktorky:
Baví mě rozmanitost cest vedoucích k bydlení, jež si majitelé pochvalují a kde se jim dobře žije. A taky flexibilita konstrukčních systémů ze dřeva, která uspokojí milovníky přírodních materiálů i ty, kteří raději dřevostavbu v utajení a v interiéru si užijí bílou barvu, kov, sklo, vinyl a další podobné materiály. Montované dřevostavby mě také vždycky udiví rychlostí realizace. I v tomto případě byl dům připraven k nastěhování za čtyři měsíce, nepočítáme-li betonování základové desky. A to není vůbec špatné.
Komentář projektanta
Petr Podlaha, ALFAHAUS s.r.o.
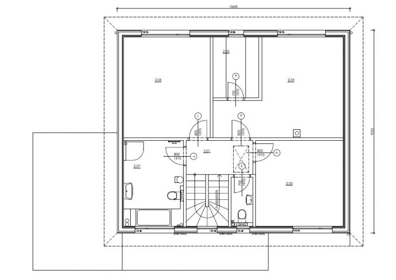
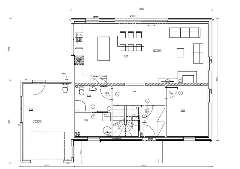
Tento dům vycházel z konceptu projektového domu KLASIK 148. Projekt prošel určitými změnami, přibyla garáž, cihlový obklad a zastřešení vchodu. Vnitřní dispozice byla také upravena na základě přání a požadavků klientů. Vlastní stavba a realizace probíhala velice dobře a lehce, nechyběly pravidelné kontrolní dny, kde bylo budoucím majitelům průběžně vysvětlováno vše potřebné. Dobrá spolupráce se, doufejme, promítla i do dokončené dřevostavby a je tak naplněn další sen o domě se zahradou.
Technické parametry:
Typ domu: nízkoenergetický
Zastavěná plocha: 123 m2
Užitná plocha: 178 m2
Konstrukční systém: ALFADIFU (montovaná dřevostavba)
Teplo a větrání: teplovodní podlahové vytápění včetně regulace bez nuceného větrání
Součinitel prostupu tepla stěnou: U: 0,161 W/m2K
Projekt: projektydomu.cz
Realizace: ALFAHAUS s.r.o., www.alfahaus.cz, 2016
Optimal 02 - dřevostavba na klíč
PENATUS s.r.o.
Užitná plocha: 124 m²
Dispozice: 4+kk / 4+1
Rodinný dům Tábor - dřevostavba na klíč
ALFAHAUS s.r.o.
Užitná plocha: 137 m²
Dispozice: 4+kk / 4+1
Dům se sloupy z douglasky
ARCHCON atelier, s.r.o., DŘEVOSTAVBY BISKUP, s.r.o.
Užitná plocha: 118.44 m²
Dispozice: 4+kk / 4+1
Chata v Jizerských horách - dřevostavba na klíč
3AE s.r.o.
Nízkoenergetická dřevostavba
EKOPANELY SERVIS s.r.o.
Užitná plocha: 115 m²
Dispozice: 4+kk / 4+1
LUCERN 116 - dřevostavba na klíč
LUCERN dřevostavby s.r.o.
Užitná plocha: 103.1 m²
Dispozice: 4+kk / 4+1
Pavo 111 - dřevostavba na klíč
A T R I U M, s.r.o.
Užitná plocha: 111.03 m²
Dispozice: 5+kk / 5+1
Futura Freestyle - dřevostavba na klíč
Prodesi I Domesi
Užitná plocha: 107.8 m²
Dispozice: 3+kk / 3+1
EKONOMY MS 04 - dřevostavba na klíč
MS HAUS s.r.o.
Užitná plocha: 85 m²
Dispozice: 4+kk / 4+1
Bennet
KANADSKÉ SRUBY TÁBOR, s.r.o.
Užitná plocha: 177 m²
Dispozice: 5+kk / 5+1
Rodinný dům 307 - dřevostavba na klíč
MARTINICE GROUP s.r.o.
Užitná plocha: 130 m²
Dispozice: 5+kk / 5+1
Lesníkova roubenka
EKOPANELY SERVIS s.r.o.
Užitná plocha: 260 m²
Dispozice: 5+kk / 5+1
RD Mnichovice
EKOPANELY SERVIS s.r.o.
Užitná plocha: 124.3 m²
Dispozice: 3+kk / 3+1
Ekologická dřevostavba
EKOPANELY SERVIS s.r.o.
Užitná plocha: 128 m²
Dispozice: 3+kk / 3+1
Moderní roubenka v trampské osadě
OK PYRUS, s.r.o.
Užitná plocha: 117 m²
Dřevostavba roku - archiv
Copyright © 2026 Českobrodská 35, 190 12 Praha 9 - Dolní Počernice Kontakt
