Na první dojem venkovský, přesto nabízí současný komfort a nadčasový vzhled. Dům, který neskrývá hřejivou spřízněnost s okolím a naplňuje přirozené instinkty lidské povahy. Jednoduchý, přehledný a příjemný domov pro rodinu Jany a Jakuba, která výraz komplikovanost nemá ve svém slovníku.
Celý příběh této dřevostavby si můžete přečíst v tištěném vydání časopisu DŘEVO&stavby 5/2022 nebo na našem webu v odkazu níže.
Moderní roubenka v trampské osadě
OK PYRUS, s.r.o.
Užitná plocha: 117 m²
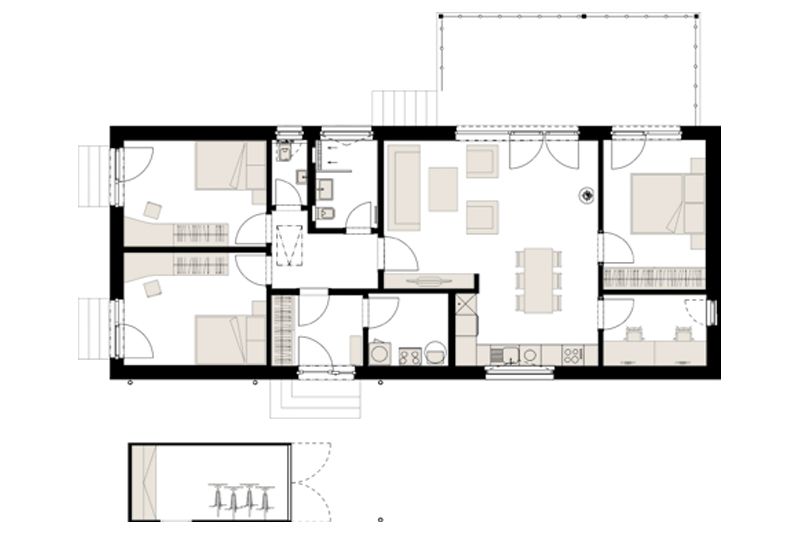
Bennet
KANADSKÉ SRUBY TÁBOR, s.r.o.
Užitná plocha: 177 m²
Dispozice: 5+kk / 5+1
Chata v Jizerských horách - dřevostavba na klíč
3AE s.r.o.
RD Mnichovice
EKOPANELY SERVIS s.r.o.
Užitná plocha: 124.3 m²
Dispozice: 3+kk / 3+1
LUCERN 116 - dřevostavba na klíč
LUCERN dřevostavby s.r.o.
Užitná plocha: 103.1 m²
Dispozice: 4+kk / 4+1
Optimal 02 - dřevostavba na klíč
PENATUS s.r.o.
Užitná plocha: 124 m²
Dispozice: 4+kk / 4+1
Dům venkovského stylu
EKOPANELY SERVIS s.r.o.
Užitná plocha: 153 m²
Dispozice: 4+kk / 4+1
Futura Freestyle - dřevostavba na klíč
Prodesi I Domesi
Užitná plocha: 107.8 m²
Dispozice: 3+kk / 3+1
EKONOMY MS 04 - dřevostavba na klíč
MS HAUS s.r.o.
Užitná plocha: 85 m²
Dispozice: 4+kk / 4+1
Nízkoenergetická dřevostavba
EKOPANELY SERVIS s.r.o.
Užitná plocha: 115 m²
Dispozice: 4+kk / 4+1
Pavo 111 - dřevostavba na klíč
A T R I U M, s.r.o.
Užitná plocha: 111.03 m²
Dispozice: 5+kk / 5+1
Rodinný dům Tábor - dřevostavba na klíč
ALFAHAUS s.r.o.
Užitná plocha: 137 m²
Dispozice: 4+kk / 4+1
Ekologická dřevostavba
EKOPANELY SERVIS s.r.o.
Užitná plocha: 128 m²
Dispozice: 3+kk / 3+1
Dům se sloupy z douglasky
ARCHCON atelier, s.r.o., DŘEVOSTAVBY BISKUP, s.r.o.
Užitná plocha: 118.44 m²
Dispozice: 4+kk / 4+1
Rodinný dům 307 - dřevostavba na klíč
MARTINICE GROUP s.r.o.
Užitná plocha: 130 m²
Dispozice: 5+kk / 5+1
Dřevostavba roku - archiv
Copyright © 2026 Českobrodská 35, 190 12 Praha 9 - Dolní Počernice Kontakt
