Redakce | Úterý, 12. prosinec 2023 |
Cesta z města do náruče krásné přírody na spodním toku Sázavy. I tak by se dal krátce shrnout příběh Pavla a jeho manželky, kteří teď každé ráno snídají s výhledem do malebného údolí. V bezpečí nového dřevěného domu, který jim splnil všechna očekávání. A v mnohém přinesl i něco navíc.
Pavel s manželkou jezdili na místo, kde stojí jejich současný dům, už dobrých dvacet let. Na pozemku po dědečkovi si tady zrekonstruovali víkendovou chalupu. Po čase se naskytla příležitost přikoupit i sousední parcelu, což, jak se později ukázalo, bylo prvním nezamýšleným krokem na cestě k jejich novému bydlení. O tom, že by možná nebylo od věci postavit na pozemku stavbu úplně novou, která by se mohla stát jejich trvalým domovem, začali uvažovat ve chvíli, kdy se rozhodli pokácet část starých stromů. Odkryl se tím totiž překrásný výhled do malebného údolí Sázavy a myšlenka, jak by bylo příjemné se takovým pohledem probouzet do každého nového rána, se usadila a začala zapouštět první kořínky.
Plány a rozhodování o novém domě
V první fázi na novém místě manželé postavili zděnou garáž s dílnou, takovou základnu pro budoucí novostavbu. Servisní objekty pak sloužily jako zázemí pro Pavlův včelařský koníček, protože už delší dobu toužil po pevné stavbě, kde by o své včelky mohl pečovat. Když pak budování nového bydlení začalo získávat konkrétnější obrysy, od původního záměru zděného domu se upustilo. Důvodem byl požadavek paní domu bydlet co možná nejrychleji, ale také touha zažívat při stavbě co nejméně komplikací. Svou roli sehrála samozřejmě i ekonomika a rychle narůstající ceny energií. Na řadu tak přišel výběr realizační firmy, který se Pavel rozhodl nepodcenit.
Neměl kolem sebe v té době nikoho, kdo by měl s nedávnou realizací dřevostavby osobní zkušenost, a tudíž se nemohl spolehnout na osobní reference. Na internetu si proto našel několik firem, jež se dřevostavbami zabývají, a s manželkou pečlivě zhodnotili jejich nabídky i portfolio typových domů. Překvapivě rychle se dopracovali k firmě, kterou se rozhodli pro svůj záměr oslovit – představa byla jasná, bezbariérový bungalov se všemi pokoji orientovanými směrem do údolí. A to nejen z důvodu krásných výhledů, ale i proto, že z druhé strany pozemek sousedí s vlakovým nádražím a jeho provoz by mohl rušit domácí pohodu. A hned po prvním jednání bylo jasno, že s vybraným partnerem do stavby půjdou.
Komentář dodavatele
Musím konstatovat, že v tomto případě nám dům rostl po rukama vlastně tak nějak sám. Zákazník přesně věděl, co chce, rychle se rozhodoval a dával nám srozumitelné úkoly, jak má co vypadat. Pak je práce opravdu radostí, navíc když ze spolupráce vzejde takhle pěkný, ale přitom vlastně jednoduchý dům. Za sebe musím ocenit, jak si zákazníci sami dodělali přístřešek nad terasou a okolí domu, které se dle mého názoru nese v naprosto jednoduchém, avšak velmi elegantním duchu. Tím dům pak krásně zapadne do okolní krajiny a vypadá, jako by na pozemek patřil odjakživa. Děkujeme za projevenou důvěru a přejeme mnoho šťastných let strávených v novém domě.

Ing. Jan Moravec
MS HAUS s.r.o.
Minimální úpravy na typovém projektu
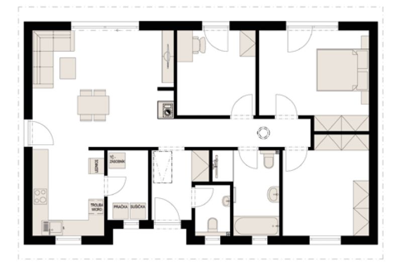
Oproti původnímu typovému projektu, který je na první dobrou zaujal, provedli opravdu je minimální úpravy. Došlo například k mírnému rozšíření zastavěné plochy, protože místa na pozemku bylo dost. Také vnitřní dispozice se změnily, ale jen v detailech. Paní domu například vymyslela pro ni praktičtější umístění dveří do technické místnosti, které se z chodby přesunuly do kuchyně, aby mohla servisní místnost sloužit částečně i jako sklad. Také si manželé dopřáli komfort větší ložnice na úkor pracovny, která je sice využívaná, ale prostor v ní jim přišel zbytečně velkorysý. Přibyl i postranní vchod vedoucí přímo ke garáži. Tohle praktické řešení manželé oceňují pokaždé, když se vrací z nákupu a není třeba s taškami obcházet celý dům.
Vytápění v dřevostavbě za babku
Dům je vytápěn podlahovým topením napojeným na tepelné čerpadlo vzduch-voda, se kterým mají už z minulosti majitelé jen ty nejlepší zkušenosti, protože jej před patnácti roky instalovali také do dědečkovy chalupy. Jako doplňkové vytápění slouží krbová kamna, která dodávají domu útulnost a atmosféru. Ty za teplejších podzimních a jarních dnů dokážou dům spolehlivě vyhřát.
Ostatně dokonce po krátký čas, když vázla dodávka objednaného tepelného čerpadla, sloužila krbová kamna jako hlavní zdroj tepla a tuhle zatěžkávací zkoušku zvládla na výbornou. Při otevřených propojovacích dveřích vytopila i vzdálenější pokoje. To samozřejmě svědčí i o kvalitách obvodové konstrukce ze sendvičových dřevěných panelů, která dokáže teplo uvnitř spolehlivě udržet.
Spokojenost s bydlením v dřevostavbě
Rozhodnutí pro dřevostavbu si dnes Pavel se ženou nemohou vynachválit. Oba vyrostli v bytě – Pavel v paneláku na sídlišti, jeho žena pak ve starém činžovním domě s vysokými stropy, kde byl problém prostory efektivně vytopit. Po svatbě si pořídili společné bydlení také ve městě, protože když byly děti malé, blízkost školy i práce byla velkou výhodou. Dnes už jsou ale obě děti dospělé a životní potřeby rodiny se tak logicky změnily.
V novém domě je klid a pohoda, takže si na život na vsi zvykli velice rychle. Kromě toho si oba pochvalují kvalitu vnitřního ovzduší, která je u nového domu příjemně překvapila. A i když zde bydlí teprve rok, mají už dnes pocit, jako by tu žili odjakživa. Vyzkoušeli si tady už i úmorná letní vedra, a i když v domě není klimatizace, teplota v interiéru nikdy nestoupla přes únosnou míru.
Vzrostlá zahrada
Samostatnou kapitolou je krásná zahrada se vzrostlými stromy. Na dům navazuje velká terasa, která je Pavlovým splněným snem. Její založení si pán domu nechal zhotovit firmou při budování základové desky domu, finální podobu, tedy její dřevěné obložení, si už ale vyrobil sám. Stejně tak zastřešení, které si vynutily horké letní dny. Střecha tak zajišťuje větší komfort při posezení.
O ochlazení a soukromí se postará i vzrostlý ořech na západní straně pozemku, který vrhá velkorysý stín v nejexponovanější části dne. V budoucnu v jeho blízkosti ještě vyroste jedna malá dřevostavba – kůlna na dřevo a sekačku. Po roce hodnotí majitelé svou cestu z města velice pozitivně. Mají tu prý lepší vzduch, ale i náladu, protože dům je pro ně nejen útulným útočištěm v náruči krásné přírody, ale i zrcadlem jejich osobnosti a životního stylu.

Tato dřevostavba soutěží v anketě DŘEVOSTAVBA ROKU 2023
Pomozte nám zvolit nejhezčí dřevostavby! Tato dřevostavba se uchází o váš hlas v anketě Dřevostavba roku 2023 pod názvem "V zeleném objetí". Hlasujte do 30.12. 2023 v tomto kole a získejte atraktivní ceny...
Hlasovat v anketě
Technické parametry
- Typ domu: nízkoenergetický
- Zastavěná plocha: 115 m2
- Užitná plocha: 94 m2
- Dispozice: 4+kk
- Konstrukční systém: sendvičový panel
- Teplo: teplovodní podlahové vytápění, krbová kamna
- Zdroj: tepelné čerpadlo vzduch-voda
- Větrání: přirozené
- Součinitel prostupu tepla stěnou: U = 0,13 W/m2.K
- Projekt a realizace: 2022, MS HAUS s.r.o., www.ms-haus.cz
Autor článku: Jana Šulcová pro časopis DŘEVO&stavby
Nejnovější články v kategorii “Návštěvy dřevostaveb”
-
Zrcadlová roubenka na soutoku
Majitel této roubenky – říkejme mu třeba Martin – měl jasný cíl: postavit svým dospělým dětem dům, kam by mohly o víkendech jezdit a být mu tak i s vnoučaty nablízku. A aby to…
-
Dřevěný domov v krajině rozlehlých luk
Tento příběh připomíná dokonalou pohádku o tom, kterak Kateřina a Jiří našli svůj vytoužený klid v podhůří Krkonoš. Jejich pozemek o rozloze dvaceti tisíc metrů čtverečních je…
-
Dávno splněný sen v podobě patrové dřevostavby na míru
Některé plány a nápady potřebují čas, aby mohly uzrát. Hluboko zapustit kořeny a trpělivě čekat na tu správnou dobu. Jako v tomto případě – poprvé totiž Milan na „svou"…
-
Dřevěná vila schoulená v náručí krajiny
Každý dům nevyhnutelně mění krajinu – jakým způsobem, to už záleží na jeho majitelích. Některé stavby přetvářejí okolí podle svého obrazu, jiné se naopak snaží splynout. A…























Vytvořeno v xart.cz