Dana Jakoubková | Pátek, 08. leden 2021 |
České bungalovy dozajista nekopou stejnou ligu jako jejich australské či americké vzory. Ale právě tato krajová odlišnost jim vynesla nominaci do národního poháru nejžádanějších rodinných domů. V soutěži, které se účastní celky napříč celou stavební ligou, se uplatňují přísně vyřazovací principy. Pro některé hráče na trhu to znamená pouze jednokolovou záležitost bez možnosti prodloužení nebo rozstřelu. Ale ani dostat se do finále nestačí. Trofej je třeba obhajovat, a to dlouhodobě, protože fanoušci jsou zvědaví hlavně na Ligu mistrů. Tak jako rodina pana Josefa z jižních Čech.
Při návštěvě této dřevostavby bylo už po prvních dotazech zřejmé, že rozhodnutí, s kým svůj dům postaví, předcházel pečlivý výběr. Pan Josef je podle všeho velice akurátní člověk. Protože tráví mnoho času na cestách, a chtěl svoji rodinu co nejrychleji zajistit komfortně řešeným a precizně postaveným bydlením, byla jeho prioritou sázka na jistotu. „Klub", který původně neměl ani do utkání zasáhnout, protože ve své nabídce typových domů neměl přesně to, co Josef hledal, nakonec překonal své krajany excelentní trefou na branku.
„Znáte ten pocit, kdy se s někým potkáte a okamžitě cítíte silnou vazbu," začíná Josef popisovat výběr dodavatele dřevostavby. „Sympatický způsob komunikace – posaďte se, probereme to, ne jako jiní, kteří vás odkážou na mailovou komunikaci a pak jsou týden ticho. Vysvětlili jsme jim svoji představu, ukázali náčrt půdorysu s tím, že chceme jenom hrubou stavbu domu a k tomu garáž. S ničím neměli problém, a ještě byli milí."
K výraznému navýšení naděje na postup přispělo i to, že zvažovaná dodavatelská firma byla členem Asociace dodavatelů montovaných domů (ADMD), nabízela záruku na konstrukci třicet let a že šlo o firmu jihočeskou, což přestavovalo úsporu za převoz mechanizace a stavebních dílů, dopravu a ubytování dělníků a slibovalo i rychlejší řešení případných oprav v budoucnu. Nadto měla na kontě jednu významnou trofej – titul Jihočeská firma roku.

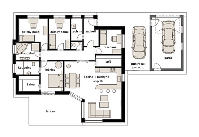
Vzhled: Výraz dávají kombinované fasádě masivní dřevěné prvky. Místo palubek volil majitel prkna se zkosenými hranami, mezi nimiž proudí vzduch. Dům je propojený přes zastřešené stání pro auto i s garáží, v jejímž podkroví vznikne časem pokojík pro hosty. Foto: Martin Zeman

Atmosféra: Dispozičně se dům točí kolem velkého společenského prostoru s kuchyní a jídelnou, jejichž jednotícím prvkem je barva sedačky, skleněného obkladu za kuchyňskou linkou a ubrusu na stole. Sedmikilowatový krb nechal Josef postavit na míru podle plochy místnosti, ale ukázalo se, že výkon je pro dřevostavbu zbytečně velký. Používají ho jen pro atmosféru, o vytápění se stará elektrokotel s rozvody pod vinylovou podlahou. Foto: Martin Zeman

Ochrana: Okna chrání ze severu rolety a zjihu hliníkové žaluzie. Bezprahovým portálem lze vyjít na terasu z modřínového dřeva a dále k bazénu se slanou vodou. Foto: Martin Zeman

Foto: Martin Zeman
Rychlost a vstřícnost
Na tyto dva parametry Josef dobře slyšel, a tak si nakonec plácli. Nebylo to ovšem žádné utrápené vítězství v přesilovce. Vybraná firma prostě přehrála soupeře nejen svojí lidskou, otevřenou komunikací, ale i maximální flexibilitou, ať už šlo o termín stavby, použité materiály nebo spolupráci se subdodavateli investora.
„Podle našeho požadavku vyškrtli z dodávky to, co jsme nepotřebovali, doporučili nám projektanta a spojili se s námi vybranými dodavateli střechy, oken, rozvodů a dalšího potřebného, aby se domluvili na logistice navazujících prací a neztráceli čas prostoji. Vše šlo hladce, řemeslníci spolu rozumně spolupracovali a časový harmonogram výstavby přesně klapnul. Začalo se stavět koncem září a v únoru jsme byli nastěhovaní. A to se kvůli Vánocům a lednovým mrazům pár týdnů nedělalo."

Soukromí: Ložnice a dětské pokoje sází na minimální rozměry a intimitu. Děti i rodiče mají každý vlastní koupelnu, rodiče navíc i šatnu. Foto: Martin Zeman

Foto: Martin Zeman

Odpovědi na tyto a další otázky vám nejlépe zodpoví dodavatel toho domu.
Získat více informací
Kvalita
Již zmíněná pečlivost vedla majitele i kvýběru vysoce kvalitních materiálů a řešení. Například obvodový sendvičový panel má standardně pro nízkoenergetickou dřevostavbu dostatečných třicet centimetrů. Josef si však nechal přidat dalších osm čísel izolační minerální vlny. Přece jen poloha na okraji obce s otevřenou krajinou novohradských hor na dohled je klimaticky exponovaná.
S povděkem kvitoval Josef i doporučení dodavatele stavby k použití konstrukční desky fermacell s lepšími parametry nosnosti a zvukové izolace. Prvoplastová okna, rozuměj nevyrobená z recyklátu, nechal osadit trojskly, chráněnými na severní fasádě venkovní roletou a na jihu zámkovými hliníkovými žaluziemi, které lze ovládat přes mobil.
Dveře vybral se skrytými zárubněmi a povrchem z dýhy, všechna světla opatřil LED žárovkami. Nemá smysl jmenovat tu všechno. Prostě kvalita hráčů na tomto hřišti, od základové desky, až po komín, snese ta nejpřísnější měřítka a dodavatel stavby svým výkonem potvrdil, že patří do extraligy.
Tip: Vyznáte se v dřevostavbách podle jejich energetické náročnosti?

Foto: Martin Zeman

Foto: Martin Zeman
Komentář dodavatele
Tuto dřevostavbu jsme stavěli jako individuální zakázku, kde si část navrhl a subdodavatelsky zajistil zákazník sám. Jelikož stavba probíhala v zimě, museli jsme řešit různé technologické problémy kvůli mrazu. I přes drobné nuance ale byla koordinace a spolupráce s investorem skvělá, a i díky tomu má dřevostavba ten správný šmrnc.

Ing. Tomáš Nemrava
Nema Dřevostavby s.r.o.

obr.: Majitelé si pochvalují dobře spočítaný přesah střechy a kvalitní izolaci domu, která drží chlad i letní horka na uzdě za vydatného přispění trojitého zasklení. Foto: Martin Zeman
Komentář projektanta
Na co kladli stavebníci největší důraz?
Především na materiálové řešení fasády a jelikož šlo o první dům postavený v nově vzniklé části obce, bylo na nás – tedy na investorovi a architektovi, jak vysoko umístíme pomyslnou laťku zástavby. Věřím, že tento projekt citlivě zapadá do místního koloritu a možná se stal i inspirací, vzorem pro budoucí sousedy.
Jaký potenciál nabízel vybraný pozemek?
Z místa, kde se investor rozhodl stavět, je krásný výhled na blanský les a k Novohradským horám, tudíž se stala hlavní prioritou centrální pobytová místnost propojená s terasou, ze které se nabízí impozantní podívaná na tyto přírodní dominanty.
Byla spolupráce sinvestory inspirativní?
Komunikace s investory mě hodně bavila. Mladí lidé, kteří vědí, co chtějí, i co nechtějí. Vidina toho, že jim pomáháte vytvořit místo, kde budou žít a vychovávat svoje děti, a v případě, že se při realizaci nešetří místem, tak i v některých případech jejich děti vychovají ty své, to je vždycky radost.

Ing. Tomáš Matuška
DETAIL PROJEKT s.r.o.

"Dříve jsme bydleli ve zděné bytovce. Komfortu dřevostavby ale v ničem nedosahovala."

Foto: Martin Zeman
Technické parametry
- Typ domu: nízkoenergetický
- Zastavěná plocha: 204 m2
- Užitná plocha: 165 m2
- Konstrukční systém: sendvičový panel Nema Safe, difuzně otevřená konstrukce
- Teplo: elektrokotel, připraveno pro tepelné čerpadlo
- Větrání: přirozené
- Součinitel prostupu tepla stěnou: U = 0,156 W/m2k
- Autor projektu: DETAIL PROJEKT s.r.o., www.detailprojekt.cz
- Realizace: NEMA Dřevostavby s.r.o., www.nema-drevostavby.cz, 2018
Nejnovější články v kategorii “Návštěvy dřevostaveb”
-
Zrcadlová roubenka na soutoku
Majitel této roubenky – říkejme mu třeba Martin – měl jasný cíl: postavit svým dospělým dětem dům, kam by mohly o víkendech jezdit a být mu tak i s vnoučaty nablízku. A aby to…
-
Dřevěný domov v krajině rozlehlých luk
Tento příběh připomíná dokonalou pohádku o tom, kterak Kateřina a Jiří našli svůj vytoužený klid v podhůří Krkonoš. Jejich pozemek o rozloze dvaceti tisíc metrů čtverečních je…
-
Dávno splněný sen v podobě patrové dřevostavby na míru
Některé plány a nápady potřebují čas, aby mohly uzrát. Hluboko zapustit kořeny a trpělivě čekat na tu správnou dobu. Jako v tomto případě – poprvé totiž Milan na „svou"…
-
Dřevěná vila schoulená v náručí krajiny
Každý dům nevyhnutelně mění krajinu – jakým způsobem, to už záleží na jeho majitelích. Některé stavby přetvářejí okolí podle svého obrazu, jiné se naopak snaží splynout. A…














Kamarád si našel pro dům na klíč moravského dodavatele na internetu. Vůbec nechodil na výstavy, neviděl prezentace v reálu, nepopovídal si s nimi, nebyl ve výrobě. A je nešťastný. Dodnes s nimi něco řeší. My jsme se na nové bydlení připravovali rok, aby se naše představy zformovaly do smysluplného výsledku. Nechtěli jsme mít dům rozestavěný několik let. I proto jsme nakonec volili dřevostavbu.
Vytvořeno v xart.cz