Lucie Němcová | Neděle, 13. březen 2022 |
Na první pohled navodí atmosféru přímořské vily či luxusního hotelového resortu, přitom je českým venkovským bydlením současnosti. Moderní, s velkými okny až k zemi – tak znělo zadání majitelů, jejichž vize místo formovaly. Jak by se takový domov líbil vám?
Jaký impulz odstartoval cestu za touto neotřelou přízemní dřevostavbou?
Život zamíchal kartami, připravil nový začátek a spolu s ním i otázku bydlení. Zdejší lokalita nám vyhovovala po mnohaletých předchozích zkušenostech, a jelikož zde nebylo k dispozici mnoho zastavitelných pozemků, rozhodování o koupi této volné parcely bylo jasné a rychlé. Pozemek je poměrně velký, okolo 2 500 metrů čtverečních. Moji rodiče žili v této vesnici v řadovém domě a již pár let jsem je přesvědčoval, aby objekt prodali a postavili nebo koupili bezbariérový dům. To se díky nové konstelaci a velkému pozemku konečně povedlo. Parcelu jsme si rozdělili a rodiče si postavili bydlení vedle.
TIP: LÍBÍ SE VÁM projekt tohoto rodinného domu? Podívejte se na jeho CENU a více INFORMACÍ

Zahrada: V exteriéru je pro majitele nejdůležitější prostor bazénu a terasy. Foto: Tomáš Mach
Čím byl formován koncept objektu?
Návrh obou domů jsme si nechali připravit od architekta. Rodiče s ním dům dokončili, a protože já měl určité výhrady, pro další fázi jsem na základě referencí oslovil architekta jiného. Významná část spolupráce s ním byla založena na doporučování ověřených dodavatelů a musím říct, že vše proběhlo k mé velké spokojenosti. Mám na mysli realizaci kuchyně, koupelen, podlah, svítidel a podobně.

Bazén: Mistrovské dílo a chlouba majitele domu. Foto: Tomáš Mach
Proč padla volba právě na konstrukci domu z CLT panelů?
Masivní dřevěné panely jsme vybrali na základě doporučení architekta. Jako velkým puntičkářům se nám s otcem tento systém náramně líbil. O přesnosti a zdlouhavosti klasického zdění samozřejmě víme své a varianta stavění, kdy máme vše do týdne pod střechou v perfektní přesnosti a rovinnosti, se nám líbila i přes vyšší cenu.

Vstupní prostor: Střecha před vchodem a garáží má velký přesah a dá se zde pohodlně parkovat se dvěma auty. V této zóně je také vyhřívaný chodník a částečně vyhřívaný prostor od brány ke krytému stání. Foto: Tomáš Mach
Pro jakou míru dokončení stavby od realizační firmy jste se rozhodli?
Dodavatelská firma připravila dům „k dokončení", takže včetně skladby podlah bez krytin, komplet elektroinstalace, chytré elektroinstalace LOXONE, všech rozvodů vody, kanalizace a klimatizace. Interiér i zahrada potom byly realizovány subdodavatelsky podle výše popsaného doporučení architekta, pana Hartmana. Ploty a všechny ostatní exteriérové stavební práce zrealizovala místní firma našeho kamaráda.

Zóna relaxace: Druhým místem k odpočinku vedle hlavní terasy je krytý prostor zahradního domku. Foto: Tomáš Mach
Když nahlédneme do technického vybavení – jaké technologie zajišťují teplo, vzduch a případně další komfort domu?
Vytápíme topnými kabely ovládanými inteligentním systémem, což funguje perfektně. Větrání s rekuperací je autonomní systém, jelikož zásah vyžaduje dvakrát až třikrát ročně. Autonomní (nenapojená na inteligentní systém domu) je také klimatizace, kterou využíváme poměrně sporadicky.

Propojení: Štědré prosklení nás od prvního momentu při vstupu do domu propojuje s nejdůležitějším místem – terasou a bazénem. Foto: Tomáš Mach

Kuchyně: Použití stejných barev (tmavého dřeva a bílé) kuchyni dovedně začleňuje do obytného prostoru. Vše důležité a funkční je schováno, aby vizuálně nerušily zbytečné detaily, včetně úchytek. Přesto je prověřená dispozice do U jistě uživatelsky příjemná. Foto: Tomáš Mach
Jak vznikal moderní interiér domu?
Naše původní představa byla dost odlišná od architektem navržené a jsem rád, že nás přesvědčil o některých změnách. Hodně oceňujeme výšku stropu tři metry v hlavním obytném prostoru. Celkově místnost působí o dost vzdušnějším dojmem. Prostor podle mého také pozvedá velký mechový obraz 2,5 × 1,5 metru, který jsem chtěl od začátku. Skvělou věcí jsou velké prosklené plochy z chodby a obýváku směrem k bazénu. Jako výrobce bazénů jsem považoval za důležité, aby byl perfektně viditelný pro všechny příchozí. V létě se návštěvy většinou odehrávají rovnou na obrovské terase u bazénu nebo v altánu u zahradního domku.
Dalším oblíbeným detailem, na který jsme si ale museli zpočátku zvykat, jsou dvoje celoskleněné dveře ze zádveří do chodby a z chodby do obýváku. Celý prostor se tím opticky zvětšuje a je zajímavější. Nestandardní a vizuálně příjemná je výška dveří 220 centimetrů. Uvnitř domu milujeme také saunu usazenou u koupelny. Jsem rád, že se povedlo i přes určité tlaky ustát koncept, kdy je spací zóna dobře oddělena od ostatních. Zejména „manželská" část – šatna, ložnice a koupelna. Šatna je takovým oddělujícím soukromým prostorem pro větší intimitu v případě, že jdeme s partnerkou do sauny a podobně.

Obývací pokoj: Všimněte si barevné i strukturální palety, která utváří prostor a dohromady velmi dobře funguje jako celek. Dřevěné povrchy jsou buď tónově stejné či kontrastní v odstínech hnědé. Další barvy jako bílá, černá a šedá jsou z kategorie neutrálních a společně jsou v souladu. Foto: Tomáš Mach
Kvalitu hlídejte po celou dobu, v přípravné fázi je však nejzásadnější.

Umělecké dílo: Organický obraz „komunikuje" s rostlinami v pokoji a společně akcentují jinak barevně neutrální interiér. Foto: Tomáš Mach
Co byste poradili budoucím stavebníkům rodinného domu?
Určitě bychom poradili neuspěchat přípravu a vše řádně promyslet předem. Pohlídat si kvalitu projektu. Zcela jednoznačně si najmout někoho na „inženýring" a další technickou podporu a mít spolehlivý technický dozor investora. Měli jsme toto vše v jedné osobě a byli jsme spokojeni. Dále doporučujeme nešetřit na architektovi. Teď nemyslím jeho cenu, ale mít architekta jako takového. Sami prostě spoustu věcí nevíte a nevymyslíte. Nám se tato spolupráce osvědčila v mnoha směrech. Nejen na domu jako takovém, ale také při návrhu interiéru a zahrady.
Pokud stavebník neřeší každou korunu, doporučujeme nechat si dům určitě postavit od jednoho dodavatele ideálně do kompletního dokončení. Nám se sice model subdodavatelského dokončení od jednotlivých řemeslníků osvědčil, ale jedině zásluhou architekta, který téměř všechny dohodil. Sami už bychom dnes řemeslníky shánět nechtěli. Je to nadlidský úkol, protože nejsou.

Ložnice: Masivní čelo postele umocněné dřevěným obkladem dodává posteli i celkové atmosféře ložnice nezaměnitelný šarm. Spací zóně takové řešení obvykle prospívá. Foto: Tomáš Mach

Koupelna: Tmavší šedá s černou nechávají perfektně vyniknout barvu dřeva a celý prostor uzemňují. Koupelna jako celek působí hřejivějším a útulnějším dojmem. Foto: Tomáš Mach

Tento dům soutěží v anketě Dřevostavba roku 2022
Pomozte nám zvolit nejhezčí dřevostavby! Tato dřevostavba se uchází o váš hlas v anketě Dřevostavba roku 2022 pod názvem "Tvarem při zemi, komfortem v oblacích". Hlasujte a získejte atraktivní ceny...
Hlasovat v anketě
Otázky pro dodavatele
Co se vám v kontextu tohoto domu vybaví jako první?
Fakt, že kompletní dřevostavba z CLT panelů byla, kromě interiéru garáže, zakryta sádrokartonovými deskami. Přinesla tato realizace nějakou specifickou odbornou zkušenost? Ano, řešení prostupů v parotěsné vrstvě pro revizní a regulační potřeby vzduchotechnického vedení ve stropní konstrukci.
Je vzhled stavby, konstrukce či technologie něčím unikátní?
V tomto projektu je integrována technologie chytrého domu.
Co by nám ještě nemělo uniknout za detail či vlastnost?
Je toho samozřejmě spousta, ale zmíním například nadstandardní výšky interiérových dveří.

Michal Miklíček
3AE, s.r.o.
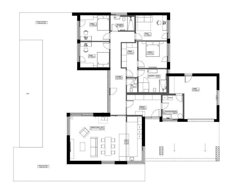
Technické parametry
- Typ domu: nízkoenergetický
- Zastavěná plocha: 247,5 m2
- Užitná plocha: 208 m2
- Konstrukční systém: panely z masivního křížem vrstveného dřeva (CLT) Novatop
- Teplo a větrání: elektrické topné kabely, v koupelnách topné žebříky, krbová kamna; rekuperační jednotka PICHLER LG 250 + chlazení splitovými jednotkami
- Součinitel prostupu tepla stěnou: použity různé skladby, většinou 0,17 W/m2K
- Návrh: BITTNER architects s.r.o.; projekční práce: Libor Švehla, DiS.
- Realizace: 3AE, s.r.o., 2020, www.3ae.cz

Zdroj: 3AE s.r.o.

Tento článek vyšel v časopisu DŘEVO&stavby 1/2022
Objednejte si krásně vonící výtisk časopisu s kvalitními fotografiemi pouze za 99 Kč
koupit časopis
Nejnovější články v kategorii “Návštěvy dřevostaveb”
-
Zrcadlová roubenka na soutoku
Majitel této roubenky – říkejme mu třeba Martin – měl jasný cíl: postavit svým dospělým dětem dům, kam by mohly o víkendech jezdit a být mu tak i s vnoučaty nablízku. A aby to…
-
Dřevěný domov v krajině rozlehlých luk
Tento příběh připomíná dokonalou pohádku o tom, kterak Kateřina a Jiří našli svůj vytoužený klid v podhůří Krkonoš. Jejich pozemek o rozloze dvaceti tisíc metrů čtverečních je…
-
Dávno splněný sen v podobě patrové dřevostavby na míru
Některé plány a nápady potřebují čas, aby mohly uzrát. Hluboko zapustit kořeny a trpělivě čekat na tu správnou dobu. Jako v tomto případě – poprvé totiž Milan na „svou"…
-
Dřevěná vila schoulená v náručí krajiny
Každý dům nevyhnutelně mění krajinu – jakým způsobem, to už záleží na jeho majitelích. Některé stavby přetvářejí okolí podle svého obrazu, jiné se naopak snaží splynout. A…












Dodavatelská firma připravila dům „k dokončení", takže včetně skladby podlah bez krytin, komplet elektroinstalace, chytré elektroinstalace LOXONE, všech rozvodů vody, kanalizace a klimatizace. Interiér i zahrada potom byly realizovány subdodavatelsky podle výše popsaného doporučení architekta, pana Hartmana. Pokud stavebník neřeší každou korunu, doporučujeme nechat si dům určitě postavit od jednoho dodavatele ideálně do kompletního dokončení. Nám se sice model subdodavatelského dokončení od jednotlivých řemeslníků osvědčil, ale jedině zásluhou architekta, který téměř všechny dohodil. Sami už bychom dnes řemeslníky shánět nechtěli. Je to nadlidský úkol, protože nejsou.
Vytvořeno v xart.cz