Redakce | Neděle, 05. květen 2024 |
Když se Hynek rozhodoval postavit si nový dům ve staré vlasti, zvolit dřevostavbu pro něj bylo snadné. Měl totiž už zkušenosti se stavbou podobného domu pro syna v Německu, kde spoustu let žije. A měl tak i možnost porovnávat...
Dřevostavba přišla Hynkovi jako ideální řešení nejenom z hlediska ekologie, úspory energií a snadné realizace, ale i s ohledem na to, že žije střídavě u nás a v Německu. Přál si tak mít co nejméně dodavatelů a tím pádem i problémů. Proto hledal renomovanou firmu s tradicí, která by mu postavila dům doslova na klíč.
Od návrhu k realizaci dřevostavby
Rozlehlý dvojitý pozemek na okraji malebných brdských lesů koupil Hynek jako výhodnou investici už před víc jak deseti roky. Původně měl v plánu postavit domy dva, zatím však zadní část pozemku nechal volnou. Myšlenky na další novou stavbu se ale stále nevzdává. Původním záměrem bylo vybudovat vícegenerační rodinný dům, díky nejrůznějším komplikacím a byrokratickým zásahům ale dopadlo všechno trochu jinak.
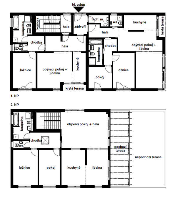
Podle územního plánu může v této oblasti zastavěná plocha zabírat maximálně 20 % pozemku, což dávalo možnost postavit dům „jen" na ploše 260 m2. I tak je dnes stavba přístupná dvěma rodinám, v patře se pak nachází byt připravený do budoucna k trvalému obývání. Hynek pro svůj záměr oslovil spřáteleného architekta, který si trpělivě vyslechl jeho přání a představy. Výsledkem byla studie, která se Hynkovi líbila takzvaně „na první dobrou".
Jednoduše střižený moderní design do okolní zástavby hladce zapadl, na použitou technologii výstavby i na okolní lesy odkazuje dřevěný obklad na fasádě. Dům je rozdělený na dvě pohodlné bytové jednotky s přímým vstupem na zahradu, v horním podlaží se nachází ateliér, který slouží Hynkovi jako dočasné zázemí, kdykoliv přijede na čas do Česka řešit své záležitosti.
Sázka na kvalitu
Pro stavbu domu zvolil Hynek rodinnou firmu s padesátiletou tradicí a dlouholetými zkušenostmi s dřevostavbami. Firma působí nejenom v Německu, kde její domy viděl Hynek poprvé, ale i v sousedním Rakousku a, co je nejpodstatnější, také v Česku. Protože Hynek, i když je to rodilý Čech, žije v Německu už velmi dlouho, pověstná německá kvalita a preciznost je pro něj důležitou přidanou hodnotou.
Rozhodující byl pak fakt, že firma nabídla kompletní balíček služeb (stavbu v dokončení „na klíč"), jenž zahrnoval vše od základové desky, přes střechu, fasádu, okna, dveře, rozvody vody a topení i elektroinstalaci, až po obklady, dlažby, plovoucí podlahy, tepelné čerpadlo a sanitární keramiku. Také pro Hynka připravili i návrh kuchyně a zajistili všechny potřebné dokumenty, povolení a certifikáty. Jediné, co si tak Hynek zajišťoval sám, byl nábytek a osvětlení.
Slovo dodavatele
Postavit velký patrový dům se třemi bytovými jednotkami, vysokými stropy, dveřmi, okny a rozlehlou terasou pro klienta, který je zkušený, znalý a rozhodný, pro nás bylo výzvou a potěšením zároveň. Protože již znal německou kvalitu a preciznost domů Haas, bylo pro nás velkou výhodou, že přesně věděl, co chce, a uměl se rychle a správně rozhodovat.
Naše dřevostavby vynikají skvělou akustikou a zvuk výborně izolují. Vzhledem k tomu, že klient byl na akustiku opravdu náročný, přidali jsme další protihluková opatření jak v příčkách, tak mezi bytovými stěnami, ve stropech a podlahách, a dokonce i ve střeše. Mezi jednotlivými byty tak není nic slyšet a prioritní požadavek na akustiku jsme tak splnili na jedničku.
Neméně zajímavým prvkem dřevostavby je terasa, která je výjimečná nejen svou rozlohou, ale také materiálem – použili jsme na ni kvalitní sibiřský modřín, který je bezúdržbový. Náš klient chtěl zkrátka to nejlepší, co umíme, a my jsme rádi, že jsme jeho představy naplnili.

Jan Waloszek
Haas Fertigbau, s.r.o.
Interiéru dominují zajímavé kousky nábytku
Jedním z hlavních prvků interiéru je dřevěný solitérní nábytek, který dodává prostoru teplý a přírodní vzhled. Hynek ochotně prozradil, že všechny stoly a židle v obývacím pokoji přivezl z Mnichova z jednoho obchodu, kde se sdružují mladí truhláři. „Měli tam pár zajímavých kousků, kterých se před koncem sezony potřebovali zbavit, aby bylo místo na vystavení nových vzorků. Prostě kolem stolu byly nahodile rozestavěné různé typy židlí, a předváděli tak, co všechno dovedou vyrobit. Ale mě to zaujalo, líbila se mi ta lehkost a směs stylů, tak jsem je okamžitě všechny koupil takřka za babku. Tady se tuším říká, že to byl každý pes, jiná ves," vysvětluje Hynek s úsměvem.
Interiér je celkově dost minimalistický, což podtrhuje jednoduchost a eleganci rodinného domu. Prostoru dominuje komfortní a robustní polohovatelná sedačka. Byt, který zatím není trvale obývaný, disponuje dvěma ložnicemi. „Nemáme tu žádné zbytečné věci, jen to, co potřebujeme – pohodlné postele, skříně, noční stolky a pak už jen lampičky. Všechno je to laděné do světlých barev, aby to působilo vzdušně a čistě."
Terasa s tanečním parketem
Dalším místem, kde si majitel rád užívá svého přechodného českého bydlení, je terasa. Ta je rozdělena na dvě části – jedna je zastřešená polykarbonátem, druhá otevřená. „Terasu využívám hlavně v létě, když je hezké počasí. Na zastřešené části si rád sednu a třeba jen čtu knížku, nebo si dám kávu s přáteli. Na té druhé, otevřené, by se s trochou nadsázky dalo i tančit," ukazuje Hynek.
Velká terasa měla původně vypadat jinak. „Architekt nejdříve navrhl tuto část plochy jako ozeleněnou nepochozí střechu. Jenže o tu bych se musel starat, a to jsem nechtěl, respektive kvůli svému občasnému pobytu vlastně ani nemohl," vysvětluje majitel. A tak vznikla nad druhým bytem velice prostorná terasa, kde má Hynek umístěný zahradní gril.
Dilema s vytápěním dřevostavby
U takto velkého domu bylo samozřejmě důležité rozhodnout se pro správný systém vytápění. Prvotní Hynkova představa byla, že bude celý dům vytápět pouze elektřinou, projektant mu to ale nakonec rozmluvil. Druhá myšlenka tak směřovala k topení peletami. „Syn v Německu v menším rodinném domě peletami topí. Je to komfortní, ale potřebujete samostatný prostor na skladování," prozrazuje majitel, proč i od této alternativy ustoupil.
Dilema nakonec vyřešila kotelna a technická místnost v jednom, kde je umístěný plynový kondenzační kotel. Z dnešního pohledu to možná také nebylo zcela optimální řešení, v době stavby ale ještě cena plynu jako topného média nebyla tak závratná. Díky výborným tepelně-izolačním vlastnostem nízkoenergetického domu, jehož plášť tvoří difuzně uzavřený systém s parozábranou (ten dodavatelská firma používá už přes 50 let a je prověřený tisícovkami domů po celé Evropě), vyšly náklady na topení i ohřev teplé vody za první rok jen na 19 000 Kč. To je pro dvě bytové jednotky a ateliér velmi přívětivá suma.
Zahrada pro klid a pohodu
Zahrada zatím není nijak náročně řešená. „Přiznám se, že jsem se její úpravě zatím moc nevěnoval. Máme tu jen trávník a pár keřů. Z počátku jsem uvažoval o bazénu, dnes ale nevím, zda bychom ho dostatečně využívali. Spíš plánuji výhledově udělat nějaké záhonky, nebo třeba menší skleník. Máme rádi zeleninu a ovoce, tak bychom si možná mohli vypěstovat něco vlastního," zamýšlí se Hynek.
Místu dominuje zejména nádherný výhled. Z terasy i z oken je vidět na Brdy, které jsou krásné v každém ročním období. „Bydlení tady je úžasné, výhled oceňuji ze všeho nejvíce. Připadám si tu jako na dovolené, ráno se probudím a pozoruji, jak nad kopci vychází slunce,..." pochvaluje si zasněně.

Tato dřevostavba soutěží v anketě DŘEVOSTAVBA ROKU 2024
Pomozte nám zvolit nejhezčí dřevostavby! Tato dřevostavba se uchází o váš hlas v anketě Dřevostavba roku 2024 pod názvem "Česká stavba s německou kvalitou". Hlasujte do 14.5. 2024 v tomto kole a získejte atraktivní ceny...
Hlasovat v anketě
Technické parametry
- Typ domu: nízkoenergetický
- Zastavěná plocha: 206,55 m2
- Užitná plocha: 265,15 m2 (přízemí 162,76 m2, podkroví 102,39 m2)
- Dispozice: přízemí 2 jednotky (3+kk a 2+kk), podkroví 3+kk + terasa 25 m2
- Konstrukční systém: prefabrikované dřevěné panely
- Teplo: kondenzační plynový kotel, radiátory, elektrické podlahové vytápění
- Větrání: přirozené
- Součinitel prostupu tepla stěnou: U = 0,099 W/m2K
- Projekt a realizace: 2020, Haas Fertigbau s.r.o., www.haas-fertigbau.cz

Tento článek vyšel v časopisu DŘEVO&stavby 2/2024
Objednejte si krásně vonící výtisk časopisu s kvalitními fotografiemi pouze za 99 Kč
koupit časopis
Autor článku: JANA ŠULCOVÁ pro časopis DŘEVO&stavby
Vaše komentáře (0)Nejnovější články v kategorii “Návštěvy dřevostaveb”
-
Zrcadlová roubenka na soutoku
Majitel této roubenky – říkejme mu třeba Martin – měl jasný cíl: postavit svým dospělým dětem dům, kam by mohly o víkendech jezdit a být mu tak i s vnoučaty nablízku. A aby to…
-
Dřevěný domov v krajině rozlehlých luk
Tento příběh připomíná dokonalou pohádku o tom, kterak Kateřina a Jiří našli svůj vytoužený klid v podhůří Krkonoš. Jejich pozemek o rozloze dvaceti tisíc metrů čtverečních je…
-
Dávno splněný sen v podobě patrové dřevostavby na míru
Některé plány a nápady potřebují čas, aby mohly uzrát. Hluboko zapustit kořeny a trpělivě čekat na tu správnou dobu. Jako v tomto případě – poprvé totiž Milan na „svou"…
-
Dřevěná vila schoulená v náručí krajiny
Každý dům nevyhnutelně mění krajinu – jakým způsobem, to už záleží na jeho majitelích. Některé stavby přetvářejí okolí podle svého obrazu, jiné se naopak snaží splynout. A…


























Vytvořeno v xart.cz