Redakce | Pondělí, 10. červen 2024 |
Když se rozhlédnete, uvidíte jen pár typických jihočeských statků a okolo louky a lesy. Pro budoucí bydlení krásné místo. Alespoň to byl původní záměr mladého manželského páru, když si v malé vesničce kupovali pozemek. Nakonec si tu ale postavili rodinný dům, tedy přesněji dřevostavbu hned, a romantické bydlení téměř na samotě si vychutnávají plnými doušky. Návrat do velkoměsta neplánují.
Bydlení v malé jihočeské vesničce, kde je všehovšudy patnáct domů a žije pár desítek lidí, má své kouzlo. Tedy alespoň pro mladou rodinu, která si zde postavila prostornou dřevostavbu. Možná i proto, že z tohoto kraje oba manželé pochází a Praha, kde předtím nějaký čas bydleli, jim tím pádem příliš nechybí. Prvoplánové to ale nebylo.
V hlavním městě se jim vlastně líbilo, měli zde krásný byt s velkými okny. Na jih Čech pravidelně jezdili za rodiči a dalšími příbuznými, v okruhu deseti kilometrů jich totiž mají spoustu. Navíc místo, kde se narodili, opravdu milují. Když se tedy naskytla příležitost koupit zde pozemek, neváhali. O tom, že by hned začali stavět, však v té chvíli neuvažovali. Až někdy v budoucnu, až se budou chtít na jih Čech vrátit.
Jak se ale říká, člověk míní a život mění. V tomto případě za tím stál covid. V době, kdy přišel první lockdown, už měli první dítě. a bylo příjemnější trávit čas v domě a na zahradě u rodičů v jižních Čechách než být zavření v městském bytě. „Tehdy jsme si uvědomili, že v Praze už žít nechceme. Takže jsme si řekli, že se do stavby pustíme hned, nebylo na co čekat," popisuje Zdeňka.
O dřevostavbě měli jasno
Že půjde o dřevostavbu, věděli hned od začátku. Dobře totiž znají nejen realizační firmu, která má výrobu pár kilometrů odtud, ale také přímo celou rodinu, jež za firmou stojí. Podle toho i vybírali architekta, musel znát dřevostavby. Volba padla na mladou architektku z Prahy, kde v té době bydleli. Našli ji na doporučení a hned si sedli. Zadání pro ni pak bylo poměrně přesné. Mladí manželé si přáli tradiční stavbu, která by zapadala mezi ostatní statky. Současně si ale nechtěli zavřít výhled do krajiny. „Chtěli jsme dům co nejvíce otevřený, prosklený, a to se povedlo. Když otevřeme okna v přízemí, tak se nám hned prostor zvětší o terasu a zahradu," říká paní domu.
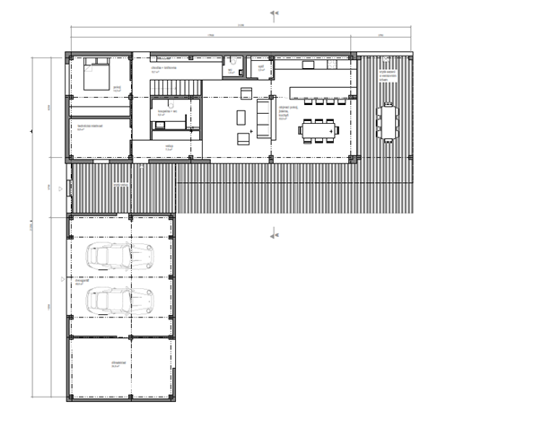
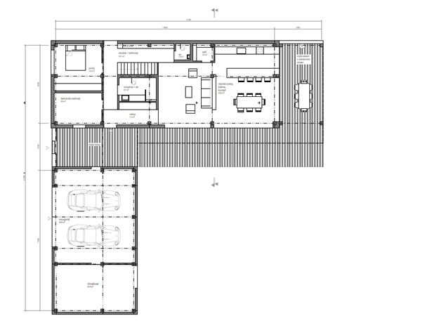
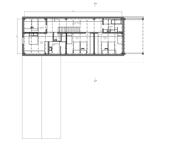
Okny jde dovnitř tolik sluníčka, že i v zimě musí často zatahovat a v interiéru je příjemné teplo. V létě se ale místnosti nepřehřívají, protože střecha má velký přesah a sluníčko je vysoko, takže se paprsky do oken „neopírají". Kromě toho měli napsaný seznam, co všechno v domě chtějí mít. Velkorysou dílnu, pracovnu nebo dostatečný počet záchodů. Také, že by dům měl být patrový, aby v přízemí byla kuchyně s jídelnou a obývákem i pokoj pro hosty, v patře pak čtyři pokoje jako klidová zóna. „V současné době to s dvěma malými dětmi ale moc nejde," připouští Zdeňka. Ve vedlejší stavbě, která zvenku vypadá jako typická stodola, je dílna a garáž.
Překážka čekala na cestě
Ladění projektu a především pak jeho rozkreslování s projektantem trvalo v součtu zhruba rok. „Nechtěli jsme nic uspěchat, chtěli jsme mít všechno perfektně vyladěné do detailů, abychom pak už nic nemuseli vymýšlet přímo na stavbě," vysvětluje Zdeňka. Podařilo se. Jedinou „chybkou", kterou museli při samotné stavbě řešit, byly jedny dveře, potřebovaly o pár centimetrů posunout.
Když došlo na vyřizování stavebního povolení, objevila se zdánlivě vážná překážka. Pozemek je velký, vlastně jde o dvě sousedící parcely, stavět ale bylo možné jen na jedné části. Ale majitelům to nevadilo, velkou zahradu mladá rodina chtěla. K dispozici byla elektřina a vodovod, kanalizaci vyřešili čističkou odpadních vod se vsakem.
Jako velký problém se však ukázala vzdálenost od veřejné komunikace. Ne pro stavbu samotnou, ale zejména kvůli požárnímu hledisku. „Na vlastní náklady jsme tak museli nechat udělat projekt a postavit štěrkovou cestu, která má odpovídající parametry. Přímo u domu jsme museli vybudovat obratiště," popisuje Zdeňka okolnosti, které jim při stavbě udělaly doslova čáru přes rozpočet. Kvůli vzdálenosti více než 50 metrů museli také vybudovat ještě požární vodní nádrž. Plánované jezírko na zahradě tak bylo třeba zbudovat hned při stavbě, a ne až v budoucnu, jak o tom původně uvažovali.
Hrubou stavbu firma, interiéry a zahradu sami
Realizační firma postavila hrubou stavbu až po střechu. Okna kvůli jejich velikosti nebylo možné nechat namontovat přímo v hale při výrobě dřevostavebních panelů, musely se tak domontovat až na místě při kompletaci stavby. Fasádní obklad a další dodělávky už si majitelé řešili po vlastní ose. Něco subdodavatelsky, něco sami. O interiéry se kompletně postarala paní domu osobně. V té době totiž ještě pořád probíhala pandemie covidu a všechny obchody byly zavřené. „Naučila jsem se proto i pracovat s nějakým programem a kuchyň i vestavěné skříně jsem si navrhla sama. Vyrobit jsme je nechali u truhláře," říká Zdeňka.
O barevnosti interiéru přesnou představu neměli. Původně uvažovali o neutrálních barvách. Nakonec ale vše vyplynulo ze situace. V místě musí být červené sedlové střechy. K červené proto hledali barvu oken a dveří a volba padla na zelenou. A právě ta nakonec do značné míry ovlivnila celé vybavení domu. Druhou hlavní barvu určila modrá sedačka. Zbytek už se dolaďoval ke dřevu, které je zde všude přiznané. Výsledek splnil očekávání a rodina je tu spokojená.
Jako výzvu vzala Zdeňka také zahradu. Ateliér Flera tehdy spustil online kurz, aby si člověk mohl zahradu navrhnout sám. Předplatila si jej, a díky návodu si tak zahradu, která je její velkou vášní, navrhla sama, a to opravdu s chutí. Její muž se zase našel v práci se dřevem. Udělal dřevěný obklad i celou terasu. Společným dílem je pak venkovní postel s nebesy. Zdeňka ji navrhla, v realizační firmě jim připravili dřevo a manžel s bratrem ji postavili. V plánu je ještě sauna s kůlnou, samozřejmě opět vlastními silami.
Slovo dodavatele
Jsme velmi rádi, že právě díky nám mohla vyrůst další krásná dřevostavba, která se nachází jen pár kilometrů od našeho výrobního závodu v malebné přírodě na jihu Čech, a že si díky naší firmě rodina splnila sen o dřevem provoněném bydlení. Díky spokojeným zákazníkům víme, že má naše práce smysl, a to nás žene k neustálému zdokonalování a investicím nejen do technologií, ale i do používaných materiálů.

Ing. David Javorský
NEMA dřevostavby s.r.o.

Tato dřevostavba soutěží v anketě DŘEVOSTAVBA ROKU 2024
Pomozte nám zvolit nejhezčí dřevostavby! Tato dřevostavba se uchází o váš hlas v anketě Dřevostavba roku 2024 pod názvem "Romantika na samotě u lesa". Hlasujte do 25.6. 2024 v tomto kole a získejte atraktivní ceny...
Hlasovat v anketě
Technické parametry
- Typ domu: nízkoenergetický
- Zastavěná plocha: 242 m2
- Užitná plocha: 225 m2
- Dispozice: 6+kk
- Konstrukční systém: sendvičový panel
- Zdroj energie / teplo: elektrokotel v kombinaci s krbovými kamny, teplovodní podlahové topení, v koupelnách elektrické topné žebříky
- Větrání: přirozené
- Součinitel prostupu tepla stěnou: U = 0,202 W/m2K
- Arch. návrh: Ing. arch. Michaela Kloudová
- Projekt: Ing. David Javorský, Ing. Radek Volšanský
- Realizace: 2021, Nema Dřevostavby s.r.o., www.nema-drevostavby.cz

Tento článek vyšel v časopisu DŘEVO&stavby 3/2024
Objednejte si krásně vonící výtisk časopisu s kvalitními fotografiemi pouze za 99 Kč
koupit časopis
Nejnovější články v kategorii “Návštěvy dřevostaveb”
-
Zrcadlová roubenka na soutoku
Majitel této roubenky – říkejme mu třeba Martin – měl jasný cíl: postavit svým dospělým dětem dům, kam by mohly o víkendech jezdit a být mu tak i s vnoučaty nablízku. A aby to…
-
Dřevěný domov v krajině rozlehlých luk
Tento příběh připomíná dokonalou pohádku o tom, kterak Kateřina a Jiří našli svůj vytoužený klid v podhůří Krkonoš. Jejich pozemek o rozloze dvaceti tisíc metrů čtverečních je…
-
Dávno splněný sen v podobě patrové dřevostavby na míru
Některé plány a nápady potřebují čas, aby mohly uzrát. Hluboko zapustit kořeny a trpělivě čekat na tu správnou dobu. Jako v tomto případě – poprvé totiž Milan na „svou"…
-
Dřevěná vila schoulená v náručí krajiny
Každý dům nevyhnutelně mění krajinu – jakým způsobem, to už záleží na jeho majitelích. Některé stavby přetvářejí okolí podle svého obrazu, jiné se naopak snaží splynout. A…
























Vytvořeno v xart.cz