Redakce | Středa, 30. červen 2021 |
Byl to internet a mnoho nových i rekonstruovaných staveb, které Eva s Ninou – majitelky domu – viděly dříve, než daly plnou důvěru dřevostavbě v dosahu velkoměsta, přitom na kraji lesa a s překrásným výhledem. Zkušenosti z pětadvaceti let ve zděném domku jim daly určité indicie. Ale teprve osobní návštěva v dřevostavbě s difuzně otevřeným pláštěm rozhodla.
Co vás na dřevostavbě tak zaujalo?
Rozhodně nižší energetická náročnost a rychlost výstavby. Oceňujeme i vnitřní klima dřevostavby, které se se zděným domem nedá srovnat. Jistě k tomu přispívá difuzně otevřená skladba stěn bez parotěsných zábran, což byl náš požadavek.
Dřevo jako materiál, zvláště masiv, je nám příjemný, ale raději ho vidíme v interiéru než v exteriéru, kde je vystaveno povětrnostním vlivům. Proto jsme se rozhodly, že u naší dřevostavby bude plnit funkci konstrukčního prvku a přiznáme ho jen v interiéru.
Vybraly jste opravdu nádherný pozemek u lesa a ještě s výhledem. Jeho svažitost vás netrápila?
Ano, měli jsme štěstí. Pozemek je nedaleko původního bydliště, úplně stranou dopravního ruchu a přírodu máme hned za domem, což je pro nás důležité kvůli sportování a vycházkám se psem. Parcela nemá výraznou morfologii, ale převýšení od spodní hranice k horní je zhruba čtyři a půl metru.
Pro pohodlnější pohyb po zahradě a rovněž kvůli převažujícím větrům je proto dřevostavba "zapuštěna" dva a půl metru pod rostlý terén, zajištěný opěrnými zdmi.

Potřeba: Byť je převýšení pozemku mírné, spolu s klimatickou expozicí si vyžádalo zapuštění dřevostavby do rostlého terénu. Foto: Robert Žákovič
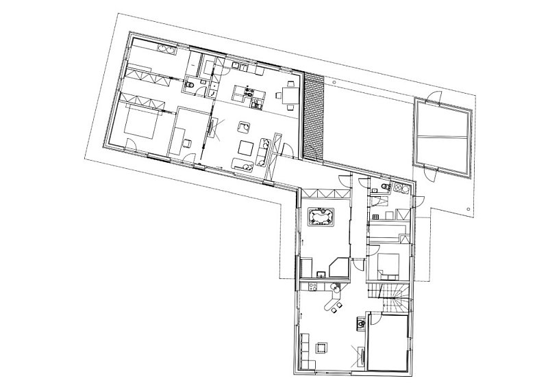
Dům je rozlehlý a dispozičně řešený dvougeneračně. Jde o individuální návrh?
Ano, návrh architekta. Pan architekt nám byl doporučen s tím, že má „charakteristický rukopis" a hlavně neobvykle rozumí i technické stránce věci. Viděla jsem pár jeho prací a požádala ho o spolupráci. Dřevostavba má tři trakty: dvoupodlažní část obývá dcera a větší část zbývajícího přízemí já.
O menší zbytek se dělí společné prostory se zesílenou akustickou izolací, relaxační místnost s vířivkou, infrasauna a malé fitness, ze kterého je při aktivitách výhled do krajiny a má přímý vstup na terasu a k jezírku.

Otisk: Míra prosklení je signifikantním prvkem architektury soudobého rodinného domu a nic naplat, obytným místnostem to na osluněné straně sluší, zvláště jsou-li celostěnovými okny spojené s terasou a exteriérem. Foto: Robert Žákovič
"V předchozím bydlení nám chyběl klid, dostatek světla a čerstvý vzduch."

Foto: Robert Žákovič
Není to jednoduché tvarosloví. Měly jste obavy z realizace?
Ani ne. Věřily jsme dodavatelské firmě, kterou jsme si vybraly kvůli panelové technologii a dlouholetým zkušenostem ve výstavbě i pro investory ve Švýcarsku. Navíc, když nevíte, do čeho jdete, nevíte také, čeho se máte obávat. A pak už to nějak musíte dotáhnout do konce. Nejobtížnější částí výstavby byly subdodávky, které jsme si organizovaly samy.
Když vidím jihozápadní orientaci a velké prosklené portály, musím se zeptat: Nemáte problém s přehříváním domu?
Tepelné zisky jsou poměrně velké. V zimě jsou příjemné, ale v létě je třeba je „krotit". Přesah střechy je 1,2 metru a k tomu máme nainstalované screenové rolety. Výrazně zabraňují tepelné výměně sáláním i vedením. Volili jsme je proto, že plní svou technikou funkci, a přitom je možný i částečný průhled do zahrady.
Připočtu-li značnou tepelnou akumulaci izolačního dřevovlákna v konstrukci stěn, která v našem případě vykazuje hodnotu fázového posunu teplotního kmitu (Ψ) 16,4 hodiny, máme v interiéru velmi příjemnou teplotu i v horkých letních dnech, a to i bez klimatizace, o kterou jsme záměrně neměly zájem.

Souhra: Dispozice rodinného domu během posledních dvou desetiletí velmi pokročila směrem k přirozenosti a pohodlnosti. Z hlediska vnitřní kompozice sleduje kontinuální obytný prostor i v tomto domě provozní uspořádání venkovské chalupy, kde se vařilo, stolovalo a pobývalo v jedné sednici. Do velkých prostor rodinného domu, které jsou dobře prosvětlené, se krásně hodí rozsáhlá kuchyňská linka. Bílá pasuje do každého interiéru a v kombinaci s dřevodekorem a kovovými kuchyňskými spotřebiči působí velmi moderně a čistě. Foto: Robert Žákovič

Styl: Snahou majitelek bylo dřevo v interiéru přiznat, ale současně ho jím nezahltit, aby si nepřipadaly jako na chatě. Stěny jsou proto bílé a jenom strop v obývacích pokojích je z falešných smrkových trámů, kterým sekunduje vinylová podlaha s dekorem i plasticitou dřeva a tenkovrstvá dekorativní omítka antracitové barvy na krbové obestavbě. Foto: Robert Žákovič
Nemáte ani řízené větrání s rekuperací?
Dbaly jsme na zastoupení moderní techniky v rozumné míře. Jednoznačně dáváme přednost přirozenému větrání i za cenu mírných tepelných ztrát a rozhodly jsme se raději investovat do přírodní izolace obálky budovy.
Díky difuzně otevřené konstrukci a jejím vynikajícím tepelně-technickým parametrům by pořízení rekuperace nemělo pro nás vzhledem k pomalé návratnosti ekonomický efekt, ani pocitově by nám řízené větrání nebylo příjemné.

Foto: Robert Žákovič
Omezení techniky zahrnuje i absenci nějakého centrálního, dálkově ovladatelného systému řízení domu?
Nespoléháme na „chytrost" domu. Jsme rády, že nás neomezují návody k užívání, a na oplátku necháme i my tak trochu žít dům jeho vlastním životem. Ano, je to trochu nadsázka, ale myslím, že není dobře chtít mít neustále vše pod kontrolou.

Funkčnost: V zádveří se nejenom zbavíte svršků, bot a deštníku, ale funguje i jako teplotní přechodový filtr. Foto: Robert Žákovič
Co vám působí největší radost ve srovnání s předchozím typem bydlení?
Dcera oceňuje prostor, soukromí a hudebnu se zvýšenou akustickou izolací. Já jsem se upřímně řečeno nejvíc těšila na to, až to bude hotové, všichni cizí lidé odjedou a já za sebou zamknu. Ale stálo to za to. V předchozím bydlení jsme postrádaly klid, dostatek světla a čerstvý vzduch. Toho si nyní užíváme hojně.

Praktičnost: Jedna z ložnic je dělaná na zakázku z masivního dřeva a má prakticky řešené úložné prostory. Foto: Robert Žákovič
"Náš starý zděný dům měl zhruba třetinový objem prostoru na vytápění než současná dřevostavba. Spotřebu energie však máme nyní třikrát menší."

Foto: Robert Žákovič
Změnily byste něco po třech letech zkušeností?
Zásadně bychom neměnily nic. Jsme velmi spokojené, dokonce už to bereme jako standard. Jen když občas máme možnost srovnání, uvědomíme si, že se nám to docela povedlo. Ale ráda bych se podělila o jednu zkušenost, kterou všichni odborníci znají: perfektně připravený projekt šetří nervy, čas i peníze.
Tedy dopředu vědět přesně, co chci! My jsme měly v důležitých věcech jasno, ale úplně přesnou představu ne. Leccos jsme pak řešily za pochodu a to je jedna z chyb, kterou bychom již neopakovaly.

Nadstandard: Wellness není jen sauna. Je to ucelený koncept pro relax těla i duše, který v tomto případě přesahuje až do zahrady a dalekého obzoru. Foto: Robert Žákovič

Půvab: Zemité odstíny v jedné z kuchyní vypadají nadčasově a luxusně. Šmrnc jí dodává atypicky řešený jídelní pult, útulno přidá žluté světlo žárovek Jemnost, vyváženost a čistota tvarů... Půvab se této kuchyni rozhodně nedá upřít. Foto: Robert Žákovič
Technické parametry
- Typ domu: nízkoenergetický
- Zastavěná plocha: 360 m2 i s garážovým stáním
- Užitná plocha: 247 m2
- Konstrukční systém: difuzně otevřená panelová konstrukce Insowool diffuwall 2010
- Součinitel prostupu tepla stěnou: U = 0,15 W/m2K
- Zdroj energie / teplo: teplovodní podlahové vytápění s napojením na plynový kondenzační kotel + doplňkově krb s nízkým výkonem
- Větrání: přirozené














Vytvořeno v xart.cz