Markéta Kristová | Úterý, 10. květen 2022 |
Vybrali jsme pro vás tři typové projekty panelových dřevostaveb, které jsou z 96 % vyrobeny z čistého dřeva. Díky tomu můžete mít jistotu, že bude vaše bydlení ekologické a šetrné k přírodě.
Stále více lidí touží po bydlení ve zdravém a čistém prostředí a právě tyto atributy splňují domy ze dřeva. Dřevostavbu lze navíc kombinovat s přírodními materiály, mezi které se řadí třeba konopná či dřevovláknitá izolace, sláma, hlína a jiné. Použití těchto materiálů vytváří jedinečné vnitřní mikroklima a hřejivý pocit domova – jsou příjemné na pohled i dotek, voní a mnohdy také zbavují interiér škodlivin, na rozdíl od jiných chemicky ošetřených prvků, které naopak mohou být zdrojem nežádoucích látek. Níže vybrané typové dřevostavby se pyšní svým kvalitním zpracováním a vysokým podílem dřeva v konstrukci. Bydlení v jedné z nich bude jistě dobrou volbou pro malou i vícečlennou rodinu nebo starší manželský pár.
Muffin – typová dřevostavba na klíč
Malý základnou, ale pěkňounce vnitřně nakynutý. Jinak řečeno s optimálně řešeným vnitřním prostorem. Ideální pro větší rodinu s možností praktické dřevěné přístavby o ploše 120 m2, která zastřešuje stání pro dvě auta, zahradní domek a terasu. Mobilita ochráněna, zahradní nářadíčko uklizeno a prostor pro čas pohody a relaxace zastřešený i otevřený. Tato vícepodlažní dřevostavba je navíc vyrobena z 96 % z čistého dřeva.
-
Název projektu: NEMA MUFFIN
-
Realizace: NEMA Dřevostavby s.r.o.
- Počet podlaží: vícepodlažní dřevostavba
- Konstrukční systém: panelová dřevostavba
- Podlahová plocha (užitná): 137,60 m²
- Zastavěná plocha: 88,00 m²
- Dispozice: 5+kk / 5+1
- Cena hrubé stavby (vč. DPH): 3 576 000 Kč
- Cena dřevostavby na klíč (bez DPH): 5 664 000 Kč
- Cena včetně základové desky: Ne
Realizace a zdroj: NEMA Dřevostavby s.r.o.
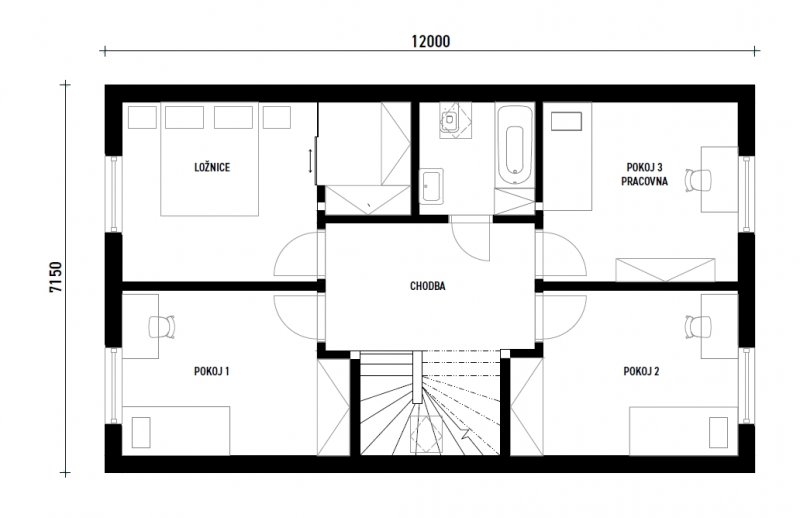
Family – typová dřevostavba na klíč
S 5 ložnicemi, 2 koupelnami, šatnou, technickou místností a tak dále je tento typový dům vhodný i pro větší rodinu se vším, co potřebuje, aby držela spolu, ale každý měl své soukromí. NEMA Family je navíc vzhledově nadčasová a cenově i materiálově zdravá, ba nejzdravější protože je vyrobena z 96 % z čistého dřeva.
-
Název projektu: NEMA FAMILY
- Realizace: NEMA Dřevostavby s.r.o.
- Počet podlaží: vícepodlažní dřevostavba
- Konstrukční systém: panelová dřevostavba
- Podlahová plocha (užitná): 137,30 m²
- Zastavěná plocha: 85,50 m²
- Dispozice: 6+kk / 6+1
- Cena hrubé stavby (vč. DPH): 3 512 000 Kč
- Cena dřevostavby na klíč (bez DPH): 5 616 000 Kč
- Cena včetně základové desky: Ne
Realizace a zdroj: NEMA Dřevostavby s.r.o.
Cute – typová dřevostavba na klíč
Ani velký, ani malý, prostě akorát pro štěstí dvougenerační rodiny či páru, ať už má před dětmi, nebo mu již odrostly. Stejně jako ostatní typové domy z rodiny NEMA převyšuje i dům CUTE standardy kvality, ekologičnosti a energetické úspornosti. Už jen fakt, že je z 96 % z čistého dřeva, hovoří sám za sebe.
- Název projektu: NEMA CUTE
- Realizace: NEMA Dřevostavby s.r.o.
- Počet podlaží: jednopodlažní dřevostavba
- Konstrukční systém: panelová dřevostavba
- Podlahová plocha (užitná): 102,00 m²
- Zastavěná plocha: 123,00 m²
- Dispozice: 4+kk / 4+1
- Cena hrubé stavby (vč. DPH): 2 627 000 Kč
- Cena dřevostavby na klíč (bez DPH): 4 164 000 Kč
- Cena včetně základové desky: Ne
Realizace a zdroj: NEMA Dřevostavby s.r.o.
Ověřená firma realizující typové i individuální dřevostavby
NEMA Dřevostavby s.r.o. je původní česká firma realizující dřevostavby podle typových i individuálních projektů (bez rozdílu ceny) a s možností předání v jakékoli fázi výstavby (od hrubé stavby po rodinný dům na klíč). Za téměř čtvrtstoletí od svého vzniku vyrostla NEMA z malé, původně truhlářské a tesařské firmy ve společnost o desítkách zaměstnanců specializovaných na práci se dřevem. V současnosti vlastní nejlepší evropské technologie a softwary na výrobu ekologických dřevostaveb, krovů a vazníků. V roce 2012 se stala Jihočeskou firmou roku, je členem ADMD a vlastní několik certifikátů kvality splňujících normy EU.
- KONSTRUKČNÍ SYSTÉM: Systém montovaných prefabrikovaných dřevostaveb NEMA zajišťuje rychlou výstavbu v jakékoli roční době, a to při zachování nejvyšší kvality. Firma realizuje dřevostavby z KVH hranolů s difuzně otevřenou nebo uzavřenou skladbou stěn. Stěny dřevostaveb NEMA obsahují až 96 % dřeva, díky čemuž nabízí klientům domov s těmi nejlepšími vlastnostmi pro bydlení.
- TECHNOLOGIE: Foukaná izolace pro nejlepší akumulační schopnost stěn dřevostavby (v zimě hřejí, v létě chladí).
- ZÁRUKA KVALITY: Dřevostavby firmy NEMA splňují nejpřísnější české a evropské normy. Na konstrukci dřevostaveb poskytuje 30letou záruku, zároveň garantuje cenu a termín předání uvedený ve smlouvě.
- VZOROVÉ DOMY: Borovany - výstavba v r. 2016, Srubec u Českých Budějovic - výstavba v r. 2013, Nýřany - výstavba v r. 2020
- PŮSOBNOST: celá ČR
- SÍDLO FIRMY: Chýnovská 2880, Tábor 390 02, www.nema-drevostavby.cz
- REALIZOVANÉ DŘEVOSTAVBY A REFERENCE INVESTORŮ













.jpg)
.jpg)
.jpg)
.jpg)
.jpg)
.jpg)
.jpg)
.jpg)
.jpg)
.jpg)
.jpg)
.jpg)
.jpg)
.jpg)
.jpg)
.jpg)



Vytvořeno v xart.cz