Redakce | Čtvrtek, 04. leden 2024 |
Tato nízkoenergetická přízemní dřevostavba vychází z typového domu LUCERN 116, ale byla uzpůsobena přáním a potřebám klientů. Pojďte dál a nechte se inspirovat moderním bydlením v domě ze dřeva.
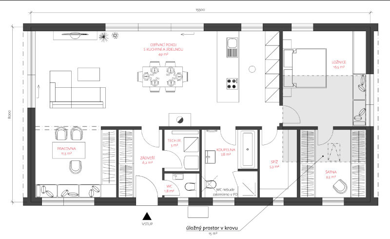
Dům o velikosti 110,4 m2 užitné plochy a dispozici 4+kk má velmi zajímavě řešenou fasádu v kombinaci dřevěného obkladu a cetris desek v antracitové barvě. Dům si nechali postavit manželé na stáří v krásně udržované zahradě se vzrostlými stromy.
Do domu se vstupuje ze zádveří, u kterého najdeme také WC a technickou místnost. Následuje velký obývací pokoj s kuchyňským koutem a jídelnou. Tento prostor je z celé jedné strany prosklený a do zahrady se vstupuje přes HS portál. Uprostřed jídelny najdeme krbová kamna, která jsou schopna dům při chladných večerech ohřát a navíc dotváří příjemnou atmosféru.
Dominantou obytné části je zajímavě řešená kuchyňská linka v netradiční bílo–vínové barvě. Naproti kuchyňskému koutu je po ruce praktická spíž a vedle ní koupelna. Za jedním rohem obývacího pokoje nalezneme pracovnu, na opačné straně domu pak ložnici s vlastní šatnou.
Technické parametry upravené dřevostavby
- Dispozice: 4+kk
- Zastavěná plocha: 135 m²
- Užitná plocha: 110,4 m²
- Technologie: tepelné čerpadlo IVT, podlahové vytápění REHAU, krbová kamna
- Projekt a realizace: LUCERN dřevostavby s.r.o., www.lucern.cz
Typový projekt LUCERN 116
Typový dům LUCERN 116 je řešený jako jednopodlažní dům se sedlovou střechou a obdélníkovou zastavěnou plochou. Dispozičně se jedná o dům 4+kk s užitnou plochou 103,1 m2. Pobytovou část domu tvoří obývací pokoj s kuchyní a jídelním koutem skoro po celé délce domu. Celá tato strana domu je prosklená a vstupuje se z ní na terasu. Na kraji domu jsou umístěny dva dětské pokoje a poté následuje koupelna, WC a ložnice.
Technické parametry typové dřevostavby
- Název projektu: LUCERN 116
- Realizace: LUCERN dřevostavby s.r.o.
- Počet podlaží: jednopodlažní
- Konstrukční systém: skeletový
- Podlahová plocha (užitná): 103,10 m²
- Zastavěná plocha: 116,00 m²
- Dispozice: 4+kk / 4+1
- Cena hrubé stavby (vč. DPH): 2 940 000 Kč
- Cena dřevostavby na klíč (vč. DPH): 4 520 000 Kč
- Cena včetně základové desky: Ano



















Vytvořeno v xart.cz