Markéta Kristová | Čtvrtek, 18. listopad 2021 |
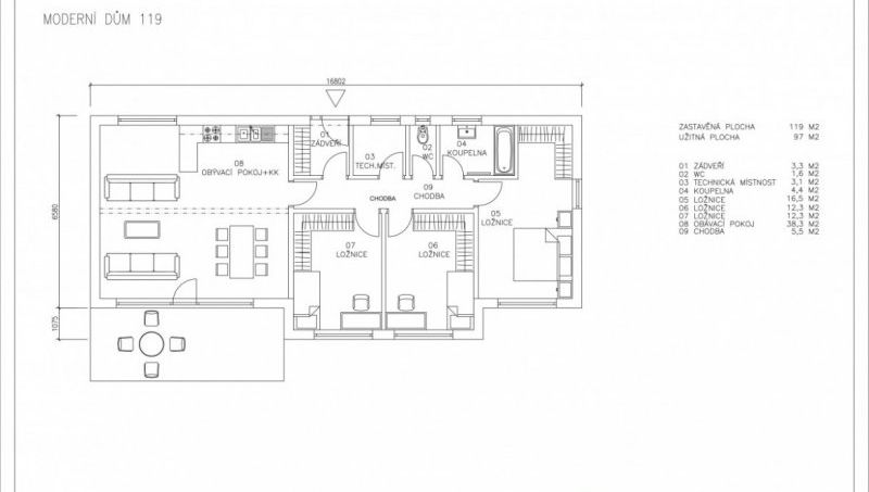
Manželé Ondráčkovi pro svého syna vybrali komfortní typový moderní dům s dispozicí 4 +KK a se zastavěnou plochou 119 m². Tento nadčasový bungalov nacházející se nedaleko nádrže Slapy splňuje veškeré požadavky na moderní bydlení – je stylový, funkční, ekonomický i ekologický zároveň.
O domě a jeho konstrukčním systému
Dům je postaven na druhém konci zahrady, která patří rodičům jednoho z investorů. Sami zde také bydlí. Konstrukce domu je navržena jako difuzně uzavřená z KVH hranolů, opláštěná sádrovláknitými deskami a zateplená polystyrenem tl. 200 mm. Dům má plochou střechu a částečný obklad fasády ze dřeva sibiřského modřínu. Dům krásně zapadá do původní zahrady, což bylo hlavním cílem investorů.
4 v 1: větrání, chlazení, vytápění a ohřev vody
V bungalovu tým firmy Dřevo-House zabudoval kompaktní jednotku Pichler Pkom4 classic, která na malém prostoru sdružuje všechny potřebné funkce jako je větrání interiéru s rekuperací tepla, ohřev (případně chlazení) vzduchu a ohřev teplé vody. To vše za pomoci tepelných čerpadel a energie získané z odpadního vzduchu. Vzhledem k tomu, že se jedná o pasivní dům, byla zde využita dotace v programu Nová Zelená úsporám v celkové výši 345 000 Kč.
„Pro našeho syna jsme chtěli to nejlepší, proto jsme zvolili bungalov právě od společnosti Dřevo-House. Máme k sobě blízko, a tak jsme nechali dřevostavbu postavit vedle domu, kde žiju já s manželkou. Všechny místnosti jsou prosvětlené, vzdušné a z každé z nich se dostanete přímo na terasu," komentuje dům Ing. Josef Ondráček.
Komentář dodavatele
„Spolupráce se stavebníkem byl pohodová. Spíše jsme komunikovali se stavebním dozorem, který řešil většinou technikálií, což bylo ku prospěchu věci a určitě to pomohlo ke zrychlení projektu, jak v procesu plánování, tak v procesu výstavby. Mimochodem, výstavba trvala 4 měsíce. "

Tomáš Jordán
DŘEVO-HOUSE s.r.o.
Moderní dům vycházející z typového projektu
Moderní dům 119 je nízkoenergetický a splňuje požadavky na jednoduché, moderní bydlení s dosažením maximálního komfortu. Dům je jednopodlažní s dispozicí 4+KK. Všechny místnosti jsou navrženy s výstupem na terasu a bohatými prosklenými plochami.
Konstrukční složení stěn udržuje v interiéru po celý rok příjemné klima. Zároveň tepelná izolace zaručuje pohodlné bydlení s velmi nízkými náklady na vytápění. Stavbu dodavatelská firma Dřevo-House dodává ve třech stupních dokončení (hrubá stavba, na dostavění, na klíč).
- Konstrukční systém: panelový
- Podlahová plocha (užitná): 97,00 m²
- Zastavěná plocha: 119,00 m²
- Cena dřevostavby na klíč (vč. DPH): 3 236 573 Kč
- Cena včetně základové desky: Ano













Vytvořeno v xart.cz