Nenápadný, ale nepřehlédnutelný
Zcela přirozeně zapadá do struktury malé obce, přitom na první pohled víte, že je jedinečný. Nenechává chladným, ale nerebeluje. Je tu hlavně pro majitele, ale nechová se arogantně k okolí. Slušelo mu to dokonce i v pošmourném listopadovém odpoledni. Tak tedy neváhejte a nahlédněte!
Připravila Lucie Němcová
Foto Martin Zeman
Pozemek v tomto městysu vlastníme již dlouho a chvíli to vypadalo, že se zde ani neusadíme. Zalíbilo se nám v jiné oblasti, kam jsme z pražského bytu odešli do pronájmu rodinného domku. Vyzkoušeli jsme si tento způsob bydlení a získali cennou zkušenost, poznání výhod a nevýhod a jasno v tom, jak by měl vypadat náš vlastní dům. Vývoj událostí nás znovu zavedl na toto místo a dnes jsme tomu rádi.
Parcela sice se svými 800 metry čtverečními není velká, ale jsou zde krásné velké vzrostlé stromy a je usazena v původní zástavbě, která má přeci jen jiné kvality, než dnes tolik běžné satelity. Máme skvělé sousedy a cítíme se zde ve vesnici dobře. Dnes již ani nemáme potřebu pozemek zepředu uzavírat a izolovat vzrostlou zelení, rádi vidíme, kdo jde kolem.
Důkladné plánování
Dřevostavba nebyla v našich představách od začátku. V její prospěch rozhodla zejména rychlost realizace a úspora metrů užitné plochy díky subtilnějším stěnám. Rozhodli jsme se jít cestou individuálního návrhu a na základě pozitivních referencí kamaráda rychle našli architekta, se kterým jsme si padli do noty. Projektu jsme věnovali rok, abychom měli jistotu, že nám vnitřní dispoziční řešení opravdu sedí. Nejdůležitější pro nás byl dostatek úložného prostoru a propojení se zahradou.
Ještě rychleji
Realizace byla od určitého momentu poměrně hektická, jelikož nás tlačil čas. V rámci časových úspor jsme nakonec zvolili založení na zemních vrutech, které byly vyvrtané během jednoho dne (24 kusů, 1,5 metru hluboko v zemi). Nemuseli jsme tak čekat na základovou desku.
Pohoda bydlení na prvním místě
Dům je otočen na jih, kde má i potřebný přesah na ochranu proti slunci. V horním patře proti teplu pomáhají také folie v oknech. Je vybaven vzduchotechnikou s rekuperací tepla. Vzduchem zároveň i vytápíme. Doplňkovým zdrojem je pak krb v obývacím prostoru. Objekt se rychle nahřeje a rychle vychladne, což nám v principu nijak nevadí. Stalo se nám, že přestala jít rekuperační jednotka a bylo potřeba dům vytopit krbem. Za hodinu zde bylo komfortně teplo, což je fajn.
Naší prioritou nebyl určitý energetický standard nebo úspory, ale čerstvý vzduch doma a s tím spojená pohoda, což funguje velmi dobře.
Otázky pro majitele
V čem pro vás byla přínosná spolupráce s architektem?
Dům je výborně vymyšlený. Po dvouletém užívání bych změnil pouhé dvě věci. Udělal bych větší krb a zádveří, které se prostě nevešlo. Dodnes přemýšlím, jak to udělat.
Jediná nepříjemnost, kromě hektické realizace, bylo navýšení původního rozpočtu. Možná bychom uvítali stopku dřív, abychom si uvědomili, že jsme nad limitem. Jsou věci, které člověk nedohlédne a stojí hodně – různé pozemkové úpravy, opěrné stěny. Je třeba dát si větší rezervu.
Těší mě, že stavba je originální, vzbuzuje emoce. Jsem rád, když nově vznikající domy nejsou úplně uniformní, i když ne kontroverzní za každou cenu. Je zde spousta zajímavých nápadů – osvětlení v obývacím pokoji, interiérové detaily, barevné řešení... Dům bychom zkrátka nikdy nebyli schopni takto vyladit bez spolupráce s architektem.
Které detaily domu si užíváte?
Propojení se zahradou – od jara do podzimu máme tyto dveře otevřené a chodíme tam a zpět. Celkově mám rád prostor obýváku a kuchyně, kde můžeme být spolu. Užíváme si krb. Je tu hodně přírodních materiálů, žádné umělé věci, a je moc příjemné tu chodit naboso. Jsou to takové pocitové záležitosti, dům je prostě příjemný, nejen na dotek. Bydlí se zde opravdu dobře.
Co byste doporučil lidem, kteří se chystají stavět dům?
Nepodcenit dispozici a umístění domů na pozemku. Jaká je orientace ke slunci, aby dům i pozemek byl co nejvíc prosvětlený. Zda je podlaha taková nebo maková je ve výsledku jedno, ale jak jsou vymyšleny jednotlivé místnosti dispozičně, to je zásadní. Dále myslet na úložné prostory. Je velmi praktické dát více metrů do různých skladů nebo chytrých skříňových systémů – na tom bych taky nešetřil.
Otázky pro architekta
Ing. arch. Josef Kocián
Jaké vstupní faktory nejvíce formovaly koncept domu?
Rozhodující byl pozemek, původně zahrada. Vytvářela dojem polouzavřeného prostroru částečně ohraničeného vzrostlými stromy a keři. Použili jsme dům k uzavření severní strany pozemku. Porostlé přízemí mělo splynout se zahradou. V místě hlavního obytného prostoru domu je vegetace přerušena terasou krytou předsazeným patrem.
Čím je dům specifický?
Obklad fasády patra je průsvitný, reaguje na světlo. Když na dům svítí slunce, část fasády světlo propouští a část odráží. To se střídavě mění během dne.
Vyskytl se nějaký komplikovaný detail, který bylo náročně vymyslet?
Náročné bylo vymyslet, jak se konstrukčně obejít bez příčky dělící dětské pokoje v předsazeném patře. Povedlo se zredukovat konstrukci na jediný sloup. V budoucnu je možné zrealizovat příčku jako nenosnou.
Co vás na této stavbě nejvíce baví?
Ustoupila před zahradou.
Jak jste přistupoval k návrhu interiéru?
Cílem bylo navrhnout neutrální interiér s důrazem na kontakt se zahradou. Většina místností má velká okna s výhledy do okolí. Na stěnách a stropech převládá bílá. Doplněna je dřevem v různých formách a barevnosti (trámy, podlahy, vestavěný nábytek). Důležitý prvek interiéru je krb s knihovnou. Jsou sloučeny do jednoho šedého objektu, který je vložen do prostoru obývacího pokoje s kuchyní, jídelnou a schodištěm.
Jak by se měl vůči svému okolí „chovat" dům nově umístěný v intravilánu obce se zachovalou kompaktní původní zástavbou?
Měl by respektovat historii místa a zároveň by měl přinášet něco nového.
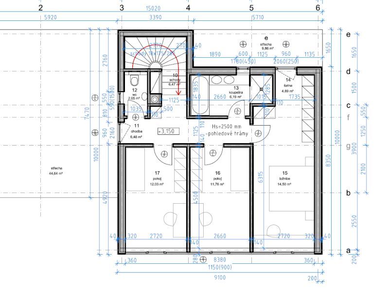
Zastavěná plocha: 133 m2
Užitná plocha: 155 m2
Konstrukční systém: two by four
Teplo: teplovzdušné vytápění (ATREA), mřížky v podlahách, elektrický zásobník TV
Projekt: SPORADICA L architektonická kancelář, Aleš Kubalík,
Josef Kocián, Jakub Našinec, Veronika Sávová,
www.sporadical.cz
Realizace: listopad 2013 – září 2014
Ekologická dřevostavba
EKOPANELY SERVIS s.r.o.
Užitná plocha: 128 m²
Dispozice: 3+kk / 3+1
Moderní roubenka v trampské osadě
OK PYRUS, s.r.o.
Užitná plocha: 117 m²
Nízkoenergetická dřevostavba
EKOPANELY SERVIS s.r.o.
Užitná plocha: 115 m²
Dispozice: 4+kk / 4+1
Futura Freestyle - dřevostavba na klíč
Prodesi I Domesi
Užitná plocha: 107.8 m²
Dispozice: 3+kk / 3+1
Optimal 02 - dřevostavba na klíč
PENATUS s.r.o.
Užitná plocha: 124 m²
Dispozice: 4+kk / 4+1
Rodinný dům 307 - dřevostavba na klíč
MARTINICE GROUP s.r.o.
Užitná plocha: 130 m²
Dispozice: 5+kk / 5+1
Chata v Jizerských horách - dřevostavba na klíč
3AE s.r.o.
EKONOMY MS 04 - dřevostavba na klíč
MS HAUS s.r.o.
Užitná plocha: 85 m²
Dispozice: 4+kk / 4+1
Dům se sloupy z douglasky
ARCHCON atelier, s.r.o., DŘEVOSTAVBY BISKUP, s.r.o.
Užitná plocha: 118.44 m²
Dispozice: 4+kk / 4+1
RD Mnichovice
EKOPANELY SERVIS s.r.o.
Užitná plocha: 124.3 m²
Dispozice: 3+kk / 3+1
Lesníkova roubenka
EKOPANELY SERVIS s.r.o.
Užitná plocha: 260 m²
Dispozice: 5+kk / 5+1
Bennet
KANADSKÉ SRUBY TÁBOR, s.r.o.
Užitná plocha: 177 m²
Dispozice: 5+kk / 5+1
Dům venkovského stylu
EKOPANELY SERVIS s.r.o.
Užitná plocha: 153 m²
Dispozice: 4+kk / 4+1
Rodinný dům Tábor - dřevostavba na klíč
ALFAHAUS s.r.o.
Užitná plocha: 137 m²
Dispozice: 4+kk / 4+1
LUCERN 116 - dřevostavba na klíč
LUCERN dřevostavby s.r.o.
Užitná plocha: 103.1 m²
Dispozice: 4+kk / 4+1
Dřevostavba roku - archiv
Copyright © 2026 Českobrodská 35, 190 12 Praha 9 - Dolní Počernice Kontakt
