Funkcionalismus je nám blízký
Trvanlivost, užitek a jednoduchost. Slova, která vracejí zpátky ozvěnu funkcionalismu, byla prvními, která přišla Antonínovi a Janě na mysl, když přemýšleli o podobě svého domu. Jak říká oblíbená mantra moderny začátku dvacátého století, forma následuje funkci. A této ideji je dům materiálově i hmotově velmi poplatný.
Ovlivnily vás nějak mýty, které se kolem dřevostaveb točí, například že shoří, shnije, sežere ji brouk...?
O dřevostavbách jsme zpočátku nevěděli nic. To je samo sebou pro mýtus živná půda. Informace jsme získávali postupně, a čím více jsme jich měli, tím ubývalo obav, až zmizely úplně. Zásadní pro nás byla rychlost výstavby a požadavek na její kvalitu. Chtěli jsme se vyhnout neustálým opravám. Samozřejmě byly důležité i náklady na realizaci, ekonomičnost provozu domu a pokud možno co nejdelší „bezúdržbový provoz". Dřevostavba nám připadala, a po zkušenosti s bydlením v ní stále připadá, příznivější i po zdravotní stránce.
Měli jste o domě jasnou představu, nebo vznikaly třecí plochy?
Jako asi u většiny stavebníků, naše představa se sice vyvíjela, ale měli jsme se ženou stejné naladění. Hodně času jsme trávili „okukováním" různých realizovaných domů, studiem časopisů a prospektů, návštěvami odborných výstav. Zásadním momentem byl „rozchod" s prvním architektem, kde bohužel nedošlo ke shodě s jeho a našimi představami. Bylo to bolestivé, ale nutné. Došli jsme k názoru, že základ interiéru si musíme navrhnout sami, protože my v tom budeme bydlet a chceme to mít podle našich představ. Zbytek ať doladí, a nás případně usměrní, odborníci. Se základní grafickou podobou nám pomohl kamarádův software a my si tehdy uvědomili, že inklinujeme k funkcionalismu. Ideálně jsme se chtěli přiblížit Müllerově vile.
Řešili jste nějaký oříšek, ať už projektový nebo stavební?
Člověk má tendenci pořád něco řešit. Po zkušenosti se stavbou však doporučuji rozhodovat se rychle a nevracet se pořád zpět a něco vylepšovat, leštit. Hodně nám pomáhalo dělat písemný zápis z jednání jak se stavební firmou a architektem, tak s technickým dozorem. Co je psáno, to je dáno, a devadesát procent úspěchu je příprava.
Zmiňoval jste nějaký problém s pozemkem...
Ano, měli jsme to složitější, proto bych rád budoucím stavebníkům sdělil pár svých postřehů. Doporučuji ověřit si, zda nevázne na pozemku a příjezdové komunikaci nějaké ale. Příkladně zda je pozemek správně zaměřen a zda není na příjezdové komunikaci „flíček" pozemku, který budete muset následně draze koupit. Posun plotu totiž vyjde dost draho. Pak je vhodné ověřit, zda je vstup na parcelu bez závazků, informujte se na sousedy; potížisté vás potrápí. Důležité je aby parcela byla přístupná pro stavební techniku – vyšší jeřáb rovná se vyšší cena, a následně zda nebude prostorově problematický vjezd do garáže nebo přístřešku pro auta. A také ověřte, zda není skrytě zpoplatněno připojení na sítě.
Co se vám nepovedlo?
S ohledem na rozsah stavby toho bylo velmi málo. Nemáme ideálně situovaný vjezd na pozemek. Pak litujeme, že jsme objednali jenom jednu retenční nádrž na dešťovou vodu. Upotřebili bychom dvě, ideálně uzpůsobené i k využití vody třeba na splachování. Co se týká funkčnosti domu, ne zcela dotažené je vytápění vzduchem. Ne že by to firma nedokončila. Jde jen o to, že jsme asi vzduch jako medium přecenili.
Podle čeho jste vybírali stavební firmu?
Dobrá firma stejně jako architekt se hledají velmi obtížně. Nám se první architekt nepovedl a dodavatele stavby jsme proto vybrali na základě doporučení. Nepodceňujte smlouvu a nešetřete na ní. Jasně musí být definován rozsah, cena a termíny dodávky, a samozřejmě vyrovnané sankce pro obě strany. Důležitý je vztah dodavatele k vyřizování reklamací, zda je vstřícný, nebo má sklony „nechat problémy vyhnít pod rohožkou". Vyjednejte si prodloužení reklamačních lhůt, zvažte využití pozastavení plateb, důležitým bodem je servis – termín nástupu pracovníků po oznámení problému a garance náhradních dílů pod sankcemi. My jsme měli seriózního dodavatele a můžeme jej doporučit dalším stavebníkům. Byl velmi pozitivní a vstřícný. Od podpisu už jsme smlouvu nemuseli vytáhnout. Přesto doporučujeme nepodceňovat technický dozor investora. I ten jsme si najali na základě doporučení. Jeho přítomnost na stavbě a kontrola byla přínosem pro všechny zúčastněné strany.
Jak si stojí váš pasivní dům se spotřebou energie?
Na elektřinu u nás jede vše a za loňský rok jsme platili 27 600 Kč, což je zhruba 65–70 procent spotřeby bytu 3+1 při třech lidech v paneláku. Plánujeme, že časem přidáme solární zdroj energie pro ohřev užitkové vody. Stávající kapacita není pro nás tři dostatečná
Co byste poradili lidem, kteří zvažují dřevostavbu?
Nelitujte času na studium literatury, katalogů a webových stránek dodavatelů či na návštěvu výstav doma i v zahraničí. Informace ale přijímejte s nadhledem. Poučte se od těch, kteří mají výstavbu již za sebou. Vybírejte architekta, se kterým si porozumíte a který garantuje jednotnou linku domu. Doporučuji zvážit co nejvíce vestavěných úložných prostorů a šaten, je to velice příjemné, včetně těch v technické místnosti. Jako dobrou alternativu vidím i krb. V přechodných obdobích je zdrojem tepla pro celý dům, při dobrém dodavateli dřeva přináší značné úspory na vytápění. Hlavně v zimě při výpadku elektřiny nezmrzneme. Za samozřejmost považuji perfektní izolaci domu, což náš dům plně splňuje, až překračuje. Buďte nároční k sobě i k dodavatelům, ale nepřehánějte to. Pokud to jen trochu jde, zaměřte se na úsporu provozních nákladů a ne jen na levné půjčky. O všem rozhoduje „ostrá tužka". Investiční náklady musí mít ale reálnou návratnost.
Kdybyste měli stavět znovu, změnili nebo zohlednili byste něco?
S domem jsme velmi spokojeni. Nepovedlo se sice úplně vše, a protože pokrok letí vpřed, asi bychom něco dnes řešili jinak. Například až po nastěhování jsme zjistili, že voda v lokalitě je dost tvrdá. Musíme nyní řešit její úpravu, aby nedocházelo k poškození topných spirál elektrických spotřebičů a zanášení rozvodů teplé vody. Doporučujeme řešit toto v předstihu. Celkově je ale důležité, aby problém nebyl nevratný a měl řešení. Zatím jsme u nás ani v zahraničí v této kategorii na nic lepšího nenarazili.
Technické parametry
Typ domu: pasivní
Dotace: Nová Zelená úsporám
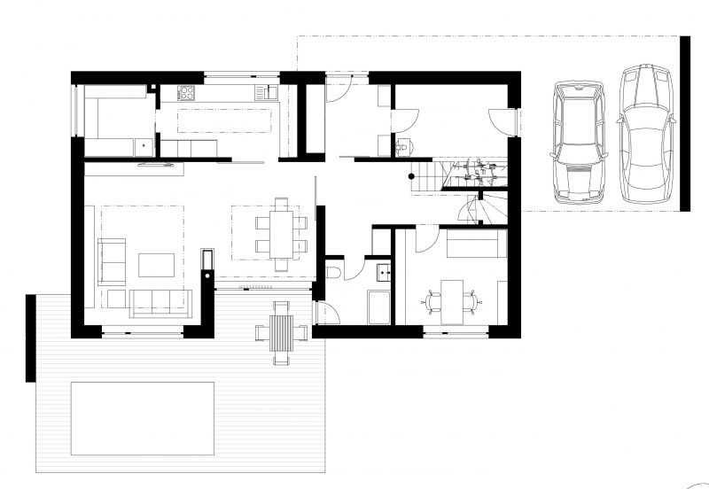
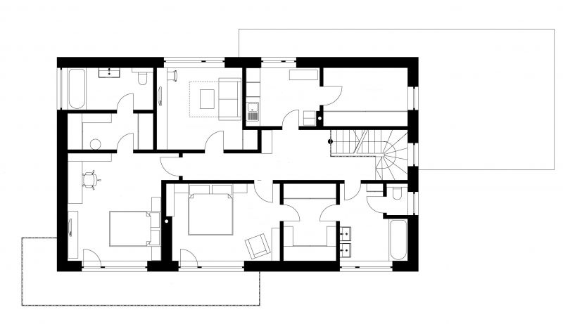
Zastavěná plocha: 140 m2
Užitná plocha: 224 m2
Konstrukční systém: panelová konstrukce
Teplo: teplovzdušné – tepelné čerpadlo vzduch-vzduch
Větrání: řízené s rekuperací tepla
Součinitel prostupu tepla stěnou: 0,133 W/m2K
Autor projektu: Ing. Lenka Bidermanová
Realizace: Origis s.r.o., www.origis.cz
Optimal 02 - dřevostavba na klíč
PENATUS s.r.o.
Užitná plocha: 124 m²
Dispozice: 4+kk / 4+1
Futura Freestyle - dřevostavba na klíč
Prodesi I Domesi
Užitná plocha: 107.8 m²
Dispozice: 3+kk / 3+1
Chata v Jizerských horách - dřevostavba na klíč
3AE s.r.o.
Lesníkova roubenka
EKOPANELY SERVIS s.r.o.
Užitná plocha: 260 m²
Dispozice: 5+kk / 5+1
Dům venkovského stylu
EKOPANELY SERVIS s.r.o.
Užitná plocha: 153 m²
Dispozice: 4+kk / 4+1
Moderní roubenka v trampské osadě
OK PYRUS, s.r.o.
Užitná plocha: 117 m²
Rodinný dům Tábor - dřevostavba na klíč
ALFAHAUS s.r.o.
Užitná plocha: 137 m²
Dispozice: 4+kk / 4+1
Dům se sloupy z douglasky
ARCHCON atelier, s.r.o., DŘEVOSTAVBY BISKUP, s.r.o.
Užitná plocha: 118.44 m²
Dispozice: 4+kk / 4+1
LUCERN 116 - dřevostavba na klíč
LUCERN dřevostavby s.r.o.
Užitná plocha: 103.1 m²
Dispozice: 4+kk / 4+1
Bennet
KANADSKÉ SRUBY TÁBOR, s.r.o.
Užitná plocha: 177 m²
Dispozice: 5+kk / 5+1
Pavo 111 - dřevostavba na klíč
A T R I U M, s.r.o.
Užitná plocha: 111.03 m²
Dispozice: 5+kk / 5+1
Rodinný dům 307 - dřevostavba na klíč
MARTINICE GROUP s.r.o.
Užitná plocha: 130 m²
Dispozice: 5+kk / 5+1
Nízkoenergetická dřevostavba
EKOPANELY SERVIS s.r.o.
Užitná plocha: 115 m²
Dispozice: 4+kk / 4+1
RD Mnichovice
EKOPANELY SERVIS s.r.o.
Užitná plocha: 124.3 m²
Dispozice: 3+kk / 3+1
EKONOMY MS 04 - dřevostavba na klíč
MS HAUS s.r.o.
Užitná plocha: 85 m²
Dispozice: 4+kk / 4+1
Dřevostavba roku - archiv
Copyright © 2026 Českobrodská 35, 190 12 Praha 9 - Dolní Počernice Kontakt
