Čirý génius dovede udělat umění z čehokoliv. Michelangelo by dokázal sochu i z bláta a Jane Austenová román z čaje. Paní tohoto domu mi předvedla něco, co neumím dost přesně specifikovat. Souvisí to ale nějak s tím velkým spočinutím mysli, o kterém mluvíme, když jsme šťastni jen proto, že žijeme. Vždycky jsem měla pocit, že rodinný kód je srozumitelný právě a jenom členům rodiny. Jenže tady rezonoval celým domem, vracel se z koutů, seděl na dně šálku mého kafe, byl v letmém pohybu obočí, kterým výtvarnice Marie mírnila neposedné děti. I tehdy, když jsme dospěly ke konci rozhovoru, měla jsem pořád jaksi dojem, že je ten příběh nekonečný.
Nějakou dobu jsem si lámala hlavu nad tím, co vlastně tvořilo onu těžko sdělitelnou domáckost. Dům je totiž velice jednoduše členěný, s docela prostornými místnostmi, málo zastavěnými nábytkem. Je vlastně maximálně praktický, i když dispozičně vzhůru nohama. Člověk ale musí dát dosavadní zkušenost do závorky, aby nad touhle obyčejností mohl žasnout.
V nejhořejším patře je pak vděčný za to, že tu závorku udělal. Tam totiž nemůže propadnout malomyslnosti, ani kdyby bylo týden zataženo. Ostatně jak řekl Jan Werich: „Není šedivých dnů. To jsou jen unavené oči, které nechtějí vidět jejich svátečnost." Prostě tady nahoře je člověk nejenom okouzlen, ale má pocit, že sám dokáže kouzlit a okouzlovat.
To pravé místo
Majitelé vsadili téměř vše, včetně výběru pozemku, na jednu osobu – architekta. Žili totiž trvale ve Varšavě a sami neměli možnost se aktivně na hledání podílet. Pátrali tak jenom v inzerátech na internetu a vybrané tipy dali architektovi ke zhodnocení. On se zajel na pozemek podívat a dal jim zpětnou vazbu, proč do toho nejít. Trvalo docela dlouho, než se naskytla parcela kousek od Berounky. Když ji i architekt vyhodnotil jako vhodnou, přijeli se na ni Marie a Pavlem osobně podívat.
„Hned jsme věděli, že tohle je to místo, kde chceme být," vzpomíná Marie. „To pravé místo, do toho se totiž musíte zamilovat. Ono na vás čeká, jenom to nesmíte uspěchat a vzít něco, co je zrovna po ruce, protože tam nebudete šťastni, není to vaše místo. To své si musíte vyčekat."
Nyní, když dům stojí, není těžké vnímat pozitiva parcely. Ale klobouk dolů přes fantazií všech, co v zarostlé nudli ve tvaru hokejky viděli budoucnost. Úzký a značně svažitý pozemek, byť orientovaný jižně, totiž příliš možností nenabízel.
Dobrá volba
„Architekt nám předložil několik návrhů domu s tím, že zde by šel do dřevostavby," vzpomíná Marie. „Moc jsme o tom nevěděli, vlastně obecně se ještě před těmi čtyřmi lety dřevu moc nevěřilo a my se neměli čeho chytit. Naše rozhodnutí zpečetil až váš časopis, kde jsme hledali inspiraci a informace."
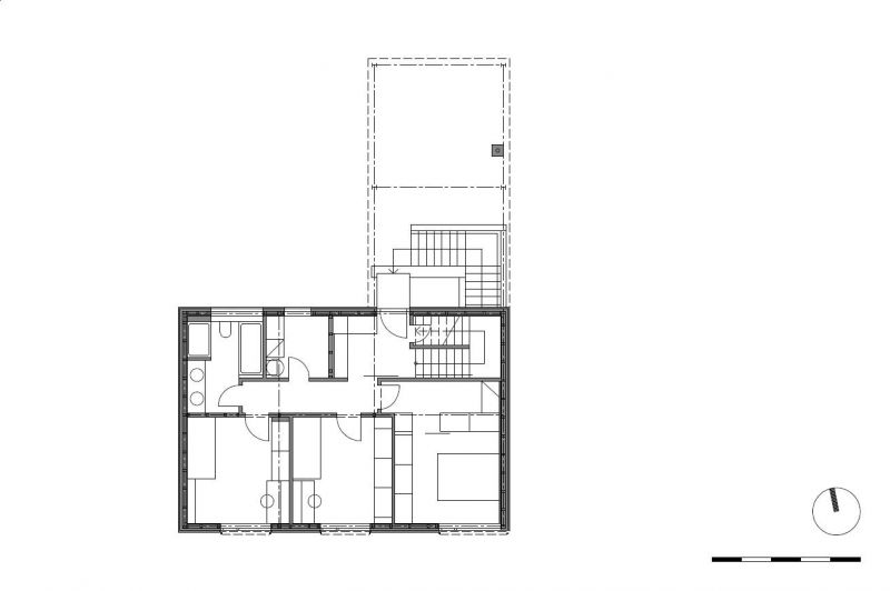
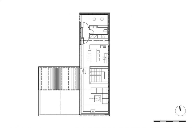
I když byl mezi návrhy i přízemní dům, rozhodli se majitelé pro dvoupodlažní bydlení, které spočívá na otevřeném, železobetonovém soklu zapuštěném do svahu. V soklu, který je vlastně prvním podlažím, je umístěno parkování pro dvě osobní vozidla a venkovní úložný prostor. Podlaží ložnic v prvním nadzemním podlaží je tvořeno hranolem rovnoběžným s vrstevnicemi svahu, na němž spočívá druhé podlaží s hlavním obytným prostorem, podélnou osou kolmé ke svahu. Vzájemným pootočením obou hranolů o devadesát stupňů vznikla střešní terasa jako součást tělesa druhého patra, které tak vytváří i krytý prostor pro venkovní schodiště domovního vstupu. Vnitřní schodiště pak začíná na úrovni ložnic, respektive prvního patra a ústí uprostřed obytného prostoru nejvyššího podlaží s kuchyní a jídelnou na jedné straně a sezením na straně druhé.
„Dnes si tuto volbu nemůžeme vynachválit," pochvaluje si Marie. „Obytná zóna je prakticky na roveň korunám borovic u hranice pozemku a z obýváku i terasy tak máme fantastický výhled. Mám pocit, že náš dům je takto mezi všemi živly. Za zády máme skálu, vidíme na Berounku, krbový oheň je na jihu a všude kolem dřevo. Mám pocit, že tady je všechno tak akorát."
Technické parametry
Typ domu: nízkoenergetický
Zastavěná plocha: 125 m²
Užitná plocha: 134 m²
Konstrukční systém: 1. PP železobetonový monolit + ocelová konstrukce, 1. NP a 2. NP dřevostavba
Teplo: zdroj – tepelné čerpadlo vzduch-voda DAIKIN
Větrání: přirozené okny
Součinitel prostupu tepla stěnou: U = 0,228 W/m2K
Roční náklady na energie: cca 20 000 Kč / rok
Autor projektu a realizace: Ing. Jakub Roskovec / SCHAUFLER-ROSKOVEC, s.r.o., www.schaufler-roskovec.cz, 2014
Nízkoenergetická dřevostavba
EKOPANELY SERVIS s.r.o.
Užitná plocha: 115 m²
Dispozice: 4+kk / 4+1
Rodinný dům Tábor - dřevostavba na klíč
ALFAHAUS s.r.o.
Užitná plocha: 137 m²
Dispozice: 4+kk / 4+1
Dům venkovského stylu
EKOPANELY SERVIS s.r.o.
Užitná plocha: 153 m²
Dispozice: 4+kk / 4+1
EKONOMY MS 04 - dřevostavba na klíč
MS HAUS s.r.o.
Užitná plocha: 85 m²
Dispozice: 4+kk / 4+1
Bennet
KANADSKÉ SRUBY TÁBOR, s.r.o.
Užitná plocha: 177 m²
Dispozice: 5+kk / 5+1
LUCERN 116 - dřevostavba na klíč
LUCERN dřevostavby s.r.o.
Užitná plocha: 103.1 m²
Dispozice: 4+kk / 4+1
Ekologická dřevostavba
EKOPANELY SERVIS s.r.o.
Užitná plocha: 128 m²
Dispozice: 3+kk / 3+1
Futura Freestyle - dřevostavba na klíč
Prodesi I Domesi
Užitná plocha: 107.8 m²
Dispozice: 3+kk / 3+1
RD Mnichovice
EKOPANELY SERVIS s.r.o.
Užitná plocha: 124.3 m²
Dispozice: 3+kk / 3+1
Moderní roubenka v trampské osadě
OK PYRUS, s.r.o.
Užitná plocha: 117 m²
Lesníkova roubenka
EKOPANELY SERVIS s.r.o.
Užitná plocha: 260 m²
Dispozice: 5+kk / 5+1
Rodinný dům 307 - dřevostavba na klíč
MARTINICE GROUP s.r.o.
Užitná plocha: 130 m²
Dispozice: 5+kk / 5+1
Chata v Jizerských horách - dřevostavba na klíč
3AE s.r.o.
Dům se sloupy z douglasky
ARCHCON atelier, s.r.o., DŘEVOSTAVBY BISKUP, s.r.o.
Užitná plocha: 118.44 m²
Dispozice: 4+kk / 4+1
Optimal 02 - dřevostavba na klíč
PENATUS s.r.o.
Užitná plocha: 124 m²
Dispozice: 4+kk / 4+1
Dřevostavba roku - archiv
Copyright © 2026 Českobrodská 35, 190 12 Praha 9 - Dolní Počernice Kontakt
