Na začátku byla tříčlenná rodina a sen o malém domě. Zaseté semínko začalo klíčit, ale že mu to bude trvat přes osm let, nikdo nečekal. Nyní tu však stojí – pasivní dům plný dřeva a hlíny, voní po bylinkách a je domovem dnes již pětičlenné rodině. Cesta ovšem nekončí. Stavba dále zraje, vyvíjí se a její obyvatelé spolu s ní.
Bydleli jsme v cihlovém domě ze 40. let, v jednom z bytů kdysi určených horníkům. Synovi, kterému je nyní deset, byly dva roky. Tehdy jsme se rozhodli, že se přestěhujeme do mé rodné vesnice, kde mám velkou část své rodiny. Vybrali jsme pozemek na okraji v území pro budoucí zástavbu a dohodli se s majitelem. Tehdy jsme ovšem ještě netušili, co nás čeká.
Běh na dlouhou trať
Přes pozemek vede vysokotlaký plyn, takže velká část nešla zastavět. Proto máme velkou zahradu a také jistotu, že minimálně 80 metrů okolo nás nic nevznikne. Pozemek byl sice výhledově určen pro zástavbu, ale byla potřeba ještě změna územního plánu. Současně probíhala pozemková úprava v celé obci a proces natáhlo také územní řízení pro kořenovou čistírnu. Všechny potřebné úkony trvaly nakonec dlouhých osm let. K našemu synovi přibyly dvě děti, a došlo proto v průběhu i na drobné dispoziční změny v projektu.
Nezaměnitelný rukopis
Než jsme si vybrali našeho architekta, navštívili jsme několik jeho domů. Každý byl jiný, ale měly něco společného. Možná je to i tím, že si jej vybírají podobně naladění lidé. Jeho styl nás oslovil. Třeba pro něj typické kontrasty oblých a rovných stěn. Měli jsme jasno, že dřevostavbu chceme právě od něj.
Vize versus realita
Původní naivní představa byla, že si dům postavíme svépomocí z balíků slámy. Po účasti na několika workshopech jsme však museli uznat, že to nepůjde. V dnešní době nikdo nemá čas trávit půl roku na něčí stavbě.
S těžkým srdcem jsme tedy vyškrtli slámu a souhlasili, že si dům necháme postavit. Možná bychom dokázali svépomocí něco ušetřit, ale bylo pro nás lepší chodit do práce a vydělávat peníze tím, co umíme, a pak investovat do domu. Kdybychom se pustili do stavby sami, udělali bychom samozřejmě i první chyby. A jelikož stavíme jeden dům za život, zdálo se nám jako lepší řešení přenechat tuto činnost odborníkům. Navíc jsme po dlouhém čekání nechtěli strávit další dva roky stavbou. Bylo pro nás důležité, aby děti mohly dům, zahradu i okolí užívat co nejdříve.
Realizace v minimálním čase
Schvalovací proces sice trval věčnost, ale samotná realizace pouhých pár měsíců. V květnu stavba započala a přesně 23. prosince jsme přebírali klíče. Po zvažování jsme na doporučení vybrali menší realizační firmu. Přestože měla ve srovnání s velkou věhlasnou společností mnohem méně zkušeností, líbilo se nám, že staví třeba jen dva, tři domy za rok. A byla to úžasná cesta. Věřím, že jak pro nás, tak pro ně. Nálada v průběhu byla moc hezká, čehož si velmi považujeme. Zpočátku jsme byli ostražití, protože nás všichni varovali před peklem – nedodrženými termíny, navýšením rozpočtu a dalšími katastrofami. Nakonec jsme však díky této firmě dokonce ještě něco ušetřili.
Dispozici kraluje kuchyně
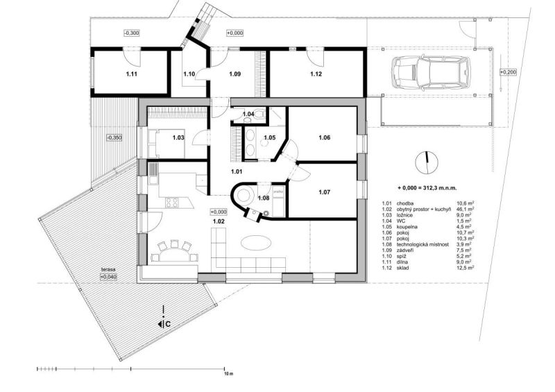
V dispozici domu pro mě byla zásadní kuchyně a výhled z ní. Často vařím a je pro mě důležité, abych odtud měla přehled. To se opravdu povedlo, vidím po celém obývacím prostoru, do dětských pokojů i do krajiny. Ložnice je menší, než jsme původně plánovali. Kvůli posunuté příčce se nevešla vestavná skříň. Máme zde pouze úložné šuplíky pod postelí a stačí nám to.
Méně věcí, víc radosti
Mít co nejméně věcí je našim cílem v celém domě. Chtěli jsme malou stavbu, aby už to samo o sobě vytvářelo předpoklad, že budeme žít šetrně. Celý objekt má pouze 97 metrů čtverečních.
Když jsme si byli prohlížet realizované stavby a procházeli se v jedné z nich, pozitivně tam hodnotili množství úložného prostoru pod střechou. Pro nás to ale bylo mínus. Ve chvíli, kdy máme úložný prostor, přirozeně ho zaplníme. A to my nechceme. Proto jsme jím šetřili.
Podporující detaily
Neustále mě překvapuje, jak dobře do detailu je dům vymyšlený, aby se v něm dobře žilo. Když přijdeme ke kamarádům, kteří mají třeba typový projekt, rozhodně to není ošklivá stavba, ale není přesně pro ně a nemají takové zázemí okolo ní.
Kromě mnoha praktických a krásných detailů, které si uvědomujeme při každodenním užívání, (od řešení oken, průhledů, okenních ostění až třeba po umístění popelnice) si po předchozím bydlení považujeme ticha, které tu panuje a po letech konečně také života s dětmi v rodinném domě s velkou zahradou.
Technické parametry:
Typ domu: téměř pasivní, dle PHPP 19 kWh/m2a
Zastavěná plocha: 120,2 m²
Užitná plocha: 98,5, m²
Konstrukční systém: fošinkový stěnový skelet kombinovaný s I nosníky v podlaze a střeše založený nad terénem na pilířkách
Teplo a větrání: fotovoltaika, krbová kamna, kaskádové větrání řízené čidlem CO2 s rekuperací
Součinitel prostupu tepla stěnou: 0,097 W/m2K
Projekt 2010-12: aktualizace prováděcího projektu 2014, acad. arch. Aleš Brotánek, AB ateliér Brno a.r.o. spol. s r.o.
Realizace: červen až prosinec 2015, EP Stavby s.r.o
Ekologická dřevostavba
EKOPANELY SERVIS s.r.o.
Užitná plocha: 128 m²
Dispozice: 3+kk / 3+1
Chata v Jizerských horách - dřevostavba na klíč
3AE s.r.o.
Rodinný dům Tábor - dřevostavba na klíč
ALFAHAUS s.r.o.
Užitná plocha: 137 m²
Dispozice: 4+kk / 4+1
Pavo 111 - dřevostavba na klíč
A T R I U M, s.r.o.
Užitná plocha: 111.03 m²
Dispozice: 5+kk / 5+1
Rodinný dům 307 - dřevostavba na klíč
MARTINICE GROUP s.r.o.
Užitná plocha: 130 m²
Dispozice: 5+kk / 5+1
Dům se sloupy z douglasky
ARCHCON atelier, s.r.o., DŘEVOSTAVBY BISKUP, s.r.o.
Užitná plocha: 118.44 m²
Dispozice: 4+kk / 4+1
EKONOMY MS 04 - dřevostavba na klíč
MS HAUS s.r.o.
Užitná plocha: 85 m²
Dispozice: 4+kk / 4+1
Bennet
KANADSKÉ SRUBY TÁBOR, s.r.o.
Užitná plocha: 177 m²
Dispozice: 5+kk / 5+1
Dům venkovského stylu
EKOPANELY SERVIS s.r.o.
Užitná plocha: 153 m²
Dispozice: 4+kk / 4+1
LUCERN 116 - dřevostavba na klíč
LUCERN dřevostavby s.r.o.
Užitná plocha: 103.1 m²
Dispozice: 4+kk / 4+1
Lesníkova roubenka
EKOPANELY SERVIS s.r.o.
Užitná plocha: 260 m²
Dispozice: 5+kk / 5+1
Optimal 02 - dřevostavba na klíč
PENATUS s.r.o.
Užitná plocha: 124 m²
Dispozice: 4+kk / 4+1
RD Mnichovice
EKOPANELY SERVIS s.r.o.
Užitná plocha: 124.3 m²
Dispozice: 3+kk / 3+1
Nízkoenergetická dřevostavba
EKOPANELY SERVIS s.r.o.
Užitná plocha: 115 m²
Dispozice: 4+kk / 4+1
Moderní roubenka v trampské osadě
OK PYRUS, s.r.o.
Užitná plocha: 117 m²
Dřevostavba roku - archiv
Copyright © 2026 Českobrodská 35, 190 12 Praha 9 - Dolní Počernice Kontakt
