Stejně jako se automobil stal významným znakem společenského postavení, míry vkusu a ekonomického kapitálu, lze i dům považovat za symbol úspěchu, životního stylu i aspirací majitele. V současné společnosti se sice jasná pravidla „luxusní hry" stírají, nicméně požadavky těch, kteří si mohou dovolit i něco mnohem dražšího, přetrvávají. Netuctová karoserie, komfort a skvělý „drajv" tak řadí do prestižní kategorie auta i domy.
Vzhledem ke kombinaci technologického a estetického rozměru je proto rozhodně nelze považovat za pouhý užitkový prostředek člověka. I když je výrazná identita tohoto domu původnímu významu slova luxus blíže, než je tomu u vozu Rolls-Royce nebo Jaguar, smysl pro invenci a nadčasová strategie je jim společná.
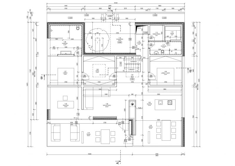
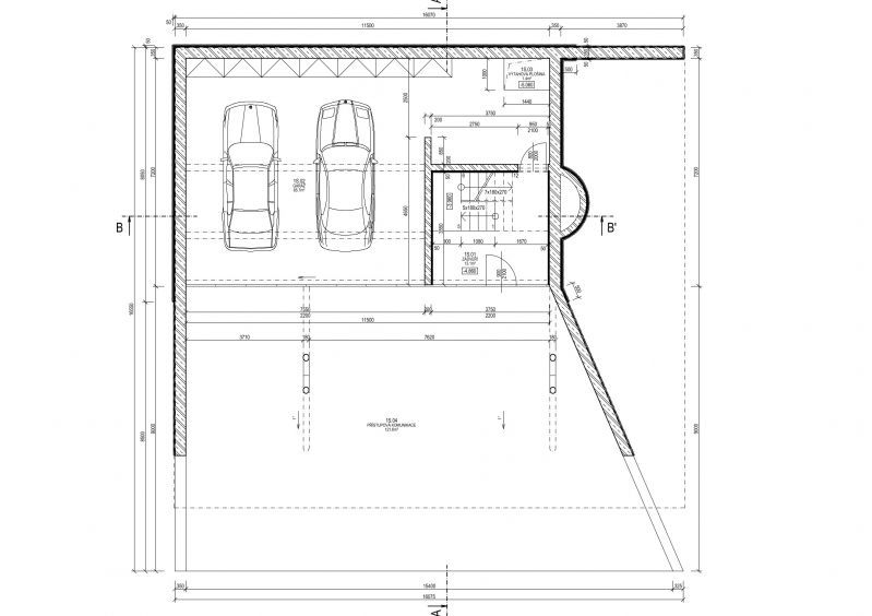
Typ domu: nízkoenergetický
Zastavěná plocha: 237 m²
Užitná plocha: 227,36 m² + 51,21 m² terasy
Konstrukční systém: CLT panely Stora Enso z masivního, křížem lepeného dřeva
Teplo: hlavní zdroj – krbová vložka s teplovodním výměníkem a rozvodem pod podlahou + doplňkový zdroj – elektrokotel a radiátory
Větrání: přirozené + nucený odtah koupelny a WC
Součinitel prostupu tepla stěnou: 0,199 W/m²K (s bezpečnostním přípočtem 0,02 W/m²K)
Autor projektu: Petr Krčál a Přemysl kokeš, www.kokespartners.cz
Realizace: Mirhaus s. r. o., www.mirhaus.cz
Nízkoenergetická dřevostavba
EKOPANELY SERVIS s.r.o.
Užitná plocha: 115 m²
Dispozice: 4+kk / 4+1
Optimal 02 - dřevostavba na klíč
PENATUS s.r.o.
Užitná plocha: 124 m²
Dispozice: 4+kk / 4+1
EKONOMY MS 04 - dřevostavba na klíč
MS HAUS s.r.o.
Užitná plocha: 85 m²
Dispozice: 4+kk / 4+1
Moderní roubenka v trampské osadě
OK PYRUS, s.r.o.
Užitná plocha: 117 m²
Rodinný dům 307 - dřevostavba na klíč
MARTINICE GROUP s.r.o.
Užitná plocha: 130 m²
Dispozice: 5+kk / 5+1
RD Mnichovice
EKOPANELY SERVIS s.r.o.
Užitná plocha: 124.3 m²
Dispozice: 3+kk / 3+1
Rodinný dům Tábor - dřevostavba na klíč
ALFAHAUS s.r.o.
Užitná plocha: 137 m²
Dispozice: 4+kk / 4+1
Pavo 111 - dřevostavba na klíč
A T R I U M, s.r.o.
Užitná plocha: 111.03 m²
Dispozice: 5+kk / 5+1
Ekologická dřevostavba
EKOPANELY SERVIS s.r.o.
Užitná plocha: 128 m²
Dispozice: 3+kk / 3+1
LUCERN 116 - dřevostavba na klíč
LUCERN dřevostavby s.r.o.
Užitná plocha: 103.1 m²
Dispozice: 4+kk / 4+1
Dům se sloupy z douglasky
ARCHCON atelier, s.r.o., DŘEVOSTAVBY BISKUP, s.r.o.
Užitná plocha: 118.44 m²
Dispozice: 4+kk / 4+1
Dům venkovského stylu
EKOPANELY SERVIS s.r.o.
Užitná plocha: 153 m²
Dispozice: 4+kk / 4+1
Lesníkova roubenka
EKOPANELY SERVIS s.r.o.
Užitná plocha: 260 m²
Dispozice: 5+kk / 5+1
Bennet
KANADSKÉ SRUBY TÁBOR, s.r.o.
Užitná plocha: 177 m²
Dispozice: 5+kk / 5+1
Futura Freestyle - dřevostavba na klíč
Prodesi I Domesi
Užitná plocha: 107.8 m²
Dispozice: 3+kk / 3+1
Dřevostavba roku - archiv
Copyright © 2026 Českobrodská 35, 190 12 Praha 9 - Dolní Počernice Kontakt
