Lucie Němcová | Aktualizováno Úterý, 15. červenec 2025
Lukáš navrhuje i realizuje dřevostavby, navíc v jedné sám bydlel, takže má na kontě již pěknou řádku zkušeností. Dovést nové bydlení k dokonalosti mu tentokrát pomohly také principy z daleké Číny staré tisíce let, které nyní rád využívá i při své práci.
Tento pozemek se nám zprvu zdál úplně nemožný. Upřímně jsem si myslel, že by ho mohl koupit jen blázen. Převýšení pozemku a obrovská jáma uprostřed se ovšem částečně projevily na příznivější ceně, a tak jsme alespoň zapřemýšleli nad možností výstavby.
Postupem času jsme zvažovali všechna pro a proti a nakonec dospěli k řešení: v dolní části parcely jsme vybudovali garáže pro devět aut a vytvořili tak platformu pro samotný dům a zahradu, která nabídla úplně nové možnosti. Z naprosto atypického pozemku, který se zdál být nezastavitelný, jsme tedy vybudovali jeden z nejlepších v okolí.
Ostatní domy mají jen malé zahrady, varianta s garážemi však vytvořila prostor pro zahradu a perfektní soukromí. Navíc umožňuje schovat auta, která by normálně stála podél ulice a ubírala místo například pro zeleň.

obr.: Návrh dřevostavby je dílem majitele Lukáše. Celý proces návrhu trval zhruba čtyři měsíce, než se ustálila výsledná varianta. Foto: Martin Zeman

Foto: Martin Zeman
Poučeni prvním bydlením
Náš druhý dům jsme posunuli dál zejména, co se týče dispozice. První dřevostavba byla navržena s perspektivou „děti někdy v budoucnu”. Po narození první dcery jsme však rychle poznali, že jsme udělali spoustu chyb. To byl základní impulz v cestě za novým domem. V neposlední řadě jsme chtěli také lepší infrastrukturu, zázemí, dostupnost školek a podobně, což nám předchozí lokalita nenabízela.
Velkou roli sehrály principy čínského učení feng šuej. V původním domě se nám špatně spalo. Zkoušeli jsme všechna možná řešení, ale až teprve tyto informace nám pomohly pochopit, proč tomu tak bylo. Nevhodná orientace postele, nešťastně zvolené barvy a různé další chyby jako trámy nad postelí a nepříjemné rohy. Začali jsme tedy tyto zákonitosti studovat a nakonec se rozhodli, že nejjednodušší bude vybudovat svoje bydlení úplně od základů znovu.
Předchozí dřevostavba byla dvoupatrová, tentokrát jsme šli do přízemní. Od narození prvního dítěte jsme využívali ohrádku u schodiště, zóna horního patra byla pouze noční a nebyla využita jinak než ke spánku. V tomto domě jsou všechny prostory vzájemně mnohem více propojeny a využity.
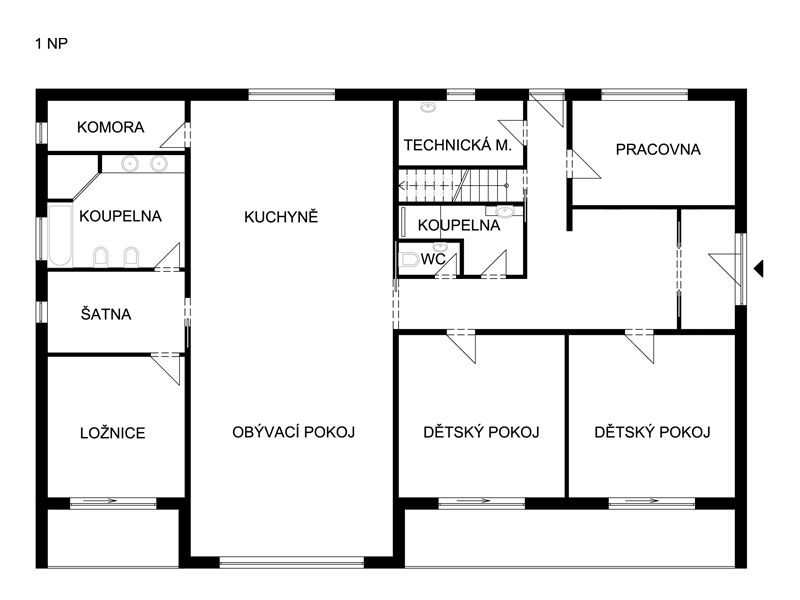
Středobodem obdélníkové dispozice je obývací pokoj s kuchyní, kde žijeme a který je místem rodinného setkávání. Z jedné strany pak přiléhá ložnice s koupelnou a z druhé království našich dcer navazující na boční hlavní vstup. Pro koncept domu byla zásadní orientace na jih a správné posazení ložnice. Naštěstí vše krásně zafungovalo a orientace postelí funguje pro nás oba s ženou na jedničku.

obr.: Díky platformě je dům posazen vysoko a má krásný výhled do krajiny Berounska. Tentokrát majitelé zvolili přízemní variantu dřevostavby. Každý pokoj tak má přímý kontakt se zahradou a okolní přírodou. Foto: Martin Zeman

Foto: Martin Zeman

obr.: Cesta k tomuto místu nebyla přímočará. Radost z výsledku je však obrovská. Řešení se zděnou platformou umožňuje z parcely vytěžit opravdu maximum - výhled, větší užitnou plochu, více parkovacích míst i absolutní soukromí. Foto: Martin Zeman

Dřevostavba roku 2015 - absolutní vítěz
Tato moderní přízemní dřevostavba podle principů feng shui zvítězila v čtenářské anketě Dřevostavba roku 2015 našeho časopisu DŘEVO&stavby a zároveň se stala absolutním vítězem celé soutěže Dřevostavba roku 2015.
Energie musí zůstat uvnitř dřevostavby
Zvolili jsme cestu důkladného zateplení domu – pasivní stěny, zamezení přehřívání dřevostavby pomocí předokenních žaluzií a předsazené střechy, která kryje v létě dětské pokoje a ložnici od přímého svitu. Jelikož máme rádi otevřený prostor na zahradu (kromě zimy), nevyužili jsme systém řízeného větrání – rekuperace - už kvůli vyšším pořizovacím nákladům a jeho návratnosti v řádu několika let (během výstavby nebyla vyhlášena Zelená úsporám).
V první fázi jsme tedy zůstali u elektrokotle s přípravou pro tepelné čerpadlo. Výsledkem přesto zůstává velmi nízká spotřeba energie v zimním období. V letním období během nejteplejších dnů zase teplota nepřesáhne 25 °C.
Dům řídí inteligentní systém LOXONE, který nám kontroluje a řídí teplotu domu společně s CO2. Tento inteligentní systém perfektně zapadá do koncepce užívání našeho domu, protože jedním dotekem na ipadu dokážu například zavřít čtyři předokenní žaluzie, zapnout atmosféru „relax", která se skládá z 11 různě nasvícených světelných okruhů, a v klidu se můžu posadit u televize či knížky. Konečnou atmosféru dotváří krb na biolíh s keramickou vložkou, který v zimě umí v místnosti během chvíle zvednout teplotu až o čtyři stupně.

obr.: Dřevostavba je navržena s ohledem na principy feng šuej, které si nastudoval i sám Lukáš a využívá je ve své praxi navrhování dřevostaveb. Na vlastní kůži si totiž vyzkoušel život v domě, který tyto zákonitosti respektuje a už by neměnil. Foto: Martin Zeman

obr.: Barevnost celého objektu se nese ve střídmých přírodních tónech šedivé, bílé a přírodního dřeva s občasnými akcenty ve formě svěží zelené. Třešničkou je krb na biolíh, který je nejen zdrojem příjemného tepla, ale také efektním designovým doplňkem interiéru. Foto: Martin Zeman
Inteligentní řídící systém
Dům řídí inteligentní systém LOXONE, který nám kontroluje a řídí teplotu domu společně s CO2. Tento inteligentní systém perfektně zapadá do koncepce užívání našeho domu, protože jedním dotekem na iPadu dokážu například zavřít čtyři předokenní žaluzie, zapnout atmosféru „relax“, která se skládá z 11 různě nasvícených světelných okruhů, a v klidu se můžu posadit u televize či knížky. Konečnou atmosféru dotváří krb na biolíh s keramickou vložkou, který v zimě umí v místnosti během chvíle zvednout teplotu až o čtyři stupně.

obr.: V domě je inteligentní systém, pomocí kterého je možné nastavovat vytápění i osvětlení domu. Sofistikovaná soustava LED zdrojů umožňuje využívat různé typy programů s odlišnou barevností a atmosférou. Foto: Martin Zeman

Foto: Martin Zeman
Komentář stavebníka a dodavatele
Po půldruhém roce bydlení jsme s manželkou a dětmi maximálně spokojeni. Nikdy jsme si nemysleli, že ze zdánlivě nejhoršího pozemku dokážeme udělat velkou přednost. Bydlení ve stylu feng šuej nám přirostlo od prvního dne k srdci, a proto si dům velmi užíváme. Tepelná pohoda dřevostavby odpovídá v létě i v zimě přesně našim očekáváním. Úplnou spokojenost zajišťuje vysněný vzhled domu s již hotovou zahradou od zahradních architektů.

Lukáš Černík
LUCERN STAV s.r.o.

obr.: Kuchyni charakterizuje jednoduchost. Hlavní pracovní plochu poskytuje ostrůvek, odkud má kuchař přehled po celém obývacím pokoji a výhled přes zahradu až do daleké krajiny. Nechybí také praktická spíž. Foto: Martin Zeman

Mohlo by vás zajímat...

obr.: Zejména v ložnici si majitelé dali záležet na dodržení všech důležitých principů – orientaci postele na vhodnou světovou stranu, čelo postele u plné stěny bez oken a dveří, uklidňující zemité barvy a další. Foto: Martin Zeman

Foto: Martin Zeman
Komentář redaktora
Místo i celé řešení objektu působí opravdu fantasticky – ničím nerušený svět, oáza klidu s výhledy do malebné krajiny. O přilehlé ulici ani sousedech téměř nevíte. Dům je velmi vzdušný a prosvětlený, v žádném místě neztrácíte kontakt s vnějším prostorem, zahradou a krajinou v dálce. Osvěžující je také dispoziční řešení, které neobsahuje žádné zbytečné chodby a i přes relativně velkou plochu je vše blízko a po ruce. Těší mne vidět, že své místo v navrhování mají také století staré a osvědčené principy, které umožňují žít ve větším souladu s přírodou a které pomáhají vnést více harmonie do života. Takový dům se pak pozná ihned při první návštěvě.

Ing. arch. Lucie Němcová
redaktorka

Foto: Martin Zeman

obr.: Nikde v domě nenajdeme radiátory, teplo je rozvedeno podlahovým teplovodním vytápěním. Pro dobrou vodivost je v převážné většině místností použita dlažba. Zdrojem energie pro vytápění je elektřina, což umožňuje také užívání dalších zdrojů v domě za polovic. Foto: Martin Zeman

Foto: Martin Zeman
Technické parametry
- Velikost pozemku: 900 m2
- Zastavěná plocha: 257 m2
- Užitná plocha: 269 m2
- Spodní stavba: garáž 240 m2 – betonové základy
- Stavební systém: LUCERN eko plus, skeletová konstrukce KVH
- Tepelné izolace: 120 mm Knauf v konstrukci + 40 mm Knauf v instalační předstěně
- Fasáda: polystyren Greywall 160 mm (z důvodu skrytých žaluzií)
- Střecha: dřevěné KVH trámy, vyplněné izolací Knauf 220 mm + nadstřešní polystyren 150 mm
- Střešní krytina: PVC izolace s geotextílií a pohledovými oblázky
- Okna: plastová – izolační trojskla, všechna okna na jižní straně posuvné HS portály
- Podlahová krytina: velkoformátová dlažba (1 x 1 m), dřevěná dubová masivní mozaika
- Vytápění: podlahové topení s kombinací s elektrokotlem
- Skladba stěny směrem dovnitř: Systémová probarvená omítka Weber (včetně penetrace, lepidla, tkaniny), fasádní polystyren Greywall 160 mm – celoplošně lepený, Rigistabil – konstrukční deska, KVH 120 x 60 – skelet konstrukce vyplněný minerální izolací KNAUF, parozábrana PE, zpevňující latě KVH 40 x 60 – slouží jako izolační předstěna, Rigistabil – konstrukční deska, malba/stěrka
- Celková tloušťka stěny: 365 mm
- Hodnota U: 0,125 W/m2K
- Realizace: LUCERN dřevostavby s.r.o., www.lucern.cz


Zaujaly vás principy bydlení podle feng-shui? Zašlete dodavateli dotaz nebo nezávaznou poptávku!
Společnost LUCERN s.r.o. se zaměřuje na moderní individuální výstavbu. Za dobu své bohaté praxe vyvinuli několik typových domů, které splňují požadavky většiny jejich klientů. Klientům nabízí profesionální zpracování studií, které buď vycházejí z typových domů, nebo vytvářejí úplně nové studie na přání klienta. V průběhu několika let postavili více jak 200 moderních domů a stali se leaderem na trhu ve výstavbě dřevostaveb metodou two-by-four.
Zaslat dotaz nebo nezávaznou poptávku
Vaše komentáře (4)
Nejnovější články v kategorii “Návštěvy dřevostaveb”
-
Zrcadlová roubenka na soutoku
Majitel této roubenky – říkejme mu třeba Martin – měl jasný cíl: postavit svým dospělým dětem dům, kam by mohly o víkendech jezdit a být mu tak i s vnoučaty nablízku. A aby to…
-
Dřevěný domov v krajině rozlehlých luk
Tento příběh připomíná dokonalou pohádku o tom, kterak Kateřina a Jiří našli svůj vytoužený klid v podhůří Krkonoš. Jejich pozemek o rozloze dvaceti tisíc metrů čtverečních je…
-
Dávno splněný sen v podobě patrové dřevostavby na míru
Některé plány a nápady potřebují čas, aby mohly uzrát. Hluboko zapustit kořeny a trpělivě čekat na tu správnou dobu. Jako v tomto případě – poprvé totiž Milan na „svou"…
-
Dřevěná vila schoulená v náručí krajiny
Každý dům nevyhnutelně mění krajinu – jakým způsobem, to už záleží na jeho majitelích. Některé stavby přetvářejí okolí podle svého obrazu, jiné se naopak snaží splynout. A…












Po půldruhém roce bydlení jsme s manželkou a dětmi maximálně spokojeni. Nikdy jsme si nemysleli, že ze zdánlivě nejhoršího pozemku dokážeme udělat velkou přednost. Bydlení ve stylu feng šuej nám přirostlo od prvního dne k srdci, a proto si dům velmi užíváme. Tepelná pohoda dřevostavby odpovídá v létě i v zimě přesně našim očekáváním. Úplnou spokojenost zajišťuje vysněný vzhled domu s již hotovou zahradou od zahradních architektů.
Vytvořeno v xart.cz