Dana Jakoubková | Úterý, 23. červen 2020 |
Každý, kdo se rád drží pěkně při zemi, se může životu na hausbótu podivovat. Je tam dost místa? Mají obyvatelé mořskou nemoc? Jaké je to v zimě? Jak dlouho plavidlo vydrží, jak to mají se záchodem a kam jim chodí pošta? Kupodivu odpověď není složitá. Moderní, sofistikované materiály a technologie umožňují stavět na vodě se stejným komfortem, jakým disponuje dům na pevnině, a ještě k tomu dostanete o kapku více do džberu emocionální potřeby napojení na přírodu a vodní svět.
Dřevostavba podle zkušených lodních architektů
Průkopníkem konceptu bydlení na vodě je Holandsko, kde se tak vyrovnávali se záplavami a povodněmi po mnoho staletí. V Anglii zase osadníci obsadili kanály jako městské vodní cesty a dnes se tam běžně prodávají plány ke stavbě plovoucího domu, včetně projektů pro naprostou soběstačnost.
Tento plnohodnotný, plovoucí dům je připoutaný ke břehu řeky Váh na Slovensku. Krásná přírodní scenérie a přitom kousek pěšky do města, to jsou parametry klidného bydlení, kterých se nedostává každému.
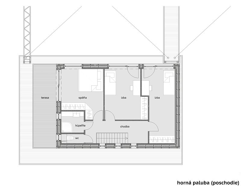
Projekt vznikl spojením představ klienta a znalostí zkušených lodních architektů. Přáním investora bylo, aby se nemusel každý víkend stěhovat z města k vodě. Tím byla dána funkce objektu jako celoročně obyvatelného domu na vodě. Jeho hmotu tvoří dva vzájemně posunuté kvádry, které na jedné straně vytváří terasu a na straně druhé krytí spodní paluby se vstupem.

Základy: Novodobé bezmotorové hausbóty se pramálo liší od domů na pevnině. Obvykle „stojí" na betonové základové desce a ta nerezne. Pokud se musí dům přestěhovat, je k tomu třeba vlečný člun. Foto: MANDL – Living on Water

Prvek kruhu: Pojícím designovým prvkem je tvar lodního okénka, který se odráží ve stropních svítidlech, interiérových dveřích i zrcadlech koupelny. Interiér s nedostatkem denního světla sytě červená barva krásně prozáří. Foto: MANDL – Living on Water

"Bydlení na vodě vyvolává dojem, jako byste byli celý rok na dovolené."

Foto: MANDL – Living on Water
Montovaná, nízkoenergetická a plovoucí dřevostavba
Vzhledem k blízkosti chráněné přírodní lokality bylo nutné minimalizovat dopad stavby a jejího provozu na životní prostředí. Objekt je proto navržený jako nízkoenergetická, montovaná dřevostavba s difuzně otevřenou konstrukcí a odvětranou fasádou.
Jednoduchý tvar domu minimalizuje ztráty tepla, přičemž solární tepelné zisky přes významné prosklení je možno regulovat exteriérovými žaluziemi.
S ohledem na životní prostředí bylo nutné volit i použité materiály, myslet na bezúdržbovost objektu a – jelikož jde o plavidlo – brát ohled i na jejich hmotnost. Základy v tomto případě představuje železobetonový ponton s polystyrenovým jádrem, který disponuje vysokou pevností a stabilitou, je nepotopitelný a bezúdržbový po desítky let.
Elektřina je jako jediná přivedená ze břehu, ale je samozřejmě možné napojit ji na solární i fotovoltaické panely. Vše ostatní, respektive související s provozem domu už běží výhradně „na palubě": Nucené větrání s rekuperací, běh tepelného čerpadla vzduch-voda, čerpání a filtrace vody z řeky na mytí, praní a vaření i biologická čistička odpadních vod.

Foto: MANDL – Living on Water

Prostor: Terasy zvětšují obytný prostor o luxusních 54 metrů čtverečních. Foto: MANDL – Living on Water

Nálada a chuť: S červenou barvou je třeba zacházet opatrně, zvláště ve velkých plochách. Citlivě použitá však může strhnout pohled stejně jako automobil ferrari. Foto: MANDL – Living on Water

obr.: V kuchyni pozvedne chuť a interiér krásně oživí, zvláště v případě, že jí sekundují jen tlumené přírodní odstíny. Foto: MANDL – Living on Water

obr.: Odvaha: Stísněností dům rozhodně netrpí. V prostorném dětském pokoji si může dovolit výrazné barvy i nakombinovat. Foto: MANDL – Living on Water
Komentář projektanta
Bylo něco netypického v požadavku stavebníků?
Tím by se mohlo jevit už samotné přání postavit dům na vodě. Jelikož se touto problematikou zabýváme ve firmě již několik let, byli jsme rádi, že se na nás obrátil osvícený klient. Osvícený zejména z pohledu použitých materiálů a technologií, které před sedmi lety ještě nebyly pro tento typ plavidla použity. V České republice je tomu tak, pokud vím, dosud. Konkrétně jde o použití železobetonových pontonů jako „základovky" pro dům.
Co bylo pro vás návrhovým oříškem?
Vzhledem k tomu, že dům nestojí na pevné zemi, je potřeba počítat s hmotností jednotlivých prvků, jejich těžištěm a správně spočítat stabilitu plovoucího tělesa, aby byl bezpečný. Stejně důležitý je návrh kotvení, aby dům za nepříznivých povětrnostních a hydrologických podmínek neopustil svoji polohu. Právě proto je třeba se obrátit na lodního architekta. Stavební zajímavostí je skutečnost, že při výstavbě přímo na vodě nelze používat vodováhu, protože objekt neustále mění náklon.
Je pro stavbu domu na vodě třeba nějaké speciální povolení?
Plovoucí dům je zatím u nás na Slovensku i v Česku klasifikovaný jako plavidlo. Vztahují se na něj předpisy a povolení pro plovoucí zařízení.
Řeší se kotvení domu jinak než lodi?
Ano, existuje několik možností, jak zajistit domu stabilitu vůči břehu a zároveň mu nechat volnost pohybu v synchronizaci s hladinou. Patrně nejrozšířenější je kombinace mostku a vzpěry s vyvazovacími lany. Sofistikovanějším způsobem je tak zvaná dalba – skupina vzájemně spojených pilot, případně masivní konstrukce. Nejflexibilnější je ukotvení řetězy nebo systémem Seaflex k betonovým blokům na dně řeky.
Jaké dřevo jste použili s ohledem na umístění domu na vodě?
Nosná konstrukce je ze smrkových KVH profilů, střecha Steico, nosný plášť OSB. Na fasádě, palubě a terasách je použita tepelně upravená borovice. Na obklady a terasy používáme také sibiřský smrk
a akát.

Ing. Peter Mandl
projektant lodi

Foto: MANDL – Living on Water
Komentář redaktorky
Bydlet v „domě bez motoru" rozhodně nezní tuctově. Navíc obejdete stavební úřad; projektovou dokumentaci schvaluje Státní plavební správa. Nemusíte kupovat pozemek; na správě povodí či přístavu budete žádat o povolení ke kotvení. Nepotřebujete kolaudaci; ale za určitých parametrů musí dům projít „technickou" kontrolou Státní plavební správy. Vzhledem k tomu, že dům jako plovoucí zařízení je považován za věc movitou, přijdete i o výsadu přispět do státní poklady daní z nemovitosti. To stojí za zvážení.

Dana Jakoubková
redaktorka
Technické parametry
- Typ domu: nízkoenergetický, typ PNED108
- Zastavěná plocha: 131 m2
- Užitná plocha: 99 m2
- Konstrukční systém: dřevěná sloupková konstrukce
- Teplo: suché teplovodní podlahové vytápění, zdroj tepla a chladu – tepelné čerpadlo vzduch/voda + fan coil jednotky, nucené větrání
- Úžitková voda: čerpaná z řeky a filtrovaná přes písek a aktivní uhlí + chlorování
- Odpadní voda: biologická čistička zabudovaná v pontonu
- Součinitel prostupu tepla U stěnou: 0,14 W/m2K
- Projekt: Dipl. Ing. Peter a Jiří Mandlovi, MANDL – Living on Water, s.r.o.,www.mandl-low.sk
- Interiér: Mgr. Sabina Baštrnák
- Realizace: MANDL – Living on Water, s. r. o., www.mandl-low.sk, 2010


Nejnovější články v kategorii “Návštěvy dřevostaveb”
-
Zrcadlová roubenka na soutoku
Majitel této roubenky – říkejme mu třeba Martin – měl jasný cíl: postavit svým dospělým dětem dům, kam by mohly o víkendech jezdit a být mu tak i s vnoučaty nablízku. A aby to…
-
Dřevěný domov v krajině rozlehlých luk
Tento příběh připomíná dokonalou pohádku o tom, kterak Kateřina a Jiří našli svůj vytoužený klid v podhůří Krkonoš. Jejich pozemek o rozloze dvaceti tisíc metrů čtverečních je…
-
Dávno splněný sen v podobě patrové dřevostavby na míru
Některé plány a nápady potřebují čas, aby mohly uzrát. Hluboko zapustit kořeny a trpělivě čekat na tu správnou dobu. Jako v tomto případě – poprvé totiž Milan na „svou"…
-
Dřevěná vila schoulená v náručí krajiny
Každý dům nevyhnutelně mění krajinu – jakým způsobem, to už záleží na jeho majitelích. Některé stavby přetvářejí okolí podle svého obrazu, jiné se naopak snaží splynout. A…












Vytvořeno v xart.cz