Dana Jakoubková | Pátek, 17. červenec 2020 |
Dřevostavba ve tvaru helvétského kříže je v mnohém originální. Nevychází ze žádné typové stavby, ale není ani dílem architekta. Majitel, původním povoláním strojní inženýr, si venkovský domov navrhl sám a pojal ho opravdu velkoryse.
Dům s atriem jako mnohovrstevné sídlo
Můj první dojem z tohoto sídla byl mnohovrstevný – na jednu stranu moderní dřevostavba taktně vnořená do poválečné výstavby malé obce, na straně druhé usazená v zahradě vysoustružené podle katalogových trendů. Ze všech stran exteriéru se zobrazuje smysl pro úhledné linie, až puntičkářská snaha o perfektní vzhled a záviděníhodný pořádek. Z této vizuální pastvy vytrhne oko až veliká prosklená plocha střechy domu.
V první chvíli jsem se domnívala, že je za ní ukryt třeba umělecký ateliér nebo zimní zahrada. Ale nebylo za ní nic. Přesněji řečeno v interiéru je schovaný skoro prázdný prostor sahající od přízemí po třetí nadzemní patro. Jak neobvyklé... Zajímám se, proč vlastně vznikl.



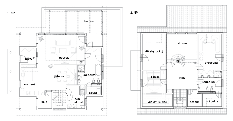
Atrium v domě kvůli tepelným ziskům? Pro získání více světla?
„Vůbec ne," uvádí mě do reality majitel. „Prostě jsem chtěl mít v domě atrium. Bál jsem se ale, že obrovský solární zisk bude dřevostavbu přehřívat, nebo že v zimě bude utíkat teplo z podlahového topení nahoru. Rozhodl jsem proto pro flexibilní strop přízemí, který by se dal volitelně otevřít nebo zavřít. Proto jsou v jeho hypotetické úrovni ty kolejnice ve stěně.
Šířka otevřeného prostoru je čtyřnásobkem rozměru postranních říms, pod kterými budou stropní panely zasunuté. Zatím je nemám instalované, ale až to doladím, vyjedou v případě potřeby po kolejnicích, přízemí tak zaklopí a atrium předělí.
Vedlejším efektem této vychytávky je zvukové oddělení obýváku od zbytku domu v době, kdy budu pořádat třeba večírek a nahoře budou spát děti."

Galerie - Skleněný šnek schodiště spojuje 2. nadzemní patro s podkrovím. Galerijní charakter pater, z nichž je výhled skrze prosklenou střechu, poskytuje proměnlivý obraz okolí domu. Foto: Martin Zeman

Atriová okna nepotřebují žádné žaluzie
Okna atria jsou osazena kaleným, determálním čtyřsklem, které minimalizuje prostup tepla do té míry, že na nich nemusejí být žaluzie. Uvědomuji si, že ačkoliv je venku třicet nad nulou a slunce se do oken opravdu opírá, v obýváku je stejně příjemně jako v kamenné chalupě.
V domě není ani centrální větrání. Když chce majitel interiér proluftovat, stačí dálkově z obýváku otevřít střešní okno v podkroví i dveře v přízemí a přes atrium se dům křížově provětrá. Klimatizační jednotky umístěné v druhém a třetím patře jsou tu pouze jako záloha a k dochlazení se používají jen minimálně, respektive jich není téměř třeba.



Prohlédněte si celý dům ve foto videospotu
Nepodceňujte praktické zádveří
První dojem po vstupu do domu dělá zádveří. U něj se na prostoru často šetří, ale právě tady je ho potřeba.
„Doporučuji každému jej nepodceňovat. Probíhá tu vítání a loučení s návštěvou, oblékání, přezouvání..., kolikrát i celé rodiny najednou. Je třeba, aby zádveří bylo prostorné a maximálně praktické. Náš botník je například ´nakopávací´, stačí do dvířek ťuknout nohou a otevřou se. Navíc se na něm dá sedět. Jak vidíte, nemáme ani žádný věšák, ale vestavěnou šatnu, kde je všechno pěkně schované," dodává majitel.

Funkce - Propojení všech tří úrovní domu do velkorysého prostoru se tváří jako dílo sochaře, jehož charakter určuje zacházení s přirozeným světlem atria. Vše má silnou zklidňující funkci, proměnlivá barevnost a intenzita slunečních paprsků v průběhu dne ovlivňuje atmosféru prostoru, náladu i energii člověka. Sedací kout je jediným prostorovým nábytkem obýváku, který nabízí čistou výšku téměř deset metrů. Sekretář řešený jako vestavěný s dotykovým otvíráním pak zastává ryze nerozptylující funkci. Foto: Martin Zeman
Vestavěné úložné prostory šetří prostor
Interiér je pojatý tak, aby co nejvíce prvků nábytku nevyčnívalo do prostoru. Na první pohled se zdá, že jde o holou stěnu. Úložné skřínky „sekretáře" jsou však ze strany obýváku vestavěné, skryté za otvíravými hliníkovými panely. Ze strany opačné, z jídelny je na míru vestavěné obrovské, pohledové akvárium, které večer převezme i roli osvětlení.
V nitru stěny je schovaný nejen prostor pro instalační rozvody, ale i posuvné dveře, kterými lze stěnu protáhnout a oddělit tak obývák od kuchyně a jídelny.

Oživení - Do stěny dělící obývák od jídelny je integrované velké akvárium, které spolu s aplikovanou přírodninou za obrazovkou oživuje jinak jednoduše pojatý prostor. Foto: Martin Zeman

Umístění krbu
„Krb jsem zamýšlel původně pod schodištěm," pokračuje majitel, „které mělo obtáčet přiznaný tubus komína. Jelikož však byly požadavky na průměr tubusu značné a schodiště by tím pádem nabylo impozantních rozměrů, dali jsme krb do rohu."


Objem prostoru nemá váhu, pokud nevíme čím, jak a zda vůbec ho zaplnit.

Vyladěný interiér
Celým domem se táhne myšlenka „stejné ke stejnému". Materiály skříněk použité v kuchyni jsou proto ze stejného materiálu jako v obýváku. „Když jsme stavěli, byl hliníkový povrch inovativní," vysvětluje Pavel.
„Dnes vím, že to není úplně ideální materiál pro často používané povrchy, protože je hodně háklivý na poškrábání. Zato do decoakrylu, kterým je obložena kuchyňská linka, jsem se zamiloval. Jde o přírodní materiál zalitý do plastové desky a mírou podsvícení si mohu doladit intenzitu efektu. Krásně to přírodninu rozzáří. Zvolil jsem travinu, ale dá se použít i mák, rýže a jiné materiály. Je to takový milý prvek, krásný kontrast ke kovovému vzhledu kuchyně."

Čistota - Kuchyně je poplatná stylu obýváku v čistém, bílém podání i v materiálu skříněk. Aby se v té čistotě hospodyňka neztratila, umístil majitel na stěnu obsahově i barevně zajímavý přírodní prvek, který je aplikován i na stěnu jídelny. Foto: Martin Zeman

Na kuchyni bezprostředně navazuje jídelna a schody do patra. „Jelikož je malinko utopená, zvolil jsem na schodiště průhledné sklo, aby se prostor jídelny trochu odlehčil," vysvětluje Pavel.

V prvním patře se třemi pokoji, halou a samostatnou velkou místností pro boty paní domu je prostorem záměrně plýtváno. Efekt uzemnění mu dává podlaha v dekoru palisandr, různé materiály povrchů a designová topidla, každé ve stylu konkrétní místnosti.


Člověk si zprvu vůbec neuvědomí, že v domě nejsou žádné chodby.

Lehce průmyslově se tváří pracovna, koupelna je hravější a ložnici protepluje vinylová podlaha s pravou mědí a otisknutá i do stěny za postelí. Pod šikminou střechy ložnice je pak ukrytá šatna s přístupem z levé strany pro ni a pravé pro něj. ´Taneční sál´ v podkroví je zatím ve fázi budování. Časem bude přepažen příčkami tak, aby po stranách vznikly dva pokoje.
Když se tak koukám z téměř jedenáctimetrové výšky přes atriové okno ven, musím uznat, že tenhle rodinný dům si budu ještě dlouho pamatovat.



Komentář majitele
Je pro nás důležité, aby vše bylo „na svém místě" a fungovaly vzájemné vazby mezi tím vším i mezi tím a námi.

Pavel s rodinou

Design - Koupelna v přízemí je pojata luxusně: má saunu, sprchu, vanu zapuštěnou do podlahy a jedno obrovské umyvadlo. Výrazným designovým prvkem je obklad vany a dýha v olivové barvě. Tajné dveře ve skříni vedou do balnea s vířivkou, odkud lze vyjít na terasu. Prosklené stěny balnea se zrcadlovým sklem poskytují obyvatelům absolutní soukromí. Dětská koupelna je hravější. Pravá dýha makasar sice časem zežloutla, ale dětem to nevadí. Milují tenhle prostor i s jeho červenými radiátory. Foto: Martin Zeman



Komentář redaktorky
V tomto domě jsem si uvědomila, jak je prostor svébytnou veličinou, jak je nezávislý na tom, co do něj vložíme, a že když do něj nedáme vůbec nic, i tak může působit ohromujícím dojmem.

Dana Jakoubková






Technické parametry
- Typ domu: nízkoenergetický
- Zastavěná plocha: 150 m2
- Užitná plocha: 260 m2
- Konstrukční systém: prefabrikovaný panelový systém Dřestav, difuzně otevřený
- Teplo: topení podlahové vodní
- Součinitel prostupu tepla stěnou: U = 0,15 W/m2K
- Roční náklady na energie: 22 500 Kč
- Autor projektu: Ing. Pavel Janouš
- Realizace: HK-Dřestav s.r.o., www.drestav.cz



Obr.: Důmyslnost - Dům má tvar helvetského kříže; v každém rohu je prostor půdorysně vykousnutý. V jednom koutu je sklad dřeva do krbu, ve druhém část balnea, třetí ukrývá čerpadla a v posledním je část terasy. Foto: Martin Zeman

Chcete si postavit podobnou dřevostavbu jako Pavel? Zašlete dodavateli dotaz nebo nezávaznou poptávku!
Společnost HK DŘESTAV nabízí – individuální přístup, komplexní servis od návrhu dřevostavby až k její výstavbě, kvalita zpracování, pasivní a nízkoenergetické dřevostavby, certifikace výrobku, finanční bezúhonnost. Vizitkou společnosti jsou spokojení uživatelé realizovaných dřevostaveb po celé České republice.
Zaslat dotaz nebo nezávaznou poptávku

Redakčně upraveno pro web
Foto: Martin Zeman
Mohlo by vás zajímat:
Vaše komentáře (0)
Nejnovější články v kategorii “Návštěvy dřevostaveb”
-
Zrcadlová roubenka na soutoku
Majitel této roubenky – říkejme mu třeba Martin – měl jasný cíl: postavit svým dospělým dětem dům, kam by mohly o víkendech jezdit a být mu tak i s vnoučaty nablízku. A aby to…
-
Dřevěný domov v krajině rozlehlých luk
Tento příběh připomíná dokonalou pohádku o tom, kterak Kateřina a Jiří našli svůj vytoužený klid v podhůří Krkonoš. Jejich pozemek o rozloze dvaceti tisíc metrů čtverečních je…
-
Dávno splněný sen v podobě patrové dřevostavby na míru
Některé plány a nápady potřebují čas, aby mohly uzrát. Hluboko zapustit kořeny a trpělivě čekat na tu správnou dobu. Jako v tomto případě – poprvé totiž Milan na „svou"…
-
Dřevěná vila schoulená v náručí krajiny
Každý dům nevyhnutelně mění krajinu – jakým způsobem, to už záleží na jeho majitelích. Některé stavby přetvářejí okolí podle svého obrazu, jiné se naopak snaží splynout. A…













Objem prostoru nemá váhu, pokud nevíme čím, jak a zda vůbec ho zaplnit.
Vytvořeno v xart.cz