Lucie Němcová | Pátek, 21. únor 2020 |
Okna na terasu otevřená dokořán, dovnitř proudí čerstvý vzduch ovoněný zahradou a venku bosky běhají děti. Zdejší i sousedovic, až člověk ztrácí přehled. Nyní úřadují na houpačkách ve vedlejší zahradě, odpoledne je však možná zavolá blízký potok a tolik oblíbené lodičky. Paní domu má z kuchyně přehled o veškerém dění. Jedním okem může sledovat obývací pokoj s terasou a většinu zahrady a druhým příjezdovou cestu a sousední parcelu s dovádějícími dětmi.
Možná to bude znít jako návrat do historie, kdy byl vesnický život protkán jednoduchostí, upřímnými mezilidskými vztahy, vzájemnou pomocí a sdílením a kdy dětské hřiště znamenalo všechny místní louky, lesy i zahrady. Faktem ale je, že příběh je současný. Sen o vlastním bydlení díky bohu nemusí znamenat život ve zdmi obehnané rezidenci na rozparcelovaném poli, ze kterého nám pomáhají uniknout pouze dvě luxusní auta v garáži nebo dovolená u moře.
Z paneláku do dřevostavby na vesnici
„Svoboda a volnost. To jsou hlavní pocity, které z domu mám," začíná naše vyprávění majitelka domu Aneta. „Byli jsme zvyklí být namačkaní v panelovém bytě. Tady jsou děti opravdu celý den venku a mají volnost, stejně jako my. Ovlivnilo to celou atmosféru doma. Je uvolněnější. Velký vliv má také příroda, která je tak blízko. Manžel přijde z práce, vezme děti a jdou na procházku. V mládí žil na Šumavě a říká, že si připadá jako tam. Nebo jako na dovolené. "

obr.: Dům ve svažitém pozemku dokonale zapadá do velké zahrady. Foto: Martin Zeman
Návrat k přirozenosti
Najít místo pro nový domov si také tentokrát vyžádalo svůj čas. „Dva roky trvalo hledání. Když jsme přijeli sem, zula jsem si boty, hodinu chodila po louce a věděla, že to je ono. Prostě jsem to cítila. Stejně tak manžel. Zvažovali jsme satelit, ale tam ráno všichni sednou do auta a odjedou. Mají mezi sebou vysoké zdi a neznají se.
Tady je to opravdu vesnický život a fungující komunita. Všude v okolí je spousta dětí, takže tady ty naše mají přátele. Chodí spolu pěšky do školy. Je to jako za starých časů, když jsme byli malí."
Typicky městský život v Praze vystřídal ten poklidný vesnický. „Všechno bylo blízko a po ruce. Trošku jsme se obávali, jak si zvykneme na jiný životní styl. Ale jsme tu nejspokojenější, co jsme kdy byli. Klid, výtečný spánek díky absolutní tmě a tichu, hodně času venku... Po práci tu velmi dobře načerpáme energii. Navíc Prahu máme stále relativně po ruce a funguje zde velmi dobře i veřejná doprava."

obr.: Jednou z hlavních myšlenek při stavbě domu byla i představa o ideálním parkování u domu. Foto: Martin Zeman
Příběh dřevostavby
Po zkušenostech s bydlením ve zděném i panelovém domě se Aneta s Petrem rozhodli pro život v dřevostavbě. „Jsme velmi překvapeni, jak dřevostavba funguje. Nikdo z nás s ní neměl předchozí zkušenost. Já dříve bydlela ve zděném domě a byla mi neustále zima. Muselo se ve velké míře topit. V panelovém bytě zase bývalo v létě horko."
Rozhodování mělo rychlý spád. „Nejlepší kamarád mého manžela Petra je vedoucí stavby v jedné dodavatelské firmě realizující dřevostavby, takže jsme měli o konstrukci i dodavateli celkem jasno".
V domě není nouze o novodobé vymoženosti. Je vybaven podlahovým topením, aktivním větráním, zabezpečením, centrální jednotkou pro ovládání topení a venkovních žaluzií.
Nemusíme dodávat, že je to pole zejména pána domu Petra. „O technickou stránku domu se vůbec nestarám, to je parketa mého muže. Pro mě je důležitý výsledek, tedy že se nemusím vůbec o nic starat, vše je přesně nastavené a je zde během všech ročních období stále příjemně," pochvaluje si Aneta.

obr.: Tmavší dřevěná podlaha světlý interiér podtrhuje a uzemňuje. Foto: Martin Zeman

obr.: Kuchyně je dokonale propojena s venkovní terasou. Foto: Martin Zeman
Jak se bydlení liší od předchozího?
„Z hlediska údržby nevnímám zásadní změnu, odlišnosti se odehrávají spíš v pocitové rovině. Samozřejmě dům nabízí úplně jiné možnosti. Můžeme si poskytnout dostatek prostoru a nerušit se při různých činnostech. Je snazší vzájemně respektovat rozdílné potřeby. Hodně oceňuji otevřenou kuchyni, kde při práci neztrácím kontakt s rodinou ani s venkovním prostorem.
Domysleli jsme ji opravdu do detailu tak, aby nám seděla. Největším pokladem je členitá komora pod schodištěm." Nejoblíbenějším místem Anety je zahrada, stejně jako Petra, u něj je však na prvním místě ještě jiné království – dílna. Tu by si znovu navrhl ještě větší. Každý si tu zkrátka přijde na své.

obr.: Kuchyně: Je otevřená a prostorná se spoustou důmyslných detailů a úložných prostor. Přesně tak, jak si majitelka přála. Foto: Martin Zeman

Komora: Tajemná komnata přístupná nenápadnými skříňovými dveřmi v kuchyňské lince. Je zde ukryta prostorná členěná místnost pro uskladnění nejrůznějších potravin. V zimě dokonce vychlazená studeným vzduchem zvenčí, který je sem záměrně přiváděn ze severní strany domu Foto: Martin Zeman

obr.: Vše má svůj řád a pořádek. Foto: Martin Zeman

obr.: Dílna: Místnost, kam mají ženy vstup zakázán. Radost pohledět, co myslíte? Foto: Martin Zeman
Atypický pozemek si žádá atypický dům
Původně Petr s Anetou pátrali po katalogovém domě, ovšem vybrat vhodný na jejich svažitý pozemek se nepodařilo. „Nakonec jsme nakreslili základ podle našich představ a oslovili architektku. V základu rozkreslený projekt ještě poté prošel rukama dalšího architekta s delší zkušeností a putoval do firmy k finálnímu rozkreslení pro realizaci.
Jedním ze specifik našeho domu je velká půda. Zvětšovali jsme sklon střechy, aby místnosti druhého podlaží byly plnohodnotné. Proto je štít vysoký a půda dost velká. Slouží jako další úložný prostor."

obr.: Terén: Svažitý pozemek vyžadoval individuální návrh. Žádný z typových domů nevyhověl. Svah je nakonec využit naplno, je v něm vybudován praktický sklípek se vstupem ze zahrady. Foto: Martin Zeman
"Roční náklady na dům se vším všudy se pohybují přibližně kolem 60 tisíc korun. K tomu navíc hypotéka a pojištění."

obr.: Střecha: Sklon střechy a výška hřebene jsou upraveny tak, aby místnosti v horním patře byly plnohodnotné, tedy bez zkosených stěn. Foto: Martin Zeman
Doporučení pro budoucí stavebníky
Asi největší odměnou je zahrada a terasa. „Pro nás nové a nesmírně příjemné součásti bydlení." A jaká jsou doporučení pro budoucí stavebníky? „Vše si dopředu dobře promyslete. Dispozici domu, parkování, úložné prostory, rozmístění nábytku, zásuvek a vypínačů. A také si veďte veškerou evidenci komunikace s dodavateli, včetně smluv.

obr.: Venkovní žaluzie: Nechybí venkovní stínění, které spolu se střechou terasy zajišťuje příjemné teploty v letních obdobích. Foto: Martin Zeman

obr.: Terasa: Terasa je díky posazení domu v horní části pozemku místem, odkud má člověk přehled po celé zahradě a současně výhled do krajiny. Foto: Martin Zeman
Komentář dodavatele
Realizace této zakázky nás přesvědčila o tom, že společnou diskusí a podněty s investorem jsme dokázali splnit jeho představy. I přes poměrně složitý přístup k pozemku jsme dokázali postavit jedinečný a originální dům.

Ing. Petr Marhan
STAVEX KUTNÁ HORA s.r.o.

obr.: Ložnice je jednou z mnoha místností, ve které mohou majitelé domu odpočívat. Foto: Martin Zeman

obr.: Uvnitř domu najdeme čistou lehkou bílou protkanou žlutými jasnými akcenty. Foto: Martin Zeman

Barvy: Žlutá se táhne domem jako pomyslná "červená nit". Najdeme ji nejen na nábytku a doplňcích, ale třeba i v koupelně nebo v dílně. Foto: Martin Zeman
Pohled redaktorky
Na první pohled celkem tradiční dům se sedlovou střechou, ale svými detaily a atmosférou mě nadchnul. Posazení stavby v horní části pozemku dodává terase neuvěřitelnou vzdušnost a člověku nadhled. Kvality, které terasa na terénu nemá. Samozřejmě zase musíte na zahradu po schodech. Snad nejvíc mě uvnitř bavily vychytané detaily kuchyně a spižírna – o mém nadšení, když mi majitelka Aneta ukázala „tajný" vstup, by mohl fotograf vyprávět. A ta dílna! Třešnička na dortu.

Ing. arch. Lucie Němcová
redaktorka


Technické parametry
- Typ domu: nízkoenergetický
- Zastavěná plocha: 82,4 m2
- Užitná plocha: 155 m2
- Konstrukční systém: panelový, prefabrikovaný, difuzně uzavřený
- Teplo a větrání: podlahové elektrické vytápění, nucené přetlakové větrání
- Součinitel prostupu tepla stěnou: 0,12 W/m2K
- Projekt: Stapros s.r.o.
- Realizace: STAVEX KUTNÁ HORA s.r.o., 2016, www.stavex.cz

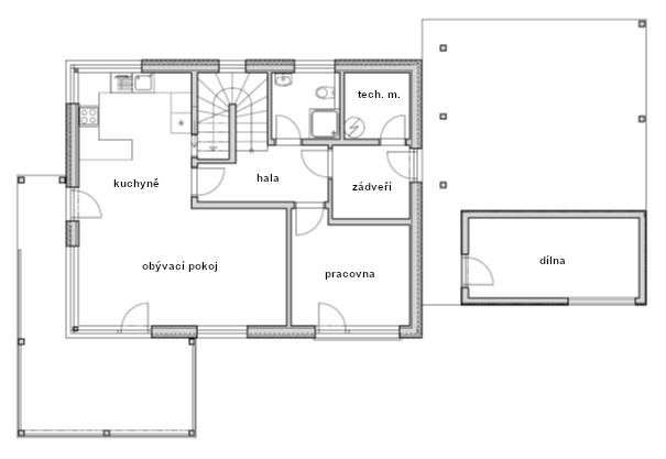
obr.: Půdorys 1. NP

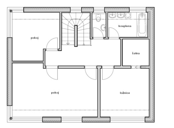
obr.: Půdorys 2. NP

Máte svažitý pozemek a chtěli byste na něm postavit dům? Zašlete dodavateli dotaz nebo nezávaznou poptávku!
Společnost STAVEX KUTNÁ HORA se zabývá výstavbou energeticky úsporných a nízkoenergetických rodinných domů. Je držitelem zákonné certifikace prostřednictvím Výzkumného a vývojového ústavu dřevařského v Praze ve spolupráci s firmami Rigips a Inthermo. Firma je členem Asociace dodavatelů montovaných domů a držitelem Dokumentu národní kvality a rovněž držitelem certifikátu zn. Kvalitní firma - ověřeno zákazníky. Společnost poskytuje záruku 30 let na konstrukční systém.
Zaslat dotaz nebo nezávaznou poptávku

obr.: Řez stěnou
Foto: Martin Zeman
Vaše komentáře (1)Nejnovější články v kategorii “Návštěvy dřevostaveb”
-
Zrcadlová roubenka na soutoku
Majitel této roubenky – říkejme mu třeba Martin – měl jasný cíl: postavit svým dospělým dětem dům, kam by mohly o víkendech jezdit a být mu tak i s vnoučaty nablízku. A aby to…
-
Dřevěný domov v krajině rozlehlých luk
Tento příběh připomíná dokonalou pohádku o tom, kterak Kateřina a Jiří našli svůj vytoužený klid v podhůří Krkonoš. Jejich pozemek o rozloze dvaceti tisíc metrů čtverečních je…
-
Dávno splněný sen v podobě patrové dřevostavby na míru
Některé plány a nápady potřebují čas, aby mohly uzrát. Hluboko zapustit kořeny a trpělivě čekat na tu správnou dobu. Jako v tomto případě – poprvé totiž Milan na „svou"…
-
Dřevěná vila schoulená v náručí krajiny
Každý dům nevyhnutelně mění krajinu – jakým způsobem, to už záleží na jeho majitelích. Některé stavby přetvářejí okolí podle svého obrazu, jiné se naopak snaží splynout. A…












Vytvořeno v xart.cz