Lucie Němcová | Středa, 25. září 2019 |
Dřevostavba "Chata pod třešní", jak tento malý dům nazvali architekti, je výsledkem touhy vrátit se do místa dětství, do klidu a náruče přírody – do srdce České Kanady. Je místem, kde lze nalézt čas ke spočinutí a k tvořivé práci, a také důkazem, že i malé věci se dají dělat s velkou péčí a mohou se odvděčit o to větší službou.
Jako malý kluk jsem jezdil do České Kanady na chalupu s dědou a babičkou. Posléze ji prodali, ale mě to sem táhlo zpět. A tak jsem zde po letech koupil pozemek a postavil na něm svépomocí malý domek severského stylu. Později jsem přikoupil i druhou parcelu vedle a přemýšlel, co zde udělám. Až postupem času dozrálo rozhodnutí postavit zde plnohodnotný dům.
Dřevostavba inspirovaná severem
Měl jsem poměrně jasnou představu o dispozici, ale potřeboval jsem, aby nějaký odborník vtiskl dřevostavbě konkrétní podobu a připravil projekt. Oslovil jsem architekty, kteří mě svým portfoliem zaujali, a na základě našeho dialogu vznikl koncept této celoročně obyvatelné „chaty". Jejich nápadem je také onen typický zaoblený detail fasády, inspirovaný jednou norskou pozorovatelnou sobů. Když mi návrh poprvé ukázali, trošku jsem se lekl. Zdálo se mi to hodně neobvyklé. Ale zvykl jsem si a dnes se mi tento charakteristický rys líbí.

Foto: Michal Hurych
Přirozená a funkční krása dřevostavby
Preferuji minimalismus, funkční design a přírodní materiály. Neholduji rustikálním věcem. Dřevostavba je zařízena nábytkem velmi úsporně a částečně na míru. Nejsou zde žádná lamina nebo plasty, převažuje zejména dřevo. V konstrukci je použita také ekologická konopná izolace.

Hodnota stromu: Neodmyslitelná třešeň v bezprostřední blízkosti domu spoluutváří atmosféru a poetiku místa. Foto: Michal Hurych
Velikost dřevostavby adekvátní účelu
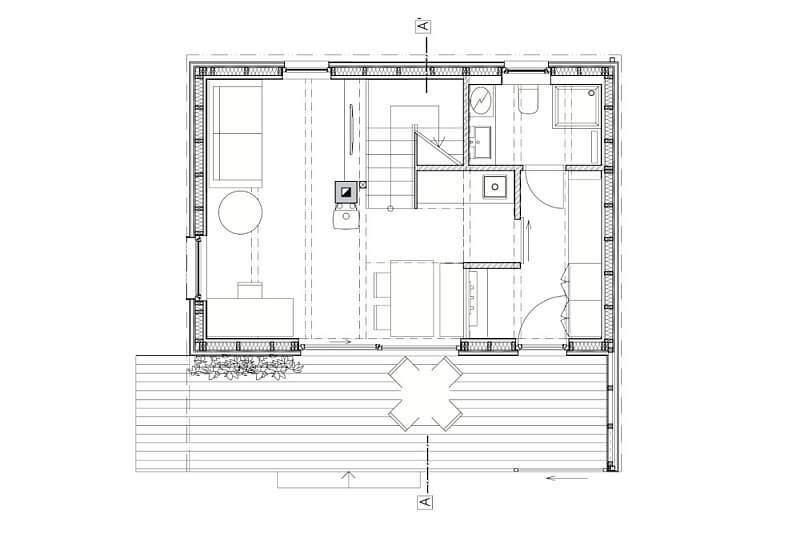
Dispozice domu 3+kk s 60 metry čtverečními je dostatečná pro dva a pro jednoho naprosto komfortní. Spodní patro dřevostavby tvoří velký obytný prostor s kuchyní, obývákem a koupelnou, v patře pak najdeme dva pokoje. Senzační je terasa – moje nejoblíbenější místo v domě. V létě přesah krásně stíní, v zimě se naopak paprsky dostávají hluboko do interiéru, protože slunce je nízko a třešeň před domem je bez listí.

Terasa: Útulná a dobře odstíněná terasa vytváří pohodlný přechodový prostor mezi exteriérem a interiérem. Foto: Michal Hurych
Za tři dny hrubá stavba, za tři měsíce celý dům
Dřevostavba je založena na betonové desce, která nemusela mít díky nižší hmotnosti domu tak velkou tloušťku. Systém obvodových stěn je difuzně otevřený. Veškeré stěny byly na pozemek dopraveny ve formě panelů a smontovány na místě během tří dnů. Pak nastoupili pokrývači, udělali střechu a nastala fáze dokončovacích prací. V březnu se začalo a v červenci jsem bydlel.

Foto: Michal Hurych
Tepelný komfort dřevostavby
Dřevostavba má daleko větší tepelnou setrvačnost než první postavený domek, vedle na pozemku. Když v zimě zatopím, z jednoho polínka mám teplo ještě ráno. V zimě dřevostavbu pasivně vyhřívá také slunce a kamna doplňují pro případ potřeby přímotopy. Není to ovšem tak příjemné teplo, jako z kamen, a je to také provozně dražší. Velký vliv na tepelnou pohodu mají také trojskla v oknech. Perfektně izolují.

Dřevo v interiéru: Podlahová prkna ze severské borovice jsou ošetřena tvrdým voskovým olejem. Když tento druh dřeva stárne, barví se do červena, zatímco smrk spíše do žluta. Smrkové dřevo je použito na schodech, dveřích, trámech a stropech. Foto: Michal Hurych

Obývací prostor: Přízemí snoubí všechny potřebné funkce: kuchyni, jídelní kout, pracovní kout a relaxační zónu. Foto: Michal Hurych
Pro někoho levná, pro někoho drahá dřevostavba
Finančně se mi podařilo vejít se do počáteční rámcové představy. Náklady byly kolem 1,7 milionu korun. I když někteří domorodci namítali, že je to hodně, s výsledkem jsem spokojený. V domě jsou hodnotné přírodní materiály, HS portál, celkově stavbu vnímám jako takový střední standard, a to se prostě na ceně odráží.

Obrazy: Dřevostavbu zdobí autorské fotografie majitele, které zachycují Českou Kanadu. Foto: Michal Hurych

Foto: Michal Hurych
"Největší výzvou bylo najít čas a věnovat se stavbě. Zajištění subdodavatelů už bylo v mé režii a nebylo jednoduché koordinovat práci a hladký průběh realizace. Zpětně bych řemeslníky ještě víc hlídal."

Schodiště: Jako výrobní materiál posloužily netradičně smrkové biodesky. S tímto řešením je majitel velmi spokojen, i když musel sáhnout hlouběji do kapsy, než by to bylo v případě obyčejné smrkové spárovky. Foto: Michal Hurych
Komentář architektů
Proč chata pod třešní? Dům jsme umístili na pozemek s ohledem na okolní stavby a krásnou třešeň, která je důležitým prvkem celé kompozice. Třešeň rámuje výhled z terasy na náves, na jaře krásně kvete, v létě stíní a na podzim pokryje zahradu kobercem listí. Co je na domě jedinečné? Určitě krytá vstupní terasa, která dává domu vlídnou tvář a výborně propojuje vnitřní prostor domu se zahradou. Osvědčilo se také otevření stropu nad jídelním stolem nahoru až do prostoru krovu - střešní okno vysoko nad stolem přináší do interiéru krásné světlo.

Foto: Michal Hurych

Foto: Michal Hurych
"Člověk zde má veškerý komfort a může dům obývat celoročně. Jednou se sem odstěhuji natrvalo."

Koupelna: Jednoduchost a materiálová čistota vládne i minimalistické koupelně. Foto: Michal Hurych

Foto: Michal Hurych
Technické parametry
- Typ domu: nízkoenergetický
- Zastavěná plocha: 62 m2 včetně přesahu střechy a terasy
- Užitná plocha: 60,8 m2
- Konstrukční systém: dřevostavba, sloupky 60 × 140 mm
- Teplo a větrání: elektrické přímotopy, doplňkově krbová kamna; větrání přirozené
- Součinitel prostupu tepla stěnou: U = 0,176 W/m2K
- Projekt: majo architekti – Ing. arch. Martin Poláček, Ing. arch. Štěpán Jablonský, 2016


Nejnovější články v kategorii “Návštěvy dřevostaveb”
-
Zrcadlová roubenka na soutoku
Majitel této roubenky – říkejme mu třeba Martin – měl jasný cíl: postavit svým dospělým dětem dům, kam by mohly o víkendech jezdit a být mu tak i s vnoučaty nablízku. A aby to…
-
Dřevěný domov v krajině rozlehlých luk
Tento příběh připomíná dokonalou pohádku o tom, kterak Kateřina a Jiří našli svůj vytoužený klid v podhůří Krkonoš. Jejich pozemek o rozloze dvaceti tisíc metrů čtverečních je…
-
Dávno splněný sen v podobě patrové dřevostavby na míru
Některé plány a nápady potřebují čas, aby mohly uzrát. Hluboko zapustit kořeny a trpělivě čekat na tu správnou dobu. Jako v tomto případě – poprvé totiž Milan na „svou"…
-
Dřevěná vila schoulená v náručí krajiny
Každý dům nevyhnutelně mění krajinu – jakým způsobem, to už záleží na jeho majitelích. Některé stavby přetvářejí okolí podle svého obrazu, jiné se naopak snaží splynout. A…












Vytvořeno v xart.cz