Dana Jakoubková | Středa, 28. červenec 2021 |
Uvyklá standardní výstavbě jsem v první chvíli měla pocit, že musím ještě nějakou dobu zrát, než tenhle dům dokážu pobrat. Byla jsem zaskočena, ohromena a přibrzděna. Jeho dimenze byla obrovská, a já se v duchu ptala proč, když je vlastně docela prázdný. Jak ale začal protékat časem, prostor se změnil. Byl jako mezera mezi slovy, řádky a odstavci, které právě čtete. Byl i volným místem po stranách čtení dále. Jakmile jsem si to uvědomila, nebylo těžké přijmout fakt, že zhruba osmdesát procent domu je vyplněno „prázdnem". Důležitým prázdnem. Protože jinak by úžasný obsah domu nebyl dobře čitelný.
Je to taková rodinná katedrála
Z architektonického i stavebně-technického hlediska jde o velice sofistikovanou stavbu. Už jenom „zakopat" víc než polovinu domu pod zem není jen o šikovném bagristovi. Když totiž přijedete k domu shora, vidíte jen štíty z dřevěných latí vystupující z trávy mezi vzrostlými stromy.
O další stupeň níž doslova zkoprníte při pohledu na trámy dřevěného skeletu, silné čtyřiadvacet centimetrů navázané bez jediného viditelného spoje. A když pak sestoupíte až na zahradu, pochopíte, jak forma a styl všech tří svazků budovy posilují pocit pokory tváří v tvář přirozené povaze okolní krajiny.
Když jste uvnitř, těžko se zbavíte dojmu, že je to taková rodinná katedrála. Ale jak jsem zmínila v úvodu, je to právě volný prostor, který poskytuje minimalistickému interiérovému designu punc luxusu, aniž by se tvářil honosně. Pro Tomáše, majitele domu, je to domov tak akorát. A o jeho genezi se mnou hovořil stejně obyčejně jako Karel Čapek o zahrádkaření.

Koncept: Rodinná usedlost je z větší poloviny tvořena železobetonovým monolitem zapuštěným pod zem, s pochozí vegetační střechou, a v druhé části doplněna těžkým dřevěným skeletem otevřeným do krovu. Prosklené čelní stěny chaletů i obytných místností mezi nimi jsou orientovány na jihovýchod a nabízejí jedinečný výhled do sadu a krajiny. Štítové laťování pak poskytuje přirozené mimikry pro pohledy zvenčí a téměř srůstá s šindelovou střechou a opláštěním domu. Foto: Vladimír Novotný, KIVA

Foto: Vladimír Novotný, KIVA
"U domu, který je mnohem větší než český průměr, je snadné ztratit ze zřetele kontinuitu. Zde je však patrné důsledné propojení stavby s bezprostředním i vzdálenějším okolím a v úzké vazbě na cyklus přírodních jevů."

Zahrada: K obývacímu chaletu přiléhá jihozápadně orientovaná terasa s komfortní posezením pod pergolou, sklípkem skrytým ve svahu a venkovním bazénem. Dům, terasa i nádvoří srůstají se svahem křídly opěrných zídek vybíhajících po vrstevnici. K domu přiléhá kultivovaná zahrada se vzrostlými stromy, nicméně hlavní důraz i úsilí majitele domu je směrováno do obnoveného ovocného sadu. Foto: Vladimír Novotný, KIVA
Slovo majitele dřevostavby
Po čtyřiceti letech v Praze a s vědomím, jak funguje společnost, jsem potřeboval učinit pokus svůj život vylepšit. Moje představa o novém domově neměla od počátku zřetelné kontury, ale přesně jsem věděl, jakými pocity by měly být vyplněny.
Nejvíce ve mně rezonovala samota nebo polosamota na větším pozemku, obklopená přírodou. Hledání bylo nekonečné, ale výsledek stál za to. Stará chata na stavebním pozemku mimo obec, kde historicky stávala sušárna ovoce, byla dobrým začátkem pro stavbu v chráněné krajinné oblasti.
Dům jsem si pak představoval ve stylu někde mezi alpským chaletem a českou venkovskou usedlostí, bytelná přiznaná konstrukce v kombinaci beton – dřevo, téměř chrámové proporce s otevřeným krovem a pro krajinu stravitelný moderní vzhled.
Asi tušíte, že mojí idealistickou odvahu poslalo k šípku hodně architektů. Až na Pavla Lazarova, kterému přišlo zábavné pokusit se o „nemožné". A já byl připraven si tohle velké sousto vzít na hrb bez generálního dodavatele stavby.
Byl to můj první dům a chtěl jsem si všechno řídit sám. Včetně rekultivace jedné skládky obrovským množstvím odbagrované zeminy a využití 50 tun odpadového materiálu z výrobny kamenné dlažby, ze kterého jsou vystavěny opěrné zdi a zídky v zahradě a obloženo těleso krbu. Po roce výstavby, kdy jsem téměř nežil, a dvou letech bydlení vím jistě, že je to i dům poslední.
A aby toho nebylo málo, ještě během výstavby jsem se zakoukal do čtyřhektarového, zpustošeného sadu ve svahu pod staveništěm, na který několik desítek let nikdo nesáhl. Původně to byla Fürstenberská třešňovka. Když jsem ji přikoupil, nebylo vidět skrz a už vůbec ne na konec. Dnes máme za obrovské pomoci mnoha bezvadných lidí zrevitalizováno, vysázeno více než dvě stovky ovocných stromů a ze sadaření se pro mě stala vášeň a fajn koníček.
Je to i takové poděkování tomuto místu, že mě nechalo obtisknout do něj kus sebe, splátka přírodě a krajině za to, že mě přijaly a umožnily mi zde najít nový domov. Splátka křivoklátským ochranářům za to, že mě nad sadem nechali postavit dům. Splátka sousedům, turistům a vůbec všem kolemjdoucím, kteří si mohou natrhat ovoce, za to, že jsou vlídní, srdeční a vděční za obnovu tohoto nádhernému místa.

Tomáš
majitel domu

První chalet: Tvoří jej zapuštěný vstup, zádveří se šatnou a přístup do privátní části domu. Jeho součástí je ložnice majitele se šatnou a koupelnou v jednom otevřeném prostoru, vše oddělené pouze příčkami bez stropů. Následuje hala se světlíkem a průhledem do prosklené tělocvičny. Z haly na levou stranu je přístup do pracovny, dětského pokoje a pokoje hostů, vpravo pak ke druhé koupelně a technickému zázemí. Foto: Vladimír Novotný, KIVA

Druhý chalet: Představuje srdce domu a vyvrcholení prostorové kompozice. Tvoří jej jídelna s kuchyní a barem, obývací kout s kamenným krbem na pozadí a vyvýšená intimní odpočívárna pod krovem, k níž vede schodiště skryté za tělesem krbu. Veškerý mobiliář a interiérové vybavení domu bylo vyrobeno na míru podle návrhu architekta. Dominujícími materiály v interiéru jsou dřevo, kámen a betonová stěrka. Foto: Vladimír Novotný, KIVA

Masiv: Odstíny šedé barvy prosakují do interiéru v kontrastu s dřevěnými obklady i přiznanou konstrukcí a vytvářejí vzájemně propojené jádro pobytových místností. Foto: Vladimír Novotný, KIVA

Symbolický kontext: Prostorové proudění směřuje k impozantnímu prosklení orientovanému k různým pohledům do sadu a údolí. Díky němu se interiér cítí zajedno s přírodou a je zalit přirozeným světlem. Vizuálně vlivné masivní překlady zdůrazňují monumentalitu konstrukce a současně rafinovaně „přerušují" značnou vertikalitu prostoru. Foto: Vladimír Novotný, KIVA
Otázky pro architekta
Když vám Tomáš přednesl svoji představu "rodinné katedrály", jaká byla vaše první myšlenka?
Napadlo mě, že návrh musí být velkorysý. Ale víme, že nakonec musí být dům i útulný. Zadání bylo velmi pečlivě zpracováno, a proto jsme měli koncept na čem postavit.
Bylo třeba Tomášovy představy v nějakém směru "obrousit", nebo bylo všechno smysluplné, logické, realizovatelné?
Pro mě se stala legendární hláška: roubenka kombinovaná s těžkým monolitem. Na začátku jsem s tím trochu zápasil. Později jsme koncepci nepatrně změnili hlavně proto, aby na sebe stavby dobře navazovaly. Musím říct, že se to povedlo jak architektonicky, tak projektově.
V jaké oblasti panovala mezi vámi největší shoda – vizuální podoba domu, dispozice, materiálové řešení, a co bylo třeba déle ladit?
Celkový vizuál domu jsem Tomášovi představil na první schůzce, byt' jsem ještě moc netušil, zda to bude fungovat. Ve studii jsme prověřili dispoziční řešení i materiály domu. Tady jsme našli shodu celkem rychle a je potřeba říct, že se Tomáš ke všem bodům stavěl promptně a věci se sunuly správným směrem.
Co bylo v návrhu domu nejsložitější?
Upřímně ani nevím, poněvadž šlo vše výborně během projektování i samotné stavby, což je dneska vzácnost. Nejsložitější bývá po architektonické a technické stránce překlopit koncept, který funguje výborně, do konkrétní podoby domu osazeného v terénu. Na tom zpravidla strávíme nejvíce času.
V čem vás limitovaly regulativy CHKO?
Při prvním konceptu nebyly limity žádné, poněvadž jsem si je přečetl až posléze. Asi největším zádrhelem bylo natočení obou chaletů kolmo k vrstevnici, což není zcela v souladu. Současně prosklené štíty, velký „high light" všech klientů, jsme museli na začátku velmi prosazovat. Nakonec se podařilo vymyslet prvek, který je z pohledu CHKO v pořádku. Její komise byla při osobní prezentaci z projektu nadšena.

Ing. arch. Pavel Lazarov
Fandament Architects

Výhledy: Plně prosklené stěny nabízejí skvělý způsob, jak vizuálně „uniknout" konceptu zdí a hranic, a poskytují dokonalý výhled s potenciálem pro iluzi nekonečného prostoru. Foto: Vladimír Novotný, KIVA

Otevřený prostor je sám o sobě designovým prvkem. Foto: Vladimír Novotný, KIVA
Komentář zástupce CHKO
Jak na vás zapůsobil projekt tohoto velkorysého domu?
Při jakékoliv stavbě, která svým charakterem, rozsahem a zasazením do krajiny vybočuje z běžné venkovské zástavby, zbystříme a přistupujeme k záměru s předběžnou opatrností. Tomáš přišel nejprve s vizí odstranění stávající chaty a výstavbou zcela nového domu, ovšem v místě mimořádně citlivém stylu z hlediska krajinného rázu.
Poskytli jsme mu tedy obecné limity pro výstavbu v CHKO Křivoklátsko, které nová stavba bude muset splňovat, a doporučili nejprve zpracovat studii domu včetně dálkových pohledů a zasazení novostavby do terénu, abychom předešli možnému nedorozumění a zbytečně vynaloženým nákladům na projekt, který by nemusel náš úřad schválit.
Přestože nás předložená studie svým řešení a splněním podmínek výstavby mile překvapila, velkorysost záměru v daném místě vzbudila určité obavy. Proto jsme studii projednali v našem poradním orgánu – architektonicko-urbanistické komisi, kde byla s drobnými doporučeními odsouhlasena. Schválení finálního projektu bylo následně formalitou.
Když jste pak viděl hotový dům, naplnil očekávání?
Při realizaci stavby se na naši adresu snesla řada stížností, co že jsme to v CHKO povolili za příšernou stavu. Výstavba trvala naštěstí velmi krátce, dům byl rychle dokončen a emoce opadly. Během dvou let splynul dům s terénem tak, že pokud o něm z dálkových pohledů nevíte, ani ho nezpozorujete.
Souběžně s výstavbou majitel obnovil starý zanedbaný sad pod domem, a to se také počítá. Zblízka se potom jedná o velmi vydařené architektonické dílo, které respektuje limity pro výstavbu v CHKO, je moderní, neruší krajinný ráz a přitom splňuje vysoké požadavky majitele na komfortní bydlení. My jsme si na této stavbě prakticky ověřili, že i zdánlivě velkorysé projekty lze do krajiny zakomponovat s citem a bez rušivého vlivu.
Doporučil byste ho tedy jako dobrý příklad souhry stavebníka, architekta a CHKO?
Agentura ochrany přírody a krajiny ČR (AOPK ČR) na základě partnerství s Českou komorou architektů udílí v rámci soutěže Česká cena za architekturu každoročně vlastní mimořádnou cenu za vhodné zakomponování realizovaného záměru do krajiny.
Pro letošní rok jsme za Křivoklátsko nominovali a doporučili Architektonické komisi AOPK ČR k přihlášení právě tento dům. Moc bych si přál, aby návrh uspěl, protože se jedná o jednu z nejlepších staveb na Křivoklátsku za posledních třicet let.

RNDr. Petr Hůla
Správa CHKO Křivoklátsko

Pozemek: Odloučená samota na vrcholu kopce, obklopená loukami a lesem poskytla majiteli výjimečný pozemek uprostřed Chráněné krajinné oblasti Křivoklátsko a naprostý klid bez sousedů a jakýchkoliv rušivých elementů, přesto v dojezdové vzdálenosti 35 minut z pražského Smíchova. Foto: Vladimír Novotný, KIVA

Tento dům soutěží v anketě Dřevostavba roku 2021
Pomozte nám zvolit nejhezčí dřevostavby roku! Tato dechberoucí dřevostavba se uchází o váš hlas v anketě Dřevostavba roku pod názvem "Prostor a cit". Hlasujte a získejte atraktivní ceny...
Hlasovat v anketě
Technické parametry
- Typ domu: nízkoenergetický
- Zastavěná plocha: 557 m2
- Užitná plocha: 447 m2
- Konstrukční systém: kombinovaný – zdivo, železobetonový monolit, těžký dřevěný skelet
- Zdroj energie / teplo: elektrické podlahového vytápění HeatFlow, doplňkově krbová vložka na dřevo, příprava na fotovoltaiku
- Větrání: nucené s rekuperací ATR EA
- Součinitel prostupu tepla stěnou: 0,174W/m2K
- Okna, dveře: hliníkové profily SCHÜCO, izolační trojsklo, skryté rámy / interiér bezfalcové dveře DORSIS
- Autor arch. návrhu a projektu: Ing. arch. Pavel Lazarov, Ing. arch. Jakub Holas, Ing. Jakub Růžička, Fandament Architects, www.fandament.eu
- Realizace dřevostavby: Dřevostavby Biskup, www.drevostavbybiskup.cz, 2019

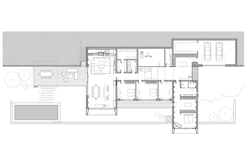
Vizualizace půdorysu: Dřevostavby Biskup a Fandament Architects, Autor všech fotografií v článku: Vladimír Novotný, KIVA

Tento článek vyšel v časopisu DŘEVO&stavby 4/2021
Objednejte si krásně vonící výtisk časopisu s kvalitními fotografiemi pouze za 95 Kč
koupit časopis
Nejnovější články v kategorii “Návštěvy dřevostaveb”
-
Zrcadlová roubenka na soutoku
Majitel této roubenky – říkejme mu třeba Martin – měl jasný cíl: postavit svým dospělým dětem dům, kam by mohly o víkendech jezdit a být mu tak i s vnoučaty nablízku. A aby to…
-
Dřevěný domov v krajině rozlehlých luk
Tento příběh připomíná dokonalou pohádku o tom, kterak Kateřina a Jiří našli svůj vytoužený klid v podhůří Krkonoš. Jejich pozemek o rozloze dvaceti tisíc metrů čtverečních je…
-
Dávno splněný sen v podobě patrové dřevostavby na míru
Některé plány a nápady potřebují čas, aby mohly uzrát. Hluboko zapustit kořeny a trpělivě čekat na tu správnou dobu. Jako v tomto případě – poprvé totiž Milan na „svou"…
-
Dřevěná vila schoulená v náručí krajiny
Každý dům nevyhnutelně mění krajinu – jakým způsobem, to už záleží na jeho majitelích. Některé stavby přetvářejí okolí podle svého obrazu, jiné se naopak snaží splynout. A…












Vytvořeno v xart.cz