Markéta Kristová | Středa, 27. říjen 2021 |
Při návštěvě Ilony a Arnošta byla v jejich pohádkové dřevostavbě cítit nejen vůně cedrového dřeva, ale především pohodová rodinná atmosféra. O tom, jak se jim jejich vysněný dům, který si mimo jiné sami nakreslili, podařilo zrealizovat, mi s úsměvem na tváři vyprávěla Ilona.
Po několikaletém bydlení nám náš původní zděný dům začal být moc velký, a tak jsme se s manželem rozhodli, že by bylo fajn jít do něčeho menšího a přírodně založeného. Vlastně to tak trochu byl i útěk z nově vznikajícího satelitního městečka, které kolem nás začalo růst. Přáli jsme si prostornou zahradu a dům, který se nám bude především líbit, a proto jsme si po večerech začali naše představy postupně přenášet na papír. Velkou inspirací pro nás byly i vaše časopisy. Neustále jsme v nich listovali a vybírali, co vše bychom chtěli v našem novém domě mít. O tom, že půjdeme ze zděného domu do dřevěného, jsme měli jasno už od začátku. Hlavním důvodem byla především touha po bydlení ve zdravém a přírodním prostředí, které jsme v našem původním domě postrádali.
Pozemek nám byl jednoduše souzený
Souběžně s plánováním, jak bude náš nový dům vypadat, jsme začali i s hledáním vhodného pozemku. Chtěli jsme mít kolem sebe dostatek volného prostoru, přírody a být v dobré dojezdové vzdálenosti do Prahy. Na úplně první parcele, kterou jsme měli patnáct minut od domu, se nám nelíbilo elektrické vedení, které vedlo blízko našeho pozemku, a tak jsme hledali dál. Tenkrát by nás vůbec nenapadlo, že právě tenhle pozemek si nakonec vybereme. Z více než dvaceti, které jsme navštívili, jsme usoudili, že byl nakonec nejlepší. Vše je, jak má být.

Foto: Martin Zeman
S pokorou a úctou k místu
Když už byl pozemek náš, jezdili jsme sem prakticky každý den včetně večerů. Potřebovali jsme prostě nasávat zdejší atmosféru a určit si dispozici domu. Šlo nám také o to, abychom zde zachovali přírodní ráz. Všechny stromy, které vidíte na naší zahradě, tady už byly. Dokonce i ty velké kameny jsme odsud vytěžili. Přírodu je potřeba chránit, ne ničit. Po vzájemných kompromisech a spekulacích, jak bude dům dispozičně řešen a jak budou jednotlivé místnosti velké, jsme konečný návrh předali projektantovi, který nám ho po drobných úpravách schválil a mohlo se začít stavět. Nastávala otázka, s kým a z čeho dřevostavbu postavíme?

obr.: Terasa je přístupná ze všech obytných místností v domě. Foto: Martin Zeman

Foto: Martin Zeman
Vůně cedru nás přesvědčila
Od začátku jsme chtěli bydlet v opravdu přírodním prostředí, právě proto padla volba na masivní dřevostavbu. Při výběru dodavatele jsme byli opravdu obezřetní a hodně jsme si všímali referencí. Nakonec jsme našeho dodavatele objevili na stavebním veletrhu For Arch v Praze. Následně jsme se jeli podívat i do jejich vzorového domu v Dobříkově, kde nás omamná vůně kanadského červeného cedru definitivně přesvědčila, že to je to pravé. Líbilo se nám i to, že dřevo nevyžaduje žádnou údržbu a impregnaci, což bylo v souladu s přírodním prostředím, které jsme chtěli.
Cedr byla sice finančně náročnější volba, ale určitě to bylo to nejlepší rozhodnutí, které jsme mohli udělat. Po roce bydlení v naší cedrové dřevostavbě můžu za nás všechny s klidným svědomím říct, že jsme tu šťastni a splnil se nám náš životní sen. Všem, kteří se rozhodují, zda postavit dřevostavbu, bych vzkázala: nebojte se a jděte do toho – ta atmosféra stojí za to. Doporučuji také spolupracovat pouze s ověřeným dodavatelem, který vám zajistí hladký průběh stavby. V našem případě si na výběr dodavatelské firmy nemůžeme stěžovat. Její přístup byl velmi lidský a férový. Co řekli, to platilo, a vše probíhalo podle plánu. Celý dům se podařilo postavit za půl roku.

obr.: Obývací část v domě je společně s terasou místem, kde spolu rodina tráví volný čas. Příjemným doplňkem je promítací plátno, které umocňuje prožitky a dotváří také celkovou atmosféru domu. Foto: Martin Zeman

obr.: Teplovodní krbová kamna zajišťují ohřev vody prostřednictvím teplovodního výměníku, který je součástí krbových kamen. Teplá voda je následně využita k přímému vytápění domu. Foto: Martin Zeman

obr.: Součástí domu je inteligentní systém, který zajišťuje všem členům domácnosti komfort, bezpečnost a úsporu času. Foto: Martin Zeman

obr.: Nejen v kuchyni bylo použito tvrdé dubové dřevo. Foto: Martin Zeman
"Doma jsme jako na dovolené. Nikam se nám odsud nechce jezdit."

obr.: Dětský pokoj je bránou do světa dobrodružství. Foto: Martin Zeman

obr.: Postel ze starého domu dostala nový nátěr, aby ladila s novým prostorem. Foto: Martin Zeman

obr.: Stylová koupelna propojená s ložnicí a s výhledem na zahradu je tím pravým místem k dobití energie. Kovové prvky jsou od uměleckého kováře. Foto: Martin Zeman

Foto: Martin Zeman

Tento dům soutěží v anketě Dřevostavba roku 2021
Pomozte nám zvolit nejhezčí dřevostavby! Tento srubový dům se uchází o váš hlas v anketě Dřevostavba roku pod názvem "V souladu s přírodou". Hlasujte a získejte atraktivní ceny...
Hlasovat v anketě
Jezírko je naše noční můra!
To se ovšem nedalo říct o firmě, která nám realizovala jezírko na zahradě. Z původního plánu, že bude hotovo za měsíc a půl, se realizace protáhla na více než půl roku, a ještě dodnes není stavba kvůli problémům dokončena a předána. Špatně zhotovený vodopád, pak rozkopaná zahrada i s terasou kvůli špatnému utěsnění při pokládání základů pod jezírkem. Stálo nás to opravdu hodně nervů a starostí. Jezírko je nakonec krásné, ale je to naše noční můra a onu firmu specializovanou na realizaci jezírek z Vestce a Brna bych rozhodně nikomu nedoporučila.
Kdybychom stavěli znovu, určitě bychom si nechali dům zhotovit od jednoho dodavatele. My jsme jich měli více než třicet, bylo náročné všechny koordinovat, roli projektového vedoucího jsme totiž převzali sami. Ne všechny firmy byly kvalitní. Také bychom možná udělali větší přesah střechy nad terasou, trochu zvětšili parkovací místa a sklep vybudovali pod domem, a ne mimo něj. Jinak nic zásadnějšího. Žije se nám tu krásně.

obr.: Láska k přírodě se na zahradě bezpochyby podepsala. Foto: Martin Zeman

obr.: Zelená barva přední části domu výrazně podtrhuje jedinečnost dřevostavby. Foto: Martin Zeman
Technické parametry
- Spodní stavba: betonová základová deska
- Stavební systém: roubená kostrukce
- Topení: podlahové topení elektrické, krb s teplovodním výměníkem
- Vnitřní vybavení: chytrá domácnost Loxone
- Pozemek: 2 713 m2
- Zastavěná plocha: 309 m2
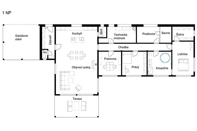
- Obytná plocha: 209 m2
- Projekt pro stavební povolení: CEDAR HOME s.r.o.
- Realizace: CEDAR HOME s.r.o., www.cedarhome.cz



Tento článek vyšel v časopisu sruby&ROUBENKY 4/2021
Objednejte si krásně vonící výtisk časopisu s kvalitními fotografiemi pouze za 69 Kč
koupit časopis
Nejnovější články v kategorii “Návštěvy dřevostaveb”
-
Zrcadlová roubenka na soutoku
Majitel této roubenky – říkejme mu třeba Martin – měl jasný cíl: postavit svým dospělým dětem dům, kam by mohly o víkendech jezdit a být mu tak i s vnoučaty nablízku. A aby to…
-
Dřevěný domov v krajině rozlehlých luk
Tento příběh připomíná dokonalou pohádku o tom, kterak Kateřina a Jiří našli svůj vytoužený klid v podhůří Krkonoš. Jejich pozemek o rozloze dvaceti tisíc metrů čtverečních je…
-
Dávno splněný sen v podobě patrové dřevostavby na míru
Některé plány a nápady potřebují čas, aby mohly uzrát. Hluboko zapustit kořeny a trpělivě čekat na tu správnou dobu. Jako v tomto případě – poprvé totiž Milan na „svou"…
-
Dřevěná vila schoulená v náručí krajiny
Každý dům nevyhnutelně mění krajinu – jakým způsobem, to už záleží na jeho majitelích. Některé stavby přetvářejí okolí podle svého obrazu, jiné se naopak snaží splynout. A…












Všem, kteří se rozhodují, zda postavit masivní dřevostavbu, bych vzkázala: nebojte se a jděte do toho – ta atmosféra stojí za to. Doporučuji také spolupracovat pouze s ověřeným dodavatelem, který vám zajistí hladký průběh stavby. V našem případě si na výběr dodavatelské firmy nemůžeme stěžovat. Její přístup byl velmi lidský a férový. Co řekli, to platilo, a vše probíhalo podle plánu. Celý dům se podařilo postavit za půl roku.
Vytvořeno v xart.cz