Dana Jakoubková | Čtvrtek, 23. březen 2023 |
Dokážete si představit dům, který obsahuje 50 kubíků dřeva a váže 43 tun CO2? Dům, který je téměř z 90 procent recyklovatelný a stejné procento jeho hmotnosti je vyrobeno v České republice, českými mistry a z českého dřeva? Máte pravdu: taková by mohla být každá dřevostavba. Ale není. A ne u každého domu se sejdou sdílené hodnoty, smysl pro detail a respekt k přirozené krajině.
Integrace principů udržitelné výstavby s vysoce kvalitním designem, silným smyslem pro místo a dobře uváženými materiály umožnila navrhnout a postavit pro Jarku s Josefem krásný a energeticky efektivní rekreační dům jako náhradu staré nevyhovující chaty. Vklíněný mezi železniční trať a břeh lipenského jezera, obklopený lesem a šumavskými kopci se měl stát komfortním zázemím v každém ročním období k provozování horských sportů. Majitelé jsou totiž nadšení sportovci a ať už se vrací v zimě ze skialpů či v létě z dlouhého výletu, vědí, že na ně čeká útulná chata, kde je příroda před i za oknem velmi přítomná.
Je to váš první dům, první dřevostavba?
Bydlíme trvale ve zděném domě. Na tuto chatu jsme ale zvolili dřevo, jednak aby dobře zapadla do horského prostředí a také aby měla dobré tepelněizolační vlastnosti, protože jsme ji chtěli využívat celoročně. S dřevostavbou jsme žádné zkušenosti neměli. Kromě pročítání časopisů a internetu jsme využili i akci Den dřevostaveb, abychom získali inspiraci a dozvěděli se něco ze zkušeností majitelů. Pomohlo nám také doporučení odborníků.
Jelikož jsme chtěli mít dřevo v interiéru přiznané, celkem logicky jsme se dopracovali ke konstrukci z CLT panelů. Mohli jsme to samo sebou obložit třeba palubkami, ale přišlo nám to zbytečně složité, když existuje stavební prvek, který pohledové dřevo nabízí už v základu.
Měli jste jasnou představu o tom, jak by měl být dům uspořádaný?
To ani ne. Věděli jsme jen, že by měl sloužit především jako zázemí pro naše volnočasové aktivity v terénu a aby bylo uvnitř příjemné prostředí pro setkávání a společný čas s rodinou i přáteli. Vzhledem k tomu, že dcera je architektka, měli jsme mnohem jednodušší start, než má asi většina stavebníků. Dobře znala prostředí i naše potřeby a každodenní rituály. Její návrh studie chaty byl tedy otázkou první volby.
Komentář architekty
K Šumavě mám od malička silnou vazbu a v návrhu se mé prožitky a vzpomínky odráží. Zvláště ten pocit, když přijde člověk vymrzlý z výletu, dá si sušit ponožky ke krbu, usrkává horký čaj a čeká, až mu rozmrznou ruce i nohy. Kontrast nepohody s následnou odměnou v podobě komfortu je v návrhu umocněný velkým oknem, kterým se díváte na zasněženou terasu, a přitom se v teple tetelíte blahem.

MgA. Gabriela Králová
Les Archinautes
Podle čeho jste vybírali dodavatele stavby?
Jednoduše jsme si udělali laické výběrové řízení, kde s pozicí dodavatele významně zahýbaly dostupné reference od majitelů domů, které firma postavila. Rozhodujícím také bylo, aby dodavatel k navržené studii připravil potřebnou projektovou dokumentaci a vyřídil vše kolem stavebního řízení. Společnost 3AE měla výborné reference a vše potřebné naplňovala beze zbytku. Volba tedy padla na ně.
Komentář dodavatele
Už z fotek je zřejmé, že aby mohla taková stavba vzniknout, muselo být vše v harmonii – architektka, klienti a my. Ačkoliv šlo o relativně malý dům, na jeho přípravě i realizaci pracovali všichni s nadšením jako jeden tým. Jaro a léto u Lipna znamenalo pro chlapy-tesaře i tak trochu dovolenou. I my z kanceláře jsme na stavbu často jezdili a večer si opékali buřty a nasávali místní atmosféru.
Když si dnes zpětně uvědomím, že chata od mladé, skromné architektky a malé české stavební firmy doslova oblétla celý mediální svět, cítím velkou pokoru. Ukazuje to na skutečnost, že promyšlené stavění a perfektní ruční práce mají kredit všude na světě stejný. Všem, kdo na této stavbě nechali kus svého života, děkujeme. A klientům přejeme, ať se jim radostně a příjemně odpočívá v tomto nádherném místě. A tu saunu jim samozřejmě závidíme.

Ing. Jakub Růžička
3AE s.r.o.
Řešili jste nějaký oříšek? Dělalo vám něco starosti?
Díky tomu, že dodavatel stavby kvalitně zpracoval prováděcí dokumentaci a většinu stavby firma sama realizovala, nemuseli jsme řešit nic zásadního.
Jak dlouho trvala výstavba?
Na podzim 2020 byla provedena základová deska včetně přípojek, vlastní stavba trvala od května do listopadu 2021.
Přinesla vám stavba nějaké poučení, zajímavou zkušenost?
Naprosto splnila naše očekávání, což se možná ne každému stavebníkovi podaří. Jsme spokojeni s fungováním dřevostavby jako takové.
Co vám působí největší radost?
Jsme nadšeni z útulnosti interiéru a z tepelné pohody, kterou nám původní chata neposkytovala.
O teplo se starají jen ta krbová kamna?
Kromě nich máme elektrické podlahové vytápění, abychom mohli chatu temperovat i na dálku. Po roční zkušenosti jsme s touto kombinací tepelných zdrojů naprosto spokojeni. Krbovky mají díky mastku vysoký stupeň akumulace a dlouhou tepelnou setrvačnost. Šetří elektrickou energii a interiér zútulňují.
A jste něčím i překvapeni?
Nízkou spotřebou elektrické energie.
Jak byste specifikovali rozdíl mezi pobytem v dřevostavbě a ve vašem zděném domě?
Dřevostavba působí teplejším dojmem a voní tu dřevo.
Kdybyste měli stavět znovu, změnili nebo zohlednili byste něco po dosavadních zkušenostech?
Ne, koncepce domu nám vyhovuje. Vymýšleli jsme ji s dcerou několik let a výsledek je i díky stavební firmě zcela vyhovující.
Co zaujalo redaktorku?
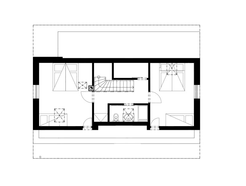
1. Kruhové okno
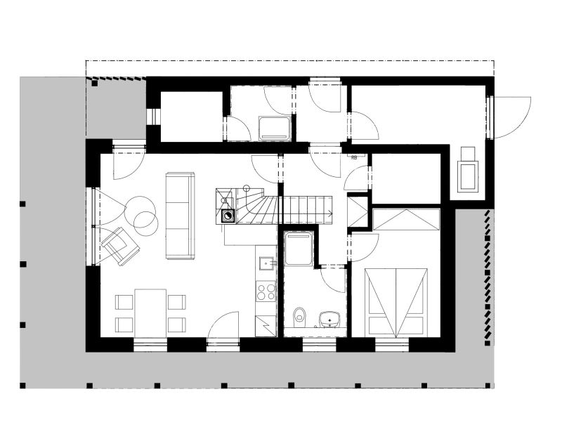
Zatímco v přízemí je situována sednice s kuchyní, pokoj, koupelna, prádelna, sauna a skládek pro sportovní potřeby, podkroví skrýv á druhou koupelnu, komoru a dvě ložnice. Právě do nich umístila architektka štítová kruhová okna, která změkčují monotónnost rovných linií a ostrých úhlů. Takové okno vždy přidá prostoru vně i uvnitř na výjimečnosti, ovšem nese s sebou i potřebu řešit atypicky otevírání a především parapet. Určitou nevýhodou může být složitá integrace stínění, pokud chceme zachovat kruhový vzhled. Naopak praktickou výhodou jsou nižší prostorové nároky okna díky absenci rohů.
2. Komín jako estetický prvek
Záležitostí, která není často v domech vidět, je i přiznané těleso komínu procházející přes patro nad střechu. Z hlediska estetického urazil komín dlouhou cestu a ryze účelovou „šachtu" povýšil na designový prvek. V tomto případě je zvláště působivá jeho černá barva, která pěkně kontrastuje se světlým interiérem a nejsou díky ní na první pohled patrné spoje jednotlivých dílců.

Dana Jakoubková
redaktorka

Tato dřevostavba soutěží v anketě DŘEVOSTAVBA ROKU 2023
Pomozte nám zvolit nejhezčí dřevostavby! Tato rekreační dřevostavba se uchází o váš hlas v anketě Dřevostavba roku 2023 pod názvem "Rychle a bezbolestně". Hlasujte do 26.3. 2023 v tomto kole a získejte atraktivní ceny...
Hlasovat v anketě
Technické parametry
- Typ domu: nízkoenergetický
- Zastavěná plocha: 123 m²
- Užitná plocha: 110 m²
- Dispozice: 4+kk + sauna, dřevník, komora, prádelna
- Konstrukční systém: masivní dřevěný panel NOVATOP SOLID, difuzně otevřená konstrukce
- Zdroj energie / vytápění: elektrické podlahové topení, akumulační krbová kamna
- Větrání: přirozené okny
- Součinitel prostupu tepla stěnou U: 0,25 W/m²K
- Autor arch. návrhu: MgA. Gabriela Králová, Les Archinautes
- Autor projektu: Ing. Radek Vybíhal, 3AE s.r.o.
- Realizace stavby: 2021, 3AE s.r.o., www.3ae.cz

Tento článek vyšel v časopisu DŘEVO&stavby 1/2023
Objednejte si krásně vonící výtisk časopisu s kvalitními fotografiemi pouze za 99 Kč
koupit časopis
Nejnovější články v kategorii “Návštěvy dřevostaveb”
-
Zrcadlová roubenka na soutoku
Majitel této roubenky – říkejme mu třeba Martin – měl jasný cíl: postavit svým dospělým dětem dům, kam by mohly o víkendech jezdit a být mu tak i s vnoučaty nablízku. A aby to…
-
Dřevěný domov v krajině rozlehlých luk
Tento příběh připomíná dokonalou pohádku o tom, kterak Kateřina a Jiří našli svůj vytoužený klid v podhůří Krkonoš. Jejich pozemek o rozloze dvaceti tisíc metrů čtverečních je…
-
Dávno splněný sen v podobě patrové dřevostavby na míru
Některé plány a nápady potřebují čas, aby mohly uzrát. Hluboko zapustit kořeny a trpělivě čekat na tu správnou dobu. Jako v tomto případě – poprvé totiž Milan na „svou"…
-
Dřevěná vila schoulená v náručí krajiny
Každý dům nevyhnutelně mění krajinu – jakým způsobem, to už záleží na jeho majitelích. Některé stavby přetvářejí okolí podle svého obrazu, jiné se naopak snaží splynout. A…


























Vytvořeno v xart.cz