Redakce | Čtvrtek, 20. červenec 2023 |
Návštěvu Jakubova domu jsme kvůli jeho velkému pracovnímu vytížení museli nakonec v minulém roce odložit. Ale čekání se vyplatilo – dům i se svým okolím dostal ještě čas k dobru vyzrát do krásy. Rozbujelé jaro menšímu městečku, schoulenému v zákrutě na levém břehu Vltavy, moc slušelo. A z Jakubova povídání bylo zřejmé, jak se jeho rodině tohle životní rozhodnutí, odejít z velkoměsta blíž k přírodě, v čase osvědčilo.
Jakub s manželkou vystřídal v pražských Dejvicích hned několik podnájmů. Když jim ale přibyl do rodiny první a brzy poté i druhý syn, přišel čas na změnu. „Měli jsme velký a prostorný byt, ale postupně se pro nás stal zlatou klecí. S manželkou jsme ucítili potřebu být blíž přírodě, mít vlastní zahradu, kde budeme moct trávit čas s dětmi, dokud ho s námi ještě trávit chtějí a potřebují. Cíl byl jasný – ven z Prahy, ale zase ne moc daleko, protože jsem tu pracovně vázaný," vzpomíná Jakub na úplné začátky.
S manželkou tehdy chvíli uvažovali i o koupi již hotového domu, ale poměr cena/výkon je rychle navedl spíše na hledání vhodných pozemků, kde by si mohli vybudovat něco přesně podle svých představ. „Hledali jsme všude možně, ale najít volný pozemek okolo Prahy byl už v těch letech 2018 - 2020 docela oříšek. Buď byly nesmyslně drahé, nebo nebyly vůbec a člověk musel jít cestou velkého developera, který některou z volných lokalit zastavuje."
Pozemky okolo Prahy jdou na dračku
„Do Libčic nás zavedl jeden můj dlouholetý kamarád, se kterým jsem vyrůstal. Líbila se nám velice dobrá dopravní dostupnost – do Prahy odtud jede vlak, navíc na motorce jsem v Dejvicích, kde pracuji, za 17 minut. Také obec není průjezdná, a tak je tam klid. Manželka dohledala kontakty na majitele všech volných parcel, ale neslavili jsme úspěch. A tak jsem se spojil s developerem, který měl v blízké budoucnosti začít s výstavbou u koupaliště," vzpomíná Jakub.
A pak se na mladou rodinu usmálo štěstí – zmiňovaný developer neměl svůj realizační záměr zatím dotažený, ale protože byl Jakub neodbytný, nakonec mu zprostředkoval koupi jiného pozemku, který se ještě ani nedostal na realitní trh. „Díky tomu byl prodej úplně v klidu. Když dnes chcete stavební pozemek v okolí Prahy, musíte být neuvěřitelně pohotoví. Jakmile se nemovitost ocitne v prodeji, máte defacto pár minut na to, podepsat smlouvu, protože za vámi stojí sto dalších zájemců," doplňuje Jakub.
Dřevostavba se dá snadněji demontovat
Z hlediska technologie Jakubovi a jeho ženě dřevostavba dávala největší smysl. Slibovala krátkou dobu výstavby a v budoucnu snadnější demontovatelnost. „V dnešní době nemá smysl budovat pevnost, která přežije generace. Stavíme si dům podle našich představ v takovém standardu, který je dnes běžný, s nároky, které máme na stavbu my. Až pozemek jednou zdědí děti, nebo se třeba prodá, přijde jiný stavebník s jinými nároky a požadavky a to, že bude stavba snadněji, rychleji a ekologičtěji demontovatelná, bude jednoznačně benefit."
Jakub ale neskočil do vody po hlavě. „Sledovali jsme různé blogy a youtube kanály o výstavbě dřevostaveb, abychom načerpali informace, a díky tomu jsme v sobě odbourali takové zažité předsudky, které se s dřevostavbami stále pojí. Dneska už téměř nenajdete stavebníka, který by o dřevostavbě nikdy neslyšel, v mainstreamu ale stále převládá názor, že se jedná o něco nestabilního a dočasného, a že pořádný dům má být z cihel."
Firma s individuálním přístupem
Jakub s manželkou si poctivě udělali i výběrové řízení a do několika firem se zajeli osobně podívat, aby si prohlédli výrobu a nekupovali zajíce v pytli. „Nejdříve jdete po těch velkých hráčích, kteří na vás vyskakují odevšad. A nebyl to vyloženě špatný začátek, na několika schůzkách jsem načerpal poměrně hodně zásadních informací. Problém byl v tom, že člověk si musel většinou vybrat dům z katalogu a jakákoliv minimální změna znamenala velké navýšení nákladů. Oproti tomu ve firmě Dřevo-House neměli s individuálním přístupem vůbec žádný problém. Ukázali mi portfolio typizovaných domů s tím, že když udržíme určité parametry, jako je podlahová plocha nebo počet a velikost okenních otvorů, můžeme si projekt upravit podle svého a cena bude pořád stejná. Od počátku se nám líbil jejich přístup, tak jsme si plácli, přestože jsme neměli až tolik referencí, kolik bychom si při takové investici představovali."
Promyšlené usazení domu na pozemek
Typizovaný projekt pomohla Jakubově rodině upravit jeho kamarádka architektka. Společně si dali záležet na orientaci domu vůči světovým stranám – architekta pro ně zpracovala i studii oslunění v různých denních dobách a ročních obdobích, a také si ještě v projektové fázi vyhrála s dokonalým usazením domu na pozemek. Jakub si nechal od specializované firmy rovnou navrhnout i pozemkové úpravy – tedy opěrné stěny a přístupové cesty. „Dřevo-House by se o tuhle fázi mohl postarat i sám, ale bylo mi jasné, že nemají tolik času piplat se s jedním klientem a my chtěli mít tenhle základ udělaný co nejlépe, aby se v budoucnu minimalizovaly dodatečné výkopové práce."
Dřevostavba vyrostla raz dva
Jednání s úřady na přelomu let 2019/2020 proběhlo bez problému, platné stavební povolení drželi novopečení stavebníci v ruce měsíc před tím, než vypuklo covidové šílenství. První kopnutí pak proběhlo na konci března. Dřevo-House zajišťoval výstavbu celého domu s jednou výjimkou – na realizaci podlah si Jakub zjednal externího dodavatele. „Fungovalo to tak, že Dřevo-House celou stavbu ve chvíli, kdy bylo všechno pro realizaci podlah připravené, předal do rukou subdodavatele, ten provedl svou část práce a potom předal zase celou stavbu zpět," vzpomíná Jakub.
Průběh výstavby pak hodnotí jako bezproblémový a rychlý. Díky tomu, že se stavělo hlavně přes léto, nezasáhl Covid do výstavby tak, jako jinde. „Někdy stavba chvíli stála, protože navazující profesant byl nemocný nebo v karanténě, ale ve finále to v celkové době výstavby nehrálo výraznou roli. Na konci srpna bylo hotovo a mohli jsme se vrhnout na zařizování interiérů a na úpravu zahrady."
Osobitý stavební dozor
Jakub se ženou měli díky radám ze svého okolí od počátku jasno v tom, že na stavbu jejich domu bude dohlížet externí stavební dozor, který zajistí, že všechno proběhne tak, jak má. „Zvolili jsem si pana Pavla Šimka, který je v téhle oblasti tak trochu celebrita, a byli jsme s ním nadmíru spokojení. Kromě jistoty, kterou jsme díky tomu získali, měla takhle spolupráce velkou přidanou hodnotu i v atmosféře, kterou s sebou na stavbu vždycky přivezl. Je to prostě šoumen, hrozně mě bavilo pozorovat, jakým způsobem tam některé pracovníky ‚školí'. I on ale nakonec uznal, že je dům postavený precizně, že stavbyvedoucí celou dobu lpí na kvalitě a sám žene každého konkrétního řemeslníka k co nejlepším výsledkům."
Řízené větrání má smysl
„Chtěli jsem postavit extrémně hloupý dům," směje se Jakub, „bez zbytečných technologií, co nejprostší a nejjednodušší. A jsme v něm takhle spokojení. Jedinou věcí, kterou bychom dnes udělali jinak, je zajištění umělého větrání v ložnici a v pokoji dětí. Nechtěli jsme řízené větrání ani rekuperaci, ale po zkušenosti musím uznat, že tyhle pokoje nejsou díky míře těsnosti domu pořádně dovětrané. Vytápíme teplovodní podlahovkou, otopnou a užitkovou vodu nám do letošního března ohříval plynový kotel, který jsme z ekonomického i morálního hlediska vyměnili za tepelné čerpadlo," uzavírá Jakub.

Tato dřevostavba soutěží v anketě DŘEVOSTAVBA ROKU 2023
Pomozte nám zvolit nejhezčí dřevostavby! Tato sendvičová dřevostavba se uchází o váš hlas v anketě Dřevostavba roku 2023 pod názvem "Vylétnout z zlaté klece". Hlasujte do 10.9. 2023 v tomto kole a získejte atraktivní ceny...
Hlasovat v anketě
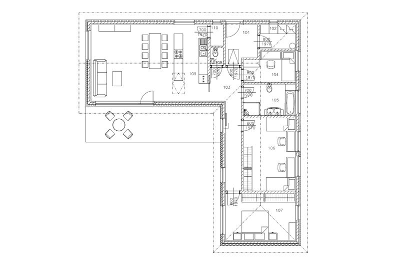
Technické parametry
- Typ domu: nízkoenergetický
- Zastavěná plocha: 137 m2
- Užitná plocha: 112 m2
- Dispozice: 5+kk
- Konstrukční systém: prefabrikovaný sendvičový panel, difuzně uzavřená skladba
- Teplo: teplovodní podlahové vytápění, tepelné čerpadlo vzduch-voda
- Větrání: přirozené
- Součinitel prostupu tepla stěnou: U = 0,16 W/m2K
- Autor projektu: Dřevo-House s.r.o.
- Realizace: 2020, Dřevo-House s.r.o., www.drevo-house.cz
Autor článku: DAGMAR ČESKÁ
Vaše komentáře (0)Nejnovější články v kategorii “Návštěvy dřevostaveb”
-
Zrcadlová roubenka na soutoku
Majitel této roubenky – říkejme mu třeba Martin – měl jasný cíl: postavit svým dospělým dětem dům, kam by mohly o víkendech jezdit a být mu tak i s vnoučaty nablízku. A aby to…
-
Dřevěný domov v krajině rozlehlých luk
Tento příběh připomíná dokonalou pohádku o tom, kterak Kateřina a Jiří našli svůj vytoužený klid v podhůří Krkonoš. Jejich pozemek o rozloze dvaceti tisíc metrů čtverečních je…
-
Dávno splněný sen v podobě patrové dřevostavby na míru
Některé plány a nápady potřebují čas, aby mohly uzrát. Hluboko zapustit kořeny a trpělivě čekat na tu správnou dobu. Jako v tomto případě – poprvé totiž Milan na „svou"…
-
Dřevěná vila schoulená v náručí krajiny
Každý dům nevyhnutelně mění krajinu – jakým způsobem, to už záleží na jeho majitelích. Některé stavby přetvářejí okolí podle svého obrazu, jiné se naopak snaží splynout. A…
























Vytvořeno v xart.cz