Redakce | Úterý, 28. listopad 2023 |
„Ještě kousek tuňákové?" stará se Zora jako správná hostitelka. Sedíme v pozdním odpoledni u kulatého stolu na terase, před námi rozložené krabice s pizzou. V jezírku dovádí děti, kolem nich pobíhá neustále ňafající pejsek Roxy. Se vzpomínáním na zrod domu pomáhá Zoře a Hynkovi i architektka Irena a stavitel Jarda. Hodně se smějeme. Místo domu se tady totiž od prvního náčrtu stavěl domov a z obchodních vztahů se zrodilo přátelství na celý život.
„A neměli jsme dostat nějaký seznam otázek?" ošívá se Zora, když zapínám diktafon. S úsměvem ji ujistím, že otázek netřeba, přesto ale jednu položím – Jak to celé začalo? „I když jsme nejdříve hledali byt, naše požadavky a představy nás postupně nasměrovaly ke stavbě vlastního domu na pozemku za Prahou," začíná Hynek. „Otevřela jsem notebook a úplně první pozemek, který na mě vykoukl, byl tenhle," vzpomíná Zora. Že by osud?
„Chtěla jsem zdravý dům," usměje se. „Tak jsem se vrhla do rešerší, až jsem si ujasnila, že by to měl být dům s rekuperací, nejlépe pasivní a ideálně dřevostavba." Pak už byl jen krůček k tomu, narazit při hledání nejvhodnější inspirace na jednu z předchozích realizací tandemu architektonického ateliéru a realizační firmy, který jim nakonec jejich vysněný dům postavil. „Hned po první schůzce bylo jasné, že jinde už hledat nebudeme."
Nepravidelně pravidelný tvar dřevostavby
Hynkovi se líbily organické tvary, dům, který ho k architektce přivedl, měl místo sloupů na terase stromy (jeho návštěva vyšla v čísle 3/2013). „Najít takové stromy je celkem velká práce – musíte do lesa a vybírat kus od kusu. Dům Zory a Hynka mi ‚přistál na stole' relativně krátce po dokončení toho, který k nám stavebníky přivedl, a já se upřímně vyděsil, že teď budeme stavět takové domy každý rok," směje se Jarda.
Úkolem architektky bylo také vysvětlit investorům, že pasivní dům má určitá pravidla i ve svém tvarovém a dispozičním řešení a pokud má jeho energetická bilance opravdu fungovat, je třeba tomu návrh podřídit. „Nechtěl jsem kvádr, ale Irena mi vysvětlila, že není kvádr jako kvádr. Může se pracovat s terasou, jejím zastřešením, obložením, hmotou garáže, šambránami kolem oken,... a výsledek vidíte sami. Dokonalý. Tak trochu ve stylu Chytré Horákyně – nepravidelně pravidelný," vzpomíná Hynek.
Slovo architektky
Ráda vzpomínám na neuvěřitelně inspirativní a pohodovou spolupráci. Bylo to v době, kdy jsem trochu neohrabaně začínala pracovat s feng-shui a hodně jsme se při tom nasmáli. Díky tomu máme například kamennou „želvu" za domem, která má domu přinášet bezpečí. Pak to bylo moje první setkání s jasanem, který si v interiéru skvěle rozumí se smrkem, a to radostné souznění je zde cítit na každém kroku.

Ing. Irena Truhlářová
ARCHCON atelier, s.r.o.
Výstavba dřevostavby bez komplikací?!
„Celý proces výstavby probíhal v přátelském duchu a upřímně si nepamatuju na žádnou větší komplikaci nebo zdržení," shrnuje Hynek, i když zbytek osazenstva mu překotně začne vypočítávat, kde všude byl nějaký zádrhel. S původními majiteli pozemku, kteří přes něj vedou svou kanalizaci, jíž se po vzájemné dohodě musel dům svým umístěním vyhnout. S navážkou, která pokrývala většinu parcely a základy se tak kopaly do nečekané hloubky. Se schvalováním ČOVky nebo i s Damoklovým mečem v podobě plánovaného letiště ve Vodochodech, ze kterého nakonec naštěstí sešlo.
„Ve všem máte pravdu, ale to, co zůstalo, je dobrý pocit. A na tom záleží," odmávne pán domu. V portfoliu architektonické kanceláře se dům Hynka a Zory jmenuje Dům s vodním světem, ne kvůli venkovnímu jezírku, ale kvůli akváriu, které je středobodem obývacího prostoru – a které je zatím ještě pořád na suchu. „Akvárko bylo jedním z našich prvních požadavků a já si vzpomínám, jak se Irena rozesmála a řekla nám, že klienti se dělí na ty snadné a komplikované. A ti komplikovaní na klienty, co chtějí zimní zahradu a klienty, co chtějí velké akvárium," vzpomene si Zora.
Rozmluva s realizační firmou
Velkou proměnnou při ladění projektu byla terasa, s jejímž umístěním a velikostí se hodně pracovalo. Posezení je nakonec trochu stranou, aby velký přesah střechy zbytečně nestínil solárním ziskům z velkých oken. Terasa byla také jedním ze sporných bodů mezi majiteli a realizační firmou. „Když jsme udělali podrobnou kalkulaci, bylo jasné, že se z něčeho bude muset slevit," vzpomíná Jarda.
„Rozhodně jsme ale Hynka se Zorou přesvědčovali, že na terase to být nemůže." A Zora jen kývá hlavou: „A byla to naprostá pravda. V létě tady prakticky žijeme. Je tu úžasná energie, tady u toho kulatého stolu se každý den odehrává ten nejdůležitější rodinný čas." Úsporná opatření se nakonec dotkla dřevěné fasády, která ustoupila levnější omítce. Do budoucna má v rohu terasy vyrůst ještě pizza pec, kterou si Hynek plánuje sám postavit. „Byl jsem už i na kurzu, ale stejně to asi nakonec udělám jinak," směje se. „Ale až někdy. Plánů mám spoustu, jen toho času se mi nějak nedostává."
Jasanu není nikdy dost
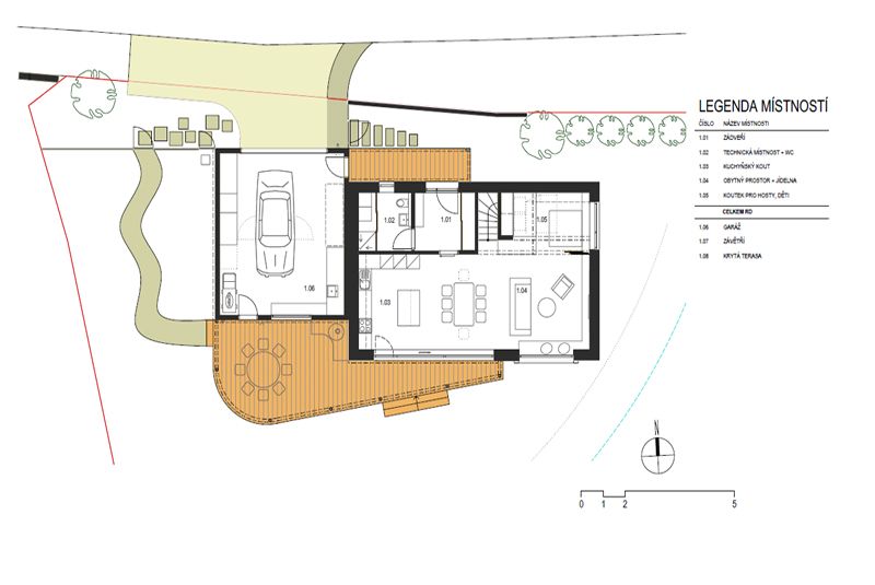
„Irena si dala hodně záležet na optimalizaci vnitřního prostoru, aby každé místo mělo svůj účel, nikde nic nepřebývalo ani nechybělo a po skoro pěti letech musím říct, že to opravdu funguje," zve nás Zora dovnitř, aby mohl fotograf využít počínajícího soumraku. „Chtěla jsem třeba pokoj pro hosty, který Hynek označil za zbytečnost. Irena vymyslela skvělou věc – navrhla oddělit část obýváku velkou posuvnou stěnou, takže se pokoj ‚postaví' jen, když je to potřeba," názorně ukazuje.
„Jak moc je každý centimetr účelný dokazuje i to, že když do naší rodiny přibyla Roxy, nemohla jsem najít žádné místo, kam dát psí pelech – to jsme do zadání zkrátka nedali," usmívá se. Hlavnímu obytnému prostoru vévodí jasan – jsou z něj horní skříňky kuchyňské linky, velký jídelní stůl, schodiště, obklad akvária i navazující lůžko pro hosty. Krásně se hodí k přiznanému konstrukčnímu smrku i k matným černým doplňkům, se kterými ale Zora hlavně u kuchyňské linky neudělala dobrou zkušenost.
„Bála jsem se, že když bude kuchyně celá jasanová, bude tu dřeva už moc. Černá se mi líbila, ale bohužel jsou na ní vidět otisky, které už po čase ani nejdou rozleštit. Zřejmě jednou černá čela vyměníme za dřevěná, protože teď už si myslím, že jasanu není nikdy dost." Stejně tak se neosvědčila epoxidová stěrka za kuchyňskou linkou, kterou jednou nahradí podobná mozaika, jako je v koupelně.
Slovo dodavatele
Na toto krásné místo jsem se vrátil po pěti letech. Dům je ve výborné kondici, což jsem viděl, když jsem si dům nyní prošel a dokazují to i slova majitelů. Jsem nadšený z jejich elánu a schopnosti dotáhnout plány do konce a vůbec nevadí, že to chvíli trvá. Vše má svůj čas. Hynek se Zorkou jsou úžasní lidé. Jsou profesionálové ve své práci a velmi oceňuji, že to byli schopni respektovat i u nás během projektu a stavby. O to víc mě těší, že jsme dokázali naplnit jejich přání a očekávání. Vnímat tu radost byl nádherný zážitek a potvrzení toho, že tak jak to děláme, to dává smysl. Děkuji za to!

Ing. Jaroslav Jiruška
DŘEVOSTAVBY BISKUP s.r.o.
Bez rekuperace v dřevostavbě už ani ránu
Dřevostavba je naprosto bezúdržbová – jediné, na co je třeba dbát, je výměna filtrů v rekuperaci. O všechno ostatní se stará pečlivě nastavené inteligentní řízení, které kontroluje kvalitu vzduchu (skrze řízené větrání s rekuperací) i teplo (elektrická podlahovka). „Dokud nám teď v létě kvůli menší závadě nepřestala fungovat rekuperace, nevěděli jsme, proč si všichni tak stěžují, že se v tom horku nedá spát. Tady bylo pořád příjemně – klimatizaci nemáme a rekuperace umí částečně přichlazovat, ale tuhle funkci jsme ani nepoužívali. Protože opravář měl čas až za čtyři dny, vyzkoušeli jsme si všichni, že bez řízeného větrání s rekuperací už bychom nechtěli bydlet ani za nic," vypráví Hynek. „Stejně tak v zimě," doplňuje Zora.
„První rok jsem si nemohla vzpomenout, jak se nastavuje topení, tak jsem volala pánovi, který nám to tady instaloval, a on přijel a kroutil hlavou nad tím, že jsem mu zavolala až v listopadu. Nám tu do té doby bylo ale úplně příjemně." Jarda přispěchá s vysvětlením: „Tu teplotní stabilitu má na svědomí i skladba stěny. Místo klasického zateplení minerální vatou nebo polystyrenem je celý dům zateplen dřevovláknitou izolací, a to se hodně pozná hlavně v létě." Jako jedinou nevýhodu popisují suchý vnitřní vzduch v některých obdobích roku, který je potřeba uměle vlhčit. S tím mohou pomoct květiny v interiéru a zejména snížení objemu měněného vzduchu v zimě podle koncentrace CO2.
Nadšení uživatelé dřevostavby s vodním světem
Majitelé do budoucna koketují s myšlenkou pořízení bateriového úložiště, protože zisky z fotovoltaických panelů zatím pouští pouze do sítě. I tak je ale nízká spotřeba celého domu (po zdražení 31 500 Kč/rok), jehož jediným zdrojem je elektřina, překvapila. Pomalu zvelebují zahradu, sázejí jeden bambus za druhým a od loňského roku si plnými doušky užívají dokončeného zahradního koupacího jezírka.
„Cena jezírka na klíč od zvoleného subdodavatele nám vyrazila dech, takže jsme se ho rozhodli vyřešit svépomocí, ten dělal to, ten zas ono. Ale musím říct, že to za to fakt stálo. Dneska ráno stál syn na terase, rozhlédl se a řekl mi, že se mu moc líbí, jak bydlíme. A není to jen jeho názor – když nepočítám nás, nadšené uživatele, skoro každá návštěva nám potvrzuje, že dům působí neskutečně příjemným a energickým dojmem," uzavírá Zora.
A stavitel Jarda ji doplňuje: „To je těmi materiály. Hlavně dřevem. Když vezmu v potaz právě i tu dřevovláknitou izolaci, je tu v přepočtu zhruba 60 kubíků dřeva. U běžné montované dřevostavby to vychází tak na 10–20 m3." „Teď jsem si uvědomila," zamyslí se Zora, „že jste nám vážně položila jen tu první otázku." Protože když vstoupíte mezi skupinu lidí, ze které díky společně odvedené práci srší taková euforie, jako tomu bylo v Domě s vodním světem, stačí jenom naslouchat.
Více videí o inspirativních dřevostavbách, které jsme navštívili, najdete na našem oficiálním YouTube kanále.

Tato dřevostavba soutěží v anketě DŘEVOSTAVBA ROKU 2023
Pomozte nám zvolit nejhezčí dřevostavby! Tato originální a jedinečná dřevostavba se uchází o váš hlas v anketě Dřevostavba roku 2023 pod názvem "Randez-vous s jasanem". Hlasujte do 30.12. 2023 v tomto kole a získejte atraktivní ceny...
Hlasovat v anketě
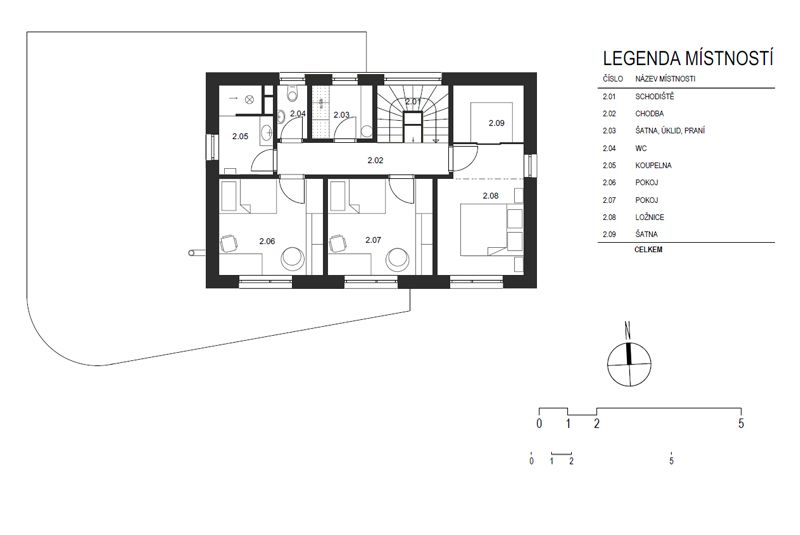
Technické parametry
- Typ domu: pasivní
- Zastavěná plocha: 172,6 m2
- Užitná plocha: 170,4 m2 (s garáží)
- Dispozice: 5+kk
- Konstrukční systém: masivní dřevěné panely DEKPANEL
- Teplo: elektrické podlahové vytápění
- Větrání: řízené větrání s rekuperací tepla
- Součinitel prostupu tepla stěnou: U = 0,133 W/m2.K
- Autor studie a projektu: 2016, ARCHCON atelier, s.r.o., www.archcon.cz
- Realizace: 2017, DŘEVOSTAVBY BISKUP, s. r. o., www.drevostavbybiskup.cz
AUTOR ČLÁNKU pro časopis DŘEVO&stavby: DAGMAR ČESKÁ
Vaše komentáře (0)Nejnovější články v kategorii “Návštěvy dřevostaveb”
-
Zrcadlová roubenka na soutoku
Majitel této roubenky – říkejme mu třeba Martin – měl jasný cíl: postavit svým dospělým dětem dům, kam by mohly o víkendech jezdit a být mu tak i s vnoučaty nablízku. A aby to…
-
Dřevěný domov v krajině rozlehlých luk
Tento příběh připomíná dokonalou pohádku o tom, kterak Kateřina a Jiří našli svůj vytoužený klid v podhůří Krkonoš. Jejich pozemek o rozloze dvaceti tisíc metrů čtverečních je…
-
Dávno splněný sen v podobě patrové dřevostavby na míru
Některé plány a nápady potřebují čas, aby mohly uzrát. Hluboko zapustit kořeny a trpělivě čekat na tu správnou dobu. Jako v tomto případě – poprvé totiž Milan na „svou"…
-
Dřevěná vila schoulená v náručí krajiny
Každý dům nevyhnutelně mění krajinu – jakým způsobem, to už záleží na jeho majitelích. Některé stavby přetvářejí okolí podle svého obrazu, jiné se naopak snaží splynout. A…





























Vytvořeno v xart.cz