Montovanou dřevostavbu poblíž Prahy si dostavěli svépomocně

Montovanou dřevostavbu poblíž Prahy si dostavěli svépomocně

Redakce | Pátek, 22. březen 2024 |

Přidat na Seznam.cz

Vysočina je v rámci České republiky specifický kraj. Vyšší nadmořská výška zajišťuje v zimě dostatek sněhu a nižší teploty, na podzim častou mlhu a déšť. Hodně členitá krajina je poměrně řídce osídlena a většina obyvatel žije v malých vesnicích a městečkách. Kdo se tu nenarodil, jen těžko si zvyká, ale lidem, kteří na Vysočině vyrostli, většinou přiroste k srdci a jen neradi ji opouštějí.

David strávil dětství a dospívání v malé vesnici poblíž Jihlavy. Vysočinu miluje. Má rád chladné počasí, spoustu sněhu v zimě i všudypřítomné kopce, ze kterých je nádherný výhled do okolní zvlněné krajiny. Když poznal svoji budoucí manželku Annu, která je z Prahy, bylo jeho přáním na Vysočině zůstat. Pořídili si tedy krásný velký byt v Jihlavě, ale záhy se ukázalo, že v kraji není pro jejich specializaci – art director a programátorka – dostatek pracovních nabídek. Odchod do Prahy se zdál nejlepším řešením, alespoň tedy po pracovní stránce.

S bydlením v malém bytě totiž spokojení nebyli. A tak téměř okamžitě po přestěhování začali hledat pozemek pro stavbu vlastního domu. Mladí manželé si vytyčili okruh 100 km od Prahy a jezdili se dívat na nabízené pozemky. Ten jejich současný je prý zaujal hned na první pohled. „Byl to předposlední pozemek, na který jsme se jeli podívat a okamžitě nám padl do oka svou podobností s Vysočinou. Samota u lesa, kolem kopce, nádherné výhledy do krajiny. Na hlavní silnici tehdy nejezdila žádná auta, byla uzavřená, takže tu byl absolutní klid," popisuje své první setkání s pozemkem David.

Nečekané problémy zdržovaly stavbu


Cílem Anny a Davida bylo hlavně bydlet rychle, nechtělo se jim totiž zbytečně platit drahý nájem za byt v Praze. Proto byla jasnou volbou dřevostavba, přestože se dřevostavbami neměli žádné předchozí zkušenosti. Vybrali si tedy montovaný dům bez základové desky, který měl stát velmi rychle. Nakonec se celý proces ale protáhl na více jak rok. Banka nechtěla na takový typ domu schválit hypotéku, navíc se ukázalo, že vybraná firma není otevřená jakýmkoliv změnám v dispozici zvoleného typového domu.

Designér David tak nakonec zakreslil sám představu domu do 3D modelu, podle kterého projektant nakreslil projekt. Když ale zahájili stavební řízení, objevil se další problém – vrt vody byl přesně na hranici pozemku, a aby ho mohli provozovat, museli by odkoupit část sousedního pole. Dohoda se zemědělci nebyla možná, a tak mladým manželům nezbylo než udělat vrt znovu.

Také hledání stavební firmy nebylo jednoduché: „Hledali jsme nakonec opravdu dlouho. Buď se nám nelíbilo jednání zástupců firmy, nebo nám nevyhovovalo jejich řešení. Vybraný dodavatel měl dobré reference a přesvědčil nás taky jejich přístup. Na základě jejich doporučení jsme část původních řešení upravovali. Některé návrhy se nám z počátku moc nezdály, protože byly i hodně odlišné od našich představ, ale teď musíme uznat, že za nimi jsou dlouholeté zkušenosti a také schopnost dívat se na věc očima budoucího uživatele. Vždy nám vše vysvětlili a také se hodně ptali. Nikdy jsme neměli pocit, že jsme k něčemu nuceni anebo že nemáme možnost volby," vypráví David.

DrevoaStavby.cz Montovaná dřevostavba na Vysočině DrevoaStavby.cz Montovaná dřevostavba na Vysočině

 

DrevoaStavby.cz Montovaná dřevostavba na Vysočině

 

Tvrdá práce na stavbě dřevostavby


Zdržení stavby mělo nepříjemný důsledek. Rozpočet manželé dělali v roce 2018, než ale začali stavět, přišel covid a ceny stavebních materiálů, práce i energií šly výrazně nahoru. Vzhledem k rozpočtu se s realizační firmou PENATUS dohodli pouze na hrubé stavbě, vše ostatní si pak už zajišťovali sami. Na vodu, elektriku a sádrokartonové příčky si našli dodavatele, dřevěné podlahy, stropy a kompletní koupelny ale už zvládli vlastníma rukama.

„Jezdili jsme sem každý večer po práci a pracovali třeba do dvou do noci. Všechno jsme studovali na internetu, najdete tam postupy v podstatě na cokoliv. Přesto bychom to už podruhé nedělali. Byla to opravdu těžká práce, byli jsme hrozně unavení a často jsme si ani nebyli jistí, že to děláme správně a že nevyrobíme nějakou fatální chybu."

DrevoaStavby.cz Montovaná dřevostavba na VysočiněDrevoaStavby.cz Montovaná dřevostavba na Vysočině

 

DrevoaStavby.cz Montovaná dřevostavba na Vysočině

 

"Svépomocné dokončení hrubé stavby sice ušetřilo náklady v rozpočtu, pro stavebníky to ale bylo velmi náročné období, do kterého by po zkušenostech už znovu nešli."


DrevoaStavby.cz Montovaná dřevostavba na Vysočině

 

Slovo dodavatelů


Byli unavení, částečně zbaveni iluzí, ale sympatičtí. Celkem rychle jsme se shodli, že by mělo smysl to zkusit. Původní návrh domu jsme v rámci optimalizace částečně upravovali, což zabralo nějaký čas a představovalo určité kompromisy a vývoj. Jakmile jsme si ale potvrdili řešení k realizaci, už se ze strany klienta nic neměnilo. To je na jednu stranu situace celkem neobvyklá, pro průběh stavby však blahodárná.

Anna s Davidem si značnou část stavby dodávali sami, takže bylo třeba celý proces jednak vůbec dát dohromady a vymyslet, pak zorganizovat a nakonec realizovat. Bylo to v době covidové, tedy zvláštní a neklidné, ale ve srovnání se současností ještě v relativně dobrých časech.

Nepřísluší nám soudit naše působení a naši práci, můžemeli však hodnotit přístup Anny a Davida a také jak dopadly části, které si dodávali již ve své režii, je to hodnocení velice příznivé. Děkujeme.

Bc. Tomáš Kukla

Bc. Tomáš Kukla
PENATUS s.r.o.

 
Ing. Martin Růžička

Ing. Martin Růžička
PENATUS s.r.o.

 

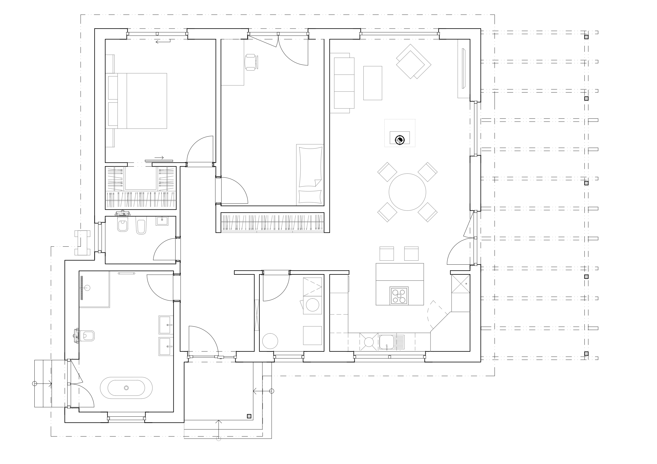
Koupelna s výhledy na okolní kopce


Přízemní dřevostavba má jednoduchý půdorys. Obývacímu pokoji propojenému s menší kuchyní a jídelnou dominuje obrovská dřevěná knihovna. Ta byla Anniným velkým snem a její zhotovení byl opravdový oříšek. Žádný truhlář ji nechtěl vyrobit, protože se bál, že těžká vysoká knihovna nebude dostatečně stabilní a do montovaných stěn ji nebylo bez předchozí přípravy možné připevnit. Nakonec se ale podařilo sehnat šikovného truhláře z Vysočiny, který si s řešením poradit dokázal a knihovnu z masivu vyrobil i nainstaloval.

Davidovým snem byla zase prostorná koupelna s vanou. A nutno říct, že koupelna je opravdu impozantní. Krásný velký sprchový kout pro Annu, vana s výhledem na okolní kopce pro Davida. „Já si vždycky přál vanu, manželka zase sprchový kout. Takže máme oboje. Chtěli jsme světlou, prostornou koupelnu, do které dáme spoustu kytek a z vany se budeme moct dívat do okolí," říká David.

Kromě koupelny byla pro manžele důležitá i pracovna. Oba pracují často z domova, potřebovali tedy hned dvě pohodlná pracovní místa. Místnost slouží zároveň i jako pokoj pro hosty, a to je vlastně jediná věc, kterou by po zkušenostech udělali jinak – pořídili by si ještě jeden menší pokoj, protože když přijede návštěva, není možné pracovnu používat.

DrevoaStavby.cz Montovaná dřevostavba na VysočiněDrevoaStavby.cz Montovaná dřevostavba na Vysočině

 

DrevoaStavby.cz Montovaná dřevostavba na Vysočině DrevoaStavby.cz Montovaná dřevostavba na Vysočině

 

Spousta práce kolem dřevostavby


Mladý pár má s domem ještě velké plány. Časem kolem něj vyroste velká dřevěná terasa, z jedné strany zastřešená, z druhé otevřená směrem k lesu. Na terasu bude navazovat přírodní koupací jezírko a velká skalka. Postupně kolem domu vznikne venkovská zahrada z trvalek a keřů, která bude přirozeně navazovat na okolní louky. Ve spodní části pozemku přibude ještě multifunkční stavba, která bude propojovat dílnu, skladiště různých věcí a detašovanou pracovnu. Vyřeší se tak nejen problém s chybějícím pokojem, ale přibydou další úložné prostory, kterých není nikdy dost, a také parkovací místo pro Davidovu motorku.

DrevoaStavby.cz Montovaná dřevostavba na VysočiněDrevoaStavby.cz Montovaná dřevostavba na Vysočině

 
 

drevostavba-roku-ico

Tato dřevostavba soutěží v anketě DŘEVOSTAVBA ROKU 2024

Pomozte nám zvolit nejhezčí dřevostavby! Tato dřevostavba se uchází o váš hlas v anketě Dřevostavba roku 2024 pod názvem "Vysočina poblíž Prahy". Hlasujte do 26.3. 2024 v tomto kole a získejte atraktivní ceny...

Hlasovat v anketě

 

Technické parametry


  • Typ domu: nízkoenergetický
  • Zastavěná plocha: 151 m2
  • Užitná plocha: 123 m2
  • Konstrukční systém: Two by Four, difuzně otevřená skladba
  • Teplo: tepelné čerpadlo vzduch-voda
  • Větrání: přirozené okny
  • Součinitel prostupu tepla stěnou: U = 0,182 W/m2K
  • Autor projektu: jh PROJEKT CEKOV s.r.o
  • Technické řešení a montážní dokumentace: Richard Vaněk, PENATUS s.r.o.
  • Realizace: 2020, PENATUS s.r.o., www.penatus.cz

DrevoaStavby.cz Montovaná dřevostavba na Vysočině půdorys

 

Autor článku: Eva Zupančič pro časopis DŘEVO&stavby


DaS 1 24

Tento článek vyšel v časopisu DŘEVO&stavby 1/2024

Objednejte si krásně vonící výtisk časopisu s kvalitními fotografiemi pouze za 99 Kč

koupit časopis

 

DaS 1-2024
Vaše komentáře (0)

Líbil se Vám článek?

Nejnovější články v kategorii “Návštěvy dřevostaveb”

  • Zrcadlová roubenka na soutoku

    Zrcadlová roubenka na soutoku

    Majitel této roubenky – říkejme mu třeba Martin – měl jasný cíl: postavit svým dospělým dětem dům, kam by mohly o víkendech jezdit a být mu tak i s vnoučaty nablízku. A aby to…

  • Dřevěný domov v krajině rozlehlých luk

    Dřevěný domov v krajině rozlehlých luk

    Tento příběh připomíná dokonalou pohádku o tom, kterak Kateřina a Jiří našli svůj vytoužený klid v podhůří Krkonoš. Jejich pozemek o rozloze dvaceti tisíc metrů čtverečních je…

  • Dávno splněný sen v podobě patrové dřevostavby na míru

    Dávno splněný sen v podobě patrové dřevostavby na míru

    Některé plány a nápady potřebují čas, aby mohly uzrát. Hluboko zapustit kořeny a trpělivě čekat na tu správnou dobu. Jako v tomto případě – poprvé totiž Milan na „svou"…

  • Dřevěná vila schoulená v náručí krajiny

    Dřevěná vila schoulená v náručí krajiny

    Každý dům nevyhnutelně mění krajinu – jakým způsobem, to už záleží na jeho majitelích. Některé stavby přetvářejí okolí podle svého obrazu, jiné se naopak snaží splynout. A…

Více článků »

Nejoblíbenější projekty dřevostaveb

Zobrazit celý katalog »

Akce / DřevoStavby

Zobrazit kalendář »

Proč jste na portále DŘEVO&stavby?

gotop