Redakce | Úterý, 01. duben 2025 |
Se sympatickým, nesmírně harmonicky působícím manželským párem, Alešem a Jarmilou, sedím na zápraží jejich nové poloroubenky a kochám se přímo pohádkovým výhledem na šumavské hvozdy. S Alešem sdílíme dřevěnou lavici pokrytou hebkou ovčí kůží, zatímco Jarmila, která nám oběma přinesla hrnek výborné kávy, se pohodlně usadila na schody vedle vyřezávané dřevěné sochy sovy. Nastavuji tvář hřejivým ranním paprskům slunce a tiše naslouchám jejich vyprávění. Vzájemně se láskyplně a místy i pobaveně doplňují, ale nepřerušují. Ze všech koutů tu na mě dýchá pohoda a já už teď vím, že se mi z toho ráje nebude chtít odjíždět.
Jarmila: „Od mládí jsme s manželem milovali Šumavu, jezdili jsme sem za příbuznými i pod stan. A tak, když jsme se vzali, postavili jsme si chatu u Vlachova Březí. Víte, manžel má rád výzvy a rád si je plní. Proto jsme za čas chatu prodali a postavili si dům ve vesnici u Prahy, odkud manžel pochází. Pořád nás to sem ale táhlo, a tak nám známí pronajali patro v jejich nemovitosti nedaleko odtud. Manžel ale samozřejmě mluvil o tom, jak by bylo hezké mít tu něco svého. Tady u silnice byla tenkrát cedule, že se tu bude stavět apartmánový dům. Tak jsme si jeden apartmán v něm koupili, ale jemu to zkrátka tak úplně nestačilo."
Aleš: „Tenkrát jsme si ještě mysleli, že to bude konečná. Proto jsme ty apartmány koupili dva, spojili je a vymazlili. Vybrali jsme si takové umístění, kde se celý den točilo sluníčko a bylo nám tam docela dobře. Jenže přijdete z kola nebo z lyží a co budete dělat? Pustíte si televizi? Já jsem měl vždycky v hlavě spíš představu chalupy. Byly tady nějaké nabídky na koupi, ale dole ve vsi, bez výhledu. A pak jsme objevili tyhle pozemky. Jedna žena ze Saudské Arábie je kdysi koupila jako investici a nechala je i zasíťovat. Říkal jsem si, že to zkusím, a napsal srdceryvný dopis na firmu, která ji zastupovala. Že kdyby to náhodou chtěla prodat, máme zájem. Nedělo se nic, asi až za tři čtvrtě roku mě v kanceláři čekal dopis, že paní souhlasí."
Napoprvé jsme se nedohodli
Aleš: „Takže jsme koupili pozemek a hledali dodavatele stavby. Od začátku jsme chtěli poloroubenku. Našli jsme jednoho dodavatele, který je stavěl, a dokonce v jedné z nich strávili noc. Jeho projektant pak naše představy naprojektoval a vyběhal stavební povolení. Ale nakonec jsme se nedohodli na podmínkách. Byl totiž schopen nám dát cenu jen na hrubou stavbu a dál že se uvidí."
Jarmila: „Bylo to v covidu, ceny nejisté. A navíc nám nebyl schopen slíbit ani termín. Prý že by to bylo třeba až za dva roky, měl toho tenkrát moc."
Aleš: „Tak jsme hledali dál, ale všichni měli za covidu hodně práce. Pak jsem v hospodě zaslechl jméno firmy z Tábora, ale s tím, že staví jenom sruby a snad někde na Slovensku. Nicméně jsem tam zavolal a setkal se s velmi vstřícným přístupem, takže jsme se vydali za majitelem. Dal nám kalkulaci na celek, a i když se v průběhu některý materiál zdražil, domluvili jsme se. Na podzim 2021 udělali základovou desku a další rok postavili tuhle poloroubenku podle původního projektu."
Jarmila: „Dělaly se trošku úpravy, ale nebyl to problém. Byli všichni výborní a opravdu ochotní."
Na klíč a bez problémů
Aleš: „Postarali se o všechno, my jsme si nechali udělat jenom terénní úpravy a zahradu – tady se dělala velká modelace terénu, pak venkovní krb a dva stometrové vrty na topení. Zbytek zařizovala realizační firma."
Jarmila: „Nebo nám dali tipy, kam se máme jet podívat. A měli na to čuch – všechno, co nám doporučili, se nám líbilo. Tohle je firma, kterou my od A do Z chválíme. Po stránce jednání i vstřícnosti, nikde nebyl žádný zádrhel."
Aleš: „To víte, že jsem tady běhal a honil stavbyvedoucího, kde jsou chlapi, ale to je klasika. Zrovna včera jsme tady měli známého, který má stavební firmu. Obcházel to a říkal, že takhle dobře a kvalitně provedenou stavbu baráku už dlouho neviděl. Ukazoval mi nějaké detaily, o kterých jsem ani nevěděl. Utvrdili mě v tom, že je to fakt udělané moc dobře. Jsme naprosto spokojení."
Jarmila: „Pak přišel tvrdší oříšek, zařizování. Měli jsme pořád ten apartmán a potřebovali ho prodat, jenže ono to v té nejisté době nešlo. Aspoň jsme ale mohli kousek odtud být a zařizovat. A jakmile to šlo, sebrali jsme peřinu a přestěhovali se sem."
Aleš: „... A za měsíc se apartmán prodal. Všechno jsme tam nechali, vzali dvě tašky a bylo vystaráno."
Jarmila: „To bylo ideální. Pak se teda dům zařídil. Na něco se čekalo, třeba sedačka trvala dlouho. Až teď od jara to skutečně slouží kompletně."
SLOVO DODAVATELE
Stavba tohoto krásného domova byla pro nás výjimečnou výzvou a zároveň poctou. Když jsme poprvé poznali Aleše a Jarmilu, jejich vášeň pro Šumavu a jasná představa o ideálním bydlení nás inspirovaly k maximálnímu úsilí. Společně jsme vytvořili poloroubenku, která v sobě spojuje tradiční ráz s moderními technologiemi, čímž dokonale odpovídá jejich přáním i potřebám. Dům je díky použití sendvičových panelů namísto zděné části kompaktní a skvěle izolovaný, a přesto neztratil nic z kouzla poloroubenky.

Ing. David Javorský
TABOR sruby-roubenky
Teplo domova i vítaný chlad
Aleš: „Podlahové topení máme všude, dole i nahoře. Není potřeba topit krbem, ale není problém, aby i bez rozvodů vytopil půlku chalupy. Má automatické otvírání a zavírání přívodu vzduchu, takže se musím plácat přes ruce, abych se v tom nešťoural. Ty dva vrty jsou pro čerpadlo země-voda, technologie je v technické místnosti a ohřívá vodu do podlahovky. Je tady sice vodovodní řad, ale my máme svoji studnu a kvalitu skoro kojenecké vody."
Jarmila: „Bere ji to v 55 metrech a je fakt studená, což manžel využívá na ranní sprchu."
Aleš: „Ten barák je celý i velmi dobře izolovaný. Dodavatelská firma nás přesvědčila, abychom to, co vypadá jako zděné, udělali ze sendvičových panelů. Že by to jinak pracovalo, když to má jiné termoizolační vlastnosti. Nakonec se tím ještě ušetřilo místo, protože stěny nejsou tak silné, jak by musela být cihla. Ale řeknu vám, na ty chlapy byla radost se dívat. Už jsme pár věcí stavěli a můžeme to posoudit – tenhle přístup byl ten pravý řemeslnický. Měli jsme i skvělý stavební dozor tady v místě, který nad nimi stál a oni ho respektovali."
Jarmila: „Taky je všude doporučujeme – kamarádka už s nimi bude stavět."
Aleš: „V průběhu stavby jsem v akci sehnal infrasaunu, a protože technická místnost byla zbytečně velká, nechal jsem si do ní přidat sprchový kout a saunu zabudovat. Firma mi opět ochotně vyhověla."
Jarmila: „Máme sice čtyři WC, dvě koupelny a ten sprchový kout, ale zázemí se hodí, jezdí za námi mladí..."
Těžko najít chybu
Aleš: „Jediná malinká minela byla, že moc předsadili okapy a ty se někde sněhem trochu ohnuly. Domluvili jsme se tak, že já si koupím na střechu sněhové zábrany a oni mi je zdarma namontují. Opět jsme se v pohodě domluvili, postavili se k tomu skvěle."
Jarmila: „Chalupa stojí dva roky a nebyl žádný problém."
Aleš: „Jeden ano, ale ne jejich. Když nám dodali kuchyň, chyběla zpětná klapka k digestoři. Prý jsme si ji měli objednat extra. Museli jsme tam dávat prkýnko, aby nám dovnitř netáhla zima. Když pak klapku přivezli, zase se nevešla do připraveného otvoru, ale to jsou fakt jenom takové perličky. Nenapadá mě nic, co bychom tady udělali jinak. Fakt ne."
Konec výzev?
Jarmila: „Já jsem člověk, který má trochu problém se změnami, a jak si na něco zvyknu, nechce se mi zase jinam."
Aleš: „To říkala i u té chaty, že tam jezdit nebude, a pak by tam byla pořád."
Jarmila: „I tady už jsem si zvykla a říkám manželovi, že udělal dobře, že jsem tady šťastná. Věřím, že i jemu už to bude stačit. Říká se, že sny jsou od toho, aby se plnily, a já věřím, že tohle byl skutečně manželův sen třeba od nějakých 23 let a on si ho splnil. Říkám si, že musí být vnitřně tak strašně šťastný, když ho vidím, třeba jak tady sedí na té lavici a říkám: ‚To by mě zajímalo, co se ti honí hlavou.' A on tak kouká a říká: ‚Tady je krásně.'
Aleš: „Ehm, paní sedí na lavici a já tady jezdím se sekačkou..."
Jarmila: „Já ho střídám... Stejně jako střídáme sezení – jedno máme na východě a druhé na západě. Už máme takový rituál – ráno pijeme kafíčko tady, pak si sedneme na druhé straně, kam jde sluníčko, k večeru si dáme skleničku a posadíme se zase tady a jen tak si mlčíme a koukáme."
Od obojího to nejlepší
Aleš: „V té vesnici u Prahy máme krásný dům – bungalov, pozemek 2,5 tisíce metrů, obrovské koupací jezírko... Těžko bychom se s tím loučili."
Jarmila: „Jsme tam zvyklí a je nám tam dobře. Za 20 minut jsme v Praze, odkud pocházím. Ale tady jsme vsazeni v přírodě. Když sem přijedeme, cítím takovou volnost, vzdušnost. Strašně se mi líbí možnost to střídat. Od čtvrtka do pondělka – a občas celý týden – tady a zbytek tam. Máme tu za ta léta hodně známých a stále spoustu nenavštívených míst. Jsou tu nádherné podzimy – ideální období pro Krále Šumavy, kdy tu není ani noha. Zapálíme si v krbu a nic nám neschází."
Aleš: „Podlahové topení tu funguje perfektně, ale stejně si v krbu zapálíme, pro tu atmosféru. Dělá nám to dobře. Je jedno, jestli je venku sníh, nebo prší, opravdu je tu hezké každé roční období."
Jarmila: „Šumava je magická a má spoustu zajímavé historie. Spí se nám tu dobře, jsou tu nádherně vidět hvězdy, nebe doslova poseté démanty. Grilujeme, jezdíme na výlety na kole, zvířátka nám chodí až k chalupě. Má to tady neuvěřitelný genius loci. Jezdím s kamarádkami v září do Krkonoš, ale takové to tam není. Šumava je o srdci."
SLOVO REDAKTORKY
Každá redakční návštěva je jiná. Vždy záleží na více faktorech a tady se setkaly samé pozitivní – nádherné počasí, kouzelné místo, chaloupka jak z pohádky, a především neuvěřitelně milí a příjemní majitelé. Seveřané by nejspíš použili výraz „hygge", z angličtiny se nabízí slovo „cosy". Já jsem se celou cestu domů jen mlčky a okouzleně usmívala. Takhle, právě takhle bych si jednou představovala trávit podzim svého života. Že bych se od Aleše nakazila sklony k životním výzvám?

DAGMAR DIGMA ČECHOVÁ
redaktorka časopisu DŘEVO&stavby, sruby&ROUBENKY

Tato dřevostavba soutěží v anketě DŘEVOSTAVBA ROKU 2025
Pomozte nám zvolit nejhezčí dřevostavby! Tato poloroubenka s kouzelným výhledem se uchází o váš hlas v anketě Dřevostavba roku 2025 pod názvem "Naplněný sen s výhledem na šumavské hvozdy". Hlasujte do 14.4. 2025 v tomto kole a získejte atraktivní ceny...
Hlasovat v anketě
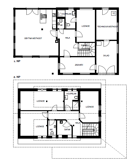
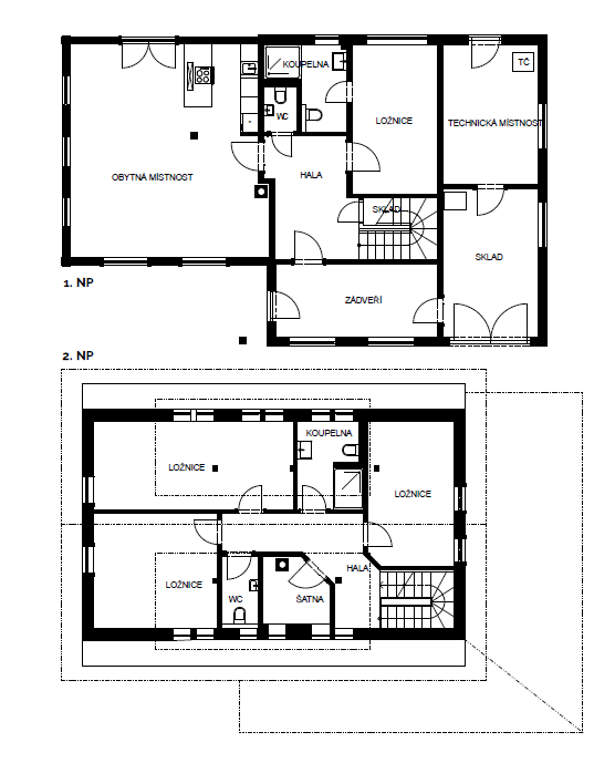
Technické informace
- Zastavěná plocha: 128 m2
- Užitná plocha: 189 m2
- Dispozice: 5 + kk
- Konstrukční systém: obvodové masivní stěny z lepené finské borovice v kombinaci s obvodovými stěnami difuzně otevřeného systému NEMA EKO, vnitřní sendvičové příčky NEMA IN vč. nosných
- Ošetření stěn: v exteriéru lazura na dřevo Tikkurila ve třech vrstvách, v interiéru stěny ošetřené přírodním olejem a včelím voskem
- Střešní krytina: plechová krytina systému LINDAB
- Zdroj energie / teplo: hlavní zdroj: TČ země/voda – hlubinné vrty, doplňkový zdroj: akumulační obestavba krbové vložky Brunner s použitím velkoplošných kachlů z Kamnářství Bechyně, realizace Roman Hanuš, hoření je řízeno automatickou regulací.
- Větrání: přirozeně okny a dveřmi, doplňkově ventilátory (koupelny, WC)
- Podlahy: dlažby v obou podlažích
- Autor arch. návrhu: Ing. Arch Matěj Matyáš
- Projekt: TABOR sruby · roubenky
- Realizace: 2022–2023, TABOR sruby · roubenky, www.tabor-wood.cz

Tento článek vyšel v časopisu sruby&ROUBENKY 1/2025
Objednejte si krásně vonící výtisk časopisu s kvalitními fotografiemi pouze za 99 Kč
koupit časopis
AUTOR ČLÁNKU: DAGMAR DIGMA ČECHOVÁ pro časopis sruby&ROUBENKY
Vaše komentáře (0)Nejnovější články v kategorii “Návštěvy dřevostaveb”
-
Zrcadlová roubenka na soutoku
Majitel této roubenky – říkejme mu třeba Martin – měl jasný cíl: postavit svým dospělým dětem dům, kam by mohly o víkendech jezdit a být mu tak i s vnoučaty nablízku. A aby to…
-
Dřevěný domov v krajině rozlehlých luk
Tento příběh připomíná dokonalou pohádku o tom, kterak Kateřina a Jiří našli svůj vytoužený klid v podhůří Krkonoš. Jejich pozemek o rozloze dvaceti tisíc metrů čtverečních je…
-
Dávno splněný sen v podobě patrové dřevostavby na míru
Některé plány a nápady potřebují čas, aby mohly uzrát. Hluboko zapustit kořeny a trpělivě čekat na tu správnou dobu. Jako v tomto případě – poprvé totiž Milan na „svou"…
-
Dřevěná vila schoulená v náručí krajiny
Každý dům nevyhnutelně mění krajinu – jakým způsobem, to už záleží na jeho majitelích. Některé stavby přetvářejí okolí podle svého obrazu, jiné se naopak snaží splynout. A…


























Vytvořeno v xart.cz