Redakce | Úterý, 23. září 2025 |
Některá místa v sobě mají cosi výjimečného, co se nedá rozumově zhodnotit, ale je třeba to vnímat srdcem. Když Richard s Terezou podědili chatu po jejím dědečkovi, nebyli si zprvu jistí, jak ji budou využívat. Chtělo to správný čas, místo a nápad, aby sebrali odvahu a proměnili ji v něco zbrusu nového. A přestože (nebo právě proto), že se roubenka koupe ve stínu severního svahu, jejímu tichému šarmu nejde odolat.
Beskydy jsou kouzelný kraj. Na posledním úseku cesty se proplétám úzkými silničkami a zároveň se modlím, abych nepotkala žádné auto v protisměru. Přesto se těším, co si pro mě připravily tentokrát. Odpověď dostanu záhy. Dnes na mě čeká roubenka trůnící na hranici lesa, s terasou nabízející výhled na Radhošť, Pustevny a další beskydské vrcholy.
Jsem tu trochu s předstihem, a tak se na pár minut zastavím, abych se zaposlouchala do šumění stromů a plnými doušky nasála charakter stavby a jejího okolí. A spolu s tím ve mně neustále roste zvědavost, jaký příběh v sobě tohle místo asi ukrývá. Nemusím čekat dlouho, brzy mě přivítá Richard i s tradičním moravským frgálem, který je během chvilky rozkrájený na kuchyňském stole. Místností zavoní káva, a protože se venku rozprší, nemohu si představit lepší atmosféru pro dnešní povídání.
Nejdřív byla stará chata
Stačilo málo a žádná roubenka by nestála. Richardova manželka Tereza zdědila po dědečkovi starou chatu v Beskydech, kterou si před lety koupil na důchod. Prý tehdy nechtěl Beskydy ani severní svah, ale stačilo místo jednou navštívit, aby rychle změnil názor. A tak měla Tereza na chatu spoustu krásných vzpomínek, jenže stavba byla z konce 50. let a kromě drobných oprav zůstávala prakticky v původním stavu.
Nebyla do ní ani přivedená voda nebo zhotovené hygienické zázemí. Vzhledem k tomu, že jako rodina nebydleli zrovna blízko, chtěl Richard chatu prodat. Tereza se jí ale právě pro nostalgii dětství nechtěla vzdát. Tím se manželé na nějakou dobu dostali do patové situace, ze které jim cestu neplánovaně ukázal kamarád.
„Jeli jsme do Tyrolska na lyže a on mi představil svůj plán. Chtěl v Jeseníkách stavět roubenky k pronájmu a popisoval mi, jak to bude skvělé," vzpomíná Richard. Když nad tím sám začal přemýšlet, stará chata se přestávala jevit jako zbytečnost, ale naopak jako budoucí investice. „Doma mi manželka řekla, že jsem se zbláznil," směje se. „Ale na druhou stranu byla nadšená a souhlasila, že jestli si na to věřím, tak do toho půjdeme."
Podobně hladce probíhal i výběr dodavatele. Stačilo správně mířené doporučení. „Soused přišel s tím, že dělal web pro fajn lidi z Brna, co dělají pěkné chalupy," pokračuje. „Oslovil jsem je a na první schůzce ukázal fotky naší chaty. Dodavateli se nápad líbil, tak jsme si plácli."
Bez zádrhelů by to nešlo
První skutečné problémy nastaly během kontaktů s úřady při vyřizování stavebního povolení. Původní chata se totiž nacházela uprostřed CHKO a novou stavbu bylo možné zhotovit pouze na jejích základech. Toto nařízení je na výsledku dodnes patrné, chalupě zůstal „zub", který je pozůstatkem předchozí konstrukce. Jak ale Richard přiznává, záměrem postavit roubenku byli úředníci naopak velmi nadšeni.
Bylo ovšem zapotřebí vyřešit spoustu dalších náležitostí, aby mohla stavba proběhnout podle plánu. Přestože měla roubenka zachovat půdorys původní chaty, muselo se kvůli požadavkům CHKO vyřídit odnětí pozemku plnění funkcí lesa. Nový plán také vyžadoval vyřešení přívodu vody, což zahrnovalo vyvrtání studny, a kompletní zhotovení odpadních cest.
Výrazným usnadněním celého projektu se ukázaly být dobré vztahy se sousedy. „Byli jsme tu vlastně už trochu místní, protože pozemek zůstal v rodině, a tak nám fandili," usmívá se Richard. „Děda našich sousedů pomáhal postavit původní chatu a moc se mu líbila představa, že místo konečně znovu ožije a morálně i technicky zastaralou stavbu nahradí kvalitně zhotovená současná."
Podporu projevili dokonce i tím, že sami přiložili ruce k dílu. Pomohli totiž zbourat starou chatu, postavit nový sklep a základovou desku, a na dodavatele tak zůstala až samotná roubenka. „Výhodou bylo, že měli všechny potřebné stroje. Kdykoliv jsme něco potřebovali posunout bagrem, jen přejeli louku a vyřešili to," pochvaluje si. „Také žulová dlažba, co je před chalupou, byla rok složená na jejich pozemku, než se mohla přepravit sem."

obr.: U žádné chalupy nesmí chybět pořádné letní posezení. Majitelé si přáli, aby ladilo s charakterem roubenky, a tak si nechali vyrobit srubový nábytek, který pohodlně pojme všechny návštěvníky. Co by se na první pohled mohlo zdát jako koupací sud, je ve skutečnosti důmyslně schované okruží studny. „Už několik hostů se mě ptalo, jak se ten sud otevírá,“ směje se Richard. Foto: Martin Zeman
Ten správný vzhled roubenky
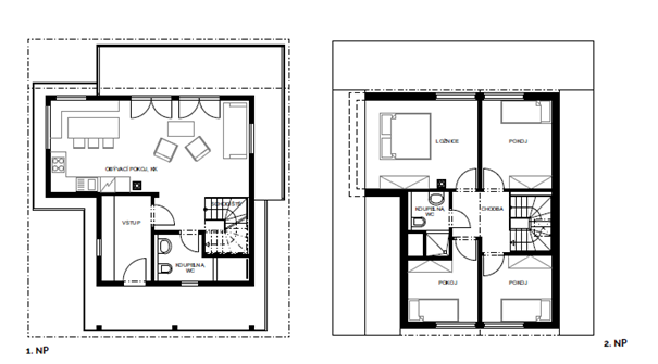
Richard už od začátku věděl, že si na sebe nová chalupa bude muset vydělat pronájmem, a tak měl poměrně jasnou představu o jejím vnitřním rozložení. „Chtěl jsem čtyři samostatné pokoje a koupelnu se záchodem v přízemí i v patře. Plus mi šlo o maximální využití výhledu na Beskydy, tak jsem žádal terasu," popisuje. Architekt následně přišel se dvěma návrhy.
První se nesl v duchu tradičních roubenek, což také znamenalo malá okna. „Přišlo mi jako strašná škoda tak nádherný výhled tímto způsobem omezit, proto jsme rovnou zvolili ten druhý, modernější, s výraznějším otevřením do krajiny," vzpomíná. „A dále jsme chtěli, aby styl chalupy odpovídal době, ve které byla postavena." Výsledný vzhled stavby přesto zapadá do místního koloritu, aniž by významněji vystupoval do popředí a strhával na sebe pozornost.
Zvolená podoba ale nakonec v průběhu času prošla ještě několika změnami. Jednou byl tvar střechy, který původně obsahoval vikýř. Znamenalo by to ale náročnější a dražší realizaci s vyššími nároky na údržbu, tak od tohoto řešení majitel nakonec upustil. Výsledek byl proto zjednodušen na klasickou sedlovou střechu a Richard s odstupem uznává, že mu vikýř nechybí. Jako velké plus bere fakt, že se změna nijak nepodepsala na celkovém vzhledu roubenky. „Stále má šmrnc," dodává.

obr.: Z důvodu umístění stavby v CHKO musela nová roubenka nekompromisně respektovat půdorys té původní, i když to značně svazovalo ruce při
tvorbě návrhu. Foto: Martin Zeman
Slovo dodavatele
Pan Ševčík nás oslovil s přáním postavit na místě původní chalupy v malebném prostředí Beskyd novou moderní roubenku. Díky úchvatnému výhledu do údolí jsme navrhli roubenku s prostornou zastřešenou terasou, která se stala ideálním místem pro odpočinek a posezení. Roubenka je určena k pronájmu, proto jsme kladli důraz na kvalitu zpracování a odolnost celé konstrukce.
V podkroví jsme chtěli nechat vyniknout naši tesařskou práci – použili jsme nadkrokevní izolaci a jako střešní krytinu zvolili falcovaný plech, který zajišťuje dlouhou životnost a minimální nároky na údržbu. Vše do sebe krásně zapadlo – jak po technické, tak po lidské stránce. Spolupráce s investorem byla bezproblémová a projekt nám přinesl i nečekaný osobní rozměr – jeden z našich kolegů na stavbě potkal svou životní partnerku, sestru investora.

Ing. Jan Mifka
JIMBER Roubené stavby, s.r.o.
Vnitřní nesnáze
Přestože je Richard (a jak přiznává, tak i jejich hosti) s výslednou podobou chalupy spokojen, po letech užívání se ukázalo několik prvků, které by dnes zvolil jinak. Jedním z nich je dřevěná podlaha v přízemí, tvořená smrkovými prkny. „Dodavatel nám doporučoval dlažbu, my jsme si ale nakonec prosadili dřevo. A dnes bychom to udělali jinak," vypráví. „Ošoupaná smrková podlaha je možná součástí kouzla tradičních roubenek, já bych dnes naopak sáhl po dřevu tvrdém, i když samozřejmě za jiné peníze. Nikomu to tu ale nevadí."

obr.: Velká okna ve spodním patře doplňuje francouzské okno vedoucí přímo na terasu. Díky tomu roubenka poskytuje krásný výhled na Beskydy za každého počasí. Foto: Martin Zeman

obr.: V zimě mají hosté možnost si zatopit v krbu a vytvořit tak příjemnou atmosféru. Majitelé pro tyto účely připravili videonávod, aby je mohl využít opravdu každý bez jakýchkoliv předchozích zkušeností. Foto: Martin Zeman
Jako výzva se ukázalo také omítnutí stěn v patře pro jeho prosvětlení. Nějakou dobu hledali ten pravý technologický postup, až sáhli po fasádní probarvené omítce, která zvládne dynamický pohyb dřevěných stěn a dokáže se mu pružně přizpůsobit.

Foto: Martin Zeman

obr.: Dvě koupelny s kompletním hygienickým zázemím považovali majitelé za nutnost. A to i za cenu dražší realizace v patře. Foto: Martin Zeman
Rychlý start
Stavba byla dokončena v listopadu 2020 a velmi rychle nabrala na popularitě. Jak Richard vzpomíná, lidi byli ochotni zaplatit i dvakrát tolik, aby mohli z města uniknout někam na samotu do přírody. „Jako nová neznámá chalupa jsme měli i na podzim přímo raketový start," pochvaluje si. Díky tomu roubenka rychle získala spoustu spokojených zákazníků, kteří se do ní moc rádi vracejí, aniž by Richard s Terezou museli využívat výraznější propagaci.
„Jsme na několika známých portálech, máme vlastní stránky, instagram a jsem aktivní ve skupinách na facebooku," vypočítává. „Spousta lidí sem ale přijede na doporučení někoho, kdo už tady byl, a to mi přijde skvělé." Přiznává, že je pro ně důležitá hlavně spokojenost návštěvníků, kteří se do roubenky budou rádi vracet. „Někteří tu byli už desetkrát a mají zamluvený další pobyt," usmívá se.

obr.: Aby se dalo na terase s klidem relaxovat, museli majitelé pořídit ultrazvukovou plašičku na ptáky. „Před rokem se nám sem pták nastěhoval a terasa podle toho také vypadala. Co ji máme, tak je klid, ani vosy se tu nepokouší stavět hnízda,“ pochvaluje si Richard. Foto: Martin Zeman

obr.: Široká houpačka s dřevěným roštem je určena k letnímu spaní pod hvězdným nebem. Jak ale Richard přiznává, zatím ji neměl šanci vyzkoušet.
Foto: Martin Zeman
A co dál?
Chalupa už sice několik let ubytovává spokojené hosty, Richard má ale ještě v plánu hned několik vylepšení. Jedním z nich je venkovní houpačka na spaní, která sice už stojí, ale ještě čeká na řádné otestování. V plánu je také postavit saunu a pořídit k ní ochlazovací sud. „Už máme hotové přípravy, jenom to musíme realizovat," vysvětluje. „A stejně jako u chalupy chceme využít náš krásný výhled na Radhošť a Pustevny."
Majitelé zároveň chtějí hostům usnadnit rozhodování, kam se v okolí podívat. Aktuálně proto připravují knížečku s nejrůznějšími tipy na výlet, doplněnou mapkou, QR kódy a možná i výzvami pro děti. „V zádveří jsme umístili výzvu na zdolávání místních vrcholů, do které se hosti celkem nadšeně zapojili a vážně jednotlivá místa navštěvují. Proto by se nám líbilo tu mít i nějaký ucelenější soupis, aby si ho mohli v klidu prolistovat," popisuje Richard.
Asi největším (a zároveň velmi nejistým) záměrem do budoucnosti je hledání dalšího kouzelného místa, kde by mohli postavit druhou roubenku a zúročit v ní všechny získané zkušenosti. „Kdyby se objevilo další krásné místo, klidně bychom do toho šli znova. Ale najít druhé takové není jednoduché. Víme, co chceme – a takových míst moc není," uzavírá Richard s úsměvem.

Foto: Martin Zeman

Tato dřevostavba soutěží v anketě DŘEVOSTAVBA ROKU 2025
Pomozte nám zvolit nejhezčí dřevostavby! Tato roubenka se uchází o váš hlas v anketě Dřevostavba roku 2025 pod názvem "Kouzlo severního svahu". Hlasujte do 6.10.2025 v tomto kole a získejte atraktivní ceny...
Hlasovat v anketě
Technické parametry
- Zastavěná plocha: 55 m2
- Užitná plocha: 105 m2
- Dispozice: 5 + kk
- Konstrukční systém: obvodové stěny lepený smrkový hranol BSH 240 mm, strop a vazba domu smrkové řezivo
- Venkovní a vnitřní nátěr: olej
- Střecha: nadkrokevní izolace, krytina falcovaný plech
- Vytápění: kamna na dřevo a sálavé topné panely
- Větrání: přirozeně okny
- Realizace: 2020, Jimber Roubené stavby s.r.o., www.jimber.cz
- Pronájem: https://www.naskalce.cz

Zdroj: JIMBER, Roubené stavby, s.r.o.

Tento článek vyšel v časopisu sruby&ROUBENKY 3/2025
Objednejte si krásně vonící výtisk časopisu s kvalitními fotografiemi pouze za 99 Kč
koupit časopis
AUTOR ČLÁNKU: KAROLÍNA SVĚCENÁ pro časopis sruby&ROUBENKY
Vaše komentáře (0)Nejnovější články v kategorii “Návštěvy dřevostaveb”
-
Zrcadlová roubenka na soutoku
Majitel této roubenky – říkejme mu třeba Martin – měl jasný cíl: postavit svým dospělým dětem dům, kam by mohly o víkendech jezdit a být mu tak i s vnoučaty nablízku. A aby to…
-
Dřevěný domov v krajině rozlehlých luk
Tento příběh připomíná dokonalou pohádku o tom, kterak Kateřina a Jiří našli svůj vytoužený klid v podhůří Krkonoš. Jejich pozemek o rozloze dvaceti tisíc metrů čtverečních je…
-
Dávno splněný sen v podobě patrové dřevostavby na míru
Některé plány a nápady potřebují čas, aby mohly uzrát. Hluboko zapustit kořeny a trpělivě čekat na tu správnou dobu. Jako v tomto případě – poprvé totiž Milan na „svou"…
-
Dřevěná vila schoulená v náručí krajiny
Každý dům nevyhnutelně mění krajinu – jakým způsobem, to už záleží na jeho majitelích. Některé stavby přetvářejí okolí podle svého obrazu, jiné se naopak snaží splynout. A…












Vytvořeno v xart.cz