Dagmar Šimonová | Pátek, 21. červen 2013 |
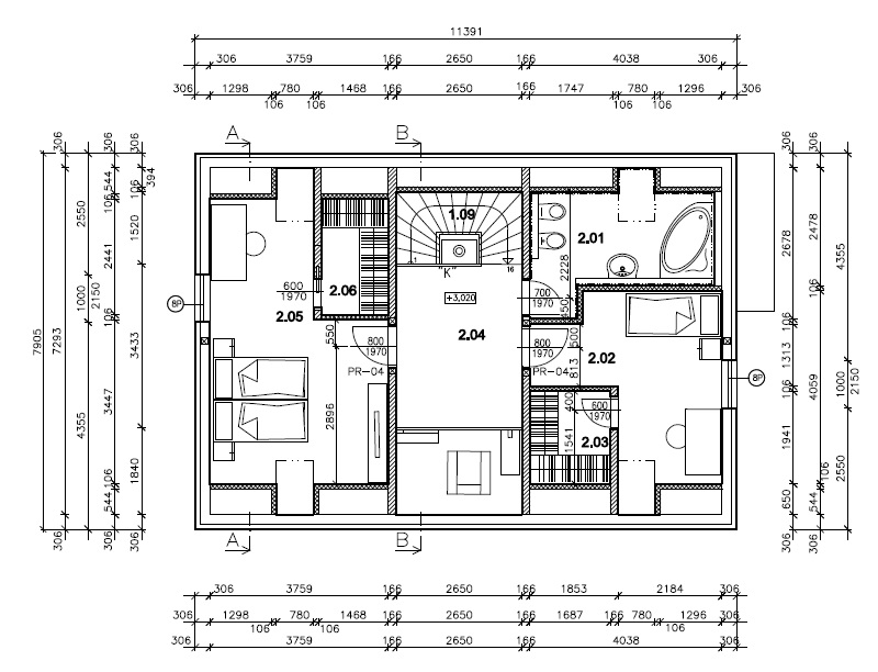
Společnost NATUR HOUSE započala v současné době přípravné práce na výstavbě vzorového domu FACE v Telči – Maršově. Opět se jedná o projekt společnosti G Servis CZ.
Face je dům pro středně velkou rodinu. Dům má moderní vzhled, který zajišťují minimální přesahy střešních konstrukcí. Přízemí a poschodí domu je kromě schodiště propojeno i s galerii umístěnou nad jídelním koutem. Jednou z předností tohoto domu je jeho dispozice, která umožňuje jeho stavbu na pozemcích s jižním vstupem.
Nejnovější články v kategorii “Zajímavosti”
-
Studio Schwestern: Dřevo umí stárnout hezky
Dětství ve firmě Profil Nábytek se na obou sestrách podepsalo v tom nejlepším slova smyslu. Tatínek František Čermák, jeden ze spoluzakladatelů, své děti do dílny vodil často, byť…
-
Rozebrat, oživit, použít znovu aneb recyklace dřevostaveb v praxi
V každém čísle přinášíme příběhy dřevostaveb, zaměřujeme se ale zejména na jejich plánování a výstavbu. Kvalitně postavený a dobře udržovaný dům ze dřeva pak může sloužit…
-
Budoucnost dřevostaveb očima odborníků
V čísle 6/25 časopisu DŘEVO&stavby jsme přinesli výpovědi 12 odborníků z lesnicko-dřevařského oboru. V posledním dílu našeho ročního seriálu o lese, dřevu a jeho zpracování nám…
-
Tadeáš Salaba: StaGram stavební gramotnost do škol zdarma
Na nedostatek kvalifikovaných pracovníků na různých technických i dalších odborných místech (nejen) v dřevostavitelství narážíme v rozhovorech s lidmi napříč oborem. Často si…













Vytvořeno v xart.cz