| Název: | Dům bez připomínek |
| Kategorie: | Projekty dřevostaveb - katalog dřevostaveb na klíč |
| Společnost: | ATREA s.r.o. / DOMY ATREA |
| Charakteristika domu: |
|
| Počet podlaží: | vícepodlažní |
| Generačnost: | jednogenerační |
| Konstrukční systém: |
|
| Ostatní parametry: |
|
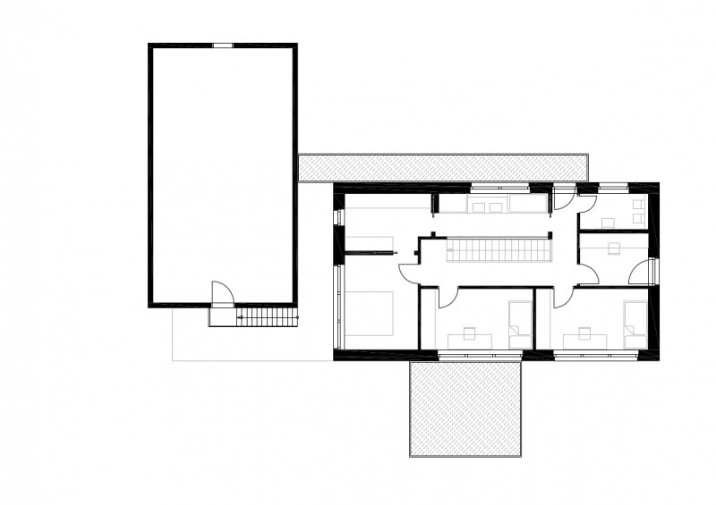
| Podlahová plocha (užitná): | 160,00 m² |
| Zastavěná plocha: | 102,00 m² |
| Dispozice: | 6+kk / 6+1 |
Aktuální ceny naleznete na stránkách, případně na dotaz u prezentované společnosti.
Moderní dřevostavba pro mladou, aktivní rodinu, citlivě zasazená do stávající zástavby historické obce – dnes okrajové městské části hlavního města Prahy. Hlavní prostornou a vzdušnou obytnou budovu doplňuje hospodářský objekt, který majitelé překřtili na „seník". V něm jsou umístěny sklady, dílna a dvě parkovací stání.
Výraznými akcenty obou stavení jsou fasáda z obkladů ze sibiřského modřínu a dřevěné sloupy podpírající terasu a zastřešení vstupu do domu, navržené v různých úhlech, jež domu dodávají dynamiku a eleganci.
Pro fungování domu jsou přednostně využívány lokální obnovitelné zdroje energie s inteligentním řízením provozu (fotovoltaika a tepelné čerpadlo) včetně možnosti nabíjení elektromobilu.
Více informací o tomto domě na www.domyatrea.cz.
|
Oznámkujte |
Oblíbené: 0 |
|
Chata v Jizerských horách - dřevostavba na klíč
3AE s.r.o.
Rodinný dům 307 - dřevostavba na klíč
MARTINICE GROUP s.r.o.
Užitná plocha: 130 m²
Dispozice: 5+kk / 5+1
Lesníkova roubenka
EKOPANELY SERVIS s.r.o.
Užitná plocha: 260 m²
Dispozice: 5+kk / 5+1
Rodinný dům Tábor - dřevostavba na klíč
ALFAHAUS s.r.o.
Užitná plocha: 137 m²
Dispozice: 4+kk / 4+1
Futura Freestyle - dřevostavba na klíč
Prodesi I Domesi
Užitná plocha: 107.8 m²
Dispozice: 3+kk / 3+1
Nízkoenergetická dřevostavba
EKOPANELY SERVIS s.r.o.
Užitná plocha: 115 m²
Dispozice: 4+kk / 4+1
Ekologická dřevostavba
EKOPANELY SERVIS s.r.o.
Užitná plocha: 128 m²
Dispozice: 3+kk / 3+1
EKONOMY MS 04 - dřevostavba na klíč
MS HAUS s.r.o.
Užitná plocha: 85 m²
Dispozice: 4+kk / 4+1
Dům se sloupy z douglasky
ARCHCON atelier, s.r.o., DŘEVOSTAVBY BISKUP, s.r.o.
Užitná plocha: 118.44 m²
Dispozice: 4+kk / 4+1
Dům venkovského stylu
EKOPANELY SERVIS s.r.o.
Užitná plocha: 153 m²
Dispozice: 4+kk / 4+1
Pavo 111 - dřevostavba na klíč
A T R I U M, s.r.o.
Užitná plocha: 111.03 m²
Dispozice: 5+kk / 5+1
RD Mnichovice
EKOPANELY SERVIS s.r.o.
Užitná plocha: 124.3 m²
Dispozice: 3+kk / 3+1
LUCERN 116 - dřevostavba na klíč
LUCERN dřevostavby s.r.o.
Užitná plocha: 103.1 m²
Dispozice: 4+kk / 4+1
Bennet
KANADSKÉ SRUBY TÁBOR, s.r.o.
Užitná plocha: 177 m²
Dispozice: 5+kk / 5+1
Optimal 02 - dřevostavba na klíč
PENATUS s.r.o.
Užitná plocha: 124 m²
Dispozice: 4+kk / 4+1
Proč jste na portále DŘEVO&stavby?
Copyright © 2026 Českobrodská 35, 190 12 Praha 9 - Dolní Počernice Kontakt
