| Název: | EKONOMY MS 12a - dřevostavba na klíč |
| Kategorie: | Projekty dřevostaveb - katalog dřevostaveb na klíč |
| Společnost: | MS HAUS s.r.o. |
| Charakteristika domu: |
|
| Počet podlaží: | jednopodlažní |
| Generačnost: | jednogenerační |
| Konstrukční systém: |
|
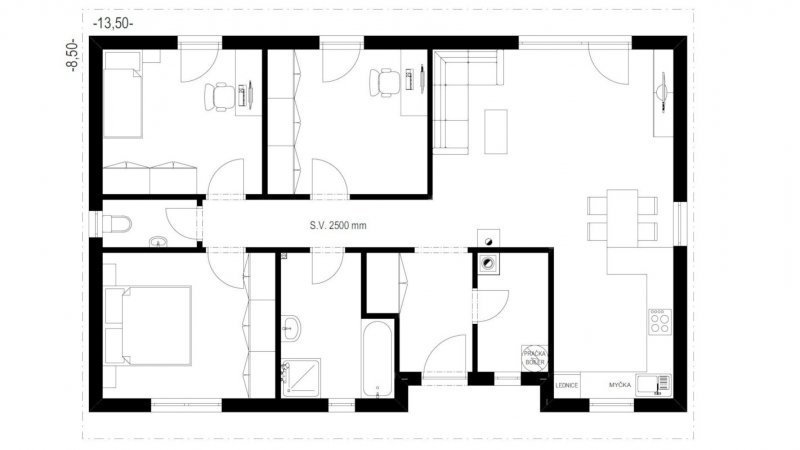
| Podlahová plocha (užitná): | 94,00 m² |
| Zastavěná plocha: | 115,00 m² |
| Dispozice: | 4+kk / 4+1 |
| Cena hrubé stavby (vč. DPH): | 1 854 605 Kč Spočítat financování |
| Cena dřevostavby na klíč (vč. DPH): | 3 924 237 Kč Spočítat financování |
| Cena včetně základové desky: | Ano |
Aktuální ceny naleznete na stránkách, případně na dotaz u prezentované společnosti.
Rodinný dům, který vznikl jako odpověď na poptávku klientů po příjemném, jednoduchém a především cenově zajímavém domku bez větších kompromisů. Vnitřní dispozice 4+1 je funkční a promyšlená, přesto nechává prostor Vaší individualitě a fantazii.
Stavba jednoduchého obdélníkového půdorysu a s klasickou sedlovou střechou malého sklonu je vhodná do jakéhokoli prostředí. Vyniká moderním prostorným interiérem a dostatkem světla v obytné centrální části a těží z této dispozice i v otázce provozních nákladů spojených s chladným obdobím roku. Dům lze totiž snadno vytápět lokálním ohřevem umístěným příhodně v pomyslném středu stavby.
Stavba se základní dispozicí, zahrnující centrální obytnou místnost s jídelní částí propojenou s kuchyňským koutem nebo uzavřenou kuchyní. I větší rodině bude jistě dostačovat prostor ve třech dalších pokojích v blízkosti členěné koupelny. WC má vchod ze vstupní chodby a je tak odděleno od obytné části domu. Komfortním prvkem je technická místnost, velice prakticky spojená se vstupním prostorem - tam lze vhodně umístit kočárek, jízdní kolo atd. Zmenšením technické místnosti na polovinu může vzniknout další funkční prostor, který lze využít připojením ke kuchyni jako spíž. Nebo byste raději místo obou místností měli kuchyň opravdu "královských rozměrů"? Vy sami jste architekty nového bydlení, konečné rozhodnutí je vždy jen na Vás.
|
Oznámkujte |
Oblíbené: 2 |
|
Rodinný dům Tábor - dřevostavba na klíč
ALFAHAUS s.r.o.
Užitná plocha: 137 m²
Dispozice: 4+kk / 4+1
Ekologická dřevostavba
EKOPANELY SERVIS s.r.o.
Užitná plocha: 128 m²
Dispozice: 3+kk / 3+1
Lesníkova roubenka
EKOPANELY SERVIS s.r.o.
Užitná plocha: 260 m²
Dispozice: 5+kk / 5+1
Optimal 02 - dřevostavba na klíč
PENATUS s.r.o.
Užitná plocha: 124 m²
Dispozice: 4+kk / 4+1
Pavo 111 - dřevostavba na klíč
A T R I U M, s.r.o.
Užitná plocha: 111.03 m²
Dispozice: 5+kk / 5+1
Chata v Jizerských horách - dřevostavba na klíč
3AE s.r.o.
Futura Freestyle - dřevostavba na klíč
Prodesi I Domesi
Užitná plocha: 107.8 m²
Dispozice: 3+kk / 3+1
EKONOMY MS 04 - dřevostavba na klíč
MS HAUS s.r.o.
Užitná plocha: 85 m²
Dispozice: 4+kk / 4+1
RD Mnichovice
EKOPANELY SERVIS s.r.o.
Užitná plocha: 124.3 m²
Dispozice: 3+kk / 3+1
Moderní roubenka v trampské osadě
OK PYRUS, s.r.o.
Užitná plocha: 117 m²
Rodinný dům 307 - dřevostavba na klíč
MARTINICE GROUP s.r.o.
Užitná plocha: 130 m²
Dispozice: 5+kk / 5+1
Dům venkovského stylu
EKOPANELY SERVIS s.r.o.
Užitná plocha: 153 m²
Dispozice: 4+kk / 4+1
Nízkoenergetická dřevostavba
EKOPANELY SERVIS s.r.o.
Užitná plocha: 115 m²
Dispozice: 4+kk / 4+1
LUCERN 116 - dřevostavba na klíč
LUCERN dřevostavby s.r.o.
Užitná plocha: 103.1 m²
Dispozice: 4+kk / 4+1
Dům se sloupy z douglasky
ARCHCON atelier, s.r.o., DŘEVOSTAVBY BISKUP, s.r.o.
Užitná plocha: 118.44 m²
Dispozice: 4+kk / 4+1
Proč jste na portále DŘEVO&stavby?
Copyright © 2026 Českobrodská 35, 190 12 Praha 9 - Dolní Počernice Kontakt
