| Název: | MS 110b - dřevostavba na klíč |
| Kategorie: | Projekty dřevostaveb - katalog dřevostaveb na klíč |
| Společnost: | MS HAUS s.r.o. |
| Charakteristika domu: |
|
| Počet podlaží: | vícepodlažní |
| Generačnost: | jednogenerační |
| Konstrukční systém: |
|
| Podlahová plocha (užitná): | 122,00 m² |
| Zastavěná plocha: | 77,00 m² |
| Tvar střechy: | sedlová |
| Dispozice: | 6+kk / 6+1 |
| Cena hrubé stavby (vč. DPH): | 2 216 740 Kč Spočítat financování |
| Cena dřevostavby na klíč (vč. DPH): | 4 333 200 Kč Spočítat financování |
| Cena včetně základové desky: | Ano |
Aktuální ceny naleznete na stránkách, případně na dotaz u prezentované společnosti.
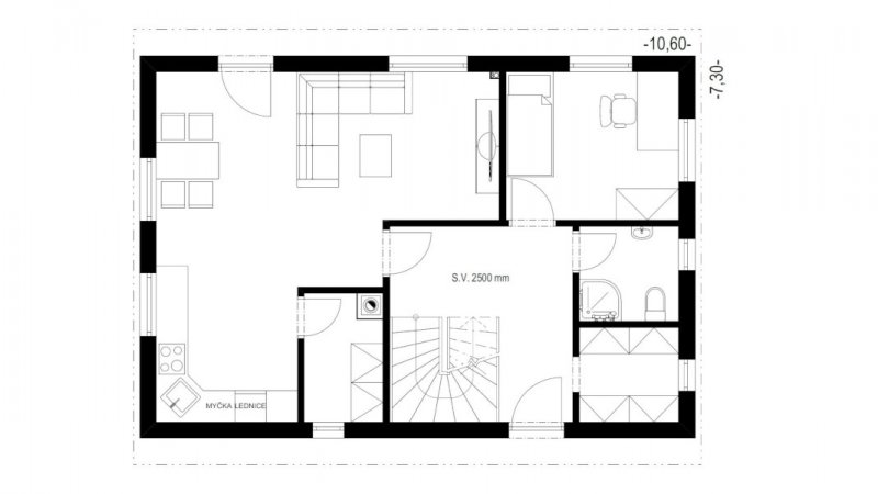
Dřevostavba na klíč MS 110 je nejprodávanějším domem z nabídky firmy MS HAUS s.r.o. Její úspěch je založen na velmi úsporném půdorysném řešení s maximálně využitelným podkrovím. Dispoziční řešení umožňuje variabilní osazení na pozemku ve vztahu ke světovým stranám. Přes poměrně malou zastavěnou plochu disponuje v přízemí velkým obývacím pokojem, kde skloubit funkce odpočinku, rodinné pohody v návaznosti s funkcemi vaření a stolování, kdy rodina může být pohromadě i s vařící matkou. V podkroví této řevostavby na klíč, kde mají všechny místnosti z části zkosený strop, jsou umístěny tři ložnice, odkládací prostor, šatna a velká koupelna. Minimální výška místnosti je 120 cm, což umožňuje plné využití podlahové plochy. Samozřejmostí je balkon a propojení obytných prostor přes terasu se zahradou, Dřevostavba je určena pro čtyř- až pětičlennou rodinu, ve variantě až šestičlennou, které zaručuje kvalitní bydlení za optimální cenu kolem třech milionů korun za dřevostavbu na klíč.
Konstrukční řešení dřevostavby na klíč je navrženo tak, aby umožňovalo širokou paletu změn. Kuchyň v přízemí je možno oddělit, na úkor velkého obývacího pokoje je možno zřídit pokoj pro hosty vč. malé koupelny. Dům je možno zpestřit arkýřem či zimní zahradou. Jeho funkčnost lze doplnit carportem či garáží. To jsou varianty, se kterými se můžete seznámit při prohlídce našeho vzorového domu.
I zde platí samozřejmost použití nejkvalitnějších materiálů, které splňují i ta nejnáročnější ekologická i hygienická hlediska. Jedná se o dřevostavbu s velmi nízkou energetickou náročností a splňuje kriteria stanovená dle německých předpisů pro nízkoenergetickou dřevostavbu.
Všechny dřevostavby společnosti MS Haus s.r.o. lze dispozičně dále upravovat dle požadavku klienta. Příkladem je posunutí stěn, posunutí, či přesunutí okna či dveří na jinou fasádu. Další zajímavou možností je změna sklonu nebo rovnou změna tvaru a typu střechy, či krytiny. Dále je možné zlepšení tepelně technických vlastností domů až na hodnoty doporučené pro pasivní domy. Změna druhu vytápění je také samozřejmostí!
|
Oznámkujte |
Oblíbené: 0 |
|
Ekologická dřevostavba
EKOPANELY SERVIS s.r.o.
Užitná plocha: 128 m²
Dispozice: 3+kk / 3+1
Chata v Jizerských horách - dřevostavba na klíč
3AE s.r.o.
Rodinný dům Tábor - dřevostavba na klíč
ALFAHAUS s.r.o.
Užitná plocha: 137 m²
Dispozice: 4+kk / 4+1
Rodinný dům 307 - dřevostavba na klíč
MARTINICE GROUP s.r.o.
Užitná plocha: 130 m²
Dispozice: 5+kk / 5+1
Dům se sloupy z douglasky
ARCHCON atelier, s.r.o., DŘEVOSTAVBY BISKUP, s.r.o.
Užitná plocha: 118.44 m²
Dispozice: 4+kk / 4+1
Lesníkova roubenka
EKOPANELY SERVIS s.r.o.
Užitná plocha: 260 m²
Dispozice: 5+kk / 5+1
Optimal 02 - dřevostavba na klíč
PENATUS s.r.o.
Užitná plocha: 124 m²
Dispozice: 4+kk / 4+1
LUCERN 116 - dřevostavba na klíč
LUCERN dřevostavby s.r.o.
Užitná plocha: 103.1 m²
Dispozice: 4+kk / 4+1
Dům venkovského stylu
EKOPANELY SERVIS s.r.o.
Užitná plocha: 153 m²
Dispozice: 4+kk / 4+1
Pavo 111 - dřevostavba na klíč
A T R I U M, s.r.o.
Užitná plocha: 111.03 m²
Dispozice: 5+kk / 5+1
Futura Freestyle - dřevostavba na klíč
Prodesi I Domesi
Užitná plocha: 107.8 m²
Dispozice: 3+kk / 3+1
RD Mnichovice
EKOPANELY SERVIS s.r.o.
Užitná plocha: 124.3 m²
Dispozice: 3+kk / 3+1
EKONOMY MS 04 - dřevostavba na klíč
MS HAUS s.r.o.
Užitná plocha: 85 m²
Dispozice: 4+kk / 4+1
Nízkoenergetická dřevostavba
EKOPANELY SERVIS s.r.o.
Užitná plocha: 115 m²
Dispozice: 4+kk / 4+1
Bennet
KANADSKÉ SRUBY TÁBOR, s.r.o.
Užitná plocha: 177 m²
Dispozice: 5+kk / 5+1
Proč jste na portále DŘEVO&stavby?
Copyright © 2026 Českobrodská 35, 190 12 Praha 9 - Dolní Počernice Kontakt
