RD Klokočná - dřevostavba na klíč

Název: RD Klokočná - dřevostavba na klíč
Kategorie: Projekty dřevostaveb - katalog dřevostaveb na klíč
Společnost: 3AE s.r.o.
Charakteristika domu:
  • samostatný
Počet podlaží: jednopodlažní
Generačnost: jednogenerační
Konstrukční systém:
  • vrstvené dřevo
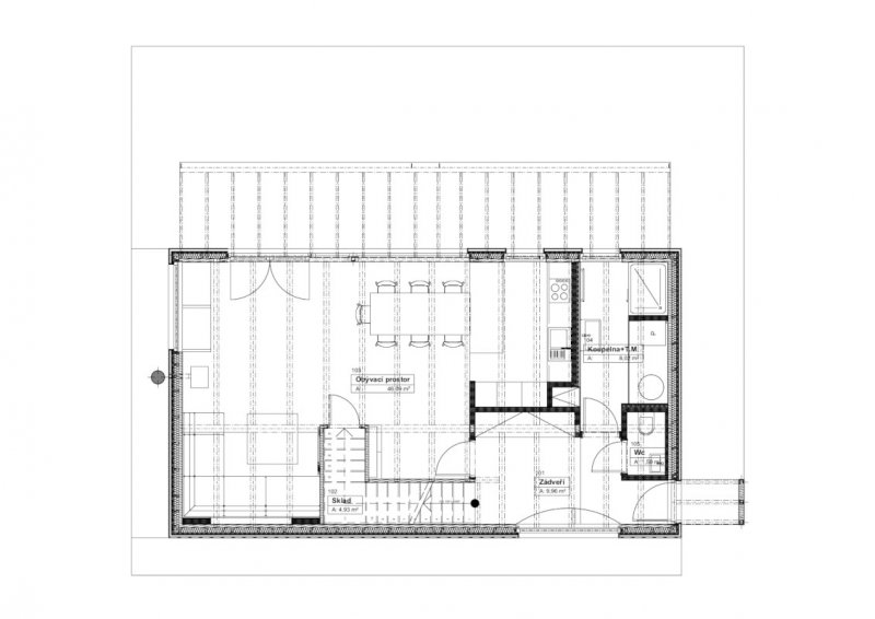
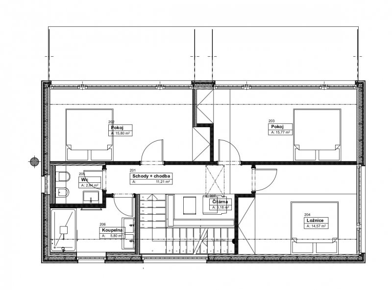
Podlahová plocha (užitná): 238,40 m²
Zastavěná plocha: 270,00 m²
Dispozice: 6+kk / 6+1
Cena hrubé stavby (vč. DPH): 8 832 000 Kč Spočítat financování
Cena dřevostavby na klíč (vč. DPH): 18 960 000 Kč Spočítat financování
Cena včetně základové desky: Ano

Aktuální ceny naleznete na stránkách, případně na dotaz u prezentované společnosti.

Popis projektu RD Klokočná - dřevostavba na klíč

Autor projektu: 3AE s.r.o.

Původní návrh domu navrženého ze sloupkové konstrukce jsme přeprojektovali do našeho konstrukčního systému tedy do Novatop panelů. Kompletní přeprojektování prováděl náš projekční tým pod vedením Libora Švehly. Výsledkem je dům, který překvapí nejen díky otevřené dispozici, ale také kvalitně zpracovaným okolím, které vznikalo, stejně jako dispozice domu pod taktovkou paní domu. Ta do dispozic promítla také svoje zkušenosti ze života v zahraničí, například v Japonsku. Děkujeme, že jsme se mohli na tak krásné realizaci podílet. Článek o tomto domě vyjde v jednom z následujících čísel časopisu Dřevo a Stavby. V časopise najdete nejen krásný rozhovor s majitelkou domu, ale i další krásné postřehy redaktorky časopisu Dany Jakoubkové. Najdete tam také spoustu dalších fotografií. Doporučujeme

Návrh domu je silně inspirován japonskou architekturou tak, aby působil pozitivně na duši a mysl. Pozitivní pocit vyvolává kombinace světlého dřeva, žlutých oken a otevřeného podkroví. Interiér domu je zařízen nábytkem z tropických dřev, který je dovezen z východní Asie.

Dům je orientován na sever tak, aby poskytoval maximum soukromí a svou hmotou odstiňoval ruch od blízké komunikace. Přesahy střech jednak chrání dům před povětrnostními podmínkami a letním přehříváním, a jednak umožňují venkovní posezení na

DrevoaStavby.cz | Dřevostavba proti zažitým zvyklostem
 
Oznámkujte
0 hlasů
Oblíbené: 0
Karta zobrazena: 6194×
Karta hodnocena:
Hodnocení této položky: 0/5

Hypoteční kalkulačka

Nejoblíbenější projekty dřevostaveb

Zobrazit celý katalog »

Proč jste na portále DŘEVO&stavby?

gotop