Jiří Kuthan | Čtvrtek, 12. březen 2020 |
Typový dům RD 170 K od společnosti Avanta Systeme nabízí komfortní bydlení i pro větší rodinu. Díky malé zastavěné ploše je tato dřevostavba ideální pro stavbu na menších pozemcích, kde nám každý ušetřený metr zvětší okolní zahradu. Svým vzhledem zaujme především stavebníky, kteří hledají vhodnou dřevostavbu do města nebo příměstského prostředí.
Důmyslná dispozice
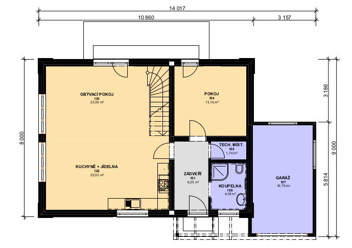
Důmyslně řešená dispozice dovoluje umístit na pouhých 86 m2 zastavěné plochy pět samostatných pokojů a celkové tak vytvořit dispozici 6+kk.

Přízemí
V přízemí se nachází rozlehlá obývací část propojená s jídelnou a kuchyní v jeden velký vzdušný prostor, vybízející k velkým rodinným sešlostem. Schodiště je umístěno v obývacím pokoji a předpokládá se, že se stane designově řešenou dominantou celého prostoru. Samostatný pokoj v přízemí je primárně navržen jako pokoj pro hosty, ovšem využít jej lze jako ložnici rodičů, ze které se dá přímo vstoupit na zahradu!

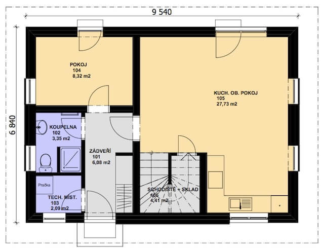
Patro
Všechny pokoje v prvním patře mají samostatný vstup a prosvětleny jsou moderními rohovými okny. Samozřejmostí jsou dvě plnohodnotné koupelny v každém patře.

Typový dům Avanta RD 170 K - shrnutí
- Zastavěná plocha: 86 m2
- Užitná plocha: 139 m2
- Dispozice: 6+kk (+ technická místnost, šatna, garáž)
- Počet podlaží: 2
- Cena hrubé stavby (vč. DPH): 2 127 104 Kč
Více o projektu RD 170 K

RD 126 K
Zmenšenou variantou představeného domu je koncept RD 126 K, který má při zastavěné ploše 65 m2 stejnou dispozici.
Zmenšené prostory pokojů umožňují dům postavit i na menším pozemku, ovšem neubírají na pohodlí bydlení.



Více o projektu RD 126 K

Zaujal vás typový projekt dřevostavby RD 170 K? Zašlete dodavateli dotaz nebo nezávaznou poptávku!
Společnost Avanta působí na trhu od roku 1990. Původně projekční firma se však postupným vývojem vypracovala od menších zakázek charakteru rekonstrukcí, dostaveb, obnovy střešních konstrukcí a půdních vestaveb, ke kompletním realizacím rodinných domů, administrativních či průmyslových objektů. Do současnosti realizovala po celé České republice více než 400 staveb. Své domy staví podle potřeb a přání zákazníka. Domy nízkoenergetické i pasivní, s klasickými i nejmodernějšími způsoby vytápění, ohřevu teplé vody, klimatizace či větrání.
Zaslat dotaz nebo nezávaznou poptávku
Vizualizace: Avanta Systeme












Vytvořeno v xart.cz