Michal Babor | Pátek, 13. prosinec 2019 |
Slýcháme to od vás na veletrzích stále častěji: chtěl bych nějaký malý domeček, chatku, jen pro mě s manželkou, máme malý pozemek a moc nepotřebujeme. Jednu dvě místnosti, malou koupelnu... Tak se pojďme podívat, co nabízejí výrobci a dodavatelé dřevostaveb pro případ, že nepotřebujeme zrovna rodinný dům, ale spíše víkendové bydlení – vybírat je z čeho.
Dřevostavba nenáročná na údržbu
Tento dům majitelům může sloužit jako letní chata. Dodává se i ve variantě pro celoroční bydlení i jako ostrovní dům nezávislý na přípojkách.

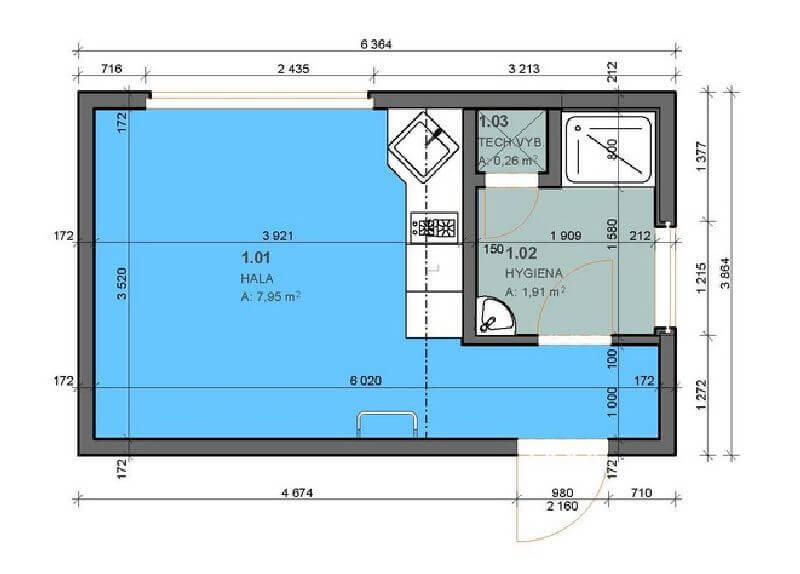
Technické parametry dřevostavby
- Zastavěná plocha: 25 m2
- Užitná plocha: 23 m2
- Konstrukční systém: založení na zemní vruty, konstrukce two by four
- Orientační cena dřevostavby na klíč včetně DPH: do 1 milionu Kč
- Realizace: Avanta Systeme (Tiny House 25)

Nad koupelnou lze vystavět prostor pro spaní (2,5 m2).

Moderní přízemní dřevostavba - bungalov
Pohodlnost, útulnost a elegance – to je tato dřevostavba pro mladý pár nebo seniory.

Technické parametry dřevostavby
- Zastavěná plocha: 73 m2
- Užitná plocha: 60 m2
- Konstrukční systém: THERMO-PROTECT PREMIUM, panelový, difuzně uzavřený
- Orientační cena dřevostavby na klíč včetně DPH: 2 083 000 Kč bez základové desky
- Realizace: Haas Fertigbau (Bungalov Line 60)

Variabilní zahradní domek
Dům koncipovaný jako zahradní domek se saunou a skladem, který lze ale využít i jako dependance (vedlejší budovu hlavního ubytovacího zařízení) nebo letní bydlení.

Technické parametry dřevostavby
- Zastavěná plocha: 54 m2
- Užitná plocha: 48 m2
- Konstrukční systém: Lucern Eko plus, panelový, difuzně uzavřený
- Orientační cena dřevostavby na klíč včetně DPH: 1 590 000 Kč včetně základové desky
- Realizace: Lucern (Lucern 54)



Malý úsporný bungalov
Malý bungalov pro nenáročné manžele či jednotlivce lze použít pro rekreaci i k trvalému bydlení.

Technické parametry dřevostavby
- Zastavěná plocha: 44 m2
- Užitná plocha: 34 m2
- Konstrukční systém: panelový, difuzně uzavřený
- Orientační cena dřevostavby na klíč včetně DPH: 1 407 600 Kč včetně základové desky
- Realizace: MS HAUS (MS 02A EKONOMY)


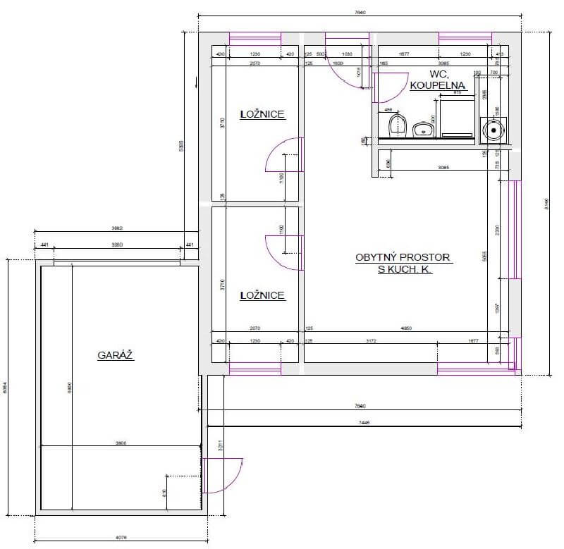
Dřevostavba pro malý pozemek
Kompaktní tvar předurčuje tuto dřevostavbu pro stavbu i na menším pozemku. Svým uspořádáním bude vyhovovat páru nebo tříčlenné rodině.

Technické parametry dřevostavby
- Zastavěná plocha: 60 m2
- Užitná plocha: 50 m2
- Konstrukční systém: panelový, difuzně uzavřený
- Orientační cena dřevostavby na klíč včetně DPH: 2 278 150 Kč včetně základové desky
- Realizace: VEXTA (VEXTA B50)


Malá chata pro dva
Chatka je koncipována pro dvě osoby a díky krbovým kamnům ji lze využívat celoročně a třeba i rozšířit o krytou terasu.

Technické parametry dřevostavby
- Zastavěná plocha: 25 m2
- Užitná plocha: 21 m2
- Konstrukční systém: two by four, difuzně otevřený
- Orientační cena dřevostavby na klíč včetně DPH: 850 600 Kč včetně založení na zemních vrutech 133
- Realizace: Penatus (CHATA NAVI)

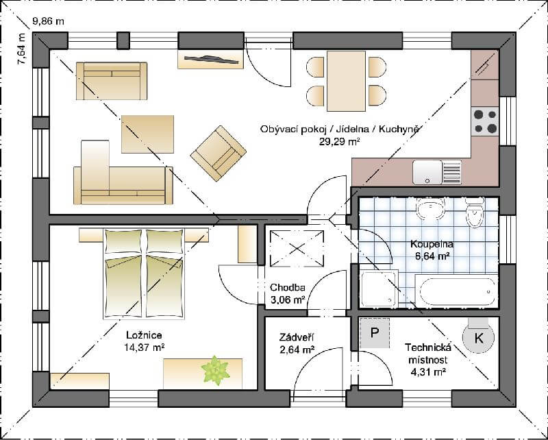
Přízemní dřevostavba s garáží
Tato dřevostavba s dispozicí 3+kk a garáží k tomu – to už není jen zahradní domek, ale třeba startovní bydlení pro méně početnou rodinu.
Technické parametry dřevostavby
- Zastavěná plocha: 85 m2 včetně garáže
- Užitná plocha: 50 m2
- Konstrukční systém: panelový, difuzně otevřený
- Orientační cena dřevostavby na klíč včetně DPH: 1,5 mil. Kč bez základové desky
- Realizace: PALIS Plzeň (Bungalov P)













Vytvořeno v xart.cz