Dagmar Šimonová | Úterý, 27. prosinec 2011 |
Práci architektonického studia Balance Associates Architects jsme již obdivovali mnohokrát, na našem portálu jsme vám i několik realizací prezentovali. Tentokrát se opět jedná o jejich klasické dílo – malou dřevostavbu uprostřed lesa, která se co možná nejvíce snaží respektovat okolní přírodu, především v interiéru však ukazuje i svou moderní tvář. Krásu obnažených dřevěných nosníků a sloupků, doplněnou o perfektně ladící zařízení.
Dřevostavba se díky nosným pilířům téměř nedotýká země
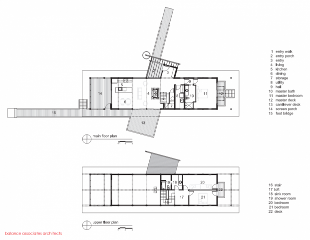
Projekt s názvem The Foster Loop Residence leží v hlubokých washingtonských lesích na místě Mazama Village, které investoři zbožňují už mnoho let – jezdili sem totiž kempovat. Jejich láska k přírodě se samozřejmě musela odrazit i na vzhledu a konceptu celé výstavby.
Dům je proto umístěn na pilířích a ovlivňuje tak krajinný ráz jen „bodově", nikoliv plošně, jak by tomu bylo, kdyby byl umístěn na klasických betonových základech. Také přístupová cesta je řešena velice jednoduše a vzdušně. Přes nerovný terén je vybudována dřevěná lávka, která návštěvníka bezpečně a pohodlně dovede až ke vstupním dveřím.
Vnitřní prostor je díky odhalenému krovu vzdušný a prostorný
![]()
![]()
Interiér je ve společenské části vysoký, protože se nad ním otevírá krásný dřevěný krov. Část domu je dvoupodlažní – v malém prostoru s šikmými stěnami je umístěná ložnice s koupelnou. Do horního patra vedou schody, vyústěné v obytném prostoru.
![]()
Dům je také dostatečně propojený s exteriérem, na obou jeho koncích jsou terasy a i na delších stranách půdorysu jsou umístěné malé lávky, zabíhající přes malý příkop až do lesa. Ve druhém podlaží se nachází také malý balkon. Přesahující části střechy mají krytinu z průhledného polykarbonátu. Společenskému prostoru dominuje velký centrální krb.













Vytvořeno v xart.cz