Dagmar Šimonová | Středa, 02. únor 2022 |
Za polárním kruhem v lyžařském středisku Levi ve Finsku si manželský pár vášnivých vyznavačů zimních sportů nechal postavit luxusní srubový dům. Levi je nejvyšším lyžařským střediskem ve Finsku, kde se konají také závody světového poháru. Zajímavostí je fakt, že je tam první sníh už od poloviny října a sezóna tu trvá do poloviny května.
Srubová chata podle vlastního návrhu
Architektonický návrh domu si vytvářela majitelka úplně sama. Vzhledem k tomu, že je profesí architekta, tak ji rozhodně představivost, kreativita a návrh nedělaly žádný problém. Po vymyšleném architektonickém návrhu domu přicházelo na řadu vybrat firmu, která vysněný dům postaví. Vzhledem k tomu, že jsou oba majitelé domu vášnivými nadšenci zimních sportů, bylo jejich snem bydlet ve srubovém domě ve finských horách.

obr.: Srubový dům dokonale zapadá do okolní krajiny. Foto: KONTIO LOGHOUSES
Dřevostavba od největšího světového dodavatele
Při hledání vhodné realizační firmy si nakonec manželé vybrali společnost, která sídlí ve Finsku a zastoupení má i v České republice. Majitelům horské chaty se líbil fakt, že je společnost největším světovým dodavatelem srubů a roubenek, při jejichž stavbě pracuje s využitím těch nejnovějších technologií. Srubové chaty, domy a luxusní srubové domy navíc vyrábí z vysoce kvalitní finské, severní borovice.

obr.: Velká okna zajišťují dostatek denního světla, které má vliv na pozitivní atmosféru v domě. Foto: KONTIO LOGHOUSES

obr.: Garáž, která je součástí domu je stejně jako celý dům také dostatečně prostorná. Foto: KONTIO LOGHOUSES
Odolné dřevostavby z polární borovice
Hlavní rozdíl, který odlišuje finské sruby od tuzemských srubových staveb, je materiál. Pro stavby těchto domů se používá výhradně jemnoletá severská borovice, která potřebuje pro svůj růst správné klimatické podmínky včetně čistého životního prostředí. Drsné podmínky mrazivých zim a krátkého léta formují pomalu rostoucí dřevo do unikátní struktury, která se vyznačuje hustými a těsnými letokruhy. Díky tomu severská borovice patří mezi nejhouževnatější a nejodolnější stavební materiál pro srubové domy a roubenky.
Stěny těchto domů mají schopnost vyrovnávat teplotní rozdíly i vnitřní vlhkost v interiéru na optimální úroveň. Výsledkem je útulná atmosféra a ideální vlhkost prostředí v rozmezí 30 až 55 %, což znamená méně prachu, bakterií a virů. V dnešním přetechnizovaném světě je pobyt v takovém domě jednou z nemnoha možností, jak znovu nalézt potřebný klid a pozitivní energii.
Užitná plocha 200 m2 je rozdělena do tří podlaží – suterén je plně věnován wellness a doplněn ložnicí pro hosty, další hostinskou ložnici najdeme v podkroví. Prostřední podlaží je obytné a nabízí kromě dvou ložnic velkorysý obytný prostor s otevřeným stropem do podkroví a bohatým prosklením. Pro těsnění lepených trámů v obvodových stěnách používá dodavatelská firma tzv. dvojí těsnění – po celé délce všech trámů jsou ve stěnách vedeny dvě izolační trubičky. Samozřejmostí je perfektní izolace podlahy a střechy a izolační trojskla v oknech.

obr.: Místnost je opravdu veliká, a to zaručuje, že má každá část svůj samostatný kout. Velmi výrazným a příjemným prvkem jsou vysoké stropy srubového domu. Foto: KONTIO LOGHOUSES

obr.: To pravé teplo domova zajišťují krbová kamna, a ta samozřejmě nesmí chybět ani v žádné horské chatě tohoto typu. Foto: KONTIO LOGHOUSES

obr.: Zajímavý prvek je detail obkladů jedné ze stěn v obývacím pokoji. Foto: KONTIO LOGHOUSES

obr.: Obývací pokoj je skutečně místností, která vybízí k odpočinku a relaxaci. Interiér navíc dominuje i zvolená tyrkysová barva, která je na pohovce a stěnách. Foto: KONTIO LOGHOUSES

obr.: Kuchyně je navržena velmi jednoduše, stylově a prakticky. Foto: KONTIO LOGHOUSES

obr.: Kuchyně je dokonale propojena s jídelním koutem, který je obohacen o pohádkový výhled na okolní přírodu. Foto: KONTIO LOGHOUSES

obr.: Prostřední podlaží je obytné a nabízí kromě dvou ložnic velkorysý obytný prostor s otevřeným stropem do podkroví a bohatým prosklením. Foto: KONTIO LOGHOUSES

obr.: Místnosti jsou dokonale odděleny a majitelé domu mají v každé z nich zaručeno pohodlí i soukromí. Foto: KONTIO LOGHOUSES

obr.: Sauna v horské chatě je dostatečně prostorná a zaručuje zasloužený odpočinek po celodenním lyžování. Foto: KONTIO LOGHOUSES

obr.: V žádné horské chatě nesmí chybět sauna. Foto: KONTIO LOGHOUSES
Technické parametry
- Velikost pozemku: 1500 m2
- Zastavěná plocha: 105 m2
- Užitná plocha: 199,5 m2 (Přízemí 91,2 m2; Suterén 81,5 m2; 1.patro 26,8 m2)
- Terasy: 92,7 m2
- Balkón: 6,7 m2
- Konstrukce: Zděný suterén, přízemí a první patro mají obvodové a vnitřní stěny z roubené konstrukce z lepených hranolů (severská borovice) 205 x 275 mm, příčky v přízemí i v patře trámová konstrukce, schodiště dřevěné samonosné
- Skladba střechy: Tříplášťová střecha s 300 mm izolace, krytina šindel
- Výplně otvorů: Dřevěná okna s izolačními trojskly, vnitřní dveře dřevěné do obložkových zárubní – dodavatel Kontio Loghouses
- Vytápění: Podlahové vytápění, krbová kamna
- Dodavatel srubového domu: KONTIO LOGHOUSES
- Autor architektonického návrhu domu: Investor

obr.: Nákres celého domu. Zdroj: KONTIO LOGHOUSES

obr.: Půdorys suterénu domu. Zdroj: KONTIO LOGHOUSES

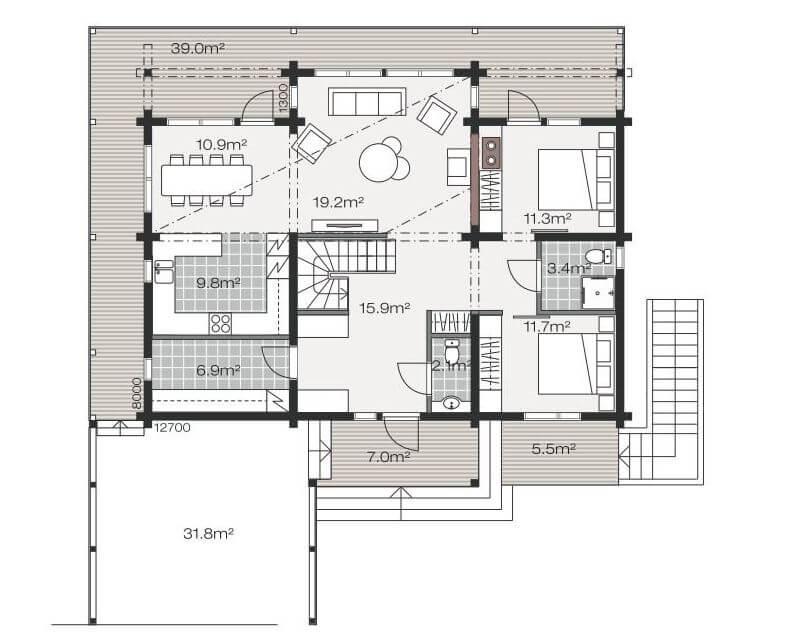
obr.: Půdorys přízemí domu. Zdroj: KONTIO LOGHOUSES

obr.: Půdorys 1. patra domu. Zdroj: KONTIO LOGHOUSES












Vytvořeno v xart.cz