Jiří Kuthan | Pátek, 07. únor 2020 |
Dřevostavba s přátelským výrazem a vlídným interiérem je důkazem, že s chytrým řešením dispozice na přiměřené užitné ploše může poskytovat dům optimální pohodlí pro každodenní život svých obyvatel. Stavba dokonale souzní s okolním prostředím a svou kultivovaností představuje pro ráz obce vysokou přidanou hodnotu.
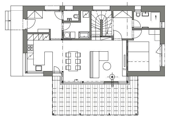
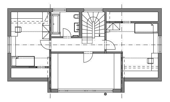
Moderní dvoupodlažní dřevostavbu situovali architekti v přední třetině podlouhlé rovinaté parcely s krytým parkovacím stáním a skladem nářadí u vjezdu. Obdélníkový půdorys domu reaguje na tvar pozemku.
Tvarosloví domu je inspirováno tradičními chalupami. Základním archetypálním tvarem hmoty se strmější sedlovou střechou prostupuje hranol, kterým je na jihu rozšířena společenská část domu v přízemí a v podkroví vytvořen vikýř, a na opačné severní straně mělčí vikýř pro prostor schodiště a koupelny.
Materiálové řešení základních hmot a ploch v exteriéru propůjčuje stavbě civilní charakter, aniž by jí ubralo na moderním architektonickém pojetí.
Vlídnou atmosféru interiéru vytváří zásadním způsobem konstrukční materiál stavby – pohledové masivní dřevěné panely Novatop. Vnitřní prostor tak působí útulně a prostorně a současně koresponduje s exteriérem domu.







"Dispozičním řešení staví na racionálním uspořádání prostor s ohledem na funkci a orientaci k světovým stranám."









- Návrh: Prodesi – Ing. arch. Václav Zahradníček, Ing. arch. Hana Bartoňová
- Projekt: Ing. Josef Tománek
- Realizace: Domesi, s.r.o., 2018, www.domesi.cz
- Užitná plocha: 154 m2



Chcete stavět a uvažujete o podobné dřevostavbě? Zašlete dodavateli dotaz nebo nezávaznou poptávku!
Architektonický ateliér a realizační společnost Prodesi | Domesi specializující se výhradně na dřevostavby. Provede vás celým procesem stavby od první skici přes projektovou přípravu, až po předání klíčů od dokončené stavby. Mimo individuálních projektů nabízí také tři typové domy. Společnost funguje na trhu od roku 2002 a má na svém kontě více než stovku realizovaných dřevostaveb.
Zaslat dotaz nebo nezávaznou poptávku
Text: Ing. arch. Ľubica Fábri
Foto: Milan Hutera












Vytvořeno v xart.cz