Dana Jakoubková | Pátek, 29. květen 2020 |
Na samotě, mimo síť a přesto životaschopná. Navržena tak, aby neobtěžovala přírodu stavbou ani provozem a sloužila jako nabíjecí stanice pro své majitele. Taková je nenápadná chata na úpatí Hostýnských vrchů, usazená ve starém sadu, na pozemku, kde se kdysi dávno pásly ovce.
Chata jako soukromý ostrov
Cesta města je k ní stejně dlouhá jako historie usedlosti, kterou už léta dávno rozmazala. Přesto se noví majitelé spolu s architekty chtěli pokusit vrátit do tohoto příjemného místa život.
Nejprve obnovou cesty a sadu, pak přišel na řadu návrh salaše, který nakonec abstrahoval do podoby jednoduché chaty. Dnes už sad zase rodí plody, stará studna dává vodu a chataři si užívají svůj soběstačný ostrov, kde je jasně patrné, co je nezbytné a co nadbytečné.

obr.: Nenápadná: Chata stojí na nejvyšším místě pozemku bývalé zemědělské usedlosti. Svažitost terénu nabídla i možnost sklepa, situovaného pod část dřevostavby, a který supluje technickou místnost. Vstup do ní lze rovněž – jako všechna okna – uzavřít posuvnou okenicí a vytvořit tak monolitický dřevěný prvek v krajině. Foto: Dušan Tománek

obr.: Přirozená: Při pohledu z cesty, kterou bylo třeba obnovit v původní stopě, ustupuje chata do krajiny a snadno se mísí s pozadím Hostýnských vrchů. Foto: Dušan Tománek
"Zvenku malá kostka, uvnitř velká životnost."

obr.: Malá: I když je chata malá, mezonetovým řešením interiéru dosáhly architektky všech funkcí potřebných pro rekreaci rodiny. Ze zádveří je přístup na WC a po schodech do ložnice v otevřeném patře s přilehlou koupelnou. Zbytek přízemí, usazený o úroveň níže než zádveří (dva schody), zahrnuje denní prostor s kuchyňskou linkou, se sporákem na dřevo a přímým vstupem na jihozápadní terasu. Foto: Dušan Tománek

obr.: Chatovou atmosféru podporuje obložení stěn modřínovým dřevem. Foto: Dušan Tománek

Tento článek vyšel v časopisu DŘEVO&stavby 3/2020
Objednejte si krásně vonící výtisk časopisu s kvalitními fotografiemi pouze za 95 Kč
koupit časopis
Technické parametry
- Autor návrhu: Ing. arch. Hana Maršíková, Ing. arch. Jitka Ressová, Ing. arch. Kateřina Páterová / ellement architects s.r.o., www.ellement.cz;
- Autor projektu: Ing. Pavel Ohnoutek
- Konstrukce: rámová two-by-four; minerální izolace
- Zastavěná plocha: 30 m2
- Systém: ostrovní

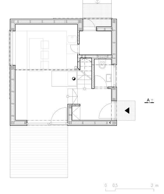
obr.: Půdorys 1NP

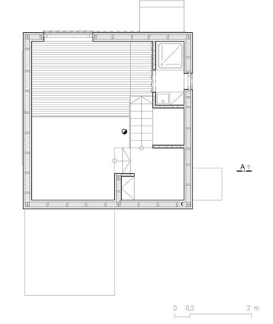
obr.: Půdorys 2NP
Foto: Dušan Tománek












Vytvořeno v xart.cz