Markéta Kristová | Čtvrtek, 16. červen 2022 |
Chcete bydlet ve zdravém prostředí a líbí se vám dřevostavby? Vybrali jsme pro vás tři typové projekty sendvičových dřevostaveb, které jsou svým dispozičním uspořádáním vhodné pro mladý pár i velkou rodinu.
Sendvičové panelové dřevostavby odpovídají skladbě lehkého dřevěného skeletu. Jejich hlavní charakteristika však spočívá ve způsobu jejich přípravy a montáže. Sendvičový panel vzniká ve výrobní hale, na stavbu ho doveze nákladní auto a pomocí jeřábu usadí na místo. Dřevostavba ze sendvičových panelů tak může být i za 2 dny pod střechou.
Bungalov Epsilon – přízemní dřevostavba tak akorát velká
- Rodinný dům je nepodsklepený, jednopodlažní se sedlovou střechou a s dispozicí 3+kk.
- Hlavním prostorem přízemí je obytný prostor, propojený s kuchyňským koutem a jídelnou. Zároveň je z něj přístup francouzskými okny přímo na terasu a do zahrady. Dále jsou zde 2 pokoje s hygienickým zázemím.
- Fasáda domu je navržena ze silikonové jemnozrnné omítky bílé barvy, doplněná o dřevěné prvky na fasádě.
- Dispozice: 3+kk
- Zastavěná plocha: 89,7 m2
- Užitná plocha: 75,4 m2
- Cena dřevostavby na klíč (bez základové desky včetně 15 % DPH): 2 590 412 Kč
- Cena základové desky: 325 495 Kč
- Dispozice: předsíň, chodba, obývací pokoj spojený s kuchyňským koutem a jídelnou, spíž, ložnice, pokoj, koupelna a technická místnost
Realizace a zdroj: NIDO WOOD s.r.o.
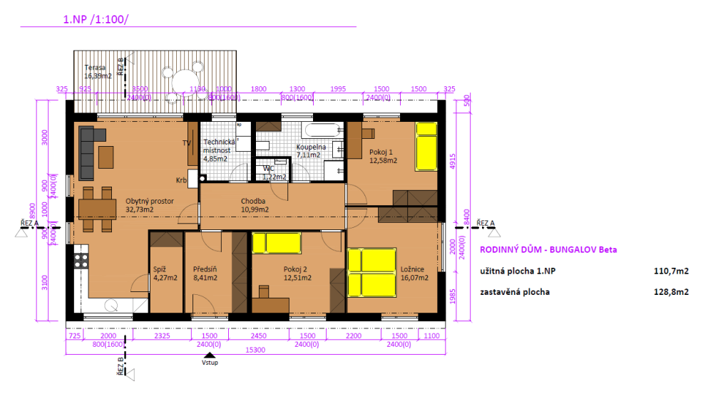
Bungalov Beta – přízemní dřevostavba se vzdušným prostorem
- Rodinný dům je nepodsklepený, jednopodlažní se sedlovou střechou a s dispozicí 4+kk.
- Hlavním prostorem přízemí je obytný prostor, propojený s kuchyňským koutem a jídelnou. Zároveň je z něj přístup francouzskými okny přímo na zastřešenou terasu a do zahrady. Dále jsou zde 3 pokoje s hygienickým zázemím.
- Fasáda domu je navržena ze silikonové jemnozrnné omítky bílé barvy, doplněná o dřevěné prvky na fasádě. Jižní průčelí je řešeno jako provětrávaná dřevěná fasáda.
- Dispozice: 4+kk
- Zastavěná plocha: 128,8 m2
- Užitná plocha: 110,7 m2
- Cena dřevostavby na klíč (bez základové desky včetně 15 % DPH): 3 648 451 Kč
- Cena základové desky: 456 480 Kč
- Dispozice: předsíň, chodba, obývací pokoj spojený s kuchyňským koutem a jídelnou, spíž, ložnice, 2 pokoje, koupelna, wc a technická místnost
Realizace a zdroj: NIDO WOOD s.r.o.
Dvoupodlažní dům D – patrová dřevostavba pro velkou rodinu
- Rodinný dům je nepodsklepený, jednopodlažní s obytným podkrovím se sedlovou střechou o sklonu 35° a s dispozicí 5+kk.
- Hlavním prostorem přízemí je obytný prostor, propojený s kuchyňským koutem a jídelnou. Zároveň je z něj přístup francouzskými okny přímo na terasu a do zahrady. Z obytného prostoru vede schodiště do obytného podkroví. V 1.NP se dále nachází pracovna/pokoj pro hosty, technická místnost a hygienické zázemí.
- Podkroví je navrženo jako soukromá část bytu. Jsou zde ložnice, dva dětské pokoje, komora a hygienické zázemí.
- Fasáda domu je navržena ze silikonové jemnozrnné omítky bílé barvy, doplněná o dřevěné prvky na fasádě.
- Dispozice: 5+kk
- Zastavěná plocha: 75,5 m2
- Užitná plocha: 124,3 m2
- Cena dřevostavby na klíč (bez základové desky včetně 15 % DPH): 4 158 057 Kč
- Cena základové desky: 277 925 Kč
- Dispozice: předsíň, obývací pokoj spojený s kuchyňským koutem a jídelnou, pracovna/pokoj pro hosty, koupelna a technická místnostpodkroví: chodba, ložnice, dva dětské pokoje, koupelna a komora
Realizace a zdroj: NIDO WOOD s.r.o.
NIDO WOOD s.r.o. – moderní nízkoenergetické dřevostavby
NIDO WOOD s.r.o. je česká společnost projektující a realizující nízkoenergetické moderní dřevostavby i dřevostavby klasické. Jejich cílem je provést klienta spletitostí stavby, vždy mu vše vysvětlit a následně mu předat kvalitní dům který se stane jeho domovem.

- KONSTRUKČNÍ SYSTÉM: Nízkoenergetické sendvičové dřevostavby. Konstrukční systém two-by-four je tvořen z KVH hranolů 140 × 60 nebo 180 × 60 mm a splňuje nízkoenergetický standard již v základu. Firma realizuje jak difuzně uzavřené, tak difuzně otevřené konstrukce, samozřejmostí je Blower door test.
- VZOROVÉ DŘEVOSTAVBY: Po dohodě lze navštívit již realizované stavby.
- PŮSOBNOST: Středočeský kraj
- SÍDLO FIRMY: U Studánky 1064, 250 65 Líbeznice, +420 773 018 267, Tato emailová adresa je chráněna před spamboty, abyste ji viděli, povolte JavaScript , www.nidowood.cz
- Ukázka již realizovaných dřevostaveb











.jpg)
%201.jpg)
%202.jpg)
%203.jpg)
%204.png)
%201.jpg)
%202.jpg)
%203.jpg)
%204.png)
%201.jpg)
%202.jpg)
%203.jpg)
%205.png)
%204.png)

Vytvořeno v xart.cz