Markéta Kristová | Úterý, 28. červen 2022 |
Toužíte po bydlení v dřevostavbě a hledáte inspiraci? Vybrali jsme pro vás tři typové projekty panelových dřevostaveb, které vás zaujmou svým vzhledem a kvalitou zpracování.
Je v dnešní době možné pořídit si vlastní bydlení, které bude splňovat parametry plnohodnotného rodinného domu, bude energeticky úsporné, ekologické, kvalitní a navíc levné? Níže vybrané dřevostavby přesně tohle splňují! Díky stavebnicové technologii a použitému materiálu je výstavba těchto rodinných domů na klíč nesmírně rychlá a náklady jsou enormně nízké. Vyberte si ten svůj.
LARGO 98 – variabilní dřevostavba
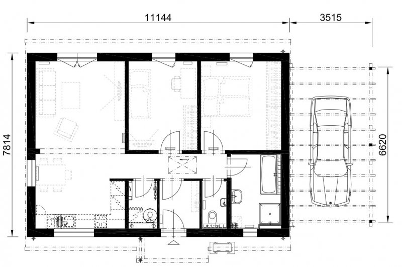
- LARGO 98 se svým jednoduchým půdorysem přizpůsobí každé parcele. Při pořádání rodinných oslav nebo posezení s přáteli jistě oceníte obývací pokoj spojený s kuchyňským koutem. Můžete se z něj francouzským oknem vydat přímo na prosluněnou terasu. V bungalovu se nachází i dostatek místa pro ložnici, koupelnu a dvě další obytné místnosti.
- Obývací pokoj spojený s kuchyňským koutem tvoří plochu 27,5 m2. Prostorná ložnice sousedí s koupelnou, která svými rozměry postačí celé rodině. Důležitou součástí domu je také zádveří, díky kterému nebudete do bytu nosit nečistoty z bot a návštěva si bude mít kde odložit kabáty.
-
Projekt: LARGO 98
- Dispozice: 4+kk / 4+1
- Užitná plocha: 82,45 m²
- Konstrukční systém: panelová dřevostavba
- Cena dřevostavby na klíč (včetně DPH a základové desky): 3 562 700 Kč
Realizace a zdroj: RD RÝMAŘOV s.r.o.
LARGO 85 Economy – dřevostavba vhodná i do CHKO
- Půdorys rodinného domu LARGO 85 Economy má obdélníkový tvar. Velkou výhodou domu je prostorné přízemí a možnost využití půdního prostoru s možností dokončení obytného podkroví. Velké prosklené plochy jsou situovány do obytných místností, kde přináší pasivní solární zisky a tím také značnou úsporu z vytápění.
- Dům také splňuje veškeré požadavky pro stavbu domu v chráněné krajinné oblasti.
- Součásti dodávky je pergola.
- Projekt: LARGO 85 Economy
- Dispozice: 3+kk / 3+1
- Užitná plocha: 70,48 m²
- Konstrukční systém: panelová dřevostavba
- Cena dřevostavby na klíč (včetně DPH a základové desky): 3 493 700 Kč
Realizace a zdroj: RD RÝMAŘOV s.r.o..
KUBIS 74 – patrová dřevostavba do každé zástavby
- KUBIS 74 Vás překvapí svou prostorností a jednoduše řešenými dispozicemi. Nenajdete žádná hluchá místa a zbytečné výklenky. KUBIS 74 byl navržen s maximálním ohledem na praktičnost a běžný chod domácnosti.
- Čtvercový půdorys a zastavěná plocha necelých sto metrů čtverečních jsou ideální i na menší pozemky. Přesto se Vám bude v tomto typovém domě pohodlně bydlet, protože poskytuje přes 117 m2 obytné plochy.
- Projekt: KUBIS 74
- Dispozice: 4+kk / 4+1
- Zastavěná plocha: 61,13 m²
- Užitná plocha: 117,54 m²
- Konstrukční systém: panelová dřevostavba
- Cena dřevostavby na klíč (včetně DPH a základové desky): 4 372 300 Kč
Realizace a zdroj: RD RÝMAŘOV s.r.o.
RD Rýmařov s.r.o. – rodinné domy a dřevostavby na klíč
Společnost RD Rýmařov je největším výrobcem dřevostaveb v rámci celé České republiky. Firma působí na českém stavebním trhu 50 let a má za sebou 26 tisíc realizovaných staveb v ČR i zahraničí.

- KONSTRUKČNÍ SYSTÉM: Technologie výroby na bázi lehké prefabrikace dřeva umožňuje velmi rychlou výstavbu při dodržení vysokých kvalitativních parametrů. Tento systém suché výstavby splňuje všechny požadavky na ekologickou stavbu v souladu s trvale udržitelným způsobem života. Lze nabídnout stavby rodinných i bytových domů nebo celé developerské projekty.
- VZOROVÉ DŘEVOSTAVBY: Seznam všech vzorových domů v ČR, kontaktů i otevírací doby najdete na www.rdrymarov.cz. Vzorové domy slouží zároveň jako obchodní centra, kde můžete vyřídit vše potřebné, aniž byste museli navštěvovat sídlo firmy v Rýmařově.
- PŮSOBNOST: cela ČR
- SÍDLO FIRMY: 8. května 1191/45, 795 01 Rýmařov, +420 554 252 111, Tato emailová adresa je chráněna před spamboty, abyste ji viděli, povolte JavaScript , www.rdrymarov.cz
- Ukázka již realizovaných dřevostaveb











.jpg)
.jpg)
.jpg)
.jpg)
.jpg)
.jpg)
.jpg)
.jpg)
.jpg)
.jpg)

Vytvořeno v xart.cz