Redakce | Pátek, 16. září 2022 |
Co vlastně potřebuje člověk nebo pár ke komfortnímu přenocování uprostřed přírody? To byla původní myšlenka, která stála za zrodem projektu TinyHouseDone. Postel, kuchyni, sprchu a WC se jim nakonec podařilo napasovat na neuvěřitelných 12 čtverečních metrů užitné plochy. A co víc – koncept miniaturní soběstačné chatky je vymyšlen tak, aby si ji z dodaných dílů dokázal postavit každý zručnější kutil.
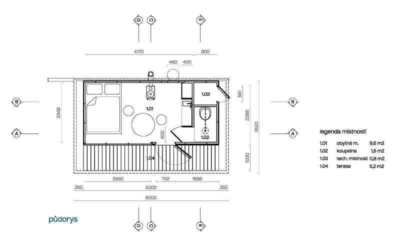
Nezáleží na tom, jestli bude stát na samotě, nebo uprostřed zástavby. Hledá ale trvalé místo, kde se bude moct rozhlédnout do krajiny, protože cestovat z místa na místo pro ni není úplně snadné. Aby svůj minimální prostor zvětšila, otevírá se prosklenou stěnou svému okolí. Vnitřní dispozice je rozdělena na dvě poloviny – v transparentní části je obytná část s kamny, postelí a kuchyní, v druhé pak technická místnost a toaletní kapsle včetně sprchy a záchodu.
Miniaturní dřevěná chatka
Fasáda i terasa jsou z modřínového dřeva, plochou střechu s minimálním spádem kryje hliníkový plech s jemnou vlnou. Důmyslné přesahy střechy zajistí komfort během užívání. Na fasádě najdeme hned dva vstupy – hlavní, vyústěný do obytného prostoru, a obslužný, ústící do technické místnosti. Severní plná stěna je doplněna o kruhový větrací otvor. Olejová lazura byla použita k ošetření všech vnitřních (bílá) i vnějších (černá) povrchů.
Pohledové dřevo v interiéru
Zasklení je bezrámové s přetaženými skly. Pouze z montážních důvodů je sklo děleno na tři vertikální segmenty. Kuchyňská linka je vyrobena z deskového materiálu DTD s povrchovou jasanovou dýhou, pracovní deska s nerezovým dřezem je z Corianu, osvětlená LED páskem. Baterie v kuchyni a ve sprše jsou napojeny na tlakovou vodu.
Chatku si zvládnete postavit sami
TinyHouseDone je založen na principu stavebnice tak, aby bylo možné postavit dům ve dvou až třech lidech. Jako základní materiál jsou proto použity desky s překližovaného masivního smrkového dřeva. Jednotlivé dílce jsou vesměs ploché a jejich váha se pohybuje okolo 80 kg. Prefabrikované panely jsou opracovány a připraveny v nábytkářském standardu tak, že za pomoci běžných nástrojů je dokážou smontovat každé šikovné ruce. Variantu Glamp pořídíte za cca 750 tisíc Kč s DPH.
Technické parametry
- Lokalita: Smržovka, Jizerské hory
- Autor: DDAANN architekti
- Nosná konstrukce: montovaná dřevostavba z masivních desek NOVATOP
- Založení: základový rošt na zemních vrutech
- Fasáda: modřínová palubka s frézovanou středovou drážkou
- Střešní krytina: hliníkový plech
- Rozměry: 2,5 x 5 m
- Max. počet osob: 2
- Topení: kamna na tuhá paliva
- Ohřev vody: zásobník teplé vody s kapacitou 20 litrů
- Zdroj vody: studna, alternativně pak nádrž v technické místnosti
- Odpad: externí vsak
- WC: separační toaleta
- Elektřina: fotovoltaické panely, možnost připojení do sítě
- Cena chatky: varianta Glamp cca 750 tisíc Kč s DPH
AUTOR ČLÁNKU pro časopis DŘEVO&stavby: DAGMAR ČESKÁ

Tento článek vyšel v časopisu DŘEVO&stavby 5/2022
Objednejte si krásně vonící výtisk časopisu s kvalitními fotografiemi pouze za 99 Kč





















Vytvořeno v xart.cz