Redakce | Pondělí, 11. září 2023 |
Postavit si dům na nejlepší léta života je snem mnoha párů. A z redakčních návštěv víme, že jich stále přibývá. Menší, nejlépe jednopodlažní domek s maximálně jednou místností pro hosty navíc. Na přiměřeně velkém pozemku, s minimálními náklady na energie a jednoduše ovládanými spotřebiči. A samozřejmě za dostupnou cenu. Jak se můžete přesvědčit na několika dřevostavbách, které jsme pro vás z nabídky dodavatelů vybrali, není to nereálná představa.
1. Haas Fertigbau: Typový bungalov Rapido 1-60
Jednopodlažní dřevostavba Rapido 1-60 pro mladé páry či seniory, která si vystačí i s menším pozemkem.
- Zastavěná plocha: 77 m2
- Užitná plocha: 60 m2
- Konstrukční systém: prefabrikovaný panel Thermo-Protect® 40
- Cena na klíč: od 2,886 mil. Kč včetně DPH
- Více typových projektů a realiazcí firmy Haas Fertigbau
2. OK PYRUS: Stylová roubenka R2
Pro aktivní seniory nebo i jednotlivce s minimálními nároky na prostor je určena stylově čistá roubenka R2 využitelná i pro víkendové bydlení.
- Zastavěná plocha: 74 m2
- Užitná plocha: 47 m2
- Konstrukční systém: roubená konstrukce z masivního dřeva
- Cena na klíč: cca 3 mil. Kč včetně DPH
3. ATRIUM: Vario Profi 73
Útulná menší dřevostavba Vario Profi 73 vhodná pro manželský pár nebo víkendové bydlení. Svěžími prvky jsou přesah střechy na štítových stranách a jejich vertikální dřevěný obklad.
- Zastavěná plocha: 89 m2
- Užitná plocha: 73 m2
- Konstrukční systém: difuzně otevřený prefabrikovaný panel DifuTech
- Cena na klíč: cca 3,7 mil. Kč včetně DPH
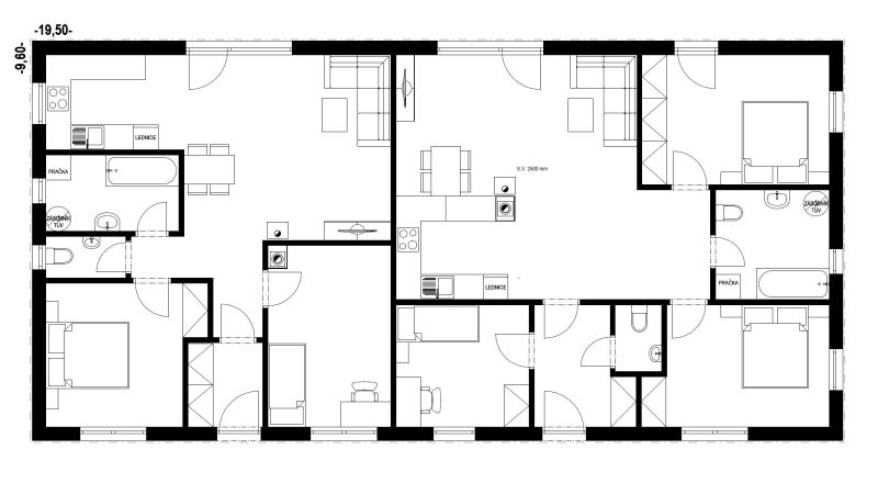
4. HAAS FERTIGBAU: Dvojdům Duo 1-153
Dvojdům Duo 1-153 nabízí dvě samostatné bytové jednotky, každou s dispozicí 3+kk – přízemí je obytné, v patře jsou dvě ložnice. Dům je vhodný i do venkovského prostředí.
- Zastavěná plocha: 107 m2
- Užitná plocha: 77 + 77 m2
- Konstrukční systém: prefabrikovaný panel Thermo-Protect® 40
- Cena na klíč: od 7,43 mil. Kč včetně DPH
5. MS HAUS: MS 22 Modern
Dvougenerační dům MS 22 Modern na obdélníkovém půdorysu s oddělenými bytovými jednotkami 2+kk a 3+kk. Obě bytové jednotky lze v případě potřeby doplnit o podkroví.
- Zastavěná plocha: 71 m2
- Užitná plocha: 71 +89 m2
- Konstrukční systém: prefabrikovaný panel
- Cena na klíč: od 6,2 mil. Kč včetně DPH
6. Martinice Group: RD 311
Jednoduchá přízemní dřevostavba RD 311 tvořená hlavní obytnou hmotou domu a částí se zastřešeným vstupem a parkovacím stáním.
- Zastavěná plocha: 132 m2
- Užitná plocha: 86 m2
- Konstrukční systém: difuzně otevřené prefabrikované panely
- Cena na klíč: cca 5,2 mil. Kč včetně DPH
7. MS HAUS: Bungalov MS 02b
Malý bungalov MS 02B s dispozicí 2+kk určený pro seniory. Při jeho návrhu byly preferovány minimální investiční náklady při zachování kvality použitých materiálů.
- Zastavěná plocha: 44 m2
- Užitná plocha: 34 m2
- Konstrukční systém: prefabrikovaný panel
- Cena na klíč: od 2,2 mil. Kč včetně DPH
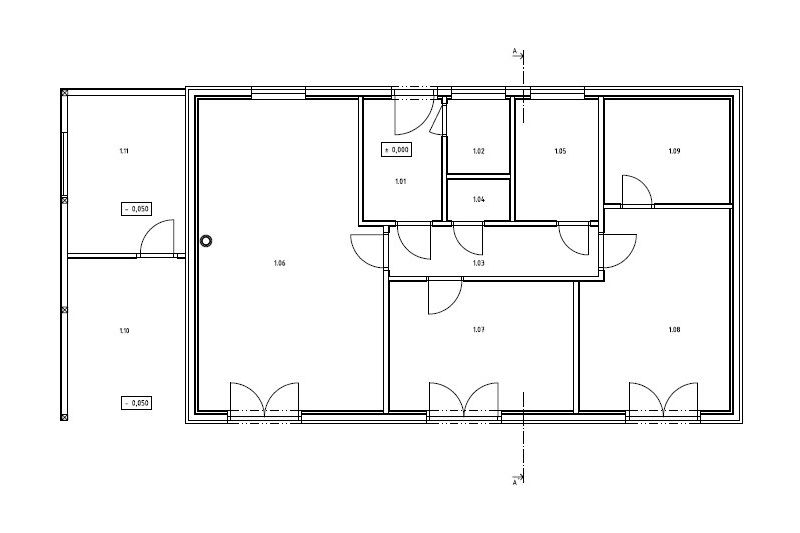
8. Palis Plzeň: Individuální dům
Dům navržený podle představ stavebníků nabízí kromě dvou ložnic a obývacího pokoje s koupelnou také velkou šatnu a je doplněn praktickým přístřeškem se zahradním skladem.
- Zastavěná plocha: 133 m2
- Užitná plocha: 113 m2
- Konstrukční systém: sloupková konstrukce – prefabrikovaný panel
- Cena na klíč: cca 5 mil. Kč včetně DPH
Trochu jiný pohled na bydlení ve dvou
Radana s manželem si budovali dům na důchod ve chvíli, kdy už všechny tři děti vylétly z rodného hnízda, přesto, nebo možná právě proto, pečlivě rozmýšleli jeho dimenzi. Když přijedou na návštěvu všechny děti s pěti vnoučaty, je třeba je někam uložit. Také už při stavbě Radana věděla, že s nimi bude bydlet její maminka – v bytové jednotce se samostatným bezbariérovým vchodem, a časem možná i tchyně. Proto se nakonec rozhodli udělat dům sice poměrně velký, ale do budoucna jednoduše rozčlenitelný na tři samostatné bytové jednotky. Takové řešení poskytuje dostatek soukromí a „vlastního" prostoru všem obyvatelům, navíc tak předpřipravili dům pro chvíli, kdy ho zdědí děti, které už mají vybudované svoje zázemí a je velice nepravděpodobné, že by se chtěly stěhovat – mohou ho v budoucnu částečně nebo úplně pronajímat.
S rozmyslem přistoupili stavebníci i k dimenzi koupelen a komunikačních úseků, které jsou svou velikostí uzpůsobené pro pohyb na invalidním vozíku, který by mohl být ve stáří potřeba. „Dům nám navrhovala moje teta architektka Helena Bukovanská. Byla to úžasná žena a významná architektka, která se podílela například na rekonstrukci Sovových mlýnů. A přestože její architektonický styl patřil Bauhausu, dokázala respektovat naše přání a naturel, léta se mnou všechno konzultovala a byla nesmírně citlivá k prostředí, kde ostatně sama vyrůstala (dům stojí na vedlejší parcele rozsáhlého rodinného pozemku). Právě na ní bylo vymyslet bezbariérové fungování a uzpůsobení domu našim trochu netypickým potřebám. Bez jejích zkušeností a jejího umu by dům nikdy tak dobře nefungoval. Bohužel před dvěma roky nás ve věku 79 let nadobro opustila," vysvětluje Radana.
PODÍVEJTE SE, JAK DŮM VYPADÁ: Chytře řešenou roubenku z červeného cedru si postavili na důchod

Foto: Martin Zeman, Realizace: CEDAR HOME s.r.o.
„Při stavění domu na stáří bych ještě dodala, jak moc je důležité mít bezobslužné topení, protože i když jsou energie drahé, není nad to si jen pootočit kolečkem. V mládí je to příjemný benefit, s přibývajícími roky jednoznačně nutnost. A ještě jeden poznatek mám, to díky mamince, která tu s námi žije – dotykové ovládání varných desek je pro lidi se špatným zrakem velice obtížné, není nad klasické ovládání kolečky," uzavírá Radana.























.jpg)
.jpg)














Vytvořeno v xart.cz