Redakce | Úterý, 07. listopad 2023 |
Jak se v poslední době změnily trendy moderního bydlení? Podle čeho se pozná úspěšný projekt? Kde vlastně končí práce architekta a poznamenaly události posledních let české domácnosti? Na to a ještě víc jsme se zeptali v několika firmách, jejichž práce nás inspiruje a které jsou našimi dlouholetými společníky na cestě k vysněné dřevostavbě. Každý z nich si vybral jeden svůj projekt, který je pro něj v současné chvíli ten „nej", ať už je důvod jakýkoliv. V netradiční přehlídce tak najdete jak malé „typovky", které učarovaly velkému počtu klientů, tak individuální stavby, jež si v portfoliu společnosti našly své speciální místo.
Pakliže v roce 2022-23 vnímáme nárust nějakého trendu, pak je to zájem o komplexní služby. Dnes už klient není spokojený pouze s domem na klíč. Chce i zahradní architekturu a interiérový design. Díky tomu ale máme vše pod kontrolou a komunikace domu se zahradou je vyřešena do nejmenšího detailu. Stejně tak napojení pozemku na okolí. Jsme schopni vytvořit místo, kde je vše v harmonii a klient se tam cítí velmi dobře.
Na fotkách vidíte stavbu vily u Benešova, kterou jsme dokončili letos v létě – proto se ještě zahrada nestihla zazelenat. Hlavní principy ale vidět jsou. Obývací prostor je přes HS portály a terasu spojen se zahradou a koupacím jezírkem. Dům svým záhybem do L tvoří soukromí z ulice, zahrada formovaná do „valu" zase chrání před zvědavými pohledy lidí z lesní cesty. Každý výhled z domu je pečlivě navržen a každý pokoj v domě včetně koupelen má vlastní výstup na terasu a zahradu.
Aby dům co nejvíce se zahradou splynul, má čepici z vegetativního pokryvu a kabát z tepelně upraveného dřeva, které časem zešedne. Z toho samého dřeva jsou i terasy. V interiéru pak narazíme na dubové podlahy a vkusný a jednoduchý nábytek. Prim zde hraje spojení domu se zahradou skrze okna, není třeba tedy v interiéru vymýšlet nic navíc.

Jakub Růžička
3AE s.r.o.
Vymyslet celý koncept zahrady nebylo vůbec lehké, přesouvaly se velké objemy zeminy – pod částí domu a v místě jezírka se kopalo do hloubky, val se zase navážel. Jsem rád, že vše řešíme ve 3D a lze si tak finální podobu dobře představit.
Klienti si dům procházeli ve virtuální realitě ještě dávno před tím, než se zažádalo na stavebním úřadě o povolení. Díky tomu jsme mohli v rámci projektu vše vyladit do posledního detailu. Nejvíc jsem pyšný na to, jak se povedlo propojit obývací prostor s jezírkem, zahradou a terasou. Člověk ztrácí pojem o tom, kdy je uvnitř a kdy venku.

Ing. arch. Lukáš Pejsar
3AE s.r.o.
Rok 2023 nás ve firmě ještě více utvrdil v tom, že český investor si rád připlatí za kvalitu a perfektní technické provedení, ať už se jedná o stavbu domu, nebo o stavbu modulární sauny, kde to platí snad ještě dvojnásob.
V době covidu se obrovsky zvedla poptávka po prémiových saunových domech tak, jak je známe ze zahraničí, například z Německa či Rakouska. Jelikož jsme s manželkou vášniví „sauneři", rozhodli jsme se tento segment českému zákazníkovi nabídnout. To, jestli se nám to podařilo, můžete zhlédnout na přiložených fotografiích, ale za sebe můžu říct, že to byla trefa do černého. Oslovují nás moderní glampingy, menší rodinné penziony nebo hotýlky, kde ještě nemají saunu či jiný wellness svět, nebo ho potřebují rychle a bez starostí rozšířit.
Vyrábíme modulární saunové domy, jejichž zastavěná plocha je 25 m2, čímž se investor vyhne stavebnímu povolení a realizace tak může být opravdu rychlá. Dodáváme do pěti měsíců od podpisu smlouvy a jsme otevřeni atypickým požadavkům na míru.

Vojtěch Juřenčák
Eko modular s.r.o.
Potřeby současného zákazníka jsou zcela odlišné od požadavků před několika lety. Dnes je největší poptávka po domech s čistými liniemi, moderním, a přesto nadčasovým vzhledem. Důležité jsou hlavně náklady na bydlení, poptávka je po nízkoenergetických domech.
Stále se zvyšující ceny pozemků neumožňují investorům koupit rozlehlé parcely, proto jsme společně s našimi architekty a zákazníky navrhli malý dům s elegantním vzhledem, zajímavou dispozicí a dostatkem světla ve všech místnostech. Jde o přízemní dům se dvěma pokoji a obývákem s kuchyní. Každý pokoj má francouzské okno a vstup na terasu.
Malé domy jsou v současné době velmi žádané například ze strany klientů s nižším rozpočtem nebo starších manželů, kteří často původní dům přenechají dětem a pořídí si nové a bezbariérové bydlení. Dispozice navrhovaného domu se může podle potřeb majitelů měnit nebo zcela předělat. Dům můžeme realizovat také jako pasivní a vždy v difuzně otevřené konstrukci a nadstandardním vybavením.
Věra Doubková, A T R I U M, s. r. o.
Dům Rapido 2-81 je momentálně jedním z nejpoptávanějších domů naší nabídky. Jeho obytná plocha činí plných 81 m2 a dispozice 4+kk splňuje požadavky na bydlení pro rodinu s dětmi, která potřebuje dostatek místa pro setkávání i pro soukromí jednotlivých členů domácnosti. Klienti oceňují velký obývák, tři samostatné ložnice a v neposlední řadě také možnost pochozí půdy, kterou je možno využít pro uložení sezónních věcí.
TIP NA SOUVISEJÍCÍ ČLÁNEK: I přes vyšší cenu se rozhodli pro přízemní dřevostavbu. Stavba trvala pouhé tři měsíce
Ve standardu Haas navíc naši klienti získají například tepelné čerpadlo s podlahovým vytápěním, rekuperaci nebo venkovní žaluzie, v rámci poskytovaných služeb pak třeba pomoc s vyřízením stavebního povolení. Stejně jako ostatní domy Haas, i Rapido 2-81 má zvětšená okna a dveře a vyšší světlou výšku, interiér je tedy prostoupen denním světlem. Kvalitní izolace je u všech domů Haas samozřejmostí, domy jsou tak energeticky úsporné a náklady na provoz díky tomu nižší. Trendem letošního roku jsou spíše menší domy s menší zastavěnou plochou. Zájem je o bungalovy i patrové domy, klienti kladou větší důraz na energetickou spotřebu.

Josef Rynda
Haas Fertigbau s.r.o.
Poslední rok se u nás změnily trendy v bydlení. Klienti volí spíše menší domy. V exteriéru dominuje dřevěná fasáda a v interiéru se stále častěji volí méně běžné povrchové úpravy, jako dekorativní stěrky na stěny i podlahy. Vzhledem k tomu, že dnešní doba mnohým umožňuje práci z domova, často se setkáváme s potřebou mít součástí domu pracovnu. Myslíme také na soukromí klientů, a právě proto je součástí části našich domů tzv. manželský blok, což je oddělená část domu, kde najdeme ložnici s koupelnou a šatnou. Našimi klienty je tato možnost velmi často využívána a oceňována. Poslední dobou máme častěji poptávky po navazujících stavbách – kryté stání, zahradní domky a na domy určené k rekreaci.
Tento individuálně navržený dům na první pohled zaujme svou nevšedností a neokoukatelností. Kromě moderního exteriéru, kterému dominuje prosklené průčelí otevřené do krovu, nabízí velmi zajímavě řešený interiér s designovými prvky a pokročilými technologiemi jako podlahový systém REHAU, tepelné čerpadlo IVT a rekuperace ZEHNDER. Po celou dobu, po kterou je dům zveřejněný na našem webu, budí spoustu emocí. Pro některé je inspirativní a velmi zajímavě řešený, pro jiné je již moc extravagantní. Pro nás byl rozhodně výzvou a jsme rádi, že jsme ho mohli realizovat.

Lukáš Černík
LUCERN dřevostavby s.r.o.
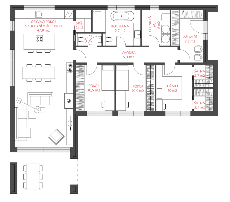
Nejoblíbenější dům z typové nabídky společnosti VEXTA si můžete prohlédnout v Šestajovicích na Praze východ, kde je k vidění jako „vzorový". Vyznačuje se vzdušností, prosvětlením a moderním vzhledem. Dům jsme opakovaně stavěli již na mnoha místech ČR a to většinou s minimem klientských změn, což je také důkazem, že se opravdu podařil.
Oblíbený je především mezi střední a mladší generací. Důvodem je jistě vydařené moderní a přesto praktické architektonické řešení, kde se např. vedle kuchyňského koutu myslelo třeba i na často opomíjenou spíž, nechybí v něm dostatek úložných prostorů, dostatečně velká je i technická místnost. Klienti také často oceňují třeba vnější zádveří, které přirozeně chrání před povětrností. I ti klienti, kteří mají zpočátku proti typovým/katalogovým domům předsudky, ho často volí pro jeho neotřelost a nadčasové řešení.
Jistě i vzhledem k celospolečenské situaci stále více klientů volí co nejvíce úsporná, soběstačná a pokročilejší technologická řešení. Spíše výjimkou jsou tak již rodinné domy, kde nejsou instalována tepelná čerpadla, FVE nebo alespoň základní systém chytré domácnosti. Stále více klientů také volí co nejvíce „zelená" řešení – tedy pracují se šedou vodou, spoléhají třeba na rekuperační výměník tepla nebo volí zelené ploché střechy. Samozřejmě ale také cítíme jistá omezení na straně finančního limitu, nicméně v době relativně vysokých úrokových sazeb u hypotéčních úvěrů se není úplně čemu divit.

Martin Líska
VEXTA a.s.
Lidé obecně dnes hodně řeší energie. Ve valné většině případů chtějí podlahové vytápění v kombinaci s tepelným čerpadlem, a i když je dům velmi dobře zaizolovaný, často zvažují instalaci klimatizace, nebo minimálně přípravu na ni. Sami se také aktivně starají o co nejlepší koncept zastínění. Obecně se hodně zlepšila informovanost stavebníků, jdou zejména po kvalitě, uvědomují si, že jakákoliv kompromisní nebo provizorní řešení se v budoucnu vymstí v podobě dalších nákladů. A také dnes už téměř ze sta procent požadují realizaci na klíč.
TIP NA SOUVISEJÍCÍ ČLÁNEK: Dřevostavba je překvapivě lepší, než zděný dům
Dům, který vidíte, je právě krásným dokladem toho, že komplexnost služeb je dnes pro stavební firmu alfou a omegou. Majitelé chtěli návrh, projekt i stavbu domu řešit skrze jednoho generálního dodavatele. Náš architekt s nimi proto vytvořil studii a následně projekt, na základě kterého jsme dům vyrobili a na místě smontovali. Je to příjemně kompaktní stavba, která se ale neztratí ani na prostorném pozemku.
Kombinace dřevěného obkladu a omítky je u našich klientů obecně velmi oblíbená – přiznané dřevo nejen v exteriéru, ale i v interiéru je dnes hodně populární. Modřínový obklad části fasády je tady nestandardně poskládaný z prken tří různých šířek, která si majitelé vyhlédli přímo v našem výrobním závodu.

Otto Šnajdr
Martinice Group
AUTOR ČLÁNKU pro časopis DŘEVO&stavby: DAGMAR ČESKÁ

































Vytvořeno v xart.cz