Markéta Kristová | Pátek, 08. prosinec 2023 |
Hledáte bydlení pro klidné žití? Projekt rodinného domu na klíč zaujme svou cenou a špičkovým zpracováním. To potvrzují i manželé, kteří si dům nechali na přání upravit a postavit na pozemku v prudkém svahu.
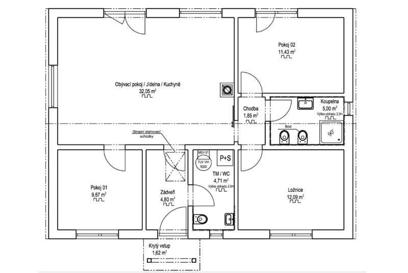
Typová dřevostavba Vela Profi 96
Velmi příjemný rodinný dům menších rozměrů s názvem Vela Profi 96 klame svým vzhledem, přesto jsou uvnitř 3 ložnice a prostorný obývací pokoj s kuchyní. Z obývacího pokoje vyjdete přímo do zahrady, což jistě oceníte nejen v letních měsících. K navození příjemné atmosféry domova a vytopení celého domu během chvíle je praktické si pořídit krb.
Bezbariérové provedení domu je samozřejmě možné. Dřevěný obklad na části fasády podpoří elegantnost tohoto moderního domu. Špičková technologií Difutech®, která udržuje v interiéru po celý rok příjemné klima je zárukou kvality. Tepelná izolace zaručuje pohodlné bydlení s velmi nízkými náklady na vytápění.
Technické parametry
Rodinný dům má obdélníkový půdorys o rozměrech 9,02 x 12,6 m. Interiér má promyšlené dispoziční rozdělení domu na společenskou a klidovou zónu. Nevyhovujeme vám půdorysné řešení? Pro realizační firmu není problém upravit celý dům podle vašeho přání.
- Název projektu: Vela Profi 96
- Realizace: ATRIUM, s.r.o.
- Charakteristika domu: samostatný
- Počet podlaží: jednopodlažní
- Konstrukční systém: panelový
- Podlahová plocha (užitná): 95,37 m²
- Zastavěná plocha: 113,65 m²
- Tvar střechy: sedlová
- Dispozice: 4+kk / 4+1
- Sklon střechy: 23°
- Cena hrubé stavby (vč. DPH): 2 633 100 Kč
- Cena dřevostavby na klíč (vč. DPH): 4 314 900 Kč
- Cena včetně základové desky: Ne

Zdroj půdorysu se souhlasem: ATRIUM s.r.o.
Zkušenost a reference majitelů, kteří si tento typový dům nechali postavit a upravit
Když se manželé rozhodovali, jaký dům budou stavět, Hanka se inspirovala na internetu a v časopisech. Moc se jí líbí moderní stavby, ale řídila se hlavně citem. Hledala domek, který by se k místu co nejvíce hodil. Našla ho v katalogu firmy ATRIUM, se kterou se nakonec manželé domluvili. Základy a dokončovací práce pak řešili subdodavatelsky. Protože ale chtěli změnit vnitřní dispozice domku, strávili hodně času nad projektem.
Hanka oceňuje ochotu a trpělivost projektanta, který plnil její přání. Třeba na větší a pohodlnější vstupní halu, byť na úkor velikosti ostatních místností, nebo technickou místnost, která standardně v těchto stavbách nebývá. Majitelé ale chtěli oddělit technické zázemí domu a ušetřit tak místo v koupelně, kde původně měl být bojler a pračka.
Díky tomu se Hance splnil sen – má v koupelně velké okno, vanu i sprchový kout. Museli také dopředu promyslet umístění krbu a pouzder posuvných dveří, aby vše fungovalo tak, jak má, a nic si nepřekáželo. Stejně tak bylo potřeba vybrat a doladit vzhled všech prvků. Nakonec se vše povedlo zrealizovat podle představ a před domem zbylo dokonce místo i na velkorysou terasu s bazénem, odkud je díky svahu vidět nejen na okolní zástavbu, ale i do krajiny, a majitelé tam rádi tráví svůj čas.
Stavba dřevostavby pak proběhla bez potíží v řádu měsíců. Komunikace se zaměstnanci firmy byla perfektní. Hanka s úsměvem vzpomíná, jak jí v dubnu zavolali, že je dům připravený a když jej přivezli, z legrace se domlouvala se stavbyvedoucím, že večer chce mít na stole klíče od nových dveří. Byla opravdu překvapená, když jí je ten samý den opravdu přivezli. I následné práce nikde nedrhly, a vše bylo překvapivě čisté.
Foto pro časopis DŘEVO&stavby: Martin Zeman, Zdroj vizualizací projektu: ATRIUM s.r.o.


















Vytvořeno v xart.cz