Markéta Kristová | Úterý, 17. prosinec 2024 |
Majitelé této dřevostavby jsou nadšenci do přírody a udržitelného způsobu života. Věří, že zdravé bydlení je klíčem ke kvalitnímu životu, a proto zvolili modulovou dřevostavbu, která minimalizuje ekologickou stopu a zajišťuje energeticky efektivní provoz. Založení na zemních vrutech, přírodní materiály a nízkoenergetická skladba stavby dokonale odpovídají jejich hodnotám a životní filozofii.
Modulové dřevostavby představují inovativní a udržitelný způsob bydlení, který spojuje funkčnost, moderní design a rychlost výstavby. Mezi nimi vyniká dvojmodul se šikmou střechou a podkrovím dokončeným přímo na místě stavby. Tato dřevostavba je navržena tak, aby splňovala nejen požadavky na prostornost a pohodlí, ale i na harmonii s přírodou a zdravý životní styl.
Vzdušný interiér s otevřenou galerií
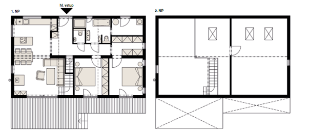
Dvojmodul je navržen s dispozicí 4+kk, což ho činí ideálním pro rodinné bydlení. Obývací pokoj s kuchyňským koutem je propojen s galerií, která může sloužit jako pracovna, herna nebo relaxační zóna. Ložnice a dětské pokoje jsou umístěny v přízemí i podkroví, čímž se maximalizuje soukromí i pohodlí obyvatel.
Jedním z nejpůsobivějších prvků této dřevostavby je otevřený prostor do štítu s galerií o rozloze 40 m². Galerie přivádí do interiéru nejen více přirozeného světla, ale také vytváří jedinečný pocit vzdušnosti a propojení s okolní krajinou. Promyšlená dispozice a ekologické parametry zajišťují praktické a pohodlné prostředí.
Zajímavý příběh se pojí s kachlovými kamny, které jsou srdcem celého domu. Honza, majitel dřevostavby si je zamiloval už v dětství, a tak si je přál i v novém domě. Jeho manželka Míša s nápadem nejen souhlasila, ale rozhodla se zbořit stereotypy a přijmout velkou výzvu. Přestože je právnička a nemá žádné technické vzdělání ani zkušenosti, postavila je s pomocí firmy, která jim na ně připravila projekt, z velké části sama. Honza totiž v té době hodně pracoval v zahraničí, a tak reálná rozhodnutí a řešení vzniklých problémů zbylo na ni. Dnes jsou každopádně tato kamna nejen estetickým, ale i funkčním prvkem obývacího pokoje spojeného s kuchyní.
Tento typ stavby splňuje požadavky na efektivní využití prostoru, šetrnost k přírodě i zdravé životní prostředí.
Přečtěte si celý příběh majitelů a jejich modulové dřevostavby v jabloňovem sadu
Energetická úspornost a ekologické základy
Dřevostavba využívá nízkoenergetickou skladbu, což zajišťuje nejen nízké provozní náklady, ale také šetrnost k životnímu prostředí. Založení domu na zemních vrutech umožňuje stavbu rychle realizovat bez velkých zásahů do přírody. To vše odpovídá požadavkům majitelů na bydlení, které respektuje krajinu a zároveň nabízí maximální komfort.
Pro ty, kdo hledají domov v souladu s přírodou, je tato stavba ideální volbou.
Technické parametry
- Typ domu: nízkoenergetický
- Zastavěná plocha: 104 m2
- Užitná plocha: 145 m2
- Dispozice: 4+kk
- Konstrukční systém: modulární dřevostavba
- Zdroj energie / teplo: elektrické podlahové s přímotopy, zděná pec na dřevo, příprava na FVE
- Větrání: přirozeně okny
- Součinitel prostupu tepla stěnou: U = 0,17 W/m2K
- Autor arch. návrhu a projektu: Ing. Gabriela Juřenčáková
- Realizace: 2021, Eko modular s.r.o., www.ekomodular.cz




















Vytvořeno v xart.cz