PROJEKT z adresáře: MS 15 EKONOMY
Helena Petáková | Čtvrtek, 12. prosinec 2013 |
Rodinný dům MS 15 Ekonomy vznikl jako odpověď na poptávku klientů po příjemném, relativně jednoduchém a především cenově zajímavém domku pro velkou rodinu s bohatým technickým zázemím a krytým venkovním posezením, které je součástí domu.
Dům je navržen jako bungalow s valbovou střechou o sklonu 25°. Při návrhu bylo dbáno na velkou variabilitu, kterou dům svými rozměry nabízí, což podporuje myšlenku, že každý dům z produkce společnosti MS Haus si zákazník může dle svých představ upravit tak, aby vyhovoval právě jemu. Dále byl kladen důraz na to, aby v domě bylo potřebné technické zázemí a vybavení pro velice komfortní bydlení čtyřčlenné rodiny.
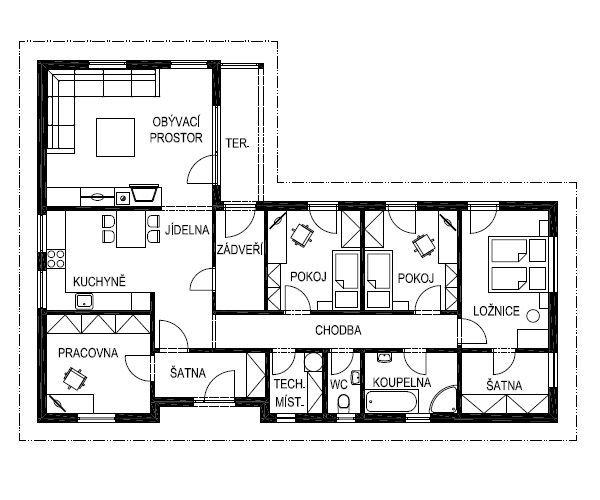
V základní variantě jsou v domě dva dětské pokoje, ložnice s připojenou šatnou, dále pracovna, obytná kuchyň s jídelnou komunikačně propojená se spíží a přístupem ven a v neposlední řadě obývací pokoj. K domu samozřejmě patří i WC, technická místnost, koupelna a zádveří. Vnitřní dispozici lze však podle přání klienta upravovat.
Měrná potřeba tepla
Potřeba tepla na vytápění kryjící tepelné ztráty objektu může činit v případě domu MS 15 Ekonomy zhruba 8 200 kWh ročně, při použití standardní obvodové stěny MS-Haus 270 mm. Na přání lze za příplatek například zlepšit parametry tepelných izolací stěn či oken, vybavit dům tepelným čerpadlem, slunečními kolektory nebo rekuperací větraného vzduchu a zlepšit tak jeho parametry až do klasifikace pasivního domu.
Základní parametry domu
Kategorie domů: do 130 m2
Podlahová plocha: 117,2 m2
Konstrukce: montovaná dřevostavba
Energetická třída: nízkoenergetický
Cena stavby: 1.990.000 Kč
O společnosti
MS Haus s.r.o. se specializuje na dřevostavby, montované domy i roubené objekty, zejména pak rodinné domy a stavby pro rekreaci. Stejně tak provádí i zakázky kompletních staveb jiného charakteru. Hlavně suchou montáž konstrukcí, aplikuje fasádní systémy, rekonstruuje panelové domy, provádí střešní nástavby či půdní vestavby. Projekční kancelář společnosti MS Haus nabízí vše z oboru, od přípravných projekčních prací, přes studie a projekty pro stavební povolení, až po prováděcí dokumentaci. Specializovaná je pochopitelně na dřevostavby konstrukčních systémů dodávaných přímo firmou MS Haus.
Společnost MS Haus je členem tuzemské Asociace dodavatelů montovaných domů a hlásí se k Dokumentu národní kvality. Velkou část své produkce však realizuje v zahraničí, zejména ve SRN. Domy firma zhotovuje ve výrobně, takže na stavbu přiváží již hotové panely, včetně oken a omítek. Tyto panely splňují zákonnou certifikaci a navíc celá výroba, ale i montáž, je od roku 2008 certifikována podle Dokumentu národní kvality ADMD.
Příklady řešení projektů a realizací dřevostaveb, rodinných domků v sendvičovém provedení i v technologii roubenek, které společnost MS Haus veřejnosti předkládá, slouží pouze k inspiraci stavebníků a jako podklad k eventuálnímu dalšímu jednání s dodavatelem. Lze s nimi dále pracovat a měnit je v rozsahu limitovaném statickými podmínkami a technickými předpisy. Každá zakázka v podání této firmy je zcela individuální a unikátní.
Projekty a realizace dřevostaveb
Více projektů a realizací dřevostaveb od vybraných výrobců a dodavatelů dřevostaveb najdete v sekci Projekty a realizace dřevostaveb. Můžete vybírat z obrázkového zobrazení nebo vyhledat projekt podle zadaných parametrů. Při realizaci vašeho nového domu se vám bude hodit i náš Adresář firem pro stavbu a vybavení - zde, jehož tištěnou verzi - Adresář výrobců a dodavatelů dřevostaveb si můžete ZDARMA objednat na Tato emailová adresa je chráněna před spamboty, abyste ji viděli, povolte JavaScript .












Vytvořeno v xart.cz