PROJEKT z adresáře: Agáta
Lucie Němcová | Čtvrtek, 10. duben 2014 |
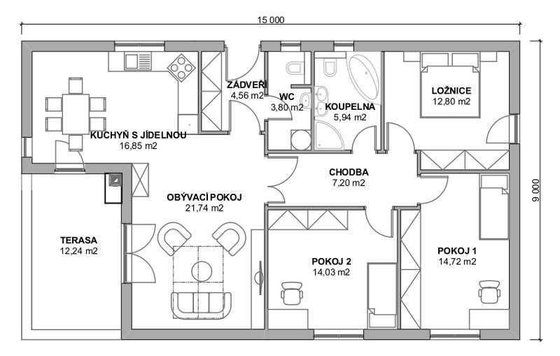
Přízemní rodinný dům Agáta společnosti A-dům, s.r.o. je příkladem pohodlného přízemního bydlení pro čtyř- až pětičlennou rodinu. Svým nenápadným vzhledem a sedlovou střechou je objekt vhodný téměř do jakéhokoli typu zástavby - starší i nové.
Dispozice domu je 4+kk (nebo 4+1) a užitná podlahová plocha je 101,64 m2.
Aktuální ceny naleznete na stránkách, případně na dotaz u prezentované společnosti.
Společnost A-dům, s.r.o. projektuje a realizuje dřevostavby ve spolupráci s vlastním projekčním ateliérem A-styl v individuálním i typovém provedení z vlastního katalogu. Právě propojení a zpětná vazba realizace s projekcí je velkou devizou firmy.
Pro své projekty a realizace v převážné většině využívá systému opláštěné dřevo-konstrukce two by four, ale i další systémy dle požadavku klienta (masivní dřevěné panely, systém Rigips, apod.). Výběr nejvhodnější technologie pak vychází z komunikace s klientem a prostředí realizace. Společnost realizuje i různé druhy individuálních přístaveb, nástaveb a dalších konstrukcí při rekonstrukcích již provedených staveb.
Projekty a realizace dřevostaveb
Více projektů a realizací dřevostaveb od vybraných výrobců a dodavatelů dřevostaveb najdete v sekci Projekty a realizace dřevostaveb. Můžete vybírat z obrázkového zobrazení nebo vyhledat projekt podle zadaných parametrů. Při realizaci vašeho nového domu se vám bude hodit i náš Adresář firem pro stavbu a vybavení - zde, jehož tištěnou verzi - Adresář výrobců a dodavatelů dřevostaveb si můžete ZDARMA objednat na
Tato emailová adresa je chráněna před spamboty, abyste ji viděli, povolte JavaScript
.












Vytvořeno v xart.cz